用户中心与功能整合的典范:该项目成功地将一家拥有八十年历史的医院进行了全面的功能更新与规模扩张,实现了建筑面积的三倍增长,并整合了全方位的专科医疗服务。其核心价值在于“以客户为中心”的设计理念,不仅满足了当前医疗需求,更致力于成为加泰罗尼亚私营医疗保健领域的行业标杆。通过严谨的功能规划和空间布局,项目确保了高效的医疗流程和卓越的用户体验。
巧妙的城市文脉回应与空间渗透:建筑设计通过设置三个中庭,最大化地引入自然光照与通风,极大地优化了内部微气候和患者的康复环境。在城市界面上,四个立面根据其在场地中的不同面向采取了差异化的设计策略,巧妙地与城市肌理对话——无论是作为主要通道的北立面、标志性的南入口,还是履行企业功能的西立面,都展现了对场所精神的深刻理解和积极响应。
人性化标准与未来适应性的融合:项目在设计中融入了前沿的健康与无障碍标准,如采用Clear Code Architecture®评估体系确保通用无障碍性,并依据Friendly Materials®标准选择健康无害的材料,体现了对居住者福祉的深度关注。此外,基础设施的设计考虑了医疗技术快速迭代的需求,具备多价参数的灵活性,确保了建筑在未来功能调整中的可持续性和适应性。
The new Clínica Girona is a commercial building designed around the customer, renewing and strengthening the functional planning of a hospital with more than 80 years of history. The project triples the building's surface area while increasing the number of specialties to offer complete medical services, aiming to become a benchmark in the private healthcare sector in Catalonia.
新的吉罗纳诊所(Clínica Girona)是一座以服务客户为中心而设计的商业型建筑,为这家拥有80多年历史的医院更新和加强功能规划。该项目将旧医院的建筑面积扩大了三倍,同时增加其专科数量,以提供完整的医疗服务,旨在成为加泰罗尼亚地区私营医疗保健行业的标杆。

© Gael del Rio, Luca Bani

© Gael del Rio, Luca Bani

Site Plan

© Gael del Rio, Luca Bani
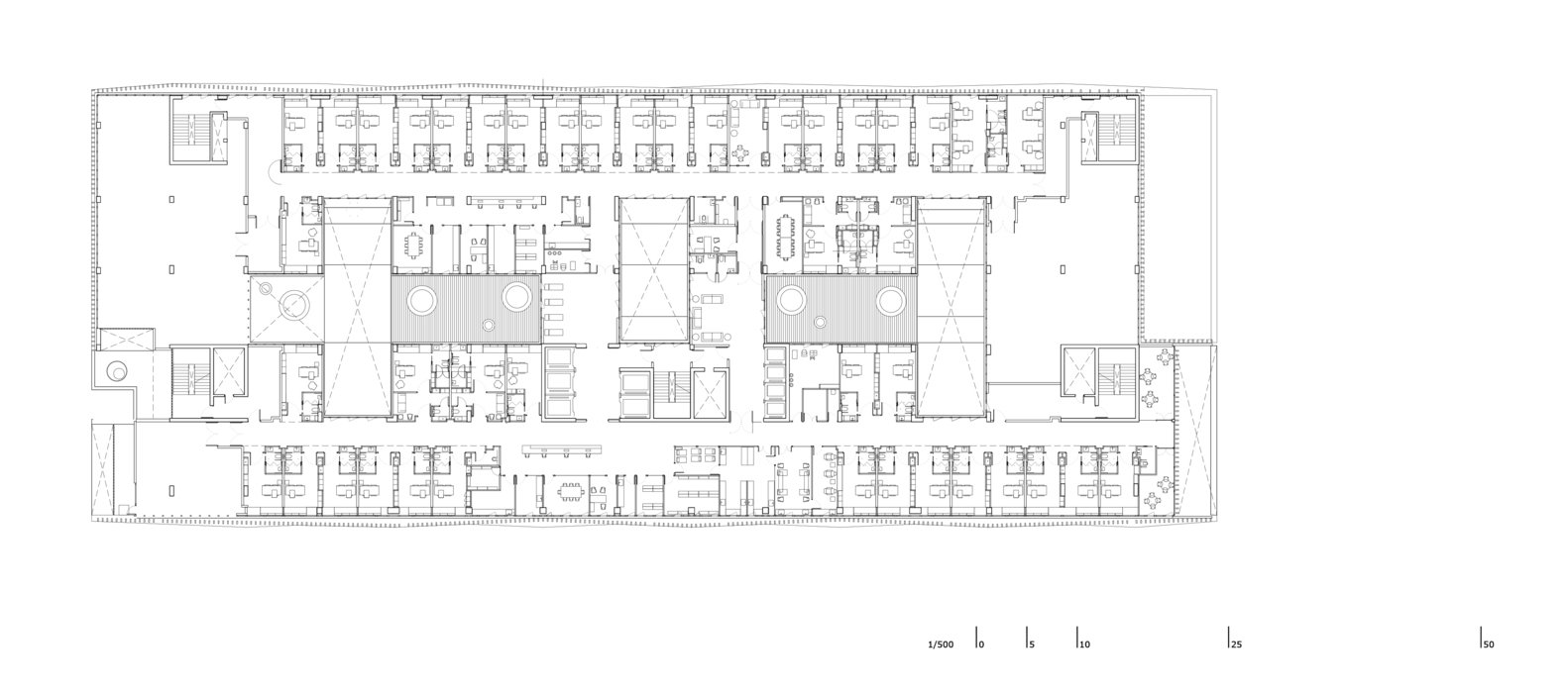
The building has 3 basement levels and 8 above-ground levels, responding to the urban conditions of its site, including 3 atriums that provide the interior spaces with maximum lighting and ventilation conditions. The clinic houses an emergency room, dialysis, diagnostic imaging (16 rooms), outpatient consultations, assisted reproduction, pathological anatomy, rehabilitation, laboratories/labs, ophthalmology, operating theaters, maternity wards, day hospital, hemodynamics and electrophysiology, endoscopy rooms, ICU intensive care unit, hospitalization units, and all the conventional services required for operation.
该建筑有地下3层,地上8层,回应了其所在场址的城市条件,包括3个使其内部空间拥有最大程度照明和通风条件的中庭。诊所内设有急诊室、透析、影像诊断(16个房间)、门诊咨询、辅助生殖、病理解剖、康复、实验/化验室、眼科、手术室、产科病房、日间医院、血液动力学和心肌电生理学、内视镜室、ICU重症监护病房、住院单元以及运营所需的所有常规服务。

© Gael del Rio, Luca Bani

Ground Floor Plan

© Gael del Rio, Luca Bani
The building establishes a dialogue with the city through its 4 facades that follow the same design standard, but adopt different solutions according to their position in the urban environment. The North facade, facing the city center, constitutes the main access; the South facade, welcoming the city, is conceived as an important iconic entrance frontage; the West facade performs a corporate function when viewed from the train; and the East facade gives the clinic its urban character.
该建筑通过其4个遵循相同设计标准的立面与城市产生对话,但根据其所在环境中的位置采用不同的解决方案。面向城市中心的北侧立面构成了主要通道;迎接城市的南侧立面则被设想为一个重要的标志性入口门面;从火车上看,西侧立面履行了企业性功能;东侧立面赋予了诊所城市化特征。

Sections

© Gael del Rio, Luca Bani

© Gael del Rio, Luca Bani

Floor Plan

© Gael del Rio, Luca Bani

Sections

© Gael del Rio, Luca Bani
Standards from the Clear Code Architecture® assessment methodology have been applied to the conceptualization of the project, such as the implementation of universal accessibility strategies in counters, elevators, stairs, and bathrooms. Furthermore, the interior of the building has also been approached from a humanized perspective, always pursuing a user-centered design and using healthy and harmless materials, considering the inhabitants' health according to the Friendly Materials® analysis standard.
来自Clear Code Architecture®评估方法中的标准被应用于项目的概念构思中,例如在柜台、电梯、楼梯和浴室等方面实施通用的无障碍策略。同时,建筑内部也从人性化的角度考虑,始终追寻以用户需求为中心的设计,并采用健康无害的材料,按照Friendly Materials®的分析标准来考虑居住者的健康。

© Gael del Rio, Luca Bani

Floor Plan

© Gael del Rio, Luca Bani
The design of the infrastructure follows polyvalent parameters because the functional distribution of a healthcare building must allow it to change at the pace required by medical and technological development. The new Clínica Girona has an innovative and functional design committed to providing efficient, sustainable, and accessible clinical services for people's health and well-being.
基础设施的设计遵循多价参数,因为医疗建筑必须允许其功能分布以医疗与技术发展所需的速度而改变。新的吉罗纳诊所拥有创新与实用的功能设计,致力于为人们的健康与福祉提供高效、可持续与无障碍的诊所服务。
Text content from the architect
译者:QI TING YU

© Gael del Rio, Luca Bani