自然元素与空间哲学的深度融合:该项目最精髓之处在于其对“虚无美学”的极致追求,通过对山、水、天这三大自然元素的主题提炼,成功地将建筑转化为一个纯粹放松和空灵的容器。设计巧妙地处理了在人工结构限制下,如何最大化地表达自然渗透性的矛盾。尤其体现在二层中央的开放式华夫格天花板结构,它不仅提供了一个与天空直接对话的广场,还使得建筑外观随天气变化而动态呈现,实现了结构形式对环境的深刻呼应,将冥想和瑜伽的需求融入了对自然意境的体验中。
结构对光的动态捕捉与反射利用:建筑师放弃了刻意的装饰性框架,转而聚焦于结构本身的表达,以此作为衬托自然的背景。一层的设计是这种理念的典范,通过露台上的水景与室外环境的联动,将自然光影柔和地引入室内。裸露的混凝土表面成为了光线的画布,反射的光影成为内部元素的一部分,营造出一种宁静致远的氛围。这种对光影、水体与材料质感的精确控制,使得空间的功能(瑜伽、冥想)与氛围的营造达到了高度统一,有效满足了业主寻求平静的初衷。
空间序列中的心性转化:TRIVIUM的设计目标是引导访客“清空复杂的头脑”或“充实思绪”,这表明项目超越了单纯的功能实现,而上升到对使用者心性状态的积极干预。设计过程本身就是一次对“填充与清空”辩证关系的探索,如何在密集的建造过程中实现对“减少人造结构”的追求。二层开敞的广场空间(仅闻风声叶声)与一层内向、受控的冥想空间形成了节奏上的对比,共同构建了一个引导使用者进行深度自我对话和精神回归的建筑序列。
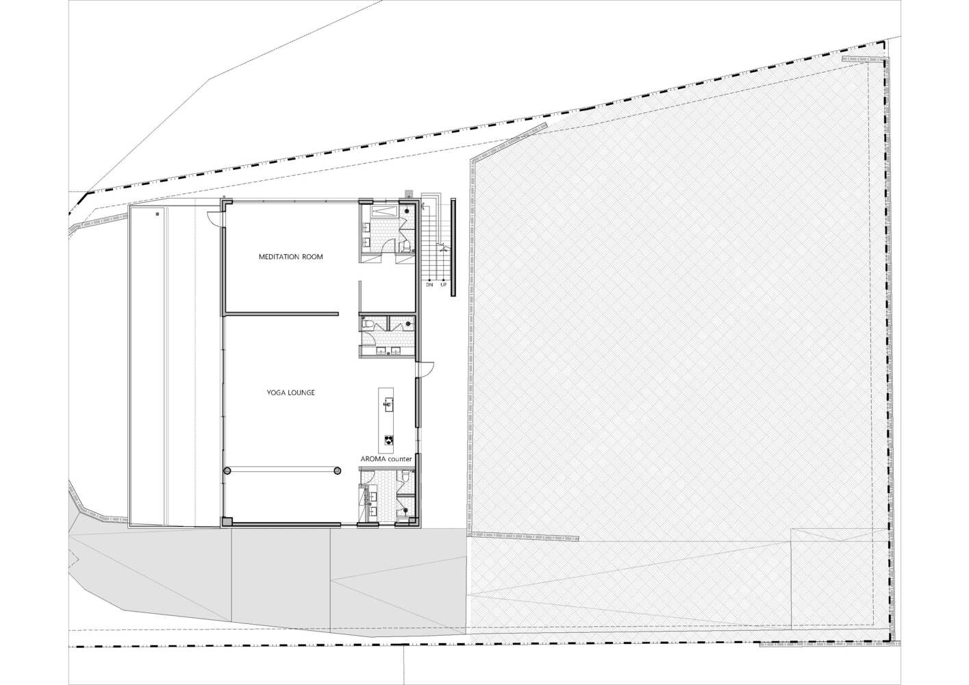
There is architecture created with attention to the natural environment and architectural principles. The client wanted a space of pure relaxation and emptiness, just like what nature can offer, with mountains, water, and sky becoming the primary themes throughout the design process. The owner named this place "TRIVIUM," aiming to convey the aesthetic of nothingness to visitors through these three natural elements. However, the challenge of infilling during the construction process was contradictory, similar to the wave-particle duality of light; building a structure themed around "reducing man-made structures" on a site that was originally only land and grass was not easy. The design process involved repeated collaboration with the owner, while focusing on a minimalist style to create a design solution that integrates nature into every space.
地面层平面图There is architecture created with attention to the natural environment and architectural principles. The client wanted a space of pure relaxation and emptiness, just like what nature can offer, with mountains, water, and sky becoming the primary themes throughout the design process. The owner named this place "TRIVIUM," aiming to convey the aesthetic of nothingness to visitors through these three natural elements. However, the challenge of infilling during the construction process was contradictory, similar to the wave-particle duality of light; building a structure themed around "reducing man-made structures" on a site that was originally only land and grass was not easy. The design process involved repeated collaboration with the owner, while focusing on a minimalist style to create a design solution that integrates nature into every space.
地面层平面图
© Fotoglab

© Fotoglab

© Fotoglab

地面层平面图

© Fotoglab
Firstly, the architects believed that structural simplicity should be the primary backdrop for the entire design project, rather than focusing on decoration; however, at the same time, they did not want to integrate nature into every space using a typical picture-frame approach. For the central public space on the second floor, the design proposed a waffle slab ceiling structure, which is an open plaza where the sky can be seen, offering opportunities to experience various sky landscapes from both horizontal and vertical dimensions. The open ceiling and the water feature also display different architectural appearances depending on the weather. The focus is on making the structural form feel special within the environment—on good weather days, this space, filled only with the sound of wind and rustling leaves, can be used for activities such as meditation and yoga. The outdoor public space on the second floor is also the area most favored by visitors.
Firstly, the architects believed that structural simplicity should be the primary backdrop for the entire design project, rather than focusing on decoration; however, at the same time, they did not want to integrate nature into every space using a typical picture-frame approach. For the central public space on the second floor, the design proposed a waffle slab ceiling structure, which is an open plaza where the sky can be seen, offering opportunities to experience various sky landscapes from both horizontal and vertical dimensions. The open ceiling and the water feature also display different architectural appearances depending on the weather. The focus is on making the structural form feel special within the environment—on good weather days, this space, filled only with the sound of wind and rustling leaves, can be used for activities such as meditation and yoga. The outdoor public space on the second floor is also the area most favored by visitors.© Fotoglab

© Fotoglab
The first floor of the project is an interior space where the water feature on the terrace, along with the outdoor scenery, occupies the entire area. The terrace water feature serves as an outdoor relaxation space and provides reflected light to the interior over time, while the reflected light on the exposed concrete surface can be regarded as an internal element. This space is primarily used for activities such as yoga, meditation, and aromatherapy, providing visitors to Trebium with a sense of calm, as the owner wished. Many people who sit here quietly observing nature often experience a state of relaxation before drifting off to sleep.
The first floor of the project is an interior space where the water feature on the terrace, along with the outdoor scenery, occupies the entire area. The terrace water feature serves as an outdoor relaxation space and provides reflected light to the interior over time, while the reflected light on the exposed concrete surface can be regarded as an internal element. This space is primarily used for activities such as yoga, meditation, and aromatherapy, providing visitors to Trebium with a sense of calm, as the owner wished. Many people who sit here quietly observing nature often experience a state of relaxation before drifting off to sleep.
© Fotoglab

屋顶平面图

© Fotoglab
The architects hoped that visitors coming to TRIVIUM, a place carrying the owner's long-held desires, could clear their complex minds during their visit, or conversely, enrich their thoughts. Throughout the entire design phase of the project, the process of filling the building with structure and then emptying it to integrate nature was a challenging task, and it remains difficult to define the future expectations for TRIVIUM, much like the nature of light.
The architects hoped that visitors coming to TRIVIUM, a place carrying the owner's long-held desires, could clear their complex minds during their visit, or conversely, enrich their thoughts. Throughout the entire design phase of the project, the process of filling the building with structure and then emptying it to integrate nature was a challenging task, and it remains difficult to define the future expectations for TRIVIUM, much like the nature of light.屋顶平面图
© Fotoglab