城市文脉的有机融合与功能集成:桑蒙塔洛项目成功地将日托中心、学校、图书馆及社区设施整合于一个连绵的瓦屋顶之下,形成了一个高效的多功能市民中心。其设计精妙地回应了周边 20 世纪 80-90 年代后现代主义的红砖建筑遗产,通过提取红砖的色彩和厚重感,使其新建筑在尊重原有城市肌理的同时,又以现代结构手法实现功能的聚合,增强了区域的公共性与活力。
结构与材料的清晰表达与尺度控制:尽管建筑体量庞大(12,000 平方米),设计师通过精心的尺度划分,成功地将体量分解为更具人性化尺度的单元,避免了压迫感。结构上,该项目采用木结构体系,并以砖墙作为其保护性的“雨衣”,清晰地表达了结构逻辑——轻盈的木柱梁系统与厚重的砖基座形成对比。这种双层墙体设计不仅具有保护性,也通过水平线条的强调,使建筑在城市天际线中显得既稳固又灵动。
清晰的空间轴线与内向型公共体验:设计通过一条贯穿建筑大堂的核心轴线,将城市一侧的入口庭院与南侧的公园景观区有机连接起来,实现了视觉上的连续性和体验上的场所感。室内设计上,通过红砖色调(公共区)和天然木色调(学习区)的区分,巧妙地引导了使用者流线和活动性质。明亮的内庭引入充足自然光,与温暖的材料共同营造出内外渗透、既开放又聚焦的宜人社区氛围。
The Sammontalo is a multi-purpose community building that brings together a daycare center, preschool, comprehensive school, public library, sports and youth facilities, and student welfare services under one continuous tiled roof, creating a civic center for shared daily life. The project is designed to accommodate approximately 860 children, supported by over 140 professionals, and its realization is based on the winning proposal from an open, two-stage architectural competition. With a gross floor area of approximately 12,000 square meters, Sammontalo is one of Finland's largest timber-framed buildings.
桑蒙塔洛是一座多功能社区建筑,它将日托中心、学前班、综合学校、公共图书馆、体育与青年活动设施以及学生福利服务汇聚于同一座连绵不断的瓦屋顶之下,打造出一个供日常生活共享的市民中心。该项目设计可容纳约 860 名儿童,并由超过 140 名专业人员提供支持,其实现基于一场开放式两阶段建筑竞赛的获胜提案。桑蒙塔洛建筑面积约达 12000 总平方米,是芬兰最大的木结构建筑之一。

© Rasmus Norlander

© Rasmus Norlander
The building is situated in the heart of the Sammonlahti district, a suburb of Lappeenranta, where the main municipal buildings form a cohesive complex completed between the late 1980s and early 1990s. These municipal landmarks include the commercial center and health station designed by Sulo Savolainen of Suunnittelurengas Oy architects, and the Sammonlahti Church by Riitta and Kari Ojala. These buildings reflect postmodernism, characterized by red brick facades and references to European architectural traditions.
该建筑位于拉彭兰塔市郊萨蒙拉赫蒂(Sammonlahti)区的中心地带,当地的主要市政建筑形成了一个协调统一的建筑群,于 20 世纪 80 年代末至 90 年代初竣工。这些市政地标包括由 Suunnittelurengas Oy 建筑公司的建筑师苏洛·萨沃莱宁(Sulo Savolainen)设计的商业中心和卫生站,以及由丽塔和卡里·奥亚拉(Riitta and Kari Ojala)设计的萨蒙拉赫蒂教堂。这些建筑反映了后现代主义风格,以红砖外墙和借鉴欧洲建筑传统为特点。

Axonometric drawing
轴测图
The design of Sammontalo draws inspiration from this red brick heritage, aiming to reinforce the existing public building cluster and complete the urban spatial sequence of the Sammonlahti center. The building spans almost the entire plot, dividing the area into two distinct atmospheres: a more urban civic zone on the north side, and a lush, park-like playground and sports area on the south side.
桑蒙塔洛的设计灵感源自这些红砖建筑遗产,旨在强化现有的公共建筑群,并完善萨蒙拉赫蒂中心的城市空间序列。该建筑几乎横跨整个地块,将区域划分为两种截然不同的氛围:北侧是更具都市气息的市民区域,南侧则是绿意盎然、宛如公园般的游乐场和运动场地。

© Rasmus Norlander

© Rasmus Norlander
The main spatial sequence of Sammontalo, centered on the building's lobby situated between the city-side entrance courtyard and the park-side inner courtyard, forms a visually transparent and coherent axis running through the entire building. The bright inner courtyards contrast with the red brick facades, bringing ample daylight and open views indoors.
桑蒙塔洛的主要空间序列,以位于城市一侧入口庭院与公园一侧内庭之间的建筑大堂为中心,形成了一条视觉通透、体验连贯的轴线贯穿整个建筑。明亮的内庭与红砖外墙形成鲜明对比,为室内带来充足的日光和开阔的视野。

© Rasmus Norlander

© Rasmus Norlander
Despite its large scale, the complex is divided into several smaller, more human-scaled units that harmonize naturally with the proportions of the surrounding buildings. The double-layer facade emphasizes horizontal lines: the heavy brick columns on the ground floor form a solid base, while the continuous ribbon windows and slender post-and-beam structure make the upper level appear light and transparent, like a pavilion. The sloped brick-tiled roof and continuous double eaves give the building a distinct and unified silhouette in the urban landscape.
尽管规模庞大,但该建筑群被划分为多个更小、更符合人体尺度的单元,与周边建筑的比例自然协调。双层外墙强调水平线条:底层厚重的砖柱构成稳固的基座,而连续的带状窗户和纤细的柱梁结构则使上层显得轻盈通透,宛如亭阁。倾斜的砖瓦屋顶和连续的双层屋檐使建筑在城市景观中呈现出独特而统一的轮廓。

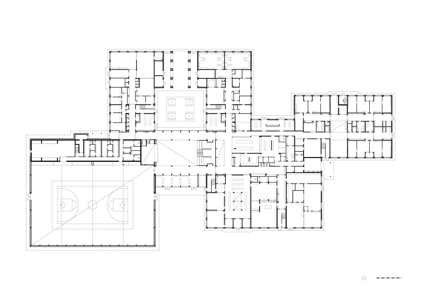
Ground floor plan
一层平面图

Axonometric and sectional elevation
轴测图及剖面图
The building is laid out on a structural grid of 3.5 meters, a design consistently expressed throughout the architecture. The building is conceived as a cohesive whole, relying on a minimized set of repetitive and structurally clear elements. The timber post-and-beam system tapers upwards, appearing light, visible both inside and out, while the brick facade acts as a protective "raincoat" for the timber structure.
该建筑以 3.5 米的结构网格进行布局,这一设计在整体建筑中得到了始终如一的体现。建筑被构思为一个协调统一的整体,依赖于一套最小化的、可重复且结构清晰的元素。木制柱梁系统向上逐渐变细,显得轻盈,内外皆可见,而砖砌外墙则作为木结构的保护“雨衣”。

Courtesy of NERVIN Architecture
Courtesy of NERVIN Architecture

© Rasmus Norlander
The material palette of Sammontalo primarily merges two tones: brick red and natural wood color. The brick red defines public areas such as lobbies, the library, and corridors, lending them warmth and character, while light wood dominates the quieter learning spaces. The color scheme seamlessly continues from exterior to interior, with extensive use of wood—much of it stained semi-transparent red—creating a unified and pleasant atmosphere. These elements together give Sammontalo its distinct architectural character and an enduring harmony between form, material, and place.
桑蒙塔洛的材质调色板主要融合了两种色调:砖红色和天然木色。砖红色定义了公共区域,如大堂、图书馆和走廊,赋予它们温暖和特色,而浅木色则主导了更为宁静的学习空间。色彩方案从外到内无缝延续,大量使用木材 —— 其中许多被染成半透明红色 —— 营造出统一而宜人的氛围。这些元素共同赋予了桑蒙塔洛鲜明的建筑特色,以及形式、材质与场所之间永恒的和谐感。

© Rasmus Norlander