社区共融与功能复合:该项目成功地整合了多个不同用户群体(青年、幼儿、体育服务、教育、学术、青年中心)的需求,通过灵活的拨款结构,在一个共享空间内实现了功能复合和社区的深度融合。这不仅是简单的功能叠加,更是一种对城市微观尺度下多元需求响应的典范,展现了建筑作为社会粘合剂的潜力。
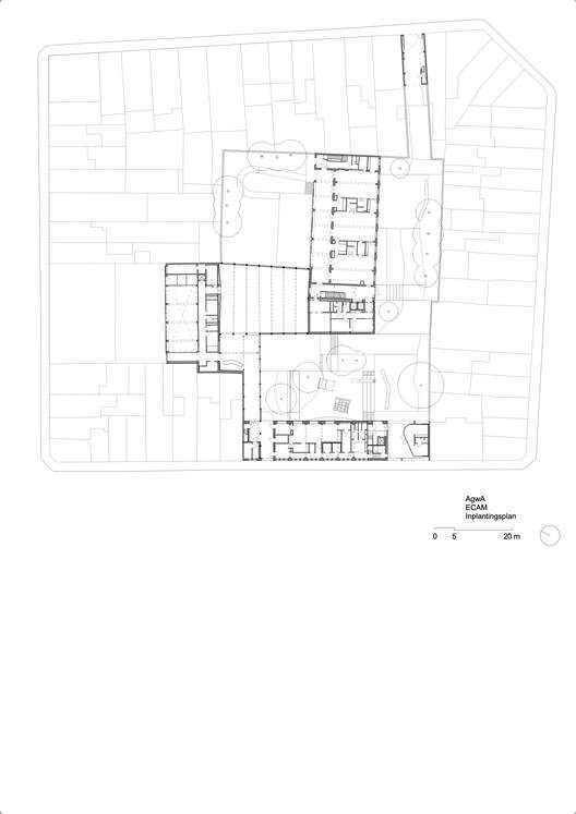
尊重文脉的策略性城市干预:建筑师通过对现有街区进行细致的类型学研究,采取了“非叠加”的策略,使新旧建筑元素在保持现有街区统一性的基础上和谐共存。通过开放街区,创造了多路径的公共渗透空间,这种“村庄式”的有机整合,既尊重了布鲁塞尔既有的地块划分原则,又在不破坏文脉的前提下,激活了社区的活力与可达性。
以人为本的可持续与生态复兴:项目的可持续性不仅体现在仅新建1362平方米并采用被动房标准,更侧重于空间品质的提升。通过最大化户外空间、优化空间结构的可读性、确保灵活性和无障碍性,显著提高了环境质量。将整个街区改造为城市生物多样性保护区,体现了超越建筑本身的生态责任感和对场所人性化的深刻承诺。
With the participation of numerous associations and organizations, the ECAM project demonstrates the significance of developing a funding structure that allows different actors to have different uses for the same place. This includes youth, early childhood and sports municipal services, extracurricular architectural associations, an academic library, and a youth center.
在众多协会和组织的参与下,ECAM 项目展示了开发一个允许不同行为者对同一地点进行不同使用的拨款结构的意义。包括青年、幼儿和体育城市服务机构、建筑课外活动协会、一个学术图书馆和一个青年中心。

© Séverin Malaud

© Séverin Malaud
AgwA has proven its ability to develop the aforementioned project, which accommodates a wide variety of occupants, allows multiple activities to take place in the same space, and continuously enriches the activities through communication with all different stakeholders of the project. Residential areas in Brussels are characterized by parcel divisions. Street continuity and house styles are related to this type of parcel division. The project applies these architectural principles within the block, where outdoor spaces coexist with built spaces, regardless of whether the buildings are new or old.
AgwA 已证明了其有能力开发上述项目,该项目能够容纳各色各样居住者,让人们能在同一空间内开展多种活动,同时还能与项目所有不同的利益攸关方进行沟通,不断丰富活动内容。布鲁塞尔的住宅区特点是基于地块划分。街道连贯性和房子风格都与地块划分这种类型有关。该项目将上述建筑原则应用至街区内部,无论建筑新旧与否,室外空间都与已建空间共存。

© Séverin Malaud

© Séverin Malaud

General layout
In simple terms, this project creates urbanization: each architectural element is expressed on one or more blocks, and the architectural elements are not superimposed. Within the same block, the existing buildings maintain stylistic coherence, and the pattern of homogeneity maintains structural singularity and clarity. It is like a village where residents of different temperaments coexist naturally and harmoniously, jointly creating areas for passage and encounter, collective spaces, and more intimate spaces.
简单地说,这个项目创建了城市化:每种建筑元素体现在一个或多个街区上,而建筑元素不会进行叠加。现有同一块街区建筑风格统一,同一性模式一直保持结构单一和清晰。就好比一个村庄,不同性格的居民在此自然和谐共存,共同创建出通行和相遇的区域、集体空间和更亲密空间。

© Séverin Malaud

© Séverin Malaud

© Séverin Malaud
The main action is the opening of the block, allowing residents the possibility of crossing through the block to enjoy parks, playgrounds, and activity areas. Through three different streets, different floor levels, and a landscaped path, this outdoor space becomes an intermediary channel for entrances and users. This project has educational, cultural, and social significance, reviving community activities without detaching itself from the residential area in which it is located.
主要的行动是开放街区,让居民有可能穿过街区,享受公园、操场和活动场所。通过三条不同的街道、不同的楼层和一条景观步道,这个室外空间成为入口和使用者的中介渠道。这个项目同时具有教育、文化和社会意义,在不脱离其所在住宅区的情况下,复兴了社区的活动。

© Séverin Malaud

© Séverin Malaud
AgwA conducted a typological study of the area, not with the aim of standardizing all buildings, but in order to respect the different existing aesthetics by playing on the complexity of the diverse architecture. The same study was conducted on the typological proposal for different entrance systems, allowing for a more numerous and more ingenious way of entering the area. An urban project approached in this way integrates better into its environment and responds more discreetly to the urbanization issues of the area.
AgwA 对该区域进行了类型学研究,其目的不是标准化所有建筑,而是通过发挥多样建筑的复杂性,以此来尊重不同的现有美学。在针对不同入口系统的类型学提议中,也进行了同样的研究,允许人们以一种更多和更巧妙地方式来进入该区域。这种方法下的城市项目能够更好地融入其环境,并更谨慎地应对该区域的城市化问题。

© Delphine Mathy

Detail view
For ECAM, sustainable technical choices were determined based on an economy of arbitration and based on an economic logic with an interesting and profitable return time in the long term. The first challenge was to optimize the existing building, minimizing new construction. Only 1362 m² were built new across the entire project, following passive building standards.
对于 ECAM 来说,可持续的技术选择是根据仲裁和基于长期有趣和有利可图的回报时间的经济逻辑来确定的。第一个挑战是优化现有建筑,尽量减少新建筑。整个项目中只新建了 1362 平方米,并遵循被动式建筑标准。

© Séverin Malaud

© Séverin Malaud
Sustainability is also reflected in the architecture, in the maximization of outdoor spaces, in the legibility of the spatial organization, in the humanization of the places, in the flexibility of use, and in the accessibility for PRMs. The quality of the project's environment is the primary concern: minimization of non-permeable surfaces, creation of rain basins, plant diversity, etc. The entire block has been transformed into a new biodiversity reserve within the city.
可持续性也体现在建筑上,体现在户外空间最大化上,体现在空间结构易读性上,体现在场所人性化上,体现在使用灵活性上,体现在 PRM 可及性上。项目环境质量是最主要的问题:不可渗透表面的最小化、暴雨盆地的形成、植物多样性等。整个街区内部被改造成了市内新的生物多样性保护区。
Text description provided by the architect
文字描述由建筑师提供
Translated by: Xiao Zhiyng
翻译:肖智颖

© Séverin Malaud