Appearance
《中国地质调查局地质调查技术标准》DD 2006-02
🗓️ 住房和城乡建设部
前言
中国地质调查局地质调查技术标准
DD 2006--02
地面沉降监测技术要求
前 言
本标准参照国家一、二等水准测量规范(GB 12897-2001)、国家三、四等水准测量规范(GB 12898-2001)、地面沉降水准测量规范(DZ/T 0154-1995)、全球定位系统(GPS)测量规范(GB/T 18314-2001)、地下水动态监测规程(DZ/T 0133-1994)等有关国家标准、行业标准编制而成。
由于地面沉降调查与监测工作涉及的工作环节和工作内容较多,专业性较强,除了地学知识外,涉及到大量与测量学和仪器使用有关的专业知识,在使用过程中本技术要求未及部分可照相关的技术标准执行。
本标准的附录A 为规范性附录,附录B、附录C、附录D、附录E、附录F、附录G、附录H、附录I、附录J、附录K 为资料性附录。
本标准由中国地质调查局提出;
本标准起草单位:中国地质环境监测院
本标准主要起草人:何庆成、叶晓滨、钟立勋、李志明、刘文波、李采
本标准由中国地质调查局负责解释。
地面沉降监测技术要求
地面沉降监测技术要求
1 范围
本标准规定了地面沉降现状调查、监测网布设、监测内容及方法、外业成果纪录与整理计算、地面沉降趋势预测评价、地面沉降区地裂缝长期监测、资料整理与成果编制等的技术要求本标准适用于各种自然和人为原因引起的地面沉降灾害的专门调查与监测工作。
2 规范性引用文件
2 规范性引用文件
下列文件中的条款通过本标准的引用而成为本标准的条款。凡是注明日期的引用文件,其随后所有的修改单(不包括勘误的内容)或修订版均不适用于本标准,然而,鼓励根据本标准达成协议的各方研究是否可使用这些文件的最新版本。凡是不注明日期的引用文件,其最新版本适用于本标准。
GB 12897 国家一、二等水准测量规范
GB 12898 国家三、四等水准测量规范
GB/T 14158 区域水文地质工程地质环境地质综合勘查规范(1︰50000)
GB/T 18314 全球定位系统(GPS)测量规范
CJJ 73 全球定位系统城市测量技术规程
CH/T 1004-2001 测绘技术设计规定
DZ/T0097 工程地质调查规范(1︰25000~1︰50000)
DZ/T0133 地下水动态监测规程
DZ/T0154 地面沉降水准测量规范
SL-237-019-1999 孔隙水压力消散试验
3 术语和定义
3 术语和定义
下列术语和定义适用于本标准。
3.1 地面沉降 land subsidence
因地层压密或变形而引起的地面标高降低。
3.2 GPS 测量 GPS surveying
应用GPS(Global Positioning System)全球定位系统技术测量地面沉降量。
3.2.1 观测时段 observation session
测站上开始接受卫星信号到停止接收连续观测的时间间隔称为观测时段,简称时段。
3.2.2 同步观测 simultaneous observation
两台或两台以上接收机同时对同一组卫星进行的观测。
3.2.3 同步观测环 simultaneous observation loop
三台或三台以上接收机同步观测所获得的基线向量构成的闭合环。
3.2.4 独立观测环 independent observation loop
由非同步观测获得的基线向量构成的闭合环。
3.2.5 数据剔除率 percentage of data rejection
同一时段中,删除的观测值个数与获取的观测值总数的比值。
3.2.6 天线高 antenna height
观测时接收机天线相位中心至测站中心标志面的高度。
3.2.7 参考站 reference station
在一定的观测时间内,一台或几台接收机分别固定在一个或几个测站上,一直保持跟踪观测卫星,其余接收机在这些测站的一定范围内流动设站作业,这些固定测站就称为参考站。
3.2.8 流动站 roving station
在参考站的一定范围内流动作业的接收机所设立的站。
3.2.9 观测单元 observation unit
快速静态定位测量时,参考站从开始至停止接收卫星信号连续观测的时间段。
3.2.10 GPS 静态定位测量 static GPS posioning
通过在多个测站上进行若干时段同步观测,确定测站之间相对位置的GPS 定位测量。
3.2.11 GPS 快速静态定位测量 rapid static positioning
利用快速整周期模糊度算法原理所进行的GPS 静态定位测量。
3.2.12 固定站 permanent tracking station
长期连续跟踪接收卫星信号的永久性地面观测站。
3.2.13 单基线解 single baseline solution
从m(m≥3)台GPS 接收机同步观测值中,由m~1 条独立基线构成观测方程,统一结算出m~1 条基线向量。
3.3 水准测量 leveling
应用水准测量技术测量地面沉降量。
3.3.1 地面沉降 land subsidence
因地层压密或变形而引起的地面标高降低。
3.3.2 结点 node
水准网中至少连接三条水准测线的水准点。
3.3.3 水准路线 leveling route
同级水准网中两相邻结点间的水准测线。
3.3.4 测段 leveling interval
两相邻水准点间的水准测线。
3.3.5 连测 inclusive leveling
将水准点或其它高程点包含于水准路线中的观测。
3.3.6 支测 branch leveling
自路线中任一水准点起,测至三角点、导线点水准测站。
3.3.7 接测 joint leveling
新设水准路线中任一点连接其他路线上水准点的观测。
3.3.8 检测 checking
检查已测高差的变化是否超过规定而进行的观测。
3.3.9 重测 re-leveling
因成果质量不合格而重新进行的观测。
3.3.10 复测 repeated leveling
每隔一定的时间对已测水准路线进行的测量。
3.3.11 基岩标 benchmark on bedrock
穿过松软岩层,埋在坚硬岩石(基岩)上的地面水准观测标志。
3.3.12 分层标 borehole extensometer
埋设在不同深度松软土层或含水砂层中的地面水准观测标志。
3.3.13 剖面线 cross-section route
沿地面沉降勘察地质剖面敷设的水准测量路线。
3.4 基岩标、分层标部件
3.4.1 保护管 protector tube
隔离周围土层摩阻与水动力、水化学环境及其动态变化,使引测标杆不受干扰的保护装置。
3.4.2 标杆 beacon pole
从完整基岩或被监测地层引伸至地面的引测装置。
3.4.3 扶正器 centralizer
安设在保护管与标杆间隙内,用以扶正标杆、增加其稳定性的导正装置。
3.4.4 标底 bottom pole
与基岩或被监测土层固成一体的底部标杆,是地层沉降信息向上传递的主要部件。
3.4.5 滑筒 sliding sleeve
安装在保护管底部,是控制保护管与标底相对滑动间距的装置。
3.4.6 主标头 master head
由标底引至地面的测点。基岩标的主标点是标组的高程测量的起算点,分层标的主标点是监测某一土层沉降量的测点。
3.4.7 副标头 assistant head
安装在保护管顶端,用以监测保护管沉降量的测点。
3.5 地面沉降监测 subsidence monitoring
一般是指在发生、发现地面沉降的地区内布设统一的区域性的地面沉降水准网、GPS网和地下水监测网。通过定期的重复观测,为研究和控制地面沉降提供准确、可靠的资料。
4 总则
4 总则
4.1 地面沉降监测的必要条件
开展地面沉降监测前必须收集、分析已有地面沉降监测成果和资料,根据监测要求和监测条件,采用适合的方法和技术。
4.2 地面沉降监测技术设计
地面沉降监测实施前,必须进行技术设计,以保证监测成果符合技术标准和有关部门的要求。
4.3 地面沉降监测的目的
4.3.1 查明和研究地面沉降区的水文地质工程地质条件,为进行地面沉降理论研究和灾害评价提供基础资料和数据;
4.3.2 对开采地下液态资源引发的地面沉降区进行重点监测,预测预报地面沉降的发展趋势,为政府部门控制或防治地面沉降,合理开发和利用地下资源提供规划和决策依据;
4.3.3 向全社会提供地面沉降监测的信息服务,为国家减轻地面沉降灾害提供技术支撑。
4.4 地面沉降监测的任务
4.4.1 在查明水文地质工程地质条件的基础上,对过量开采地下水或地下液态资源的广大区域和城市范围布设地下水监测网点,以浅层地下水(潜水-微承压水)及主要开采段的深层地下水(承压水)为重点,进行地下水动态监测;
4.4.2 在查明环境地质条件的基础上,在地面沉降严重区域布设监测网,通过定期的反复测量,观测地面沉降区沉降量的大小;
4.4.3 及时完成地下水监测数据和地面沉降监测数据的整理和入库工作;
4.4.4 通过对该区地下水水位变化、地面沉降量、水文地质工程地质条件的分析,查明该区地面沉降形成机理、成灾条件和发展趋势,为进一步防御和控制地面沉降提供必要的科学依据。
5 地面沉降现状调查
5 地面沉降现状调查
5.1 主要任务
5.1.1 了解地面沉降灾害区的地质背景(地层岩性、地质构造、水文地质、工程地质特征等);
5.1.2 查明或基本查明地面沉降灾害的分布范围、分布规律、危害程度;开展航片和卫片的地面沉降解译,实地验证航片、卫片的解译情况;
5.1.3 分析地面沉降灾害的影响因素(自然因素及人为因素)、形成条件及其成因机理。
5.2 调查范围
依据地质环境条件、地下液态资源开发利用现状和规划、地面沉降灾害发育程度以及社会经济发展重要程度等综合因素,确定地面沉降调查范围。
5.2.1 对发生过如井口抬升、桥洞净空减少、房屋开裂等地面沉降现象较集中的区域展开重点调查;
5.2.2 要根据工作的需要,适当地扩大到已知地面沉降范围以外的区域。
5.2.3 在有采矿活动、农田灌溉活动、大量抽汲地下水的地段,必须在现场通过访问、调查,查明是否曾经发生过地面沉降现象,并详细记录,标记在图上。
5.3 调查内容
5.3.1 地面沉降区地下水动态调查
调查与监测的内容包括地下水水位、水量资料;与地下水有密切联系的地表水体的观测资料;重点调查地下水水位下降漏斗的形成特点、分布范围、发展趋势及其对已有建筑物的影响。
5.3.2 建筑物破坏情况调查
首先查看地下水开采量强度大、地下水位降深幅度也大的地段的开采井泵房(地面、墙壁有无裂缝、井管较地面有无上升、房屋有无变形等),然后逐渐向四周扩展,查看地面建筑物有无损坏,并调查建筑物年限。
5.3.3 地下管道破裂调查
对供水管线应查看地面是否潮湿、冒水;冬季是否常年结冰;煤气管道破裂调查用感官嗅其气味是否正常,调查居民用气量是否充足。
5.3.4 雨季淹没调查
调查淹没损失、淹没设施名称、淹没面积、淹没水深,对比分析本次降水量大小及历史同等降水量淹没情况和相应的地面变形情况(有无阻水建筑物修建)。若在相同的降水、风力、风向及排水条件下出现洼地积水,河水越堤、海水淹没码头、工厂等,应属于地面沉降所致。
5.3.5 风暴潮调查
在发生过风暴潮的地区开展风暴潮的频率、潮位和经济损失调查,在有条件的地区开展经济损失评估;开展河堤、桥梁等的变化调查。
5.3.6 相关调查与资料分析
调查第四纪松散堆积物的岩性、厚度和埋藏条件, 收集和分析不同地区地下水埋藏深度和承压性,各含水层之间及其与地表水之间的水力联系资料。
5.3.7 地面沉降灾害和对环境的影响调查
采用现场踏勘和访问的方法,对建筑设施的变形、倾斜、裂缝的发生时间和发展过程及规模程度等详细记录,同时了解被破坏建筑设施附近水源井的分布、抽水量及地面沉降的情况。
5.3.8 调查记录
每次调查均应有详细记录。
5.4 资料收集与分析
在开展调查与监测的过程中应进行有关资料的收集,包括城市1:10000 或1:50000 比例尺交通图和地形图、沉降区水文地质工程地质勘查资料、水资源管理方面的资料、市政规划现状及远景资料、沉降区内国家水准网点资料、城市测量网点资料、井、泉点的历史记录及历史水准点资料、研究沉降区水文地质工程地质条件、历年水资源开采情况、已有的监测情况、地面沉降类型及沉降程度。分析地面沉降的原因、沉降机制,估算地面沉降的速率,划分出沉降范围及沉降中心,尽可能编制出地面沉降现状图。作为监测网点布设的原则依据。在资料相对缺乏的沉降区,可布置适当的调查与勘查工作量,以达到布设监测网络的要求为准则。
6 地面沉降监测网的布设
6.1 地面沉降水准监测网
6 地面沉降监测网的布设
地面沉降监测网络由地面沉降监测水准网、地面沉降监测GPS 监测网、地面沉降监测地下水位(水量)动态监测网组成,有条件时可利用InSAR 监测技术作为补充。
6.1 地面沉降水准监测网
6.1.1 一般规定
6.1.1.1 当发现某地区出现地面沉降时,应建立地面沉降监测水准网。通过定期地重复观测,为研究和控制地面沉降提供准确、可靠的系统资料。
6.1.1.2 各类标点测量的具体操作、仪器使用及仪器检验应符合GB 12897 国家一、二等水准测量规范及DZ/T 0154 地面沉降水准测量规范等规定。
6.1.2 水准网(点)布设原则与要求
6.1.2.1 采用从整体至局部,逐级水准测量的高程控制方法。
6.1.2.2 一等水准网(环线)布设在沉降漏斗外围区;二等水准网在一等水准网环线内布设。在地面沉降明显的漏斗区可选取剖面施测线,加密观测点。
6.1.2.3 根据监测区的水文地质、工程地质特征和年均沉降量的大小,将整个监测区划分成若干个不同的地面沉降结构单元,并按其不同单元设置高程基准标、地面沉降标和分层沉降标(组)。
6.1.2.4 地面沉降监测水准网的网形结构,可以是单个起算点的自由网,也可以是多个控制网的复合网。起算点应是基岩标,其高程一般从国家一等水准网点引测。水准网建成后应与已有的国家一、二等水准网接测,并绘制水准网结点接测图(参见附录C)
6.1.2.5 地面沉降标点的选布,采用测区平均布点与沉降漏斗区加密布点相结合的方法,由沉降漏斗外围区向中心区,布点密度逐渐加大。
6.1.2.6 在监测区内水准点布设密度应当满足监测工作的需要。普通沉降水准点布设密度和复测周期见表1。

6.1.2.7 地面沉降水准测量测线(在条件具备的情况下)可因标点(基岩标、分层标)的布设而确定长短。但原则上测线不宜过长, 一般平均线长8~12km。
6.1.2.8 地面沉降监测的精度,可根据需要和年均沉降量的大小、沉降区域的面积、复测周期长短,按DZ/T 1054 地面沉降水准测量的不同要求确定。
6.1.2.9 为消除或削弱地面沉降观测过程中水准点间的不均匀下沉所产生的影响,保证观测精度,采取以下措施:
a)尽量缩短水准环线或路线的长度。亦可用两架同级仪器代替往返测量,以缩短观测时间。
b)测量路线、测量季节及所使用的测量仪器应保持固定。
c)测量作业应从沉降量大的地区开始,依次向沉降量小的地区推进。当高等水准路线和低等水准路线在同一年施测时,宜同期进行。
d)在沉降量较大的地区,应在短时间内完成一个闭合环的测量,沉降水准网中的结点由几个小组协同作业时,应同时接测。
e)最佳测量时段应选择沉降量相对最小的时段,一次测完。
6.1.2.10 监测网络布设时,应尽量利用或靠近已有的国家水准点、城市高程网点、地下水动态监测点,以利于利用已有的资料或便于进行水准测量的联测。
6.1.2.11 各等水准测量路线应选设在坡度较小、土质坚实、施测方便的道路附近。尽量避免通过大河、沙滩、草地等地段。
6.1.2.12 地面水准测量点位应选在坚实稳固之处。基岩水准点不得位于活动断裂带上;
6.1.2.13 水准测量点不得选在下列地点:
a)即将进行建筑施工的位置或准备拆修的建筑物上;
b)地势低洼,易于积水淹没之处;
c)地质条件不良(如崩塌、滑坡、泥石流等)之处或地下管线之上;
d)附近有剧烈振动的地点;
e)位置隐蔽,通视条件不良不便于观测之处。
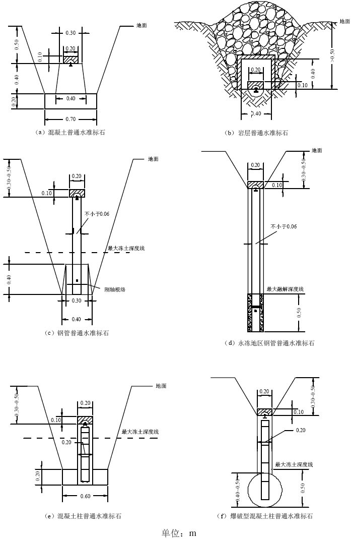
6.1.2.14 各等水准点均应埋设永久性标石或标志。标石或标志埋设应满足下列要求:
a)水准标石应埋设于表层土中,并选在便于长久保存和使用处;
b)稳固耐久,防腐蚀,抗侵蚀,并能保持垂直方向的稳定;
c)标石的底部应埋设于冻土层以下,并浇筑混凝土基础。
6.1.2.15 孔、标等使用的管材必须能满足保证稳定施测的要求:
a)标杆、孔管及各种保护套管必须采用防腐蚀、防弯曲、倾斜的材料;
b)密封装置、防渗过滤材料均需检验合格后方可使用;
c)各类标必须建立标房,且易于观测。
6.1.2.16 各等水准观测,必须等埋设的水准标石稳定后,方可进行施测。沉降监测点失效后,应及时重新设置。
6.1.2.17 监测过程中,应对监测网点现状进行定期调查,并注意人类工程—经济活动对其产生的影响。
6.1.2.18 各等水准点埋设标志结束后,应详细绘制点之记(参见附录B。图中水准标石类型符号按附录A 绘制),各种水准标石尽量埋设在机关、学校、住宅院内,并设立相应的指示牌,以便测量时寻找,并办好委托保管手续。
6.1.2.19 各种水准测量标石的选点和埋设,在符合上述条件下,按照DZ/T 0154 地面沉降水准测量规范要求埋设有关水准标石。
6.1.2.20 水准标石埋设后,一般须经过一个雨季, 冻土地区还须经过一个冻解期,岩层上埋设的标石须经过一个月,方可进行观测。
6.1.2.21 地面沉降水准测量必须由专业测量单位或经过严格培训的人员实施,水准测量仪器的使用和检测见GB 12897 国家一、二等水准测量规范、GB 12898 国家三、四等水准测量规范和DZ/T 0154 地面沉降水准测量规范。
6.1.3 基岩标的布设原则与要求
6.1.3.1 基岩标是研究地面垂直运动的主要依据,是地面沉降水准测量的基础。地面沉降严重区域的基岩标的数量不得少于两座,有条件时应增设。
6.1.3.2 基岩标的布设可选择在测区内或靠近测区的基岩露头上;对松散沉积物厚度较大的地区,基岩标的标底也可设置在主要地下水开采层之下的稳定地层中。
6.1.3.3 基岩标的位置选择要兼顾地质条件和水准网网形的结构,应会同地质人员尽可能的选在基岩露头,必要时进行地质钻探。
6.1.3.4 基岩标应根据地质条件设计成单层或多层保护管式的标志,须由地质单位撰写地质设计和钻探工程单位撰写钻探施工设计,两者协调统一批准后实施布设。
6.1.3.5 基岩标的主标杆顶部中央应嵌入一个铜质或不锈钢的金属水准标志,标志必须放正直、镶嵌牢固,保证标杆的垂直度。
6.1.4 分层标的布设原则与要求
6.1.4.1 分层标是研究地下不同深度土层和含水砂层沉降量变化的依据,分层标的组数与每组分层标的个数应根据地质条件和被抽取地下水的含水层深度来确定。
6.1.4.2 分层标组位置的选择,主要根据地质勘察的需要,分层标埋设的层次与个数也依据地质结构与监测需要而定。确定分层标组各标位置时,为了确保观测质量应布成扇形,各标等距分布在圆弧上,圆心为测站位置,半径R 可在4~10m 之间因地制宜选择。
6.1.4.3 分层标水准测量的金属标志的设计与安装参见附录D 和附录E。
6.1.4.4 基岩标和分层标埋设后,其外部须建造一定规模的坚固房屋。
6.1.4.5 基岩标、分层标埋设后一般经过联测稳定后,方可进行观测。
6.2 地面沉降gps监测网
6.2 地面沉降GPS 监测网
6.2.1 一般规定
6.2.1.1 利用GPS 技术测量地面沉降必须建立测量控制网。通过定期地重复观测,为研究和控制地面沉降提供准确、可靠的资料。
6.2.1.2 GPS 网布设原则及GPS 测量应符合上述规定。采用的各类参数、仪器及操作程度应符合GB/T 18314 全球定位系统(GPS)测量规范。
6.2.2 GPS 测量级别
根据地面沉降的严重程度,选择用于地面沉降监测GPS 测量级别。按照GB/T 18314 全球定位系统(GPS)测量规范中B 级网或优于B 级网的要求执行。
6.2.3 GPS 网技术设计的基本要求
按GB/T 18314 全球定位系统(GPS)测量规范的相关规定执行。
6.2.4 GPS 网布设原则与要求
6.2.4.1 GPS 网的布设应视目的、要求精度、卫星状况、接收机类型和数量、测区已有的资料、测区地形和交通状况以及作业效率综合考虑,按照优化设计原则进行。
6.2.4.2 B 级GPS 网应布设成连续网,除边缘点外,每点的连接点数应不少于三点。优于B级GPS 网的布设可为多边形或复合路线。
6.2.4.3 各级GPS 网中,最简独立闭合环或复合路线的边数应小于等于6。
6.2.4.4 B级GPS网相邻点间平均距离等于70km, 优于B级网的相邻点间平均距离应根据实际情况适当缩短。相邻点最小距离可为平均距离的1/3~1/2;最大距离可为平均距离的2~3 倍。
6.2.4.5 B 级GPS 网点应与GPS 永久性跟踪站联测。其联测的站数不得少于2 站。
6.2.4.6 B 级GPS 网,应尽量与周围的GPS 地壳形变监测网、基本验潮站联测。
6.2.4.7 B级GPS 网点宜与参加过全国天文大地网整体平差的三角点、导线点和一、二等水准点并置或重合。
6.2.4.8 新布设的GPS 网应与附近已有的国家高等级GPS点进行联测。联测点数不得少于2 点。
6.2.4.9 B级GPS 网,在高程剧烈变化的地区,其点间距离不宜超过100km;在地壳断裂带或地震频发地区,其点间距离应适当缩短。
6.2.4.10 为确定GPS 点在某一参考坐标系中的坐标,应与该参考坐标系中的原有控制点联测。联测的总点数不得少于3 个。
6.2.4.11 为求得GPS 网点的正常高程,应根据需要适当进行高程联测。B 级网至少每隔2~3 点,优于B 级网的测量可依具体情况适当增加联测高程的点数,一般每隔3~6 点联测一个高程点。
6.2.4.12 B 级GPS 点的高程联测,应按GB 12898 国家三等水准或与其精度相当的方法进行;
优于B 级GPS 点的按GB 12898 国家四等水准或与其精度相当的方法进行高程联测。
6.2.4.13 GPS 快速静态定位网的布设,除满足上述规定外,还应满足下列要求:
a)相邻点的距离大于20km 时,应采用GPS 静态定位法施测;
b)当网中相邻点间距离小于该级别所要求的相邻点间最小距离时,两相邻点必须直接进行同步观测;
c)对于双参考站作业方式,不同观测单元的基准基线宜相互联结,以构成整个网的骨架;
6.2.4.14 技术设计应上交的资料
a)野外踏勘技术总结;
b)测量任务书与专业设计书(附技术设计图)。
6.2.5 选点原则
6.2.5.1 选点人员在实地选点前,应收集有关布网任务与测区的资料。包括测区1∶50000 或更大比例尺地形图,已有各类控制点、卫星跟踪站的资料等。
6.2.5.2 选点人员应充分了解和研究测区情况,特别是交通、通讯、供电、气象和大地点等情况。
6.2.5.3 点位基本要求应符合GB/T 18314 全球定位系统(GPS)测量规范的相关规定。
6.2.5.4 选点人员按照技术设计书经过踏勘。在实地按选点基本要求选定点位,并在实地加以标定。不论是新选定的点或利用旧点,均应实地绘制点之记,参见附录F。其内容要求在现场详细记录,不得追记;一个网区选点完成后,应绘制GPS 网选点图。
6.2.5.5 选点结束后应上交的资料
a)用黑墨水填写的道林纸点之记,环视图,参见附录F。
b)选点图,参见附录F。
c)选点工作总结。
6.2.6 埋石
6.2.6.1 GPS 点的标石类型包括基岩天线墩、岩层天线墩、基岩标石、岩层普通标石、土层天线墩、普通基本标石、冻土基本标石、普通标石和建筑物上的标石等,参见附录E。
6.2.6.2 各种类型的标石应设有中心标志。基岩和基本标石的中心标志应用铜或不锈钢制作。
普通标石的中心标志可用铁或坚硬的复合材料制作。标石中心应该有清晰的十字线或直径小于0.5mm 的中心点。在标石表面制有“GPS”及施测单位名称。GPS 标石规格参见附录G。
6.2.6.3 埋设天线墩、基岩标石、基本标石时,应现场浇灌混凝土。普通标石可预先制作,然后运往各点埋设;
6.2.6.4 埋设标石,须使各层标志中心严格在同一铅垂线上,其偏差不得大于2mm。强制对中装置的对中精度不得大于1mm;
6.2.6.5 标石埋设后,至少需经过一个雨季,冻土地区至少需经过一个冻结期,基岩或岩层标石至少需经一个月后,方可用于观测。
6.2.6.6 GPS 标石的标准可按GB/T 18314 全球定位系统(GPS)测量规范和CJJ 73 全球定位系统城市测量技术规程并参照附录G 执行。
6.2.7 监测仪器选择与观测过程
用于地面沉降监测仪器的选择和观测过程,按照GB/T 18314 全球定位系统(GPS)测量规范进行。仪器的选择,尽量保证在统一的情况下,采用相同的测量仪器。
6.3 地面沉降地下水位(水量)动态监测网
6.3 地面沉降地下水位(水量)动态监测网
6.3.1 一般规定
6.3.1.1 地下水位(水量)动态监测网是为地面沉降监测和研究而专门布设的网络。在基本查明监测区水文地质条件的基础上,在沉降区内不同程度开采利用地下水的范围内布设监测网点,对地下水或主要开采层进行地下水位(水量)动态长期监测。
6.3.1.2 地下水位(水量)动态监测项目主要技术要求应符合本节和DZ/T 0133 地下水动态监测规程的有关规定。
6.3.1.3 地下水位(水量)动态监测网应与沉降整体监测网络相协调。
6.3.2 布设原则与要求
6.3.2.1 监测网点尽可能利用监测区内已有的地下水监测孔。或作适当调整,或根据具体情况增建新的监测网点。
6.3.2.2 监测网(点)布设应以平行地下水流向为主,垂直地下水流向为辅;监测点(线)布设以能控制地下水补给、径流、排泄特征为原则。地下水降落漏斗区与地面沉降中心相符或基本相符时,以穿过漏斗中心的十字形布设监测点线。其长度应超过漏斗范围;当两者不相符时,监测网点的布置既要考虑地下水位降落漏斗,又要考虑沉降中心。
6.3.2.3 在地下水水位变化大的地段或上层滞水地段应布设地下水动态监测点;当有多层含水层时,必须分层设置监测孔,对每层的水位、孔隙水压力及其相互之间的水力联系进行监测。
6.3.2.4 分层监测孔应尽可能与分层沉降标孔对应观测。
6.3.2.5 监测点的密度或间距,根据地下水降落漏斗的特征、地面沉降现状及监测需要而定。
6.3.2.6 监测点位选定后,必须定名、编号,测定高程,标记在地形图上。
6.3.2.7 监测井、孔应及时清淤,以维持正常监测。易被堵塞的钻孔,可在钻孔中安装过滤器进行监测。
6.3.2.8 在开展监测工作的同时,应搜集监测区内水文、气象等资料,如降雨量、蒸发量、地表水水位、水量及其与地下水的补、排关系。
6.4 地面沉降insar监测
6.4 地面沉降InSAR 监测
应用InSAR 监测地面沉降对数据要求严格。所选数据参数应符合解译的标准.尽量选择在大气条件晴好、植被较少的时段获取的数据,以减少误差。解译所得的沉降信息还必须与由其它方法得到的沉降信息对比,并进行实地踏勘。
7 地面沉降监测的内容及要求
7.1 监测内容
7 地面沉降监测的内容及要求
7.1 监测内容
7.1.1 追踪监测
地面沉降现象发生地区设施变形破坏情况的追踪监测,如标高损失造成的海水倒灌、港口及堤防工程失效、测绘标志失效、桥梁和库房净空减少、汛期排泄不畅造成积水、内涝;不均匀下沉造成道路和房屋开裂变形、各种井管上升、倾斜、损坏等。
7.1.2 专项监测
各监测网的专项监测包括地面沉降或回弹量测定,地下水水位、水量的动态变化等;
7.1.3 分层监测
水准测量和应用GPS 测量监测地面沉降量的大小,分层监测含水系统各主要层位的沉降量和孔隙水压力变化量。
7.2 水准网的监测要求
7.2 水准网的监测要求
7.2.1 水准测量高程系统选择与起算基点选定要求
7.2.1.1 监测网的高程采用正常高系统。按照国家1985 国家高程基准起算,青岛原点高程为72.260m。
7.2.1.2 在监测区内可以选定一个稳定的国家水准点,作为监测网的起算基点。当监测网与国家水准网联测精度达不到要求,或监测区尚不能与国家高程网直接联测时,必须建立基岩水准点,采用局部的独立高程,作为监测网相对高程起算基点、各土层变形监测相对测量基准点和地下水位高程起算基点,以减少传递误差。
7.2.1.3 选用基岩水准点作为起算基点时,必须对基岩水准点进行稳定性评价,经验收合格后,方可选定使用。
7.2.2 水准测量必要条件
地面沉降水准测量前必须进行水准测量技术设计,在技术设计前收集有关水准测量的资料,水准测量的技术设计注意事项见DZ/T 0154 地面沉降水准测量规范。
7.2.3 水准测量技术设计要求
在技术设计过程中设计地面沉降水准测量路线图和有关图件,确定水准网,水准路线和剖面线,选定经过的基岩标和分层标,并在图上标明,编写技术说明书,技术说明书的注意事项见DZ/T 0154 地面沉降水准测量规范。
7.2.4 水准测量技术设计实施
技术设计完成后,须经审定批准方可实施。
7.2.5 各等级水准测量技术规格
7.2.5.1 各等级水准测量所算得的以测段往返测高差不符值计算每公里水准测量高差中数的偶然中误差M△不得超过表2 规定的数值。以及按环闭合差计算每公里水准测量高差中数的全中误差Mω,不得超过表2 规定的数值。

式中:
n——测段数;
△——测段往返闭合差(特等为二次往返测高差中数之差),以mm 计;
S——测段长度,以km 计;
ω——水准环线闭合差,以mm 计;
F——水准环线周长,以km 计;
N——水准环数。

7.2.5.2 地面沉降量与水准测量误差(相对于基岩标)应满足下列公式:

式中:
S——某沉降年度内的沉降量,以mm 计;
Mω——某等级水准测量每公里全中误差,以mm 计;
L——基岩标至最远水准点的距离,以km 计。
如果S 小于不等式右边,则可根据需要,适当延长地面沉降测量的复测时间或提高测量等级。
7.2.5.3 往返测高差不符值、环线闭合差的限差如表3。

7.2.5.4 当因地面沉降原因,引起测段往返闭合差超限时,可按下式对闭合差进行改正,以满足限差要求。

式中:
ω——改正后的测段往返闭合差;
ω测——测段往返测闭合差(观测值);
Δh 地——水准路线往返测期间的地面沉降变量;
h返(基—地) ——水准路线返测时所测的基岩标(或深式分层标组之最深标)与地面标之差值;
h往(基—地) ——水准路线往测时所测的基岩标(或深式分层标组之最深标)与地面标之差值;
静点:一般指基岩标(或深式分层标组之最深标);
动点:一般指普通水准点。
若按本条的计算公式改正后的往返闭合差符合限差,则原观测往返高差值可采用;若仍超过限差,则本测段需重测。
7.2.5.5 地面沉降水准测量使用的水准仪应不低于表4 的要求。

7.2.6 基岩标测量要求
7.2.6.1 基岩标的设立
在有基岩露头的地方,可由地质、测绘等方面的专家会同野外踏勘、研究后,将标志直接埋设于基岩露头上。若无基岩露头时,则必须用钻探的手段穿过上覆地层将钢管钻入基岩后,使之固定而设标。
7.2.6.2 基岩标之间的联测
必须采用特等水准,即采用单路线二次往返观测(选用二台仪器同时对向往返观测),也可采用双转点法(双路线)一次往返观测进行。
7.2.7 分层标(组)测量要求
7.2.7.1 分层标根据地质勘察的需要,或埋设在地面沉降漏斗中心,或漏斗边缘或两个漏斗的结合部,或埋设于需要监测的土层变化的部位。一组分层标由埋设于土层不同层位(或深度)的多个标桩构成。用以测量各土层、含水层的压缩量与膨胀量。
7.2.7.2 在分层标(组)设置处,当基岩埋深较小时,应同时增设基岩标,以直接测定分层标各标桩的变化。
7.2.7.3 分层标相对升降观测。是以本组标桩中埋设最深的一个标,或基岩标为主标(固定点),测定各分层标与主标之间的高差。
7.2.7.4 分层标相对升降量计算是主标与各分层标之间两次观测高差之差。一般计算至0.01mm。
7.2.7.5 分层标相对升降观测必须测定两测回。测回间须变动仪器高度,变动量不少于3cm。
7.2.7.6 分层标与主标的本次高差减去前次高差而得的高差变量,称为本次相对升降量。正值为分层标上升,负值为分层标下沉。一般计算至0.01mm。
同一分层标的每一次变量,自指定开始日起累加,得本分层标累计相对变量。一般计算至0.01mm。根据同一分层标组不同深度的分层标本次变量之差,可计算两次相关层次的压缩或膨胀变量。
7.2.7.7 分层标相对升降观测的频率。可定为每月一次,全年观测周而复始。也可在认为需要的时期加密观测,其间隔可根据变量大小、升降速率而定。
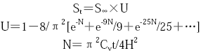
7.2.7.8 根据分层标相对升降观测所得的各标桩的累计升降变量,可以时间(t)为横轴,升降变量(s)为纵轴,绘制各标桩的s-t 曲线图。
7.2.7.9 分层标相对升降观测的实测精度评估。取两测回高差不符值△按下式进行评估:

式中:
△——两测回高差不符值(以组为单位);
n——取样个数。
7.2.8 普通地面沉降标点测量要求
水准网中各水准点作为沉降点的加密,则可在高一等水准的控制下,采用一、二等水准。
7.3 gps网的监测要求
7.3 GPS 网的监测要求
7.3.1 GPS 接收机在开始观测前,应进行预热和静置。具体要求按接收机操作手册进行;
7.3.2 GPS 定位测量时,观察数据文件名中应包含:测站名和测站号,观测单元、测站类型(是参考站,还是流动站)、日期、时段号等信息,具体命名方法采用GPS 定位软件而定。
7.3.3 各级GPS 测量的基本技术规定和测量要求见GB/T 18314 全球定位系统(GPS)测量规范。
7.4 地下水动态监测网的监测要求
7.4 地下水动态监测网的监测要求
7.4.1 地下水位、水量监测
7.4.1.1 对地下水水位、水量的监测按照DZ/T 0133 地下水动态监测规程的有关规定执行。
7.4.1.2 通过水位、水量的监测成果重点搞清地下水水位下降漏斗的形成特点及分布范围、发展趋势及其对已有建筑物的影响。
7.4.2 孔隙水压力监测
7.4.2.1 在地下水位升降过程中,通过仪器对孔隙水压力进行监测。据此研究粘性土层的孔隙水压力变化与地面形变的规律,为研究地面沉降机理及预测沉降趋势提供基础数据。
7.4.2.2 采用孔隙水压力仪进行监测时,一般采用单管敞开式孔隙水压力仪。
7.4.2.3 大于10m 的厚层粘性土层中,可采用多层水头监测井测压计。
7.4.2.4 监测频率及要求,与地下水位监测相同。
7.4.2.5 采用孔压静力触探仪进行土层不同深度的孔隙压力消散试验时,应充分考虑仪器的量程、精度和灵敏度。孔压探头滤水器位置的选择可参照表5。
7.4.2.6 孔隙压力消散试验的技术要求见SL-237-019-1999 孔隙水压力消散试验.

7.5 土体样品实验分析
7.5 土体样品实验分析
7.5.1 基本要求
在地面沉降区如有必要须进行物探、钻探等工程,进行物探、钻探等工作过程中,应按照有关规范、规程、规定的技术要求和上述各项工作设计的要求,采取土体样品(含原状样和扰动样)。对于每一个采样井、孔、槽、坑,宜进行多种测试项目。以获得必要的参数。
7.5.2 土体物理—力学性质试样的布置
一般在钻孔中分层进行采样,以了解每个工程地质单元的物理-力学性质指标,应根据各单元的重要性及其均匀性确定每个层位的取样数量。
7.5.3 土体样品的工程地质试验
7.5.3.1 土体样品物理-力学性质试验的常规项目有:粒度成分、土粒密度、天然密度、天然含水率、饱和度、压缩系数、变形模量、抗剪强度、渗透系数等;
7.5.3.2 粘性土应增测塑性指标(塑限、液限、计算塑性指数、液性指数和含水比),无侧压抗压强度和灵敏度;
7.5.3.3 砂性土应增测最大密度、最小干密度、颗粒不均匀系数、相对密度等。并判别其震动液化的可能性;
7.5.3.4 黄土应增测湿陷系数,相对湿陷量和湿陷起始压力等;
7.5.3.5 胀缩土(膨胀土)应增测胀缩性指标及其它判别性指标;
7.5.3.6 冻土应增测起始冻胀含水率、相对含水率、冻胀力、冻胀率、冻胀量等;
7.5.3.7 按设计书中要求的其它测试项目;
7.5.3.8 地面沉降土体专门性试验参见附录I。
8 外业成果的纪录与整理计算
8.1 地面沉降水准网
8 外业成果的纪录与整理计算
8.1 地面沉降水准网
8.1.1 外业成果记录
外业成果记录可采用手工记录或电子记录,优先采用电子记录。
8.1.2 数据使用
计算所用的外业手薄及起算数据,均应经检验核对无误后方可使用。当使用电子记录薄时,打印输出的主要项目应与手记相同,存贮在记录薄器内的各项限差应打印在记录中。
8.1.3 数据处理
地面沉降水准网应该有稳定的控制点。控制点的个数可以是一个(自由网),也可以是几个(复合网)。根据正确、迅速、及时处理野外采样数据,求得最后结果的原则,按最小二乘法原理,采用条件观测平差或间接观测平差。平差计算必须在概算的基础上进行。
在地面沉降水准测量的初期,控制点的分布和稳定性尚不够理想时,可以采用拟稳平差进行数据处理。
8.1.4 沉降量计算
参照DZ/T 0154 地面沉降水准测量规范中的有关规定执行。
8.1.5 地面水准网的改算
地面沉降水准网起算点数量、起算点、起算数据、数据采集与数据处理方的变动时,为了保持形变量的连续性与可比性,变动前、后的模式必须一致。当两者不一致时,其中一项必须按统一的模式进行改算。改算后各点的每次变形量与变形累计量都必须按新值计算,并在相应的成果表内注记说明。
8.1.6 其它
其它未及事项参照DZ/T 0154 地面沉降水准测量规范进行。
8.2 gps监测网
8.2 GPS 监测网
8.2.1 外业成果记录
8.2.1.1 记录类型
GPS测量作业所获得的成果记录应包括以下三类:
a)观测记录(磁盘、光盘或磁带存储);
b)测量手簿;
c)其它记录,主要有观测计划、偏心观测资料等。
8.2.1.2 观测记录项目主要有:
a)载波相位观测值、C/A 码伪距和P(Y)码伪距等;
b)对应观测值的GPS 时间;
c)GPS 卫星星历参数;
d)测站和接收机初始信息:测站名、测站号、观测单元号、参考站和流动站、时段号、近似坐标及高程、天线及接收机编号、天线高、观测日期、采样间隔、卫星截止高度角。
8.2.2 数据处理
8.2.2.1 基线向量解算
优于B 级GPS 网基线解算及B级GPS 网基线预处理,可采用随接收机配备的商用软件。
B级GPS 网基线精处理,须采用专门的软件,计算结果中应包括相对定位坐标和协方差阵等平差所需的元素。
8.2.2.2 解算方案
a)据外业施测的精度要求和实际情况、软件的功能和精度,可采用多基线解和单基线解;
b)个同步观测图形只能选定一个起算点;
c)速静态定位测量。以观测单元为单位,制定解算方案。
8.3 地下水动态监测网
8.3 地下水动态监测网
应用于监测地面沉降的地下水动态监测外业成果和数据计算按照DZ/T 0133 地下水动态监测规范执行。
8.4 数据的统计整理
8.4 数据的统计整理
8.4.1 目的
将地面沉降监测工作中获得的大量的分散性的数据资料,进行归类整理。发现地面沉降的特征及规律,提出具有工程意义的特征值,为地面沉降计算(参见附录J)、预测预报提供可靠的数据,为控制地面沉降对策提供依据。
8.4.2 划分统计单元体
按地貌单元、地层层位、成因类型、岩土沉积年代及水文地质、工程地质特征进行含水岩组(层)划分,并进行工程地质分层。
8.4.3 编制统计图表
将同一单元体的监测数据分类编制统计表(参见附录H);当统计的数据较多时,可进行分区(段)统计,即将各项指标的变化范围分成间隔相等的若干区(段),编制区(段)频数统计表;必要时,可绘制频数或频率直方图。
8.4.4 异常数据的舍弃
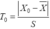
对同一单元体的各项数据应进行检查,其数据应基本接近。对某些有明显错误或监测方法存在问题的数据,应抽出复查或将其舍弃。异常数据的舍弃可用3 倍标准差方法或用Grubbs 准则来判别。计算式如下:

式中:
X0——可能舍弃的数据;
X——平均值;
S——标准差。
当计算的T0 值大于表7 中的T 值时,X0 这个数据必须舍弃。此过程可重复,直到数据无可舍弃为止。

9 地面沉降趋势预测评价
9.1 预测评价目的和任务
9 地面沉降趋势预测评价
9.1 预测评价目的和任务
9.1.1 预测评价目的
对与人类工程—经济活动有关的地面沉降的发展趋势进行工程地质预测评价;为经济、合理的防御和避让措施提供设计依据。
9.1.2 预测评价任务
通过正确的、合理的、有根据的地面沉降趋势预测评价,得出关于地面沉降可能的危害性(或威胁性)和危险性的结论,供有关部门及当地政府和群众参考使用。
9.2 预测评价依据
9.2 预测评价依据
地面沉降的预测评价应当依据调查和监测取得的数据及成果。
9.3 预测评价方法
9.3 预测评价方法
根据研究程度常用的评价方法有以下三种,实际工作中可根据具体情况确定。
9.3.1 演变(成因)历史分析法
即应用岩土体变形破坏的机理及基本规律,通过地面调查研究,追溯其演变的全过程,对其稳定性变化的总趋势和区域性特征进行评价和预测。
9.3.2 工程地质类比法
把已有的地面沉降区的研究(或评价)经验、成果直接应用到地质、水文地质工程地质条件及影响(因素)与之相似的新的研究区。
9.3.2.1 工程地质类比法的原则和条件
类比的原则就是相似性。它主要包括:地层岩性、岩土体结构、水文工程地质结构类型。
只有在主要类比内容具有相似性的前提条件下,才能进行工程地质类比。
9.3.2.2 工程地质类比的主要内容
a)地面沉降区(段)工程地质条件及水文地质条件;
b)地面变形破坏类型及其发展趋势;
c)地面沉降防御工程措施。
9.3.3 地面沉降数学模型预测法
地面沉降数学模型为地下水流运动模型与土层压密模型两者的耦合模型。
9.3.3.1 水文地质工程地质条件概念模型
地面沉降地区,一般水文地质、工程地质条件比较复杂,水平方向及垂直方向上岩性、岩相、厚度等变化较大。为建立模型,必须将这些复杂的条件进行概化,划分出若干含水层、隔水层、工程地质层及压缩层等,以便进行资料统计、整理、分析等。
9.3.3.2 边界条件概化
对于边界条件很复杂沉降区,为建模型的需要,可根据当地具体条件对边界条件进行概化和假设。
9.3.3.3 地面沉降数学模型的建立
在现阶段,地下水流运动模型,采用拟三维运动模型;地层压密模型,采用太沙基一维固结模型。因此,地面沉降数学模型是拟三维地下水流模型及垂直一维压缩模型的耦合模型。
9.3.3.4 数据处理
进行地面沉降预测,在资料整理过程中应借助于数据库系统对各类资料进行筛选、分析和统计,以得到正确可靠的数据,保证预测的精度。
9.3.3.5 地面沉降数学模型的检验
主要应进行地下水位模拟、地下水流场模拟、分层标观测值模拟、地面沉降趋势模拟等的检验。
9.3.3.6 地面沉降预测与地下水开采方案选择
根据预测区地质、水文地质及工程地质条件、地下水开采现状以及管理决策部门对地下水的需求,可制订几套预测方案;然后运用地面沉降预测模型进行分析比较,选择其中优秀的方案,以求达到在最小的地面沉降量条件下,抽取最大可能的地下水开采量。
9.4 地面沉降预测预报原则
9.4 地面沉降预测预报原则
9.4.1 预测预报的目的和任务
结合水资源评价和开发利用规则,预测发生地面沉降的可能性;对可能发生地面沉降的层位作初步分析和划分;估算可能产生的地面沉降量;提出预防和控制地面沉降的措施。
9.4.2 预测预报应具备的资料
预测的地区是尚未开发的地区,其资料相对较少。至少应具备以下几方面的资料:
9.4.2.1 监测区的地质、水文地质、工程地质条件资料,包括地质时代、成因类型、工程地质分层及含水层组的划分,且至少有1~2 个孔;
9.4.2.2 室内外试验资料:抽水试验资料、压密试验、渗透试验、前期固结压力试验、反复加卸荷试验等方面的资料;
9.4.2.3 开发规划方面的资料:开发规划面积、使用年限、年最大用水量、水位最终降深值及年下降速率等。
9.4.3 预测成果
尚未产生地面沉降的地区,应预测地下水位在一定降深条件下的地面总沉降量及沉降历时曲线;已产生地面沉降的地区,预测成果应提出预测区域内,各预测方案的历年地面沉降量等值线图、相应的地下水位等值线图、重点地段沉降量历时曲线图等。
10 地面沉降区地裂缝长期监测
10.1 监测任务
10 地面沉降区地裂缝长期监测
10.1 监测任务
为了分析和掌握地面沉降变化动态及其发展趋势,应对地面沉降引起的地裂缝进行长期系统的连续监测,具体包括:
a)地裂缝两盘位移(水平及垂直位移量)监测;
b)地裂缝带沿走向延伸增长及向深处发展加深监测;
c)地裂缝带地面变形(隆起、下沉、岩土体位移、扭错及新生裂缝)监测;
d)地裂缝带地面建筑物及构筑物的变形破坏监测;
e)地裂缝区地下水动态监测。
10.2 监测方法
10.2 监测方法
一般对地裂缝(带)常采用三种监测方法。
10.2.1 简易监测
在裂缝两侧或一侧(指具明显位移或下错的一盘)地表打入木桩(或埋入水泥桩),定时监测桩(用钢尺)的垂直及水平位移变化值;
10.2.2 精密监测
建立监测网(站),用精密仪器(即经纬仪和水平仪)进行三维位移监测。通过一定时间的监测,可以从空间上掌握地裂缝(带)各监测点的位移变化规律。
10.2.3 裂缝深处变化监测
除了上述地表监测项目外,根据当地具体地质条件和设计的需要,且具备一定监测条件时,可通过浅井或探槽进行裂缝深处变化监测。
10.3 监测要求
10.3 监测要求
10.3.1 一般要求
10.3.1.1 在地裂缝带、地面变形明显地段、地面建筑物变形破坏严重地段及地下水动态变化显著地段(含人为活动强烈地段)设立固定的长期监测点(网);
10.3.1.2 对地裂缝(带)全部监测点的三维位移量均要定时进行监测。及时掌握地裂缝在平面上和剖面上的变化规律。
10.3.2 特殊要求
10.3.2.1 凡遇张开宽度大于1cm 的地面裂缝,应采用探槽或探井(浅井)追踪,仔细观察裂缝两壁的粗糙、光滑及扭错情况,判断其力学性质(张性、压性、张扭性或压扭性)。
10.3.2.2 地下水动态监测项目应包括水位、水量(含泉水流量)内容。一般,每5~10 天测一次。逢雨季或其它特殊情况,应酌情加密观测。地下水动态持续观测时间,一般不少于一个水文年。以利于查明其水文年变化规律。具体见DZ/T 0133 地下水动态监测规程。
11 资料整理与成果编制
11.1 一般要求
11 资料整理与成果编制
11.1 一般要求
11.1.1 对所有的室内和野外资料都要进行综合整理分析,特别要加强对以下资料的研究:
a)长期连续的(地面沉降及地下水等)动态监测资料的整理与分析;
b)遥感、物探、钻探与地面调查资料的综合、对比与分析;
c)疑难问题(如构造问题、地面沉降成因等)的清理与分析。
11.1.2 对各种原始资料应分类整理、编目、存档。
11.1.3 在整理资料过程中,应及时编制各种图件(含附图、插图等)和表格,并为建立地面沉降数据库做好准备。
11.1.4 不能随意简化数据、取舍参数。
11.2 建立地面沉降监测资料数据库
11.2 建立地面沉降监测资料数据库
11.2.1 目的和任务
将获得的各类地面沉降监测资料,按通用标准文件档案格式进行系统整理后建立数据库,为地面沉降的监测、沉降规律及机理研究、沉降量计算和预测预报等方面提供服务。
11.2.2 数据库实体
11.2.2.1 地质背景资料库
a)监测区自然地理概况:行政区划、经济建设概况、地形地貌、地表水系(诸如河流名称、长度、流域面积、发源地、径流量、入河口等)、气象(温度、湿度、降水量、蒸发量等)。
b)地质环境:活动断裂、地层等。
c)含水组划分:顶底板标高、岩性特征、水量、水化学类型、渗透性等。
d)工程地质分层:顶底板标高、岩性特征、主要物理力学性质指标等。
11.2.2.2 地质勘探资料库
各类钻孔的位置坐标、孔口标高、取样位置、地层岩性(岩性描述、层厚、每层顶底板埋深及标高),物探、化探、遥感等方面的资料。
11.2.2.3 水文地质数据库
地下水开采量资料,包括开采井点的位置、开采层次、月开采量、季开采量、年开采量等;地下水位资料,包括观测点位置、观测层位、观测深度、水位变幅、观测时间、水位高程等;抽水试验资料,包括试段起始位置、试验层数、水位降深、渗透系数、导水系数、抽水试验井位置、抽水时间、抽水延续时间、恢复时间等。
11.2.2.4 土工试验资料库
取样深度、土样定名、常规试验资料(含水量、容重、比重、孔隙比、液塑限等)、固结试验资料(压缩系数、体积压缩系数、前期固结压力、压缩指数、固结系数、回弹系数、体积回弹系数等)、反复加卸荷试验资料等。
11.2.2.5 水准测量资料库
水准网点技术设计,基岩标名称、编号、位置、高程,分层标名称、编号、位置,普通水准点名称、编号、位置,测量时间,路线长度,野外测量记录(电子记录薄),历次测量水准点高程及室内成果整理等。
11.2.2.6 分层标(组)监测资料库
包括分层标位置、深度、分层标序号、观测数据;长观孔序号、观测层位、观测数据;孔隙水测点序号、深度、观测数据等资料。
11.2.2.7 GPS 监测资料库
GPS网技术设计,GPS 点的位置,GPS 点的测量野外记录,历次GPS 测量解算的高程及室内成果整理等。
11.2.2.8 地面沉降灾害资料库
井管上升,雨后积水,房屋开裂,对道路、桥梁、河堤、海堤等市政设施的影响,对农业的影响、对风暴潮灾害的加剧作用,直接、间接经济损失统计。
11.2.3 数据库功能
11.2.3.1 查询检索功能:可查询检索任意监测点有关方面的资料数据。
11.2.3.2 综合统计功能:任意监测点监测数据的月平均、年平均、年最大值、年最小值、年变幅等;各含水层基本情况、水化学、水文地质参数等指标;各工程地质层基本情况及主要物理力学性质指标统计值等。
11.2.3.3 计算分析能力:水准网的平差计算、监测区的年沉降速率、沉降面积与沉降体积计算、各含水层组别、井属系统开采量统计。
11.2.3.4 报表和图形输出功能:水位、水量、沉降量的综合年报表、水位动态曲线、地下水位下降漏斗图、沉降变化曲线、历年沉降量等值线图、沉降立体透视图、水文地质工程地质剖面图、各含水组砂层及粘性土层厚度等值线图等。
11.2.3.5 数据信息的增加、修改及删除功能。
11.3 编写报告要求
11.3 编写报告要求
11.3.1 地面沉降地面调查及其它野外勘查工作(如物探、钻探),水准测量、GPS 测量和地下水动态监测结束,应及时组织编写正式报告,报告的内容的要求参见附录K。
11.3.2 一般要求在野外勘查工作结束后6 个月内,提交报告(送审稿)。并按有关规定,上报主管部门。
11.3.3 地面沉降调查与监测报告应充分地反映当前的研究水平和研究程度。并满足上级部门对开展地面沉降调查与监测的有关要求;
11.3.4 在结果野外工作之后编写报告之前,必须对所有的原始资料和图件、表格进行全面的审查验收;
11.3.5 报告应紧密地结合实际、解决问题、突出重点、便于操作。
附录A水准标石类型符号表
附录A
(规范性附录)
水准标石类型符号表

附录B一等水准点之记
附录B
(资料性附录)
一等水准点之记

附录C水准网结点接测图
附录C
(资料性附录)
水准网结点接测图

附录D水准标志图
附录D
(资料性附录)
水准标志图
水准标志的圆球部应采用铜或不锈钢材料制作,圆盘和根络可用普通钢材。钢管标石水准标志的圆盘直径,依照采用钢管的直径和壁厚决定。

单位:mm
附录E水准标石类型图
附录E
(资料性附录)
水准标石类型图

图E-1 基岩水准标石

图E-2 基本水准标石

图E-3 普通水准标石

图E-4 墙脚水准标志
附录FGps测量野外基本情况记录
附录F
(资料性附录)
GPS 测量野外基本情况记录
表F-1 GPS 点之记



图F-1 GPS 点环视图

图F-2 GPS 网选点图
附录G标石类型图
附录G
(资料性附录)
标石类型图


附录H监测成果统计表
附录H
(资料性附录)
监测成果统计表
××市××××年地下水位监测成果统计表 表H1

××市××××年地面沉降监测成果统计表 表H2

附录I地面沉降土体专门性试验
附录I
(资料性附录)
地面沉降土体专门性试验
I.1 土的渗透性试验
各类土的渗透系数的取值,应进行渗透试验获得,并应与野外抽水(注水)试验的成果比较后确定。
砂性土渗透性试验:可采用卡明斯基管(土样管法)、70 型试验仪器法(基姆式渗透仪);
粘性土可采用南55 型渗透仪和加荷渗透仪法(渗后试验仪)。渗后试验仪可在不同固结压力下测定土的渗透系数,并可加快试验过程。
深层土的渗透试验应在岩石高压渗透仪中进行测试。
I.2 压缩—固结试验
I.2.1 压缩指标的测定
固结试验用于测定饱和土的压缩系数、体积压缩系数、压缩模量、压缩指数、回弹指数、前期固结压力、固结系数和次固结系数等。
压缩试验用于测定非饱和土的压缩系数、体积压缩系数、压缩模量、压缩指数、回弹指数和前期固结压力等。
当采用压缩系数和压缩模量进行沉降量计算和预测预报时,固结试验施加的最大压力应大于土的有效自重压力与附加压力之和。试验成果可由e—p 曲线的形式整理。
a)压缩系数av 的计算
应取自土的有效自重压力至土的有效自重压力与附加压力之和的压力段。可采用压力间隔由Pi=100kPa 增加到Pi+1=200kPa 时所得的压缩系数a1—2 判断土的压缩性。压缩系数越大,则土的压缩性越高。
b)压缩系数av 的计算方法

c)压缩模量Es 的计算
应取自土的有效自重压力至土的有效自重压力与附加压力之和的压力段。可采用压力由Pi=100KPa 增加到Pi+1=200KPa 时的压缩模量Es1—2 来判断土的压缩性,压缩模量越大,土的压缩性越低。
d)压缩模量Es 的计算方法

式中:
符号含义同前。

固结系数Cv 的计算方法

式中:
K——土层的渗透系数;
e——孔隙比;
av——压缩系数;
ρW——水的密度。
通常采用时间平方根法或时间对数法求得Cv 值。
I.2.2 前期固结压力Pc 的测定
a)目的
①评价土的固结状态:通常用超固结比OCR 来表示。前期固结压力Pc 与土的自重应力P0 之比为超固结比。
当Pc/P0=1 时,为正常固结;
当Pc/P0>1 时,为超固结;
当Pc/P0<1 时,为欠固结。
②确定超固结地层的临界水位值:不引起地面沉降或不引起明显地面沉降的地下水位值。
③同时可获得压缩指数cc、固结系数cv、压缩系数av、体积压缩系数mv 等项指标。
b)试验要求
①试样要保持原状结构。
②加荷等级宜为12.5、25、50、100、200、400、800、1600、3200 kPa,…。开始阶段每次加荷增量较小,随着压力增大,加荷增量可逐渐加大。
③最终荷重的大小应以e—lgP 曲线能反映明显的呈直线的初次曲线段为准。 最终荷重一般为土层自重压力Pc 的3~4倍。
前期固结压力测定的试验成果应按e—lgP 曲线的形式整理。
c)确定Pc 的方法
卡萨格兰特法:依据室内e—lgP 坐标曲线,寻找最小曲率半径, 然后由经验图解法求得。
Schnmertmarn 法及Burmister 法等。
I.2.3 高压固结试验
地面沉降预测模型建立过程中,为了模拟现场应力状况,获得相应的计算参数,可进行高压固结试验。
I.2.4 反复加卸荷试验
a)目的
研究土体在地下水位反复升降(即不同应力范围内反复加卸荷)条件下的变形规律及其压缩与回弹特性,计算土的压缩系数av、压缩指数Cc 及卸荷时的回弹系数as、固弹指数Cs、胀缩比Cp 值。恢复采样时土层的原始孔隙比和地下水开采初期时土层的孔隙比。
b)试验要求
应尽可能采取Ⅰ级土样。土样的采取应符合《岩土工程勘察规范》的要求。加荷等级宜为12.5、25、50、100、200、400、800、1600、3200KPa,第一级压力的值应视土的软硬程度而定,宜用12.5、25 或50 KPa。加荷稳定时间一般以24h 为准。反复加卸荷的次数视试验要求而定,一般不少于五次。
c)试验内容
自土层自重压力P0 起,反复加卸荷,卸荷量小于加荷量,模拟地下水位在反复升降中逐年下降;在一定压力条件下,反复加卸荷,卸荷量大于加荷量,模拟地下水位在反复升降中逐年上升;由土层自重压力P0 起,在恒定压力条件下,反复加卸荷,模拟地下水位在一定变幅内反复升降。
d)某级荷重下压缩系数、回弹系数和胀缩比的计算方法
某级荷重下的压缩系数

I.3 钻孔(井)抽水试验
抽水试验可按不同目的选择表1 中的方法及相应的参数计算方法。

抽水试验最大降深应接近水源地实际开采降深值。抽水时井、孔(群)动态测量应采用同一方法和仪器。其精度对抽水孔为cm,对观测孔为mm。稳定水位的标准为抽水量和动水位随时间的关系曲线仅在一定范围内波动,而没有持续上升或下降的趋势。抽水结束后应测量恢复水位。并绘制抽水时降落漏斗的形成及发展动态图,绘制水位下降时土层压力动态变化图。
I.4 地下水人工回灌试验
通过回灌试验,研究地面沉降量、回灌量和地面回升量之间的规律,并进行计算,求得需要回灌的水量。在此基础上制定地下水开采与回灌方案。
a)回灌水位观测
回灌开始时,水位观测时间间隔宜按非稳定流要求进行。一般观测时间间距如下:1、2、2、5、5、5、5、5、10、10、10、10、20、20、20、30、30min,回灌水流基本稳定后,每1h 测一次。
b)地下水水温观测
观测含水层水平方向的温度变化,可按每1 次/2h;观测含水层垂直方向的温度变化,可按1 次/d;
水温观测点设置:水平方向水温观测点宜布设于受气温影响小、地下水迳流条件好和易于测出因回灌水引起温度变化的部位。一般设于在地下水水位以下5m 处;垂直方向水温观测点宜于地下水水位以下每米设置一点,直至孔底。
c)土层温度观测
土层温度观测孔宜浅于回灌孔。孔距一般1~2m。采用自动测温仪器,观测次数不少于2 次/d。
I.5 地下水人工回灌试验成果
回灌试验结束后,应对地下水动态进行一段时期的观测。地下水水位、水温、土温观测次数不少于每四天测一次;主孔、观测孔及回灌源均应进行水质分析。
绘制各含水层增温线平面图、垂向等温线剖面图、不同深度水温-时间变化曲线图等。
附录J地面沉降监测数据分析方法
附录J
(资料性附录)
地面沉降监测数据分析方法
J.1 数据处理
J.1.1 算术平均值法
当监测数据的离散度较小时,可采用算术平均值或中值来代表。

式中:
X1,X2,……,Xn;代表各次监测值;n——监测总数。
J.1.2 最大、最小平均值法
当土质不均匀时, 可根据指标的性质采用最大平均值或最小平均值。
最大平均值=(算术平均值+最大监测指标值)/2;
最小平均值=(算术平均值+最小监测指标值)/2。
J.1.3 舍去10%后的最大、最小平均值法
当监测数据离散度较大时, 在总数中舍去最大值和最小值各10%后,剩下的最大值或最小值分别与原计算所得算术平均值相加,再除以2 即得到最大、最小平均值。
J.1.4 加权平均值法
计算平均值时,因各项指标代表不同的量, 此时采用加权平均值法。

式中:
X1,X2,……,Xn,各监测值;W1,W2,……,Wn,为各监测值对应的权。
J.1.5 相关分析法
土的某些物理、力学性质指标之间有较好的相关性;另外,某些指标随深度及平面展布上也有一定的规律性。压缩指数与液限之间、压缩系数与液限指标之间、渗透系数与孔隙比之间等都有较好的相关性;天然容重随深度的增加而增加,前期固结压力在某些地区随深度的增加而增大等。根据这些特点,进行相关分析,可建立某些指标间的相关方程式,可以是直线相关,也可以是非直线相关。据这些相关式,可由某些指标求得另一些指标。
J.2 根据实测资料反算变形参数
该方法适用于已建立沉降监测系统并取得一定数据的地层变形资料、水位观测资料等城市地区。根据实测的土层变形数据反算得到的土层变形参数,具有较高的代表性,反映了沉降土层的平均变形指标,依此进行的沉降计算及预测结果有较高的精确度。
J.2.1 含水层组比单位储水系数(土力学称比单位变形量I′)的反算:SS 表示单位体积饱水土层中排出的水量(I′表示每米土层水位下降1m 时的变形量)。

式中:
SKe——为土层单位变形量;
H——为含水层组厚度。

式中:
△S——土层变形量(包括压缩或回弹);
△h——水位变幅。
J.2.2 压缩系数av、回弹系数as 的反算

式中:
△hc——水位变幅(下降);
△hs——水位变幅(上升);
△Sc——相应于△hc 的土层压缩量;
△Ss——相应于△hs 的土层回弹量;
rw——水的密度;
e——土层天然孔隙比;
H——含水层厚度。
J.2.3 体积压缩系数mvc 及体积回弹系数mvs 的反算
J.2.3.1 用比单位变形量反算


J.2.3.2 用实测孔隙水压力反算

式中:
ΣAc、ΣAs-反算中选用的时间内孔隙水压力差所包含的面积。
J.2.3.3 砂层弹性模量反算

式中:
Ec、Es——水位下降及回升期的模量;
其它符号含义同前。
未开发区资料少,同时为开发区总体规划提供预测数据,一般可采用估算总沉降量及地面沉降发展趋势预测。
J.3 总沉降量估算
根据水文地质条件、开发区地下水需求量及总体规划的需要,地下水位降深确定后,依分层综合法按下式进行计算:
J.3.1 正常固结粘性土计算式:

J.3.2 超固结粘性土计算式:


J.3.3 欠固结粘性土计算式:

J.3.4 砂性土的计算式:

上述诸式:
S∞——最终沉降量;
Cci——i 层的压缩指数;
Csi——i 层的回弹指数;
e0i——i 层的原始孔隙比;
Hi——i 层的厚度,双面排水时取1/2;
P0——计算层的自重压力;
Pc——计算层的前期固结压力;
ΔP——水位变化时对土层的附加荷载;
Esi——i 层砂土的弹性模量。
J.4 地面沉降趋势预测
J.4.1 当水位升降已稳定不变的情况下,土层变形与时间的关系可用下式计算:

式中:
St——预测某时刻t 的土层变形量;
U——固结度;
T——时间;
N——时间因素;
Cv——固结系数;
H——土层厚度,双面排水时取其1/2。
J.4.2 已产生地面沉降地区的沉降量预测
J.4.2.1 预测目的
指出地面沉降灾害可能继续发展的趋势,并寻求有效的防治措施。确定地下水资源的合理开采方案,在最小的地面沉降量条件下,最大可能地开发地下水资源。
J.4.2.2 预测应具备的资料
松散沉积物的岩性、厚度及埋藏条件。根据这些地层单元的空间组合,在平面上划分出不同的地面沉降地质结构单元。
进行含水层组的划分并进行工程地质分层及其基本特性描述。
历年地下水开采量资料、地下水动态变化资料、 各含水组水位变化幅度及速率、地下水位下降漏斗的形成及发展变化、回灌时反漏斗的形成及发展变化。
土工试验资料,包括常规试验、前期固结压力试验、 模拟水位变化的反复加卸荷试验、渗透试验等。
地面沉降资料,包括各分层标点的长期观测资料、 地面沉降水准点趋势测量资料及其编制的历年地面沉降等值线图。
决策或规划部门的有关资料。
J.4.2.3 地面沉降量预测方法
根据不同地区的条件和情况,可选用如下几种预测方法:
J.4.2.3.1 相关分析法
过量开采地下水是引起地面沉降的主要原因。因此,地面沉降与地下水开采之间有很好的相关性。一般情况下,沉降量与地下水年开采量之间相关性差,但逐年累计沉降量与地下水逐年累计开采量间相关性很好。可建立两者之间的相关方程式:

式中:
ΣS——逐年累计沉降量;
ΣQ——逐年累计地下水开采量;
a——常数项;
b——回归系数。
由此式便可预测允许一定开采量条件下,引起的地面沉降量;反之,也可预测允许一定沉降量条件下的地下水可开采量。
J.4.2.3.2 单位变形量、比单位变形量法
a)应具备的资料:应具备预测前4~5 年地面沉降分层观测标组的实际观测资料,即土层形变资料、水位变幅、土层厚度。
b)单位变形量:土层在某一特定时间段(水位上升或下降)内,含水层水头每变化1米时其相应的变形量,称为单位变形量,按下式计算:

式中:
Is、Ic——分别为水位升、降期的单位变形量(mm/m);
△hs、△hc——分别为某时期内水位升、降的幅度(m);
△Ss、△Sc-分别为相应于该水位变幅下的土层变形量(mm)。
c)比单位变形量:将上述单位变形量除以土层厚度H,称为该土层比单位变形量。按下式计算:


e)在已知预测年份的水位升、降幅度及土层厚度条件下,可按下式预测土层沉降量。

式中:
Ss、Sc-分别为水位上升或下降△h(m)时,厚度为H(m)的土层的预测沉降量(mm)。
附录K地面沉降调查与监测报告的内容
附录K
(资料性附录)
地面沉降调查与监测报告的内容
K.1 地面沉降调查与监测报告一般应包括以下内容。
一、序言
项目的来源,立项的依据,上级主管部门下达的任务。
二、地面沉降区工作述评
前人工作研究程度,本次工作采用的勘查手段,已完成的勘查工作量及其工作质量述评。
三、地面沉降区自然—经济地理环境概况
地面沉降区的自然地理、社会、经济及资源开发利用状况。
四、地面沉降区地质环境概况
地层、构造、水文地质、岩土体工程地质性质、有利于形成地面沉降的各种自然因素及人为工程(经济)活动。
五、地面沉降调查与灾情评估
地面沉降灾害发育历史及现状,地面沉降区过去的、现在的灾情、人员伤亡及经济损失评估。
六、地面沉降的成灾条件
该区地面沉降的形成机理、成灾条件(自然的及人为的)及影响因素(自然的及人为的)。
七、地面沉降长期监测工作
八、地面沉降稳定性评价与预测
地面沉降稳定性分析、定性与半定量评价、地面沉降目前的危险程度及危害性,未来的发展趋势及其可能造成的危害
九、实施地面沉降灾害防御工程的必要性及可行性论述
十、地面沉降灾害主要防御工程方案选择与推荐
十一、结语
简明归纳地面沉降灾害的类型、性质、规模、特征及其形成机理、稳定性现状及发展趋势、实施防御工程的必要性及推荐方案、存在问题及对进一步工作的建议。
K.2 报告的附图、附表及附件的要求
K.2.1 附图
可根据项目的目的与任务,结合地面沉降区的具体情况,选择编制以下图件。
a)实际材料图;
b)地面沉降区勘查工作布置图(必须编制);
c)区域地质图或地面沉降区地质图;
d)地面沉降区工程地质图(必须编制);
e)地面沉降区水文地质图;
f)地面沉降区地面变形及动态监测布置图(可与(4)合并编制);
g)典型钻孔或浅井综合地质柱状图(至少编制1 幅图);
h)地面沉降剖面图(至少编制1 幅图);
i) 地面沉降区地面变形与地下水动态监测曲线图;
j) 必要的钻探、物探、浅井、探槽剖面图;
k)有成效的遥感解译图。
K.2.2 附表
a)岩、土、水样化学成份、水理性质、物理—力学性质试验成果汇总表;
b)地面沉降区地面变形及地下水动态监测成果表;
c)地面沉降水准测量表和地面沉降GPS 监测成果表;
d)地面沉降区稳定性评价与预测汇总表。
K.2.3 附件
凡与上述报告内容有密切关系,而报告中又未详细论述的遥感、物探、钻探、井(槽)探专题报告、试验报告以及反映地面沉降成因、类型、灾情等典型照片、录像片、航空照片等,均应作为报告的附件提交。
