Appearance
《砌体工程现场检测技术标准[附条文说明] 》GB/T 50315-2011
🗓️ 住房和城乡建设部 实施时间:2012-03-01
前言
中华人民共和国国家标准
砌体工程现场检测技术标准
Technical standard for site testing of masonry engineering
GB/T 50315-2011
主编部门:四川省住房和城乡建设厅
批准部门:中华人民共和国住房和城乡建设部
施行日期:2 0 1 2 年 3 月 1 日
中华人民共和国住房和城乡建设部公告
第1108号
关于发布国家标准《砌体工程现场检测技术标准》的公告
现批准《砌体工程现场检测技术标准》为国家标准,编号为GB/T 50315-2011,自2012年3月1日起实施。原《砌体工程现场检测技术标准》GB/T 50315-2000同时废止。
本标准由我部标准定额研究所组织中国建筑工业出版社出版发行。
中华人民共和国住房和城乡建设部
2011年7月29日
前 言
本标准是根据住房和城乡建设部《关于印发<2009年工程建设标准规范制订、修订计划>的通知》(建标[2009]88号)的要求,由四川省建筑科学研究院和成都建筑工程集团总公司会同有关单位共同对原国家标准《砌体工程现场检测技术标准》GB/T 50315-2000进行修订而成的。
本标准在修订过程中,修订组经广泛调查研究,认真总结实践经验,采纳了砌体工程现场检测技术的最新成果;开展了砌体工程现场检测方法的专题研究;对各项检测方法进行了推广至烧结多孔砖砌体的验证性试验;参考有关国际标准和国外先进标准,并在征求意见的基础上,修订本标准,最后经审查定稿。
本标准共分15章,主要内容包括:总则、术语和符号、基本规定、原位轴压法、扁顶法、切制抗压试件法、原位单剪法、原位双剪法、推出法、筒压法、砂浆片剪切法、砂浆回弹法、点荷法、烧结砖回弹法、强度推定。
本次修订的主要技术内容是:
1.将标准的适用范围从主要适用于烧结普通砖砌体扩大至烧结多孔砖砌体;
2.新增了切制抗压试件法、原位双砖双剪法、砂浆片局压法、烧结砖回弹法、特细砂砂浆筒压法等检测方法;
3.取消了未能广泛推广的砂浆射钉法;
4.统一了原位轴压法和扁顶法的砌体抗压强度计算公式;
5.为适应《砌体结构工程施工质量验收规范》GB 50203关于砌筑砂浆强度等级评定标准的变化,对检测的砂浆强度推定方法作了调整;
6.进一步明确了各检测方法的特点、用途和限制条件。
本标准由住房和城乡建设部负责管理,由四川省建筑科学研究院负责具体技术内容的解释。在执行过程中,请各单位结合砌体工程现场检测工作的实施,注意总结经验,积累检测数据、资料、检测方法的创新做法,如有意见和建议,请寄送四川省建筑科学研究院(成都市一环路北三段55号;邮编:610081;网址:www.scjky.com.cn),以供今后修订时参考。
本标准主编单位: 四川省建筑科学研究院
成都建筑工程集团总公司
本标准参编单位: 西安建筑科技大学
湖南大学
重庆市建筑科学研究院
陕西省建筑科学研究院
河南省建筑科学研究院有限公司
江苏省建筑科学研究院有限公司
山西四建集团有限公司科研所
南充市建设工程质量检测中心
山东省建筑科学研究院
上海市建筑科学研究院(集团)有限公司
宁夏回族自治区建筑科学研究院
本标准主要起草人员: 吴 体 张 静 王永维 王庆霖 施楚贤 侯汝欣 林文修 雷 波
李双珠 周国民 顾瑞南 崔士起 陈大川 曾 伟 张 涛 甘立刚
李 峰 蒋利学 唐 军 凌程建 肖承波 高永昭 梁 爽 王耀南
孔旭文 王 枫 颜丙山 赵歆冬
本标准主要审查人员: 邸小坛 严家熺 张昌叙 刘立新 程才渊 苑振芳 向 学 张 扬
韩 放 张国堂 王增培
1 总则
1 总 则
1.0.1 为在砌体工程现场检测中,贯彻执行国家技术政策,做到技术先进、数据准确、安全可靠,制定本标准。
条文说明
1.0.1 砌体工程的现场检测是进行可靠性鉴定的基础。我国从20世纪60年代开始不断地进行广泛研究,积累了丰硕的成果,为了筛选出其中技术先进、数据可靠、经济合理的检测方法来满足量大面广的建筑物鉴定加固的需要,原国家计委和建设部在20世纪90年代初下达了制定《砌体工程现场检测技术标准》的任务,上一版的《砌体工程现场检测技术标准》GB/T 50315-2000(以下简称原标准)于2000年发布实施。本次修订对上一版标准颁布实施以来各科研、施工、检测等单位使用本标准的经验进行总结,并结合检测技术的最新进展,调整部分检测方法的适用范围,增加了部分检测方法。
1.0.2 本标准适用于砌体工程中砖砌体、砌筑砂浆和砌筑块体的现场检测和强度推定。
条文说明
1.0.2 本标准所列方法主要是为已有建筑物和一般构筑物进行可靠性鉴定时,采集现场砌体强度参数而制定的方法,在某些具体情况下亦可用于建筑物施工验收阶段。
1.0.3 砌体工程的现场检测,除应符合本标准外,尚应符合国家现行有关标准的规定。
2 术语和符号
2.1 术语
2 术语和符号
2.1 术 语
2.1.1 检测单元 test unit
每一楼层且总量不大于250m 3 的材料品种和设计强度等级均相同的砌体。
2.1.2 测区 test zone
在一个检测单元内,随机布置的一个或若干个检测区域。
2.1.3 测点 test point
在一个测区内,按检测方法的要求,随机布置的一个或若干个检测点。
2.1.4 原位轴压法 the method of axial compression in situ
采用原位压力机在墙体上进行抗压测试,检测砌体抗压强度的方法。
2.1.5 扁式液压顶法 the method of flat jack in situ
采用扁式液压千斤顶在墙体上进行抗压测试,检测砌体的受压应力、弹性模量、抗压强度的方法,简称扁顶法。
2.1.6 切制抗压试件法 the method of test on specimen cut from wall
从墙体上切割、取出外形几何尺寸为标准抗压砌体试件,运至试验室进行抗压测试的方法。
2.1.7 原位砌体通缝单剪法 the method of shear along one horizontal mortar joint in situ
在墙体上沿单个水平灰缝进行抗剪测试,检测砌体抗剪强度的方法,简称原位单剪法。
2.1.8 原位双剪法 the method of shear along two horizontal mortar joint in situ
采用原位剪切仪在墙体上对单块或双块顺砖进行双面抗剪测试,检测砌体抗剪强度的方法。
2.1.9 推出法 the method of push out
采用推出仪从墙体上水平推出单块丁砖,测得水平推力及推出砖下的砂浆饱满度,以此确定砌筑砂浆抗压强度的方法。
2.1.10 筒压法 the method of compression in cylinder
将取样砂浆破碎、烘干并筛分成符合一定级配要求的颗粒,装入承压筒并施加筒压荷载,检测其破损程度(筒压比),根据筒压比推定砌筑砂浆抗压强度的方法。
2.1.11 砂浆片剪切法 the method of shear on mortar flake
采用砂浆测强仪检测砂浆片的抗剪强度,以此推定砌筑砂浆抗压强度的方法。
2.1.12 砂浆回弹法 the method of mortar rebound
采用砂浆回弹仪检测墙体、柱中砂浆表面的硬度,根据回弹值和碳化深度推定其强度的方法。
2.1.13 点荷法 the method of point load
在砂浆片的大面上施加点荷载,推定砌筑砂浆抗压强度的方法。
2.1.14 砂浆片局压法 the method of local compression on mortar flake
采用局压仪对砂浆片试件进行局部抗压测试,根据局部抗压荷载值推定砌筑砂浆抗压强度的方法。
2.1.15 烧结砖回弹法 the method of fired brick rebound
采用专用回弹仪检测烧结普通砖或烧结多孔砖表面的硬度,根据回弹值推定其抗压强度的方法。
2.1.16 槽间砌体 masonry between two channels
采用原位轴压法和扁顶法在砖墙上检测砌体的抗压强度时,开凿的两个水平槽之间的砌体。
2.1.17 筒压比 cylindrical compressive ratio
采用筒压法检测砂浆强度时,砂浆试样经筒压测试并筛分后,留在孔径5mm筛以上的累计筛余量与该试样总量的比值,简称筒压比。
2.2 符号
2.2 符 号
2.2.1 几何参数
A——构件或试件的截面面积;
b——宽度;试件截面边长;
h——高度;试件截面高度;测点间的距离;
l——长度;
d——砂浆碳化深度;
r——半径;点荷法的作用半径;
t——厚度;试件厚度;
H——砌体抗压试件的高度。
2.2.2 作用、效应与抗力、计算指标
N——实测破坏荷载值;
f m ——砌体抗压强度平均值;
f v,m ——砌体抗剪强度平均值;
τ——砂浆片的抗剪强度;
f 1 ——砖的抗压强度值;
f 2 ——砌筑砂浆抗压强度值;
f 2 '——砌筑砂浆抗压强度推定值;
σ 0 ——测点上部墙体的平均压应力。
2.2.3 系数
ξ 1 ——原位轴压法、扁顶法测定砌体抗压强度的换算系数;
ξ 2 ——推出法的砖品种修正系数;
ξ 3 ——推出法的砂浆饱满度修正系数;
ξ 4 ——点荷法的荷载作用半径修正系数;
ξ 5 ——点荷法的试件厚度修正系数。
2.2.4 其他
B——水平灰缝的砂浆饱满度;
η——筒压法中的筒压比;
R——砖或砂浆的回弹值;
n 1 ——同一测区的测点(测位)数;
n 2 ——同一检测单元的测区数。
3 基本规定
3.1 适用条件
3 基本规定
3.1 适用条件
3.1.1 对新建砌体工程,检验和评定砌筑砂浆或砖、砖砌体的强度,应按现行国家标准《砌体结构设计规范》GB 50003、《砌体结构工程施工质量验收规范》GB 50203、《建筑工程施工质量验收统一标准》GB 50300、《砌体基本力学性能试验方法标准》GB/T 50129等的有关规定执行;当遇到下列情况之一时,应按本标准检测和推定砌筑砂浆或砖、砖砌体的强度:
1 砂浆试块缺乏代表性或试块数量不足。
2 对砖强度或砂浆试块的检验结果有怀疑或争议,需要确定实际的砌体抗压、抗剪强度。
3 发生工程事故或对施工质量有怀疑和争议,需要进一步分析砖、砂浆和砌体的强度。
3.1.2 对既有砌体工程,在进行下列鉴定时,应按本标准检测和推定砂浆强度、砖的强度或砌体的工作应力、弹性模量和强度:
1 安全鉴定,危房鉴定及其他应急鉴定。
2 抗震鉴定。
3 大修前的可靠性鉴定。
4 房屋改变用途、改建、加层或扩建前的专门鉴定。
条文说明
3.1.1、3.1.2 本条文是对原标准第1.0.2条的适用范围进一步明确,特别强调对新建工程、改建和扩建工程中的新建部分,不能替代现行国家标准《砌体结构设计规范》GB 50003、《砌体结构工程施工质量验收规范》GB 50203、《建筑工程施工质量验收统一标准》GB 50300、《砌体基本力学性能试验方法标准》GB/T 50129的规定。仅是在出现本节所述情况时,可用本标准所列方法进行现场检测,综合考虑砂浆、砖和砌筑质量对砌体各项强度的影响,作为工程是否验收还是应作处理的依据。还应特别指出的是,本标准检测和推定的砂浆强度是以同类块材为砂浆试块底模、自然养护、同龄期的砂浆强度。
3.1.3 各种检测方法的选用应按本标准第3. 4节的规定执行。
3.2 检测程序及工作内容
3.2 检测程序及工作内容
3.2.1 现场检测工作应按规定的程序进行(图3. 2. 1)

条文说明
3.2.1 本条给出一般检测程序的框图,当有特殊需要时,亦可按鉴定需要进行检测。有些方法的复合使用,本标准未作详细规定(如有的先用一种非破损方法大面积普查,根据普查结果再用其他方法在重点部位和发现问题处重点检测),由检测人员综合各方法特点调整检测程序。本次修订增加了制定检测方案、确定检测方法的内容,应在检测工作开始前,根据委托要求、检测目的、检测内容和范围等制定检测方案(包括抽样方案、部位等),确定检测方法。
3.2.2 调查阶段应包括下列工作内容:
1 收集被检测工程的图纸、施工验收资料、砖与砂浆的品种及有关原材料的测试资料。
2 现场调查工程的结构形式、环境条件、砌体质量及其存在问题,对既有砌体工程,尚应调查使用期间的变更情况。
3 工程建设时间。
4 进一步明确检测原因和委托方的具体要求。
5 以往工程质量检测情况。
条文说明
3.2.2 调查阶段是重要的阶段,应尽可能了解和搜集有关资料,不少情况下,委托方提不出足够的原始资料,还需要检测人员到现场收集;对重要的检测,可先行初检,根据初检结果进行分析,进一步收集资料。 关于砌筑质量,因为砌体工程系操作工人手工操作,即使同一栋工程也可能存在较大差异;材料质量如块材、砌筑砂浆强度,也可能存在较大差异。在编制检测方案和确定测区、测点时,均应考虑这些重要因素。
3.2.3 检测方案应根据调查结果和检测目的、内容和范围制定,应选择一种或数种检测方法,必要时应征求委托方意见并认可。对被检测工程应划分检测单元,并应确定测区和测点数。
3.2.4 测试设备、仪器应按相应标准和产品说明书规定进行保养和校准,必要时应按使用频率、检测对象的重要性适当增加校准次数。
条文说明
3.2.4 设备仪器的校验非常重要,有的方法还有特殊的规定。每次试验时,试验人员应对设备的可用性作出判定并记录在案。对一些重要或特殊工程(如重大事故检测鉴定),宜在检测工作开始前和检测工作结束后对检测设备进行检定,以对设备性能进行确认。
3.2.5 计算、分析和强度推定过程中,出现异常情况或测试数据不足时,应及时补充测试。
3.2.6 检测工作完毕,应及时出具符合检测目的的检测报告。
3.2.7 现场测试结束时,砌体如因检测造成局部损伤,应及时修补砌体局部损伤部位。修补后的砌体,应满足原构件承载能力和正常使用的要求。
3.2.8 从事测试和强度推定的人员,应经专门培训合格后,再参加测试和撰写报告。
3.2.9 现场检测工作,应采取确保人身安全和防止仪器损坏的安全措施,并应采取避免或减小污染环境的措施。
3.2.10 现场检测和抽样检测,环境温度和试件(试样)温度均应高于0℃。
条文说明
3.2.10 规定环境温度和试件(试样)温度均应高于0℃,是避免试件(试样)中的水结冰,引起检测结果失真。
3.3 检测单元、测区和测点
3.3 检测单元、测区和测点
3.3.1 当检测对象为整栋建筑物或建筑物的一部分时,应将其划分为一个或若干个可以独立进行分析的结构单元,每一结构单元应划分为若干个检测单元。
条文说明
3.3.1 明确提出了检测单元的概念及确定方法,检测单元是根据下列几项因素规定的:(1)检测是为鉴定采集基础数据,对建筑物鉴定时,首先应根据被鉴定建筑物的结构特点和承重体系的种类,将该建筑物划分为一个或若干个可以独立进行分析(鉴定)的结构单元,故检测时应根据鉴定要求,将建筑物划分成同样的结构单元;(2)在每一个结构单元,采用对新施工建筑同样的规定,将同一材料品种、同一等级250m3砌体作为一个母体,进行测区和测点的布置,我们将此母体称作为“检测单元”;故一个结构单元可以划分为一个或数个检测单元;(3)当仅仅对单个构件(墙片、柱)或不超过250m3的同一材料、同一等级的砌体进行检测时,亦将此作为一个检测单元。
3.3.2 每一检测单元内,不宜少于6个测区,应将单个构件(单片墙体、柱)作为一个测区。当一个检测单元不足6个构件时,应将每个构件作为一个测区。
采用原位轴压法、扁顶法、切制抗压试件法检测,当选择6个测区确有困难时,可选取不少于3个测区测试,但宜结合其他非破损检测方法综合进行强度推定。
3.3.3 每一测区应随机布置若干测点。各种检测方法的测点数,应符合下列要求:
1 原位轴压法、扁顶法、切制抗压试件法、原位单剪法、筒压法,测点数不应少于1个。
2 原位双剪法、推出法,测点数不应少于3个。
3 砂浆片剪切法、砂浆回弹法、点荷法、砂浆片局压法、烧结砖回弹法,测点数不应少于5个。
注:回弹法的测位,相当于其他检测方法的测点。
条文说明
3.3.2、3.3.3 测区和测点的数量,主要依据砌体工程质量的检测需要,检测成本(工作量),与现有检验与验收标准的衔接,以及各检测方法的科研工作基础,运用数理统计理论,作出的统一规定。原标准规定,每一检测单元为6个测区,此次修订改为不宜少于6个测区。被测工程情况复杂时,宜增加测区数。
3.3.4 对既有建筑物或应委托方要求仅对建筑物的部分或个别部位检测时,测区和测点数可减少,但一个检测单元的测区数不宜少于3个。
条文说明
3.3.4 本条为新增加条文。总结近年来检测工作实践经验,增加此条文。有时委托方仅要求检测建筑物的某一部分或个别部位时,可根据具体情况减少测区数。但为了便于统计分析,准确反映工程质量状况,规定不宜少于3个测区。
3.3.5 测点布置应能使测试结果全面、合理反映检测单元的施工质量或其受力性能。
条文说明
3.3.5 本条为新增加条文。砌体工程的施工质量差异往往较大,块件、砂浆的离散性也较大,布置测点时应考虑这些因素。
3.4 检测方法分类及其选用原则
3.4 检测方法分类及其选用原则
3.4.1 砌体工程的现场检测方法,可按对砌体结构的损伤程度,分为下列几类:
1 非破损检测方法,在检测过程中,对砌体结构的既有力学性能没有影响。
2 局部破损检测方法,在检测过程中,对砌体结构的既有力学性能有局部的、暂时的影响,但可修复。
条文说明
3.4.1 现场检测一般都是在建筑物建成后,根据第3.1.1条和第3.1.2条所述原因进行检测,大量的检测是在建筑物使用过程中的检测,砌体均进入了工作状态。一个好的现场检测方法是既能取得所需的信息,又在检测过程中和检测后对砌体既有性能不造成负影响。但这两者有一定矛盾,有时一些局部破损方法能提供更多更准确的信息,提高检测精度。鉴于砌体结构的特点,一般情况下局部的破损易于修复,修复后对砌体的既有性能无影响或影响甚微。故本标准除纳入非破损检测方法外,还纳入了局部破损检测法,供使用者根据构件允许的破损程度进行选择。
3.4.2 砌体工程的现场检测方法,可按测试内容分为下列几类:
1 检测砌体抗压强度可采用原位轴压法、扁顶法、切制抗压试件法。
2 检测砌体工作应力、弹性模量可采用扁顶法。
3 检测砌体抗剪强度可采用原位单剪法、原位双剪法。
4 检测砌筑砂浆强度可采用推出法、筒压法、砂浆片剪切法、砂浆回弹法、点荷法、砂浆片局压法。
5 检测砌筑块体抗压强度可采用烧结砖回弹法、取样法。
3.4.3 检测方法可按表3.4. 3选择。




条文说明
3.4.2、3.4.3 现在的现场检测,主要是根据不同目的获得砌体抗压强度、砌体抗剪强度、砌筑砂浆强度、砌筑块材强度,本标准分别推荐了几种方法。对同一目的,本标准推荐了多种检测方法,这里存在一个选择的问题。首先,这些方法均通过标准编制组的统一考核评估,误差均在可接受的范围,方法之间的误差亦在可接受范围。方法的选择除充分考虑各种方法的特点,用途和限制条件外,使用者应优先选择本地区常用方法,尤其是本地区检测人员熟悉的方法。因为方法之间的误差与检测人员对其熟悉掌握的程度密切相关。同时,本标准为推荐性国家标准,方法的选择还宜与委托方共同确定,并在合同中加以确认,以避免不同检测方法由于诸多影响因素造成结果差异可能引起的争议。 本标准的检测方法均进行过专门的研究,研究成果通过鉴定并取得试用经验,有的还修订了地方标准。在本标准编制过程中,专门进行了较大规模的验证性考核试验,编制组全体成员参加和监督了考核全过程,通过这些材料和实践的认真分析,编制组讨论了各种方法的特点,适用范围和应用的局限性,并汇总于表3.4.3中。 本标准此次修订过程中,为扩大应用范围和纳入新的检测方法,再次进行较大规模考核性试验,并吸取了各参编单位和国内近十年来的砌体现场检测科研成果,决定将各种检测方法的应用范围扩充至烧结多孔砖砌体及其块体、砂浆的强度检测,增加了切制抗压试件法,原位双砖双剪法、特细砂砂浆筒压法、砂浆片局压法、烧结砖回弹法。 根据本标准近十年来的应用经验和科研成果,对检测方法的特点、用途、限制条件作了适当调整,如: (1)对原位轴压法、扁顶法、切割抗压试件法、原位单剪法,明确适用于普通砖砌件和多孔砖砌体; (2)原位轴压法,扁顶法、切制抗压试件法可用于“火灾、环境侵蚀后的砌体剩余抗压强度”,这为火灾、环境侵蚀后的砌体工程检测工作,提供了重要技术依据; (3)对原位轴压法、扁顶法的限制条件,增加了“测点宜选在墙体长度方向的中部”; (4)原位单砖双剪法改为原位双剪法; (5)各种砂浆检测方法,明确可用于烧结多孔砖砌体; (6)对砂浆回弹法,明确“主要用于砂浆强度均质性检查”。
3.4.4 选用检测方法和在墙体上选定测点,尚应符合下列要求:
1 除原位单剪法外,测点不应位于门窗洞口处。
2 所有方法的测点不应位于补砌的临时施工洞口附近。
3 应力集中部位的墙体以及墙梁的墙体计算高度范围内,不应选用有较大局部破损的检测方法。
4 砖柱和宽度小于3.6m的承重墙,不应选用有较大局部破损的检测方法。
条文说明
3.4.4 同原标准相比,本条新增加了第1、2、3三款。其中第1、2款主要是考虑检测部位应有代表性;第3款是从安全考虑,对局部破损方法的一个限制,这些墙体最好用非破损方法检测,或宏观检查和经验判断基础上,在相邻部位具体检测,综合推定其强度。 原标准规定“小于2.5m的墙体,不宜选用有局部破损的检测方法”。本次修订修改为“小于3.6m的承重墙体,不应选用有较大局部破损的检测方法”。主要是考虑原位轴压法、扁顶法、切制抗压试件法试件两侧墙体宽度不应小于1.5m,测点宽度为0.24m或0.37m,综合考虑后要求墙体的宽度不应小于3.6m。此外,承重墙的局部破损对其承载力的影响大于自承重墙体,故此次修订特别强调的是对承重墙体的限制条件,对自承重墙体长度,检测人员可根据墙体在砌体结构中的重要性,适当予以放宽。
3.4.5 现场检测或取样检测时,砌筑砂浆的龄期不应低于28d。
3.4.6 检测砌筑砂浆强度时,取样砂浆试件或原位检测的水平灰缝应处于干燥状态。
条文说明
3.4.5、3.4.6 此两条均为新增加条文。对砌筑砂浆强度的检测,提出两项限制条件。
3.4.7 各类砖的取样检测,每一检测单元不应少于一组;应按相应的产品标准,进行砖的抗压强度试验和强度等级评定。
条文说明
3.4.7 本条为新增加条文。从砖墙中凿取完整砖块,进行强度检测,属于砖的取样检测方法。一栋房屋或一个结构单元可能划分成数个检测单元,每一检测单元抽取砖块组数不应少于1组,其抽检组数多于现行国家标准《砌体结构工程施工质量验收规范》GB 50203的规定,为真实、全面反应一栋工程或一个结构单元的用砖质量,适当增加抽样组数是必要的。四川省建筑科学研究院和重庆市建筑科学研究院曾分别做过多次检测,对一批烧结普通砖,数次抽样检测,其强度等级可能相差1级~2级。
3.4.8 采用砂浆片局压法取样检测砌筑砂浆强度时,检测单元、测区的确定,以及强度推定,应按本标准的有关规定执行;测试设备、测试步骤、数据分析应按现行行业标准《择压法检测砌筑砂浆抗压强度技术规程》JGJ/T 234的有关规定执行。
条文说明
3.4.8 砂浆片局压法即现行推荐性行业标准《择压法检测砌筑砂浆抗压强度技术规程》JGJ/T 234中的择压法。该规程是一本新编检测规程,配套检测设备已批量生产。江苏省建筑科学研究院等单位进行了系统试验研究,以及验证性试验和较长时间的试点应用。在此基础上,编制了行业标准。为利于推广该方法,将该方法纳入本标准。考虑到检测的砂浆片是承受局部抗压荷载,故将该方法的名称改为“砂浆片局压法”。此外,为避免重复,本标准未列砂浆片局压法条文。
4 原位轴压法
4.1 一般规定
4 原位轴压法
4.1 一般规定
4.1.1 原位轴压法(图4.1. 1)适用于推定240mm厚普通砖砌体或多孔砖砌体的抗压强度。

条文说明
4.1.1 原位轴压法是西安建筑科技大学在扁顶法基础上提出的,具有设备使用时间长、变形适应能力强、操作简便的优点。对砂浆强度低、砌体压缩变形较大或砌体强度较高的墙体均可应用。其缺点是原位压力机较重,其中油缸式液压扁顶重约25kg,搬运比较费力。重庆市建筑科学研究院也对原位轴压法进行了较多的试验和试点应用工作,试验用砖有页岩砖、蒸压灰砂砖、煤渣砖,证明砖的品种对试验结果无影响。重庆市建筑科学研究院主编了四川省地方标准《原位轴压法测定砌体抗压强度技术规程》DB 51/5007-94。在上述工作基础上,本标准编制组又组织了两次验证性考核,决定将原位轴压法纳入本标准。 原位轴压法属原位测试砌体抗压强度的方法,与测试砖及砂浆的强度间接推算砌体抗压强度相比,更为直观和可靠。测试结果除能反映砖和砂浆的强度外,还反映了砌筑质量对砌件抗压强度的影响,一些工程事故分析和科研单位对比砌体抗压试验资料表明,砌体的原材料强度指标相同,由于砌筑质量不同,砌体抗压强度可相差一倍以上。因而这是原位轴压法的优点。 本标准2000年颁布时仅适用于240mm厚的普通砖砌体,近年来西安建筑科技大学、重庆市建筑科学研究院、上海市建筑科学研究院等单位进行了一系列多孔砖砌体的对比试验,表明原位轴压法亦可应用于多孔砖砌体的原位砌体抗压强度测试,因此本标准修订时扩大了原位轴压法的应用范围。
4.1.2 测试部位应具有代表性,并应符合下列要求:
1 测试部位宜选在墙体中部距楼、地面1m左右的高度处;槽间砌体每侧的墙体宽度不应小于1.5m。
2 同一墙体上,测点不宜多于1个,且宜选在沿墙体长度的中间部位;多于1个时,其水平净距不得小于2.0m。
3 测试部位不得选在挑梁下、应力集中部位以及墙梁的墙体计算高度范围内。
条文说明
4.1.2 本条对测试部位作了规定。本条是在试验和使用经验的基础上,为满足测试数据可靠、操作简便,保证房屋安全等要求而规定的。 测试部位要求离楼、地面1m高度,是考虑压力机和手动油泵之间连接的高压油管一般长约2m,这样在试验过程中,手动泵、油压表放在楼、地面上即可。同时此高度对人工搬运压力机也较为省力。两侧约束墙体的宽度不小于15m;同一墙体上多于1个测点时,水平净距不得小于2.0m,这两项规定都是为了保证槽间砌体有足够的约束墙体,防止因约束不足出现的约束墙体剪切破坏,从而准确地测定砌体抗压强度。在横墙上试验时,一般使两侧约束墙肢宽度相近,测点取在横墙中间。 规定“测试部位不得选在挑梁下,应力集中部位以及墙梁的墙体计算高度范围内”,一是为了确保结构安全,这些部位承受的荷载较大,测试时墙体的较大局部破损对其正常受力不利;二是这些墙体上的应力分布较为复杂,计算分析时不宜准确计算测点上的压应力。
4.2 测试设备的技术指标
4.2 测试设备的技术指标
4.2.1 原位压力机主要技术指标,应符合表4. 2.1的要求。

条文说明
4.2.1 原位压力机是1987年由西安建筑科技大学研制的,在研制过程中,必须解决两个关键问题:一个是在扁顶高度尺寸受限制的条件下,当扁顶工作压力高达20MPa以上时,保证严格的密封和防尘;另一个是当油缸遇到偏心荷载作用时,防止油缸内腔和柱塞的同心受到破坏而造成油缸泄漏和缩短寿命。对此采用了内腔特殊油路、柱塞上加设球铰调整偏心等方法,以合理解决两者之间相互制约的矛盾。各单位研制更大吨位或其他新型的原位压力机,亦应遵守本标准的规定。 同原标准相比,增加了近年研制的800型原位压力机的技术指标。该机可满足较高砌体强度检测工作的需要。
4.2.2 原位压力机的力值,应每半年校验一次。
4.3 测试步骤
4.3 测试步骤
4.3.1 在测点上开凿水平槽孔时,应符合下列要求:
1 上、下水平槽的尺寸应符合表4.3.1的要求。

2 上、下水平槽孔应对齐。普通砖砌体,槽间砌体高度应为7皮砖;多孔砖砌体,槽间砌体高度应为5皮砖。
3 开槽时,应避免扰动四周的砌体;槽间砌体的承压面应修平整。
条文说明
4.3.1 试验时,上水平槽内放置反力板,下水平槽内放置液压扁顶。 试验表明,对240mm厚的墙体,两槽之间的净距为450mm~500mm(普通砖槽之间7皮砖,90mm高的多孔砖5皮砖)是最佳距离。两槽相隔较大时,槽间砌体强度将趋向砌体的局部受压强度;两槽间距过小时,水平灰缝过少,砌体强度将接近块体强度。一般情况下,两槽相隔450mm~500mm时,可获得槽间砌体的最低强度。
4.3.2 在槽孔间安放原位压力机(图4.1.1)时,应符合下列要求:
1 在上槽内的下表面和扁式千斤顶的顶面,应分别均匀铺设湿细砂或石膏等材料的垫层,垫层厚度可取10mm。
2 应将反力板置于上槽孔,扁式千斤顶置于下槽孔,应安放四根钢拉杆,并应使两个承压板上下对齐后,应沿对角两两均匀拧紧螺母并调整其平行度;四根钢拉杆的上下螺母间的净距误差不应大于2mm。
3 正式测试前,应进行试加荷载测试,试加荷载值可取预估破坏荷载的10%。应检查测试系统的灵活性和可靠性,以及上下压板和砌体受压面接触是否均匀密实。经试加荷载,测试系统正常后应卸荷,并应开始正式测试。
条文说明
4.3.2 考虑到目前国内砌体砌筑水平和块体上下大面的平整度,为保证槽间砌体均匀受压,在扁式千斤顶及反力板与块体的接触面上需加设垫层,如铺设快硬石膏浆或均匀铺设湿细砂。 放置反力板和扁式千斤顶时,应使上、下两个承压板对齐,并用四根钢拉杆的螺母调整其平整度,使两个承压板间四根钢拉杆的长度误差不超过2mm,再由扁式千斤顶的球铰进一步调整,以保证槽间砌体均匀受压。
4.3.3 正式测试时,应分级加荷。每级荷载可取预估破坏荷载的10%,并应在1min~1.5min内均匀加完,然后恒载2min。加荷至预估破坏荷载的80%后,应按原定加荷速度连续加荷,直至槽间砌体破坏。当槽间砌体裂缝急剧扩展和增多,油压表的指针明显回退时,槽间砌体达到极限状态。
4.3.4 测试过程中,发现上下压板与砌体承压面因接触不良,致使槽间砌体呈局部受压或偏心受压状态时,应停止测试,并应调整测试装置,重新测试,无法调整时应更换测点。
4.3.5 测试过程中,应仔细观察槽间砌体初裂裂缝与裂缝开展情况,并应记录逐级荷载下的油压表读数、测点位置、裂缝随荷载变化情况简图等。
条文说明
4.3.3~4.3.5 参照现行国家标准《砌体基本力学性能试验方法标准》GB/T 50129作出这三条的规定。 由于试验人员对原位压力机操作熟练程度存在差异等原因,试验过程中,槽间砌体可能出现局部受压或偏心受压的情况,使试验结果偏低,此时应中止试验。并视槽间砌体状况,调整试验装置、垫平承压板与砌体的接触面,重新试验或更换测点。
4.4 数据分析
4.4 数据分析
4.4.1 根据槽间砌体初裂和破坏时的油压表读数,应分别减去油压表的初始读数,并应按原位压力机的校验结果,计算槽间砌体的初裂荷载值和破坏荷载值。
4.4.2 槽间砌体的抗压强度,应按下式计算:


4.4.3 槽间砌体抗压强度换算为标准砌体的抗压强度,应按下列公式计算:

4.4.4 测区的砌体抗压强度平均值,应按下式计算:

条文说明
4.4.1~4.4.4 槽间砌体抗压强度值,是在有侧向约束条件下测得的,其强度值高于现行国家标准《砌体基本力学性能试验方法标准》GB/T 50129规定的在无侧向约束条件下测得的标准试件的抗压强度。为了便于与现行国家标准《砌体结构设计规范》GB 50003对比和使用,应将槽间砌体抗压强度换算为相应标准试件的抗压强度,即将槽间砌体抗压强度除以强度换算系数ξ1ij,该系数是通过墙体中槽间砌体抗压强度和同条件下标准试件抗压强度对比试验确定的。 有限元分析和试验均表明,槽间砌体两侧的约束墙肢宽度和约束墙肢上的压应力σ
0ij 是影响其大小的主要因素,当约束墙肢宽度达到1.0m 以上时,即可提供足够的约束而可不考虑约束墙肢宽度的影响,因此本标准第4.1.2 条规定,测点两侧均应有1.5m 宽的墙体。在确定强度换算系数ξ 1ij 时可仅考虑σ 0ij 影响,σ 0ij 越大,槽间砌体强度越高,ξ 1ij 也越大。
西安建筑科技大学、重庆市建筑科学研究院、上海市建筑科学研究院共完成实心砖砌体原位轴压法试验37组(每组2个~3个测点),标准试件砌体抗压强度为(1.88~10.36) MPa,σ 0 为(0~1.19 )MPa。采用线性回归,回归方程为ξ=1.34+0.555 σ 0 。西安建筑科技大学、重庆市建筑科学研究院、上海市建筑科学研究院进行的59个多孔砖砌体对比试验,标准试件砌件抗压强度为(2.0~5.26) MPa,σ 0 为(0~0.69)MPa,回归方程为ξ=1.25+0.77σ 0 。两类砌体分别按各自回归公式计算ξ值,比较结果见表1:

由表1可见,以σ 0 为参数两种砌体的ξ计算值相差很小,仅σ 0 为零时,两者相差6.7%,多数情况相差均在4%以内。表明两类砌体约束性能没有显著差异,可以采用统一的强度换算系数表达式。不分砌体类别,按全部试验数据进行回归统计,回归方程为:

回归方程相关系数0.683,为公式简化,并与扁顶法协调,本次修订采用式(2)

试验值与式(2)计算值平均比值μ=1.033,变异系数δ=0.143。
试验表明,当σ 0ij /f m >0.4时(f m 为砌体抗压强度),ξ 1ij 将不再随σ 0ij 线性增长,考虑到在实际工程中σ 0ij 一般均在0.4f m 以下,故采用了运算简便的线性表达式。
可按两种方法取用σ0ij:第一,一般情况下,用理论方法计算,即计算传至该槽间砌体以上的所有墙体及楼屋盖荷载标准值,楼层上的可变荷载标准值可根据实际情况确定,然后换算为压应力值。在此需要特别指出的是,可变荷载应按实际调查情况确定,而不是选用现行国家标准《建筑结构荷载规范》GB 50009的规定值;计算时是取荷载标准值,而不是荷载设计值,即不考虑永久荷载和可变荷载的分项系数。第二,对于重要的鉴定性试验,宜采用实测压应力值。
5 扁顶法
5.1 一般规定
5 扁 顶 法
5.1 一般规定
5.1.1 扁顶法(图5. 1.1)适用于推定普通砖砌体或多孔砖砌体的受压弹性模量、抗压强度或墙体的受压工作应力。

条文说明
5.1.1 扁顶法是湖南大学研究的检测原位砌体承载力和砌体受压性能的一项检测技术。在砖墙内开凿水平灰缝槽,此时应力释放,在槽内装入扁式液压千斤顶(简称扁顶)后进行应力恢复,从而直接测得墙体的受压工作应力,并通过测定槽间砌体的抗压强度和轴向变形值确定其标准砌体抗压强度和弹性模量。 本方法设备较轻便、易于操作、直观可靠,并可使测定墙体受压工作应力,砌体弹性模量和砌体抗压强度一次完成。 扁顶法是在试验墙体上部所承受的均匀压应力为(0~1.37)MPa,标准砌体抗压强度最大为3.04MPa的情况下,为试验结果和理论分析所证实。对于8层及8层以下的民用房屋,采用本方法确定砖墙中砌体抗压强度有足够的准确性。 因墙体所承受的主应力方向已定,且垂直方向的主压应力是主要控制应力,当沿水平灰缝开凿一条应力解除槽[图5.1.1(a)],槽周围的墙体应力得到部分解除,应力重新分布。在槽的上下设置变形测量点,可直接观测到因开槽而带来的相对变形变化,即因应力解除而产生的变形释放。将扁顶装入恢复槽内,向其供油压,当扁顶内压力平衡了预先存在的垂直于灰缝槽口面的静态应力时,即应力状态完全恢复,所求墙体受压工作应力即由扁顶内的压力表显示。分析表明,当扁顶施压面积与开槽面积之比等于或大于0.8时,用变形恢复来控制应力恢复相当准确。 在墙体内开凿两条水平灰缝槽[图5.1.1(b)]并装入扁顶,则扁顶间所限定的砌体(槽间砌体),相当于试验一个原位标准砌体试件。对上下两个扁顶供油压,便可测得砌体的变形特征(如砌体弹性模量)和砌体的极限抗压强度。 湖南大学补充研究了扁顶法在烧结多孔砖砌体中的应用。经过本标准编制组统一组织的验证性考核试验,证明该方法用于烧结普通砖砌体和烧结多孔砖砌体,具有较高的精度。对于其他各种砖砌体,其受力性能与上述两种砖砌体没有明显差异,扁顶的工作原理也相同。因此,扁顶法可用于检测各种砖砌体的弹性模量和抗压强度。
5.1.2 测试部位应按本标准第4.1.2条的规定执行。
条文说明
5.1.2 本条为对测试部位的规定。
5.2 测试设备的技术指标
5.2 测试设备的技术指标
5.2.1 扁顶应由1mm厚合金钢板焊接而成,总厚度宜为5mm~7mm,大面尺寸分别宜为250mm×250mm、250mm×380mm、380mm×380mm和380mm×500m。250mm×250mm和250mm×380mm的扁顶可用于240mm厚墙体,380mm×380mm和380mm×500mm扁顶可用于370mm厚墙体。
5.2.2 扁顶的主要技术指标,应符合表5.2.2的要求。

5.2.3 每次使用前,应校验扁顶的力值。
条文说明
5.2.1~5.2.3 在扁顶法中,扁式液压千斤顶既是出力元件又是测力元件,要求扁顶的厚度小于水平灰缝厚度,且具有较大的垂直变形能力,一般需采用1Cr18Ni9Ti等优质合金钢薄板制成。当扁顶的顶升变形小于10mm,或取出一皮砖安设扁顶试验时,应增设钢制可调楔形垫块,以确保扁顶可靠的工作。扁顶的定型尺寸有250mm×250mm×5mm或250mm×380mm×5mm等,可视被测墙体的厚度加以选用。
5.2.4 手持式应变仪和千分表的主要技术指标,应符合表5. 2.4的要求。

5.3 测试步骤
5.3 测试步骤
5.3.1 测试墙体的受压工作应力时,应符合下列要求:
1 在选定的墙体上,应标出水平槽的位置,并应牢固粘贴两对变形测量的脚标[图5. 1.1(a)]。脚标应位于水平槽正中并跨越该槽;普通砖砌体脚标之间的距离应相隔4条水平灰缝,宜取250mm;多孔砖砌体脚标之间的距离应相隔3条水平灰缝,宜取270~300mm。
2 使用手持应变仪或千分表在脚标上测量砌体变形的初读数时,应测量3次,并应取其平均值。
3 在标出水平槽位置处,应剔除水平灰缝内的砂浆。水平槽的尺寸应略大于扁顶尺寸。开凿时不应损伤测点部位的墙体及变形测量脚标。槽的四周应清理平整,并应除去灰渣。
4 使用手持式应变仪或千分表在脚标上测量开槽后的砌体变形值时,应待读数稳定后再进行下一步测试工作。
5 在槽内安装扁顶,扁顶上下两面宜垫尺寸相同的钢垫板,并应连接测试设备的油路(图5.1.1)。
6 正式测试前的试加荷载测试,应符合本标准第4.3.2条第3款的规定。
7 正式测试时,应分级加荷。每级荷载应为预估破坏荷载值的5%,并应在1. 5min~2min内均匀加完,恒载2min后应测读变形值。当变形值接近开槽前的读数时,应适当减小加荷级差,并应直至实测变形值达到开槽前的读数,然后卸荷。
5.3.2 实测墙体的砌体抗压强度或受压弹性模量时,应符合下列要求:
1 在完成墙体的受压工作应力测试后,应开凿第二条水平槽,上下槽应互相平行、对齐。当选用250mm×250mm扁顶时,普通砖砌体两槽之间的距离应相隔7皮砖;多孔砖砌体两槽之间的距离应相隔5皮砖。当选用250mm×380mm扁顶时,普通砖砌体两槽之间的距离应相隔8皮砖;多孔砖砌体两槽之间的距离应相隔6皮砖。遇有灰缝不规则或砂浆强度较高而难以凿槽时,可在槽孔处取出1皮砖,安装扁顶时应采用钢制楔形垫块调整其间隙。
2 应按本标准第5.3.1条第5款的规定在上下槽内安装扁顶。
3 试加荷载,应符合本标准第4.3.2条第3款的规定。
4 正式测试时,加荷方法应符合本标准第4. 3.3条的规定。
5 当槽间砌体上部压应力小于0. 2MPa时,应加设反力平衡架后再进行测试。当槽间砌体上部压应力不小于0.2MPa时,也宜加设反力平衡架后再进行测试。反力平衡架可由两块反力板和四根钢拉杆组成。
5.3.3 当测试砌体受压弹性模量时,尚应符合下列要求:
1 应在槽间砌体两侧各粘贴一对变形测量脚标[图5. 1.1(b)],脚标应位于槽间砌体的中部。普通砖砌体脚标之间的距离应相隔4条水平灰缝,宜取250mm;多孔砖砌体脚标之间的距离应相隔3条水平灰缝,宜取270mm~300mm。测试前应记录标距值,并应精确至0.1mm。
2 正式测试前,应反复施加10%的预估破坏荷载,其次数不宜少于3次。
3 测试时,加荷方法应符合本标准第4.3.3 条的要求,并应测记逐级荷载下的变形值。
4 累计加荷的应力上限不宜大于槽间砌体极限抗压强度的50%。
条文说明
5.3.1~5.3.3 应用扁顶法,须根据测试目的采用不同的试验步骤,主要应注意下列四点:
1 仅测定墙体的受压工作应力,在测点只开凿一条水平灰缝槽,使用1个扁顶。
2 测定墙体受压工作应力和砌体抗压强度:在测点先开凿一条水平槽,使用一个扁顶测定墙体受压工作应力;然后开凿第二条水平槽,使用两个扁顶测定砌体弹性模量和砌体抗压强度。
3 仅测定墙内砌体抗压强度,同时开凿两条水平槽,使用两个扁顶。
4 测试砌体抗压强度和弹性模量时,不论σ0大小,均宜加设反力平衡架。
5.3.4 当仅测定砌体抗压强度时,应同时开凿两条水平槽,并应按本标准第5. 3.2条的要求进行测试。
5.3.5 测试记录内容应包括描绘测点布置图、墙体砌筑方式、扁顶位置、脚标位置、轴向变形值、逐级荷载下的油压表读数、裂缝随荷载变化情况简图等。
5.4 数据分析
5.4 数据分析
5.4.1 数据分析时,应根据扁顶力值的校验结果,将油压表读数换算为测试荷载值。
5.4.2 墙体的受压工作应力,应等于按本标准第5.3. 1条规定实测变形值达到开凿前的读数时所对应的应力值。
5.4.3 砌体在有侧向约束情况下的受压弹性模量,应按现行国家标准《砌体基本力学性能试验方法标准》GB/T 50129的有关规定计算;当换算为标准砌体的受压弹性模量时,计算结果应乘以换算系数0.85。
5.4.4 槽间砌体的抗压强度,应按本标准式(4.4.2)计算。
5.4.5 槽间砌体抗压强度换算为标准砌体的抗压强度,应按本标准式(4.4.3-1)和式(4.4.3-2)计算。
条文说明
5.4.1~5.4.5
扁顶法、原位轴压法中,槽间砌体的受力状态与标准砌体的受力状态有较大的差异,为了研究槽间砌体的上部垂直压应力(σ 0ij )和两测墙肢约束的影响,运用4节点平面矩形单元,对墙体应力进行了有限元分析。在此基础上,考虑到砌体的塑性变形性能,建立了两槽间砌体的计算受力图形。根据Alexander垂直于扁顶的岩石应力公式,推导得到槽间砌体的极限状态方程为

式(3)表明,σ 0ij 是强度换算系数的重要因素:上部垂直压应力σ 0ij 一方面使槽间砌体所承受的垂直荷载增大即产生不利影响;另一方面σ 0ij 又对该砌体起侧向约束作用,使槽间砌体抗压强度提高,即产生有利影响。
湖南大学的试验研究表明:扁顶法用于多孔砖砌体时,多孔砖砌体槽间砌体的破坏形态及两侧墙体的约束性能,与普通砖砌体没有明显的差异。对于普通砖砌体和多孔砖砌体,可以采用统一的强度换算系数。
试验结果分析表明,当σ 0ij /f m <0.4时,ξ 1ij 与σ 0ij 基本符合线性增长关系,而在实际工程中,σ 0ij 一般在0.4f m 以下。因此,扁顶法和原位轴压法中的强度换算系数ξ 1ij ,可以统一采用以σ 0ij 为参数的线性表达式。
对湖南大学的14组扁顶法试验数据和西安建筑科技大学、重庆市建筑科学研究院、上海市建筑科学研究院的97组原位轴压法试验数据,按照最小二乘法进行回归分析,得到ξ ij 的线性表达式,为

为应用简便,本方法建议按式(5)计算:

其相关系数为0.73。对本标准编制组统一组织的扁顶法验证性考核试验数据,按照上式计算得到理论强度换算系数ξ1ij,与实测强度换算系数ξ'1ij相比,其平均相对误差为21.8%。
自1985年至今,仅湖南大学土木系采用扁顶法已在百余幢房屋的测定中应用,其中新建房屋墙体承载力测定占80%,工程事故原因分析试验占8%,旧房加层或改造对旧房的可靠性测定占12%。
5.4.6 测区的砌体抗压强度平均值,应按本标准式(4.4.4)计算。
6 切制抗压试件法
6.1 一般规定
6 切制抗压试件法
6.1 一般规定
6.1.1 切制抗压试件法适用于推定普通砖砌体和多孔砖砌体的抗压强度。检测时,应使用电动切割机,在砖墙上切割两条竖缝,竖缝间距可取370mm或490mm,应人工取出与标准砌体抗压试件尺寸相同的试件,并应运至试验室,砌体抗压测试应按现行国家标准《砌体基本力学性能试验方法标准》GB/T 50129的有关规定执行。
条文说明
6.1.1 本方法属取样测试砌体抗压强度的方法。以往一些科研或检测单位采用人工打凿制取试件的方法,进行过该项测试工作,本标准吸取了这些单位取样试验的经验。江苏省建筑科学研究院研制了金刚砂轮切割机,使用该机器从砖墙上锯切出的抗压试件,几何尺寸较为规整,切割过程中对试件扰动相对较小,优于人工打凿制取的试件。江苏省建筑科学研究院和四川省建筑科学研究院对切制抗压试件和人工砌筑的标准砌体抗压试件进行了对比试验,总结出一套较成熟的取样试验方法。本次修订将这一方法纳入本标准。
6.1.2 在砖墙上选择切制试件的部位,应符合本标准第4. 1.2条的要求。
条文说明
6.1.2 对在砖墙上选取试件部位提出限制条件。从砖墙上切割、取出砌件抗压试件,对墙体正常受力性能产生一定的不利影响,因此对取样部位必须予以限制。具体限制部位与原位轴压法相同。
6.1.3 当宏观检查墙体的砌筑质量差或砌筑砂浆强度等级低于M2.5(含M2. 5)时,不宜选用切制抗压试件法。
条文说明
6.1.3 针对被测工程的具体情况,对本方法的适用性提出限制条件。如:施工质量较差或砌筑砂浆强度较低的工程,装修较豪华的工程,均不宜采用本方法。切割墙体过程中,难以避免的振动可能会对低强度砂浆的砌体试件产生不利影响;搬运过程中,亦可能扰动试件;冷却用水对取样现场造成较大的临时污染。选用本方法应综合考虑以上诸多不利因素。
6.2 测试设备的技术指标
6.2 测试设备的技术指标
6.2.1 切割墙体竖向通缝的切割机,应符合下列要求:
1 机架应有足够的强度、刚度、稳定性。
2 切割机应操作灵活,并应固定和移动方便。
3 切割机的锯切深度不应小于240mm。
4 切割机上的电动机、导线及其连接的接点应具有良好的防潮性能。
5 切割机宜配备水冷却系统。
条文说明
6.2.1 考虑到切制试件时,一方面要尽量减小时试件和原墙体的扰动和影响,另一方面切制的试件尺寸要满足要求,同时要便于操作,结合江苏省建筑科学研究院研制的电动切割机及其使用情况,提出切割机的技术指标和原则要求。满足本条要求的其他切割机具亦可使用。
6.2.2 测试设备应选择适宜吨位的长柱压力试验机,其精度(示值的相对误差)不应大于2%。预估抗压试件的破坏荷载值,应为压力试验机额定压力的20%~80%。
6.3 测试步骤
6.3 测试步骤
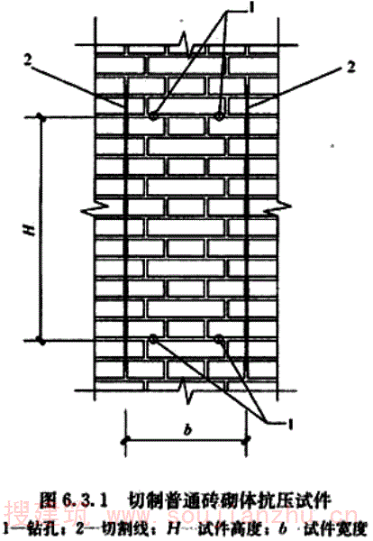
6.3.1 选取切制试件的部位后,应按现行国家标准《砌体基本力学性能试验方法标准》GB/T 50129的有关规定,确定试件高度H和试件宽度b(图6.3.1),并应标出切割线。在选择切割线时,宜选取竖向灰缝上、下对齐的部位。

条文说明
6.3.1 竖向切割线选在竖向灰缝上、下对齐的部位,可增加试件中整块砖的数量,使之尽量接近人工砌筑的标准抗压试件。
6.3.2 应在拟切制试件上、下两墙各钻2个孔,并应将拟切制试件捆绑牢固,也可采用其他适宜的临时固定方法。
6.3.3 应将切割机的锯片(锯条)对准切割线,并垂直于墙面,然后应启动切割机,并应在砖墙上切出两条竖缝。切割过程中,切割机不得偏转和移位,并应使锯片(锯条)处于连续水冷却状态。
6.3.4 应凿掉切制试件顶部一皮砖;应适当凿取试件底部砂浆,并应伸进撬棍,应将水平灰缝撬松动,然后应小心抬出试件。
6.3.5 试件搬运过程中,应防止碰撞,并应采取减小振动的措施。需要长距离运输试件时,宜用草绳等材料紧密捆绑试件。
条文说明
6.3.2~6.3.5 一般情况下,可采用8号钢丝事先捆绑试件,是预防切割过程中或从墙中取出试件时,试件松动或断成两截。当砌筑砂浆强度较高时,如大于M7.5,也可省略此步骤。 以往切割试件时,曾发生下述情况:由于切割机的锯片没有始终垂直于墙面,切制试件的两个窄侧面与两个宽侧面不垂直,分别大于或小于90°角;或留有错动的切割线,窄侧面不是一个光滑平面。这给准确量测受压截面尺寸带来困难,影响测试结果。因此,要求切割过程中,锯片应始终垂直于墙面,且不得移位。
6.3.6 试件运至试验室后,应将试件上下表面大致修理平整;应在预先找平的钢垫板上坐浆,然后应将试件放在钢垫板上;试件顶面应用1:3水泥砂浆找平。试件上、下表面的砂浆应在自然养护3d后,再进行抗压测试。测量试件受压变形值时,应在宽侧面上粘贴安装百分表的表座。
6.3.7 量测试件截面尺寸时,除应符合现行国家标准《砌体基本力学性能试验方法标准》GB/T 50129的有关规定外,在量测长边尺寸时,尚应除去长边两端残留的竖缝砂浆。
6.3.8 切制试件的抗压试验步骤,应包括试件在试验机底板上的对中方法、试件顶面找平方法、加荷制度、裂缝观察、初裂荷载及破坏荷载等检测及测试事项,均应符合现行国家标准《砌体基本力学性能试验方法标准》GB/T 50129的有关规定。
6.4 数据分析
6.4 数据分析
6.4.1 单个切制试件的抗压强度,应按本标准式(4.4.2)计算。
6.4.2 测区的砌体抗压强度平均值,应按本标准式(4.4.4)计算。
6.4.3 计算结果表示被测墙件的实际抗压强度值,不应乘以强度调整系数。
条文说明
6.4.1~6.4.3 对比试验结果表明,从砖墙上切制出的砌体抗压试件,其抗压强度低于人工砌筑的标准砌体抗压试件,造成这一差异的主要原因是:标准试件每皮为3块整砖(240mm×370mm),且水平灰缝厚度、砂浆饱满度、砖块横平竖直的程度等施工因素均优于大墙墙体;切割试件多了一条竖向灰缝(见本标准图6.3.1),每皮均有半块砖或少半块砖。但同现行国家标准《砌体结构设计规范》GB 50003的砌体抗压强度平均值公式的计算值相比,两者基本相当。从偏于安全方面考虑,对测试结果不再乘以大于1.0的修正系数。
7 原位单剪法
7.1 一般规定
7 原位单剪法
7.1 一般规定
7.1.1 原位单剪法适用于推定砖砌体沿通缝截面的抗剪强度。检测时,测试部位宜选在窗洞口或其他洞口下三皮砖范围内,试件具体尺寸应符合图7.1.1的规定。

条文说明
7.1.1 原位砌体通缝单剪法主要是依据国内以往砖砌体单剪试验方法并参照原苏联的砌体抗剪试验方法编制的。现行国家标准《砌体基本力学性能试验方法标准》GB/T 50129已将砌体单剪试验方法改为双剪试验方法,但单剪、双剪两种方法的对比试验结果通过t检验,没有显著性差异,只是前者的变异系数略大,作为一种长期使用过的经验方法,仍有其实用性。 测点选在窗洞口下部,对墙体损伤较小,便于安放检测设备,且没有上部压应力等因素的影响,测试结果直接、准确。
7.1.2 试件的加工过程中,应避免扰动被测灰缝。
7.1.3 测试部位不应选在后砌窗下墙处,且其施工质量应具有代表性。
条文说明
7.1.3 加工、制备试件过程中,被测灰缝如发生明显的扰动,应舍去此试件。
7.2 测试设备的技术指标
7.2 测试设备的技术指标
7.2.1 测试设备应包括螺旋千斤顶或卧式液压千斤顶、荷载传感器及数字荷载表等。试件的预估破坏荷载值应为千斤顶、传感器最大测量值的20%~80%。
条文说明
7.2.1 试件的预估破坏荷载值,可按试探性试验确定,也可按现行国家标准《砌体结构设计规范》GB 50003的公式计算。
7.2.2 检测前,应标定荷载传感器及数字荷载表,其示值相对误差不应大于2%。
条文说明
7.2.2 本方法所用检测仪表,使用频率往往较低,经常是放置一段较长时间后再次使用,故要求每次进行工程检测前,应进行标定。
7.3 测试步骤
7.3 测试步骤
7.3.1 在选定的墙体上,应采用振动较小的工具加工切口,现浇钢筋混凝土传力件(图7.3. 1)的混凝土强度等级不应低于C15。

条文说明
7.3.1 使用手提切片砂轮或木工锯在墙体上开凿切口,对墙体扰动很小,可不考虑其不利影响。
7.3.2 测量被测灰缝的受剪面尺寸,应精确至1mm。
7.3.3 安装千斤顶及测试仪表,千斤顶的加力轴线与被测灰缝顶面应对齐(图7.3.1)。
条文说明
7.3.2、7.3.3 谨慎地作好施加荷载前的各项工作,尤其是正确地安装加荷系统及测试仪表,是获得准确测试结果的必要保证。千斤顶加力轴线严格对准被测灰缝的上表面,可减小附加穹矩和撕拉应力,或避免灰缝处于压应力状态。
7.3.4 加荷时应匀速施加水平荷载,并应控制试件在2min~5min内破坏。当试件沿受剪面滑动、千斤顶开始卸荷时,应判定试件达到破坏状态;应记录破坏荷载值,并应结束测试;应在预定剪切面(灰缝)破坏,测试有效。
条文说明
7.3.4 编写本条系参照现行国家标准《砌体基本力学性能试验方法标准》GB/T 50129的规定。
7.3.5 加荷测试结束后,应翻转已破坏的试件,检查剪切面破坏特征及砌体砌筑质量,并应详细记录。
条文说明
7.3.5 检查剪切面破坏特征及砌体砌筑质量,有利于对试验结果进行分析。
7.4 数据分析
7.4 数据分析
7.4.1 数据分析时,应根据测试仪表的校验结果,进行荷载换算,并应精确至10N。
7.4.2 砌体的沿通缝截面抗剪强度应按下式计算:

7.4.3 测区的砌体沿通缝截面抗剪强度平均值,应按下式计算:

条文说明
7.4.1~7.4.3 根据试验结果所进行的抗剪强度计算属常规计算。
8 原位双剪法
8.1 一般规定
8 原位双剪法
8.1 一般规定
8.1.1 原位双剪法(图8. 1.1)应包括原位单砖双剪法和原位双砖双剪法。原位单砖双剪法适用于推定各类墙厚的烧结普通砖或烧结多孔砖砌体的抗剪强度,原位双砖双剪法仅适用于推定240mm厚墙的烧结普通砖或烧结多孔砖砌体的抗剪强度。检测时,应将原位剪切仪的主机安放在墙体的槽孔内,并应以一块或两块并列完整的顺砖及其上下两条水平灰缝作为—个测点(试件)。

条文说明
8.1.1 原位单砖双剪法是陕西省建筑科学研究院研究的砌体抗剪强度检测方法,原位双砖双剪法是西安建筑科技大学、陕西省建筑科学研究院、上海市建筑科学研究院共同研究的砌体抗剪强度检测方法。 本标准2000年颁布时仅适用于烧结普通砖砌体,标准颁布以来在烧结普通砖砌体上已经取得较好的效果。近年来西安建筑科技大学、重庆市建筑科学研究院、上海市建筑科学研究院等单位进行了一系列多孔砖砌体的对比试验,表明原位双剪法亦可应用于多孔砖砌体的原位抗剪强度测试,因此本标准修订时扩大了原位双剪法的应用范围。对于其他各种块材的同尺寸规格的普通砖和多孔砖砌体,有待补充一些基本试验数据,才可应用。但就其原理而言,它也是适用的。 与测试砂浆的强度间接推算砌体抗剪强度相比,测试结果除能反映砂浆强度对砌体抗剪强度的影响外,还反映了砌筑质量对砌体抗剪强度的影响,这是原位双剪法的优点。
8.1.2 原位双剪法宜选用释放或可忽略受剪面上部压应力σ 0 作用的测试方案;当上部压应力σ 0 较大且可较准确计算时,也可选用在上部压应力σ 0 作用下的测试方案。
条文说明
8.1.2
应用原位双剪法时,如条件允许,宜优先采用释放上部压应力σ 0 或布点时受剪试件上部砖皮数较少、σ 0 可忽略的试验方案,该试验方案可避免由于σ 0 引起的附加误差,但释放应力时,对砌体损伤稍大。当采用有上部压应力σ 0 作用下的试验方案时,可按理论计算σ 0 值。
8.1.3 在测区内选择测点,应符合下列要求:
1 测区应随机布置n 1 个测点,对原位单砖双剪法,在墙体两面的测点数量宜接近或相等。
2 试件两个受剪面的水平灰缝厚度应为8mm~12mm。
3 下列部位不应布设测点:
1)门、窗洞口侧边120mm范围内;
2)后补的施工洞口和经修补的砌体;
3)独立砖柱。
4 同一墙体的各测点之间,水平方向净距不应小于1.5m, 垂直方向净距不应小于0.5m,且不应在同一水平位置或纵向位置。
条文说明
8.1.3 墙体的正、反手砌筑面,施工质量多有差异,故规定正反手砌筑面的测点数量宜相近或相等。 为保证墙体能够提供足够的反力和约束,对洞口边试件的布设作了限制。为确保结构安全,严禁在独立砖柱和窗间墙上设置测点。后补的施工洞口和经修补的砌体无代表性,故规定不应在其上设置测点。 同原标准相比,同一墙体的各测点水平方向的净距由0.62m改为1.5m,且各测点不应在同一水平位置或轴向位置。这些规定主要是为原位剪切仪提供足够的支座反力,避免支座处的砌体先于试件破坏,以及测点太密对墙体造成较大损伤。
8.2 测试设备的技术指标
8.2 测试设备的技术指标
8.2.1 原位剪切仪的主机应为一个附有活动承压钢板的小型千斤顶,其成套设备如图8.2.1所示。

条文说明
8.2.1 原位剪切仪的主机是一个便携式千斤顶,其他(如油泵、压力表、油管)则为商品部件,易于拆卸和组装,便于运输、保管和使用。
8.2.2 原位剪切仪的主要技术指标应符合表8.2.2 的规定。

条文说明
8.2.2 对于现场检测仪器,示值相对误差为±3%是一个比较实用的指标。砌体结构工程的抗剪强度变异系数一般较大,在这种情况下,仪器的测量能力指数有时可达10:1,富余量偏大,但考虑到测量过程中的其他因素(如块材尺寸、上部垂直压力等)这个富余也是必要的。 原位剪切仪已由陕西省建筑科学研究院研制成功并可批量生产,但其应有的计量校准周期尚无确切资料。参考一般同类仪器,可暂定半年为其检验周期。
8.3 测试步骤
8.3 测试步骤
8.3.1 安放原位剪切仪主机的孔洞,应开在墙体边缘的远端或中部。当采用带有上部压应力σ 0 作用的测试方案时,应按图8.1.1所示制备出安放主机的孔洞,并应清除四周的灰缝。原位单砖双剪试件的孔洞截面尺寸,普通砖砌体不得小于115mm×65mm;多孔砖砌体不得小于115mm×110mm。原位双砖双剪试件的孔洞截面尺寸,普通砖砌体不得小于240mm×65mm;多孔砖砌体不得小于240mm×110mm;应掏空、清除剪切试件另一端的竖缝。
条文说明
8.3.1 本条要求放置主机的孔洞应开在离砌体边缘远端,其目的是要保证墙体提供足够的反力和约束。孔洞尺寸以能安放原位剪切仪主机及其附件为准。
8.3.2 当采用释放试件上部压应力σ 0 的测试方案时,尚应按图8.3.2 所示,掏空试件顶部两皮砖之上的一条水平灰缝,掏空范围,应由剪切试件的两端向上按45°角扩散至灰缝4,掏空长度应大于620mm,深度应大于240mm。

条文说明
8.3.2 掏空的灰缝4(图8.3.2),必须满足完全释放上部压应力的需要,以确保测试精度。
8.3.3 试件两端的灰缝应清理干净。开凿清理过程中,严禁扰动试件;发现被推砖块有明显缺棱掉角或上、下灰缝有松动现象时,应舍去该试件。被推砖的承压面应平整,不平时应用扁砂轮等工具磨平。
条文说明
8.3.3 试件块材的完整性及上、下灰缝质量是影响测试结果的主要因素,为了减小测试附加误差,必须严加控制这两个因素。
8.3.4 测试时,应将剪切仪主机放入开凿好的孔洞中(图8.3.2),并应使仪器的承压板与试件的砖块顶面重合,仪器轴线与砖块轴线应吻合。开凿孔洞过长时,在仪器尾部应另加垫块。
条文说明
8.3.4 原位剪切仪主机轴线与被推砖轴线的吻合程度,对试验结果将产生较大影响,故要求两者轴线重合。
8.3.5 操作剪切仪,应匀速施加水平荷载,并应直至试件和砌体之间产生相对位移,试件达到破坏状态。加荷的全过程宜为1min~3min。
条文说明
8.3.5 原位双剪法的加荷速度,是引自现行国家标准《砌体基本力学性能试验方法标准》GB/T 50129中的砌体通缝抗剪强度试验方法。
8.3.6 记录试件破坏时剪切仪测力计的最大读数,应精确至0.1个分度值。采用无量纲指示仪表的剪切仪时,尚应按剪切仪的校验结果换算成以N为单位的破坏荷载。
8.4 数据分析
8.4 数据分析
8.4.1 烧结普通砖砌体单砖双剪法和双砖双剪法试件沿通缝截面的抗剪强度,应按下式计算:

8.4.2 烧结多孔砖砌体单砖双剪法和双砖双剪法试件沿通缝截面的抗剪强度,应按下式计算:

8.4.3 测区的砌体沿通缝截面抗剪强度平均值,应按本标准式(7.4.3) 计算。
条文说明
8.4.1~8.4.3 按照原位单砖双剪法的试验模式,当进行试验的墙体厚度大于砖宽时,参加工作的剪切面除试件的上、下水平灰缝外,尚有:沿砌体厚度方向相邻竖向灰缝作为第三个剪切面参加工作;在不释放试件上部垂直压应力时,上部垂直压应力对测试结果的影响;原位单砖双剪法试件尺寸为《砌体基本力学性能试验方法标准》GB/T 50129试件的1/3,因此其结果含有尺寸效应的影响,且其受力模式与标准试件也有所不同。为此,开展了一系列的对比试验,以确定它们各自的修正系数。 根据陕西省建筑科学研究院的研究成果,当有上部压应力作用时,按剪摩擦破坏模式考虑正应力对抗剪强度的影响,由此得到正文烧结普通砖砌体的推定公式(8.4.1)。式(8.4.1)中,上部压应力作用下的摩擦系数0.70是按现行《砌体结构设计规范》GB 50003及相关砌体抗剪试验资料取用的。 采用原位双砖双剪法的试验时,参加工作的剪切面除试件的上、下水平灰缝外,尚有:在不释放试件上部垂直压应力时,上部垂直压应力时对测试结果的影响;原位双砖双剪法试件尺寸为《砌体基本力学性能试验方法标准》GB/T 50129试件的2/3,因此其结果含有尺寸效应的影响,且其受力模式与标准试件也有所不同。采用双砖双剪测试可以排除两个顺砖间竖向灰缝砂浆的作用,但由于竖缝砂浆多不饱满且因砂浆的收缩,其对抗剪强度的影响有限,根据陕西省建筑科学研究院的研究成果,试件顺砖竖缝的影响在5%之内,该误差在砌件抗剪强度的离散范围之内,因此,根据西安建筑科技大学、上海市建筑科学研究院和陕西省建筑科学研究院的试验研究成果,并偏于安全,确定对烧结普通砖砌体仍可采用正文中式(8.4.1)计算。 对烧结多孔砖砌体,依据陕西省建科院近年进行的烧结多孔砖砌体单砖双剪法对比试验,没有上部压应力时,抗剪强度推定公式为:
,双砖双剪法为:
。鉴于修正系数系与多孔砖砌体标准试件的通缝抗剪强度比较得到,其修正系数与普通砖砌体十分接近,说明尺寸效应与受力模式对抗剪强度的影响,两种砌体没有显著差异。但对多孔砖砌体,推定的抗剪强度包含孔洞中砂浆的销键作用,考虑到我国规范对普通砖砌体和多孔砖砌体采用相同抗剪强度计算公式,根据试验结果,多孔砖砌体的通缝抗剪强度大约是普通砖砌体的(1.1~1.2)倍,为与我国规范一致,也偏于安全,并与普通砖砌体一样,不区分单砖双剪和双砖双剪法,试验数据统一分析,修正系数为0.326,将修正系数除以1.12,以使推定的抗剪强度与普通砖砌体大致相当,由此得到正文烧结多孔砖砌体的推定公式(8.4.2)。
9 推出法
9.1 一般规定
9 推 出 法
9.1 一般规定
9.1.1 推出法(图9.1.1)适用于推定240mm厚烧结普通砖、烧结多孔砖、蒸压灰砂砖或蒸压粉煤灰砖墙体中的砌筑砂浆强度,所测砂浆的强度宜为1MPa~15MPa。检测时,应将推出仪安放在墙体的孔洞内。推出仪应由钢制部件、传感器、推出力峰值测定仪等组成。

条文说明
9.1.1 本条所定义的推出法,主要测定推出力和砂浆饱满度两项参数,据此推定砌筑砂浆抗压强度,它综合反映了砌筑砂浆的质量状况和施工质量水平,与我国现行的施工规范及工程质量评定标准相结合,较为适合我国国情。该方法是河南省建筑科学研究院研究的,并编制了河南省地方标准,在此基础上,经过验证性考核试验,纳入了本标准。 建立推出法测强曲线时,选用了烧结普通砖和灰砂砖,故对其他砖尚需通过试验验证。本条规定砂浆测强范围为1.0MPa~15MPa,超过此范围时,绝对误差较大。
9.1.2 选择测点应符合下列要求:
1 测点宜均匀布置在墙上,并应避开施工中的预留洞口。
2 被推丁砖的承压面可采用砂轮磨平,并应清理干净。
3 被推丁砖下的水平灰缝厚度应为8mm~12mm。
4 测试前,被椎丁砖应编号,并应详细记录墙体的外观情况。
条文说明
9.1.2 在建立测强曲线时,灰缝厚度按现行国家标准《砌体结构工程施工质量验收规范》GB 50203的规定,控制在8mm~12mm之间进行对比试验。据有关资料介绍,不同灰缝厚度对推出力有影响。因此本条规定,现场测试时,所选推出砖下的灰缝厚度应在8mm~12mm之间。
9.2 测试设备的技术指标
9.2 测试设备的技术指标
9.2.1 推出仪的主要技术指标应符合表9.2.1 的要求。

条文说明
9.2.1 砂浆强度在15MPa以下时,最大推出力一般均小于30kN,研制该套测试设备时,按极限推力为35kN进行设计;为安全起见,规定加荷螺杆施加的额定推力为30kN。 推出被测丁砖时,位移是很小的,规定加荷螺杆行程不小于80mm,主要是考虑测试时,现场安装方便。
9.2.2 力值显示仪器或仪表应符合下列要求:
1 最小分辨值应为0. 05kN,力值范围应为0kN~30kN。
2 应具有测力峰值保持功能。
3 仪器读数显示应稳定,在4h内的读数漂移应小于0.05kN。
条文说明
9.2.2 仪器的峰值保持功能,可使抗剪破坏时的最大推力保持下来,从而提高测试精度,减少人为读数误差。 仪器性能稳定性是准确测量数据的基础,一般要求能连续工作4h以上。校验推出力峰值测定仪时,在4h内读数漂移小于0.05kN,即可认为仪器的稳定性能良好。
9.3 测试步骤
9.3 测试步骤
9.3.1 取出被推丁砖上部的两块顺砖(图9.3.1),应符合下列要求:
1 应使用冲击钻在图9.3.1所示A点打出约40mm的孔洞。
2 应使用锯条自A至B点锯开灰缝。
3 应将扁铲打入上一层灰缝,并应取出两块顺砖。
4 应使用锯条锯切被推丁砖两侧的竖向灰缝,并应直至下皮砖顶面。
5 开洞及清缝时,不得扰动被推丁砖。

条文说明
9.3.1 推出法推定砌筑砂浆抗压强度是一种在墙上直接测试的原位检测技术,本条对加力测试前的准备工作步骤作了较详细而明确的规定。
9.3.2 安装推出仪(图9.1.1), 应使用钢尺测量前梁两端与墙面距离,误差应小于3mm。传感器的作用点,在水平方向应位于被推丁砖中间;铅垂方向距被推丁砖下表面之上的距离,普通砖应为15mm,多孔砖应为40mm。
条文说明
9.3.2 传感器作用点的位置直接影响被推出砖下灰缝的受力状况,本方法在试验研究时,均是使传感器的作用点水平方向位于被推出砖中间,铅垂方向位于被推出砖下表面之上15mm处进行推出试验,故在现场测试时应与此要求保持一致,横梁两端和墙之间的距离可通过挂钩上的调整螺钉进行调整。
9.3.3 旋转加荷螺杆对试件施加荷载时,加荷速度宜控制在5kN/min。当被推丁砖和砌体之间发生相对位移时,应认定试件达到破坏状态,并应记录推出力N ij 。
条文说明
9.3.3 试验表明,加荷速度过快会使试验数据偏高,因此规定加荷速度控制在5kN/min左右,以提高测试数据的准确性。
9.3.4 取下被推丁砖时,应使用百格网测试砂浆饱满度B ij 。
条文说明
9.3.4 本条规定的推出砖下砂浆饱满度的测试方法及所用的工具,按现行国家标准《砌体结构工程施工质量验收规范》GB 50203的有关规定执行。
9.4 数据分析
9.4 数据分析
9.4.1 单个测区的推出力平均值,应按下式计算:

9.4.2 测区的砂浆饱满度平均值,应按下式计算:

条文说明
9.4.1、9.4.2 在建立推出法测强曲线时,是以测区的推出力均值Ni
及砂浆饱满度均值B i 进行统计分析的,这两条的规定主要是为了和建立曲线时的试验协调一致。
目前我国建筑工程所用的普通砖主要为烧结砖和蒸压砖两大类,常见的烧结砖为机制黏土砖,蒸压砖为蒸压灰砂砖和蒸压粉煤灰砖。对比试验结果表明,蒸压砖的“f 2 -N”曲线和黏土砖“f 2 -N”曲线存在显著差异,本标准第9.4.3条中的计算公式是以黏土砖为基准建立起来的,对蒸压砖N i 值尚应乘以修正系数后,方可代入式(9.4.3-1)进行计算。
9.4.3 当测区的砂浆饱满度平均值不小于0.65时,测区的砂浆强度平均值,应按下列公式计算:


条文说明
9.4.3 在测试技术和数据处理方法基本一致的条件下,通过试验室对比试验及现场对比试验,共计198组试验数据,经统计分析而得出曲线,最后归纳为式(9.4.3-1),该式的相对标准差sr=20.9%,平均相对误差sr=16.7%。 采用推出法测试普通砖砌体和多孔砖砌体时,系采用同一种推出仪,因多孔砖块体较厚,推出仪的荷载作用线上移,增加了被测砖块的上翘分力,导致推出力值降低。对比试验表明,多孔砖砌体的砂浆销键作用不明显。因此,推出法测试烧结普通砖砌体和烧结多孔砖砌体,采用同一计算公式。
9.4.4 当测区的砂浆饱满度平均值小于0.65时,宜选用其他方法推定砂浆强度。
10 筒压法
10.1 一般规定
10 筒 压 法
10.1 一般规定
10.1.1 筒压法适用于推定烧结普通砖或烧结多孔砖砌体中砌筑砂浆的强度,不适用于推定高温、长期浸水、遭受火灾、环境侵蚀等砌筑砂浆的强度。检测时,应从砖墙中抽取砂浆试样,并应在试验室内进行筒压荷载测试,应测试筒压比,然后换算为砂浆强度。
条文说明
10.1.1 筒压法是由山西四建集团有限公司等十个单位试验研究成功的测试砂浆强度方法,并编制了山西省地方标准。在此基础上,经过验证性考核试验,纳入了本标准。 山西省建四公司和重庆市建筑科学研究院对筒压法是否适用于烧结多孔砖砌体中的砌筑砂浆检测问题,分别进行了对比试验,结果证明,筒压法现有计算公式同样适用。为此,将筒压法的适用范围扩大至烧结多孔砖砌体。 本方法对遭受火灾、环境侵蚀的砌筑砂浆未进行试验研究,故规定不得在这些条件下应用。
10.1.2 筒压法所测试的砂浆品种及其强度范围,应符合下列要求:
1 砂浆品种应包括中砂、细砂配制的水泥砂浆,特细砂配制的水泥砂浆,中砂、细砂配制的水泥石灰混合砂浆,中砂、细砂配制的水泥粉煤灰砂浆,石灰石质石粉砂与中砂、细砂混合配制的水泥石灰混合砂浆和水泥砂浆。
2 砂浆强度范围应为2.5MPa~20MPa。
条文说明
10.1.2 本条明确规定了筒压法的适用范围,应用本方法时,使用范围不得外延。当超过此范围时,筒压法的测试误差较大。
10.2 测试设备的技术指标
10.2 测试设备的技术指标
10.2.1 承压筒(图10.2.1)可用普通碳素钢或合金钢制作,也可用测定轻骨料筒压强度的承压筒代替。

10.2.2 水泥跳桌技术指标,应符合现行国家标准《水泥胶砂流动度测定方法》GB/T 2419的有关规定。
10.2.3 其他设备和仪器应包括50kN~100kN压力试验机或万能试验机;砂摇筛机;干燥箱;孔径为5mm、10mm、15mm(或边长为4.75mm、9.5mm、16mm)的标准砂石筛(包括筛盖和底盘);称量为1000g、感量为0. 1g的托盘天平。
条文说明
10.2.1~10.2.3 本方法所用的设备、仪器、工具,一般建材试验室均已具备。其中的承压筒,可参照正文中的图10.2.1,自行加工。以往测试时,曾出现过承压盖受力变形的问题,此次修订,适当增大了承压盖的截面尺寸,提高了其刚度和整体牢固性。
10.3 测试步骤
10.3 测试步骤
10.3.1 在每一测区,应从距墙表面20mm以里的水平灰缝中凿取砂浆约4000g,砂浆片(块)的最小厚度不得小于5mm。各个测区的砂浆样品应分别放置并编号,不得混淆。
条文说明
10.3.1 为保证所取砂浆试样的质量较为稳定,避免外部环境及碳化等因素的影响,提高制备粒径大于5mm试样的成品率,规定只取距墙面20mm以里的水平灰缝的砂浆,且砂浆片厚度不得小于5mm。取样的具体数量,可视砂浆强度而定,高者可少取,低者宜多取,以足够制备3个标准试样并略有富余为准。
10.3.2 使用手锤击碎样品时,应筛取5mm~15mm的砂浆颗粒约3000g,应在105℃±5℃的温度下烘干至恒重,并应待冷却至室温后备用。
条文说明
10.3.2 对样品进行烘干,是为消除砂浆湿度时强度的影响,亦利于筛分。
10.3.3 每次应取烘干样品约1000g,应置于孔径5mm、10mm、15mm(或边长4.75mm、 9.5mm、16mm)标准筛所组成的套筛中,应机械摇筛2min或手工摇筛1.5min;应称取粒级5mm~10mm(4.75mm~9.5mm)和10mm~15mm(9.5mm~16mm)的砂浆颗粒各250g,混合均匀后作为一个试样;应制备三个试样。
条文说明
10.3.3 为便于筛分,每次取烘干试样1kg。筛分分为:本条中筒压试验前的分级筛分和本标准第10.3.6条筒压试验后的分级筛分。每次筛分的时间对测定筒压比值均有影响。筛分时间应取不同品种、不同强度的砂浆筛分时,均能较快稳定下来的时间。经测定,用YS-2型摇摆式筛分机需120s,人工摇筛需90s。为简化操作,增强可比性,将上述两类筛分时间予以统一,取同一值,但人工筛分,人为影响因素较大,尤其对低强砂浆,应注意摇筛强度保持一致。具备摇筛机的试验室,应选用机械摇筛。 承压筒内装入的试样数量,对测试筒压比值有一定影响,经对比试验分析,确定每个标准试样数量500g。 每个测区取3个有效标准试样,可避免测试值的单向偏移,并减小抽样总体的变异系数。 山西四建集团有限公司使用圆孔筛和方孔筛对筒压试验进行了对比试验,结果证明无明显区别。此次修订增加了可使用方孔标准筛的规定。
10.3.4 每个试样应分两次装入承压筒。每次宜装1/2,应在水泥跳桌上跳振5次。第二次装料并跳振后,应整平表面。
无水泥跳桌时,可按砂、石紧密体积密度的测试方法颠击密实。
条文说明
10.3.4 为减小装料和施压前的搬运对装料密实程度的影响,制定了两次装料,两次振动的程序,使承压前的筒内试样的紧密程度基本一致。
10.3.5 将装试样的承压筒置于试验机上时,应再次检查承压筒内的砂浆试样表面是否平整,稍有不平时,应整平;应盖上承压盖,并应按0.5kN/s~1.0kN/s加荷速度或20s~40s内均匀加荷至规定的筒压荷载值后,立即卸荷。不同品种砂浆的筒压荷载值,应符合下列要求:
1 水泥砂浆、石粉砂浆应为20kN。
2 特细砂水泥砂浆应为10kN。
3 水泥石灰混合砂浆、粉煤灰砂浆应为10kN。
条文说明
10.3.5 筒压荷载较低时,砂浆强度越高则筒压比值越拉不开档次;筒压荷载较高时,砂浆强度越低,则筒压比值越拉不开档次。经过试验值的统计分析,对不同品种砂浆分别选用了不同的筒压荷载值。本条所定的筒压荷载值,在常用砂浆强度范围内,是合适的。 关于加荷速度,经检测,在20s~70s内加荷至规定的筒压荷载时,对筒压比值的影响并不显著;恒荷时间,在0s~60s范围内,对筒压比值亦无显著性影响。本条关于加荷制度的规定,是基于这两方面的试验结果。
10.3.6 施加荷载过程中,出现承压盖倾斜状况时,应立即停止测试,并应检查承压盖是否受损(变形),以及承压筒内砂浆试样表面是否平整。出现承压盖受损(变形)情况时,应更换承压盖,并应重新制备试样。
10.3.7 将施压后的试样倒入由孔径5(4.75)mm和10(9.5)mm标准筛组成的套筛中时,应装入摇筛机摇筛2min或人工摇筛1.5min,并应筛至每隔5s的筛出量基本相符。
条文说明
10.3.7 人工摇筛的人为影响因素较大,亦如前述,对低强砂浆,在筛分过程中,由于颗粒之间及颗粒与筛具之间的摩擦碰撞,不断产生粒径小于5mm的颗粒,不能像砂石筛分那样精确定量。
10.3.8 应称量各筛筛余试样的重量,并应精确至0.1g,各筛的分计筛余量和底盘剩余量的总和,与筛分前的试样重量相比,相对差值不得超过试样重量的0.5%; 当超过时,应重新进行测试。
条文说明
10.3.8 筛分前后,试样量的相对差值若超过0.5%,则试验工作可能有误,对检测结果(筒压比)有影响。
10.4 数据分析
10.4 数据分析
10.4.1 标准试样的筒压比,应按下式计算:

10.4.2 测区的砂浆筒压比,应按下式计算:

条文说明
10.4.1、10.4.2 筒压比以5mm筛的累计筛余比值表示,可较为准确地反映砂浆颗粒的破损程度,据此推定砂浆强度。破损程度大,砂浆强度低;破损程度小,砂浆强度高。
10.4.3 测区的砂浆强度平均值应按下列公式计算:


条文说明
10.4.3 本条原所列式(10.4.3-1)、式(10.4.3-3)、式(10.4.3-4)、式(10.4.3-5)四个公式,系根据试验结果,经1861个不同条件组合的回归优选确定的,相关指数均在0.85以上。 依据南充市建设工程质量检测中心和重庆市建筑科学研究院分别进行的试验研究,共同进行归纳分析,得出筒压法检测特细砂水泥砂浆强度的计算式(10.4.3-2),本次修订纳入了该公式。
11 砂浆片剪切法
11.1 一般规定
11 砂浆片剪切法
11.1 一般规定
11.1.1 砂浆片剪切法(图11. 1.1)适用于推定烧结普通砖或烧结多孔砖砌体中的砌筑砂浆强度。检测时,应从砖墙中抽取砂浆片试样,并应采用砂浆测强仪测试其抗剪强度,然后换算为砂浆强度。

11.1.2 从每个测点处,宜取出两个砂浆片,应一片用于检测、一片备用。
条文说明
11.1.1、11.1.2 砂浆片剪切法是宁夏回族自治区建筑科学研究院研究的一种取样测试方法,通过测试砂浆片的抗剪强度,换算为相当于标准砂浆试块的抗压强度。 试验研究表明,砂浆品种、砂子粒径、龄期等因素对本方法的测试无显著影响。据此规定了本方法的适用范围。
11.2 测试设备的技术指标
11.2 测试设备的技术指标
11.2.1 砂浆测强仪的主要技术指标应符合表11. 2.1的要求。


11.2.2 砂浆测强标定仪的主要技术指标应符合表11.2.2的要求。

条文说明
11.2.1、11.2.2 砂浆片属小试件,破坏荷载较小,对力值精度、刀片定位精度要求较高,为此宁夏回族自治区建筑科学研究院研制了定型仪器。 砌筑砂浆测强仪采用液压系统施加试验荷载,示值系统为量程0MPa~0.16MPa、0MPa~1MPa的带有被动针的0.4级压力表,该仪器重量轻、体积小,测强范围广,测试方便,可携带至现场检测,使砂浆片剪切法具有现场检测与取样检测两方面的优点。 砌筑砂浆测强标定仪系砌筑砂浆测强仪出厂标定、使用中定期校验的专用仪器;其计量标准器系三等标准测力计(压力环),需经计量部门定期检验。
11.3 测试步骤
11.3 测试步骤
11.3.1 制备砂浆片试件,应符合下列要求:
1 从测点处的单块砖大面上取下的原状砂浆大片,应编号,并应分别放入密封袋内。
2 一个测区的墙面尺寸宜为0.5m×0.5m。同一个测区的砂浆片,应加工成尺寸接近的片状体,大面、条面应均匀平整,单个试件的各向尺寸,厚度应为7mm~15mm,宽度应为15mm~50mm,长度应按净跨度不小于22mm确定(图11.1.1)。
3 试件加工完毕,应放入密封袋内。
11.3.2 砂浆试件含水率,应与砌体正常工作时的含水率基本一致。试件呈冻结状态时,应缓慢升温解冻。
条文说明
11.3.1、11.3.2 将砂浆片的大面、条面加工成规则形状,有利于试件正常受力,且便于在条形钢块与下刀片刃口面上平稳放置,以及试件与上下刀片刃口面良好的接触。 建筑物基础与上部结构两部分比较,砌体内砂浆的含水率往往有较大差异。中、低强度的砂浆,软化系数较大且非定值。为了准确测试砂浆在结构部位受力时的实际强度,应考虑含水率这一影响因素。砂浆试件存于密封袋内,避免水分散失,使其含水率接近工程实际情况。对于±0.000以上主体结构的砌筑砂浆片试件,一般可不考虑含水率这一影响因素。 砂浆片试件尺寸在本条规定的范围内,其宽度和厚度(即受剪面积)对试验结果没有不良的影响。
11.3.3 砂浆片试件的剪切测试,应符合下列程序:
1 应调平砂浆测强仪,并应使水准泡居中;
2 应将砂浆片试件置于砂浆测强仪内(图11. 1.1),并应用上刀片压紧;
3 应开动砂浆测强仪,并应对试件匀速连续施加荷载,加荷速度不宜大于10N/s,直至试件破坏。
条文说明
11.3.3 加荷速度过快,可能造成试件被冲击破坏,测试结果失真。低强砂浆可选用较小的加荷速度,高强砂浆的加荷速度亦不宜大于10N/s。
11.3.4 试件未沿刀片刃口破坏时,此次测试应作废,应取备用试件补测。
11.3.5 试件破坏后,应记读压力表指针读数,并应换算成剪切荷载值。
11.3.6 用游标卡尺或最小刻度为0.5mm的钢板尺量测试件破坏截面尺寸时,应每个方向量测两次,并应分别取平均值。
11.4 数据分析
11.4 数据分析
11.4.1 砂浆片试件的抗剪强度,应按下式计算:

条文说明
11.4.1 一次连续砌墙高度对灰缝中的砂浆紧密程度有一定影响,即初始压应力对砂浆片强度有影响。但在工程的检测工作中,多数情况无法准确判定压砖皮数。这时,施工时砌体的初始压力修正系数可取0.95。该值大体对应砂浆试件在砌体中承受6皮砖的初始压力。工程中的多数灰缝如此。
11.4.2 测区的砂浆片抗剪强度平均值,应按下式计算:

11.4.3 测区的砂浆抗压强度平均值,应按下式计算:

11.4.4 当测区的砂浆抗剪强度低于0.3MPa时,应对本标准式(11.4.3)的计算结果乘以表11.4.4的修正系数。

条文说明
11.4.2~11.4.4 按照本方法所限定的试验条件,对比试验表明,砂浆试块强度与砂浆片抗剪值之间具有较好的线性相关关系,经回归分析并简化后,即为式(11.4.3)。
12 砂浆回弹法
12.1 一般规定
12 砂浆回弹法
12.1 一般规定
12.1.1 砂浆回弹法适用于推定烧结普通砖或烧结多孔砖砌体中砌筑砂浆的强度,不适用于推定高温、长期浸水、遭受火灾、环境侵蚀等砌筑砂浆的强度。检测时,应用回弹仪测试砂浆表面硬度,并应用浓度为1%~2%的酚酞酒精溶液测试砂浆碳化深度,应以回弹值和碳化深度两项指标换算为砂浆强度。
条文说明
12.1.1 砂浆回弹法是四川省建筑科学研究院研究的砂浆强度无损检测方法,并编制了四川省地方标准。通过试验研究和验证性考核试验,证明砂浆回弹值同砂浆强度及碳化深度有较好的相关性,故将此方法纳入本标准。 原标准颁布施行后,重庆市建筑科学研究院、山东省建筑科学研究院均开展了回弹法检测多孔砖砌体中的砂浆强度的研究,山东省建筑科学研究院,四川省建筑科学研究院还分别在四川省建筑科学研究院进行了验证性试验。根据以上试验资料综合分析,回弹法检测烧结多孔砖砌体中的砂浆强度,同检测烧结普通砖砌体中的砂浆强度,无显著性区别,故将该法的应用范围扩大至烧结多孔砖砌体。 本方法对经受高温、长期浸水、冰冻、化学侵蚀、火灾等情况的砖砌体,以及其他块材的砌体,未进行专门研究,故不适用。
12.1.2 检测前,应宏观检查砌筑砂浆质量,水平灰缝内部的砂浆与其表面的砂浆质量应基本一致。
12.1.3 测位宜选在承重墙的可测面上,并应避开门窗洞口及预埋件等附近的墙体。墙面上每个测位的面积宜大于0.3m 2 。
条文说明
12.1.3 测位是回弹测强中的最小测量单位,相当于其他检测方法中的测点,类似于现行行业标准《回弹法检测混凝土抗压强度技术规程》JGJ/T 23的测区。 墙面上的部分灰缝,由于灰缝较薄或不够饱满等原因,不适宜于布置弹击点,因此一个测位的墙面面积宜大于0.3m2。
12.1.4 墙体水平灰缝砌筑不饱满或表面粗糙且无法磨平时,不得采用砂浆回弹法检测砂浆强度。
12.2 测试设备的技术指标
12.2 测试设备的技术指标
12.2.1 砂浆回弹仪的主要技术性能指标应符合表12.2.1 的要求,其示值系统宜为指针直读式。

12.2.2 砂浆回弹仪的检定和保养,应按国家现行有关回弹仪的检定标准执行。
12.2.3 砂浆回弹仪在工程检测前后,均应在钢砧上进行率定测试。
条文说明
12.2.1~12.2.3 四川省建筑科学研究院与有关建筑仪器生产厂合作,研制出适宜于砂浆测强用的专用回弹仪,其结构合理,性能稳定可靠,符合现行国家标准《回弹仪》GB/T 9138的规定,已经批量生产,投放市场。 回弹仪的技术性能是否稳定可靠,是影响砂浆回弹测强准确性的关键因素之一,因此,回弹仪必须符合产品质量要求,并获得专业质检机构检验合格后方可使用;使用过程中,应定期检验、维修与保养。
12.3 测试步骤
12.3 测试步骤
12.3.1 测位处应按下列要求进行处理:
1 粉刷层、勾缝砂浆、污物等应清除干净。
2 弹击点处的砂浆表面,应仔细打磨平整,并应除去浮灰。
3 磨掉表面砂浆的深度应为5mm~10mm,且不应小于5mm。
条文说明
12.3.1 砌件灰缝被测处平整与否,对回弹值有较大的影响,故要求用扁砂轮或其他工具进行仔细打磨至平整。此外,墙体表面的砂浆往往失水较快,强度低,磨掉表面约5mm~10mm后,能够检测出接近墙体核心区的砂浆强度,也减小了碳化因素对砂浆强度的影响。
12.3.2 每个测位内应均匀布置12个弹击点。选定弹击点应避开砖的边缘、灰缝中的气孔或松动的砂浆。相邻两弹击点的间距不应小于20mm。
条文说明
12.3.2 经对比试验,每个测位分别使用回弹仪弹击10点、12点、16点,回弹均值的波动性小,变异系数均小于0.15。为便于计算和排除测试中视觉、听觉等人为误差,经异常数据分析后,决定每一测位弹击12点,计算时采用稳健统计,去掉一个最大值,一个最小值,以10个弹击点的算术平均值作为该测位的有效回弹测试值。
12.3.3 在每个弹击点上,应使用回弹仪连续弹击3次,第1、2次不应读数,应仅记读第3次回弹值,回弹值读数应估读至1。测试过程中,回弹仪应始终处于水平状态,其轴线应垂直于砂浆表面,且不得移位。
条文说明
12.3.3 在常用砂浆的强度范围内,每个弹击点的回弹值随着连续弹击次数的增加而逐步提高,经第三次弹击后,其提高幅度趋于稳定。如果仅弹击一次,读数不稳,且对低强砂浆,回弹仪往往不起跳;弹击3次与5次相比,回弹值约低5%。由此选定:每个弹击点连续弹击3次,仅读记第3次的回弹值。测强回归公式亦按此确定。 正确地操作回弹仪,可获得准确而稳定的回弹值,故要求操作回弹仪时,使之始终处于水平状态,其轴线垂直于砂浆表面,且不得移位。
12.3.4 在每一测位内,应选择3处灰缝,并应采用工具在测区表面打凿出直径约10mm的孔洞,其深度应大于砌筑砂浆的碳化深度,应清除孔洞中的粉末和碎屑,且不得用水擦洗,然后采用浓度为1%~2%的酚酞酒精溶液滴在孔洞内壁边缘处,当已碳化与未碳化界限清晰时,应采用碳化深度测定仪或游标卡尺测量已碳化与未碳化砂浆交界面到灰缝表面的垂直距离。
条文说明
12.3.4 同混凝土相比,砂浆的强度低,密实度较差,又因掺加了混合材料,所以碳化速度较快。碳化增加了砂浆表面硬度,从而使回弹值增大。砂浆的碳化深度和速度,同龄期、密实性、强度等级、品种及砌体所处环境条件均有关系,因而碳化值的离散性较大。为保证推定砂浆强度值的准确性,一定要求对每一测位都要准确地测量碳化深度值。
12.4 数据分析
12.4 数据分析
12.4.1 从每个测位的12个回弹值中,应分别剔除最大值、最小值,将余下的10个回弹值计算算术平均值,应以R表示,并应精确至0.1。
12.4.2 每个测位的平均碳化深度,应取该测位各次测量值的算术平均值,应以d表示,并应精确至0.5mm。
12.4.3 第i个测区第j个测位的砂浆强度换算值,应根据该侧位的平均回弹值和平均碳化深度值,分别按下列公式计算:

12.4.4 测区的砂浆抗压强度平均值,应按下式计算:

条文说明
12.4.3、12.4.4 本方法研究过程中,曾根据原材料、砂浆品种、碳化深度、干湿程度等建立了16条测强曲线,经化简合并,剔除次要因素,按碳化深度整理而成本条中的三个计算公式。公式的相关系数均在0.85以上,满足精度要求。由于现场情况的复杂性和人为操作误差,回弹强度与标准立方体砂浆试块抗压强度比较,有时相对误差略大,故本标准表3.4.3关于砂浆回弹法“用途”一栏中指出是“主要用于砂浆强度均质性检查”,请使用者注意这一规定。
13 点荷法
13.1 一般规定
13 点 荷 法
13.1 一般规定
13.1.1 点荷法适用于推定烧结普通砖或烧结多孔砖砌体中的砌筑砂浆强度。检测时,应从砖墙中抽取砂浆片试样,并应采用试验机或专用仪器测试其点荷载值,然后换算为砂浆强度。
13.1.2 从每个测点处,宜取出两个砂浆大片,应一片用于检测、一片备用。
条文说明
13.1.1、13.1.2 点荷法属取样测试方法,由中国建筑科学研究院研究成功并提供给本标准。经本标准编制组对烧结普通砖砌体和烧结多孔砖砌体中的砌筑砂浆统一组织的两次验证性考核试验,其测试结果与标准砂浆试块强度吻合性较好。 对于其他块材砌体中的砂浆强度,本方法未进行专门试验,所以仅限于推定烧结砖砌体中的砌筑砂浆强度。
13.2 测试设备的技术指标
13.2 测试设备的技术指标
13.2.1 测试设备应采用额定压力较小的压力试验机,最小读数盘宜为50kN以内。
条文说明
13.2.1 试样的点荷值较低,为保证测试精度,规定选用读数精度较高的小吨位压力试验机。
13.2.2 压力试验机的加荷附件,应符合下列要求:
1 钢质加荷头应为内角为60°的圆锥体,锥底直径应为40mm,锥体高度应为30mm;锥体的头部应为半径为5mm的截球体,锥球高度应为3mm(图13. 2.2);其他尺寸可自定。加荷头应为2个。
2 加荷头与试验机的连接方法,可根据试验机的具体情况确定,宜将连接件与加荷头设计为一个整体附件。

条文说明
13.2.2 制作加荷头的关键是确保其端部截球体的尺寸,截球体尺寸与一般试验机上的布式硬度测头一致。
13.2.3 在符合本标准第13. 2.2条要求的前提下,也可采用其他专用加荷附件或专用仪器。
13.3 测试步骤
13.3 测试步骤
13.3.1 制备试件,应符合下列要求:
1 从每个测点处剥离出砂浆大片。
2 加工或选取的砂浆试件应符合下列要求:
1)厚度为5mm~12mm;
2)预估荷载作用半径为15mm~25mm;
3)大面应平整,但其边缘可不要求非常规则。
3 在砂浆试件上应画出作用点,并应量测其厚度,应精确至0.1mm。
条文说明
13.3.1 从砖砌体中取出砂浆薄片的方法,可采用手工方法,也可采用机械取样方法,如可用混凝土取芯机钻取带灰缝的芯样,用小锤敲击芯样,剥离出砂浆片。后者适用于砂浆强度较高的砖砌体,且备有钻机的单位。 砂浆薄片过厚或过薄,将增大测试值的离散性,最大厚度波动范围不应超过5mm~20mm,宜为10mm~15mm。现行国家标准《砌体结构工程施工质量验收规范》GB 50203规定灰缝厚度为(10±2)mm,所以选取适宜厚度的砂浆薄片并不困难。作用半径即荷载作用点至试样破坏线边缘的最小距离,其波动范围宜取15mm~25mm。
13.3.2 在小吨位压力试验机上、下压板上应分别安装上、下加荷头,两个加荷头应对齐。
13.3.3 将砂浆试件水平放置在下加荷头上时,上、下加荷头应对准预先画好的作用点,并应使上加荷头轻轻压紧试件,然后应缓慢匀速施加荷载至试件破坏。加荷速度宜控制试件在1min左右破坏,应记录荷载值,并应精确至0.1kN。
13.3.4 应将破坏后的试件拼接成原样,测量荷载实际作用点中心到试件破坏线边缘的最短距离,即荷载作用半径,应精确至0.1mm。
条文说明
13.3.2~13.3.4 试验过程中,应使上、下加荷头对准,两轴线重合并处于铅垂线方向;砂浆试样保持水平。否则,将增大测试误差。 一个试样破坏后,可能分成几个小块。应将试样拼合成原样,以荷载作用点的中心为起点,量测最小破坏线直线的长度即作用半径,以及实际厚度。
13.4 数据分析
13.4 数据分析
13.4.1 砂浆试件的抗压强度换算值,应按下列公式计算:


13.4.2 测区的砂浆抗压强度平均值,应按本标准式(12.4.4) 计算。
条文说明
13.4.1、13.4.2 式(13.4.1-1)~式(13.4.1-3)是中国建筑科学研究院在经验回归公式的基础上略作简化处理而得到的。经在实际工程中应用的效果检验,和本标准编制组统一组织的验证试验,准确性较好。
14 烧结砖回弹法
14.1 一般规定
14 烧结砖回弹法
14.1 一般规定
14.1.1 烧结砖回弹法适用于推定烧结普通砖砌体或烧结多孔砖砌体中砖的抗压强度,不适用于推定表面已风化或遭受冻害、环境侵蚀的烧结普通砖砌体或烧结多孔砖砌体中砖的抗压强度。检测时,应用回弹仪测试砖表面硬度,并应将砖回弹值换算成砖抗压强度。
条文说明
14.1.1 湖南大学对回弹法检测砌体中烧结普通砖和烧结多孔砖的抗压强度进行了较系统的研究,回弹法具有非破损性、检测面广和测试简便迅速的优点,在实际工程的检测中应用较广。 目前,我国已有多家单位对砌体中烧结普通砖的回弹法进行了研究,并制定了相应的国家标准和地方标准。这些标准的测强公式存在一定的差异。另外,烧结多孔砖的应用日趋广泛,但对砌体中多孔砖的回弹法没有相应的检测标准。基于上述原因,有必要在全国范围内对烧结普通砖和烧结多孔砖的回弹法作出统一规定。湖南大学依据试验研究、与现有标准的对比和回归分析,建立了砌体中烧结普通砖和烧结多孔砖的统一回弹测强曲线,并经本标准编制组统一组织的验证性考核试验,证明统一回弹测强曲线具有较好的检测精度,成为新纳入本标准的方法。 本方法对表面已风化或遭受冻害、化学侵蚀的砖,未进行专门研究,故不适用。
14.1.2 每个检测单元中应随机选择10个测区。每个测区的面积不宜小于1. 0m 2 ,应在其中随机选择10块条面向外的砖作为10个测位供回弹测试。选择的砖与砖墙边缘的距离应大于250mm。
条文说明
14.1.2 《烧结普通砖》GB 5101和《烧结多孔砖和多孔砌块》GB 13544规定进行砖的强度试验时,试样的数量为10块砖,由10块砖的抗压强度平均值、强度标准值、变异系数或单块砖最小抗压强度值来评定砖的抗压强度等级。因此,规定每一检测单元中回弹测区数应为10个,且每个测区中测位数应为10个。
14.2 测试设备的技术指标
14.2 测试设备的技术指标
14.2.1 烧结砖回弹法的测试设备,宜采用示值系统为指针直读式的砖回弹仪。
条文说明
14.2.1 指针直读式砖回弹仪性能稳定,示值准确,应用方便、可靠。
14.2.2 砖回弹仪的主要技术性能指标,应符合表14.2.2的要求。

条文说明
14.2.2 回弹仪的技术性能是影响回弹法测试精度的重要因素。符合表14.2.2的回弹仪,可消除或减少因仪器因素导致的误差,提高检测精度。
14.2.3 砖回弹仪的检定和保养,应按国家现行有关回弹仪的检定标准执行。
14.2.4 砖回弹仪在工程检测前后,均应在钢砧上进行率定测试。
条文说明
14.2.3、14.2.4 回弹仪在使用过程中,因检修、零件松动、拉簧疲劳、遭受撞击等都可能改变其标准状态,因而应按本条要求由专业检定单位对仪器进行检定。
14.3 测试步骤
14.3 测试步骤
14.3.1 被检测砖应为外观质量合格的完整砖。砖的条面应干燥、清洁、平整,不应有饰面层、粉刷层,必要时可用砂轮清除表面的杂物,并应磨平测面,同时应用毛刷刷去粉尘。
条文说明
14.3.1 对受潮或被雨淋湿后的砖进行回弹,回弹值会降低,因此被检测砖表面应为自然干燥状态。被检测砖平整、清洁与否,对回弹值亦有较大的影响,故要求用砂轮将被检测砖表面打磨至平整,并用毛刷刷去粉尘。
14.3.2 在每块砖的测面上应均匀布置5个弹击点。选定弹击点时应避开砖表面的缺陷。相邻两弹击点的间距不应小于20mm,弹击点离砖边缘不应小于20mm,每一弹击点应只能弹击一次,回弹值读数应估读至1。测试时,回弹仪应处于水平状态,其轴线应垂直于砖的测面。
条文说明
14.3.2 参考行业标准《回弹仪评定烧结普通砖强度等级的方法》JC/T 796、国家标准《建筑结构检测技术标准》GB/T 50344及其他相关地方标准的规定,每块砖在测面上均匀布置5个弹击点,取其平均值。为保证操作规范,避免检测过程中的异常误差,规定检测时回弹仪应始终处于水平状态,其轴线应始终垂直于砖的测面。
14.4 数据分析
14.4 数据分析
14.4.1 单个测位的回弹值,应取5个弹击点回弹值的平均值。
条文说明
14.4.1 根据湖南大学在实际工程中的检测结果,选取回弹值在30~48之间的37组数据,并按照四川省、安徽省和福建省的三部地方标准中给出的回弹测强公式,经计算得到相应的换算抗压强度值,共计111组数据。最后,采用抛物线函数式按照最小二乘法进行回归分析,建立了适用于烧结普通砖的回弹测强公式: 
其相关系数为0.97,与本标准编制组统一组织的验证性考核试验结果相比较,其相对误差为17.0%,满足精度要求。 对于烧结多孔砖的回弹测强关系,湖南大学制作了施加一定竖向压力的多孔砖砌体,对砌体中的砖进行回弹测试,并作了砖的抗压强度试验,得到209组实测回弹值-抗压强度数据,将209组数据分别以回弹值相近(回弹值极差不大于0.5)的为一组,得到23组多孔砖试件回弹平均值与抗压强度平均值,并与河南省建筑科学研究院通过试验得到的10组数据共33组回弹值-抗压强度数据按最小二乘法进行回归分析,建立了适用于烧结多孔砖的回弹测强公式,为 
其相关系数为0.70,与本标准编制组统一组织的验证性考核试验结果相比较,其相对误差为20.5%。
14.4.2 第i测区第j个测位的抗压强度换算值,应按下列公式计算:

14.4.3 测区的砖抗压强度平均值,应按下式计算:

14.4.4 本标准所给出的全国统一测强曲线可用于强度为6MPa~30MPa的烧结普通砖和烧结多孔砖的检测。当超出本标准全国统一测强曲线的测强范围时,应进行验证后使用,或制定专用曲线。
15 强度推定
15 强度推定
15.0.1 植测数据中的歧离值和统计离群值,应按现行国家标准《数据的统计处理和解释 正态样本离群值的判断和处理》GB/T 4883中有关格拉布斯检验法或狄克逊检验法检出和剔除。检出水平α应取0.05,剔除水平α应取0.01; 不得随意舍去歧离值,从技术或物理上找到产生离群原因时,应予剔除;未找到技术或物理上的原因时,则不应剔除。
条文说明
15.0.1 异常值的检出和剔除,宜以测区为单位,对其中的n1个测点的检测值进行统计分析。一般情况下,n1值较小,也可以检测单元为单位,以单元的所有测点为对象,合并进行统计分析。 当检出歧离值后(特别是对砌体抗压或抗剪强度进行分析时),需首先检查产生歧离值的技术上的或物理上的原因,如砌体所用材料和施工质量可能与其他测点的墙片不同,检测人员读数和记录是否有错等。当这些物理因素一一排除后,方可进行是否剔除的计算,即判断是否为统计离群值。 对于一项具体工程,其某项强度值的总体标准差是未知的,格拉布斯检验法和狄克逊检查法适用于这种情况;这两种检验法也是土木工程技术人员常用的方法。所以,本标准决定采用这两种方法。
15.0.2 本标准的各种检测方法,应给出每个测点的检测强度值f ij ;以及每一测区的强度平均值f i ,并应以测区强度平均值f i 作为代表值。
15.0.3 每一检测单元的强度平均值、标准差和变异系数,应按下列公式计算:


条文说明
15.0.2、15.0.3 各种方法每个测点的检验强度值,是根据检测结果按相应公式计算后得出的。其中,推出法、筒压法仅需给出测区的检测强度值。
15.0.4 对在建或新建砌体工程,当需推定砌筑砂浆抗压强度值时,可按下列公式计算:

15.0.5 对既有砌体工程,当需推定砌筑砂浆抗压强度值时,应符合下列要求:
1 按国家标准《砌体工程施工质量验收规范》GB 50203-2002及之前实施的砌体工程施工质量验收规范的有关规定修建时,应按下列公式计算:

2 按《砌体结构工程施工质量验收规范》GB 50203-2011的有关规定修建时,可按本标准第15.0.4条的规定推定砌筑砂浆强度值。
条文说明
15.0.4、15.0.5 为了与新颁布的《砌体结构工程施工质量验收规范》GB 50203-2011保持协调,本标准对按照不同施工验收规范施工的砌体工程采用不同的砂浆强度推定方法。其中式(15.0.4-1)、式(15.0.4-2)和式(15.0.5-1)、式(15.0.5-2),分别与国家标准《砌体结构工程施工质量验收规范》GB 50203-2011和原国家标准《砌体工程施工质量验收规范》GB 50203-2002一致。在推定砌筑砂浆抗压强度时,对按照《砌体结构工程施工质量验收规范》GB 50203-2011施工的砌体工程,采用式(15.0.4-1)、式(15.0.4-2)和式(15.0.4-3);对按照《砌体工程施工质量验收规范》GB 50203-2002及之前颁布实施的砌体施工质量验收规范施工的砌体工程,采用式(15.0.5-1)、式(15.0.5-2)和式(15.0.5-3)。当测区数少于6个时,本标准从严控制,规定以测区的最小检测值作为砂浆强度推定值,即式(15.0.4-3)、式(15.0.5-3)。
15.0.6 当砌筑砂浆强度检测结果小于2.0MPa或大于15MPa时,不宜给出具体检测值,可仅给出检测值范围f 2 <2.0MPa或f 2 >15MPa。
15.0.7 砌筑砂浆的推定值,宜相当于被测墙体所用块体作底模的同龄期、同条件养护的砂浆试块强度。
15.0.8 当需要推定每一检测单元的砌体抗压强度标准值或砌体沿通缝截面的抗剪强度标准值时,应分别按下列要求进行推定:



3 每一检测单元的砌体抗压强度或抗剪强度,当检测结果的变异系数δ分别大于0.2或0.25时,不宜直接按式(15.0.8-1)或式(15.0.8-2)计算,应检查检测结果离散性较大的原因,若查明系混入不同母体所致,宜分别进行统计,并应分别按式(15.0.8-1)~式(15.0.8-4)确定本标准值。如确系变异系数过大,则应按式(15.0.8-3)和式(15.0.8-4)确定本标准值。
条文说明
15.0.8 本条提出了根据砌件抗压强度或抗剪强度的检测平均值分别计算强度标准值的4个公式。它们不同于现行国家标准《砌体结构设计规范》GB 50003确定标准值的方法。砌体结构设计规范是依据全国范围内众多试验资料确定标准值;本标准的检测对象是具体的单项工程,两者是有区别的。本标准采用了现行国家标准《民用建筑可靠性鉴定标准》GB 50292确定强度标准值的方法,即式(15.0.8-1)~式(15.0.8-4)。
15.0.9 既有砌体工程,当采用回弹法检测烧结砖抗压强度时,每一检测单元的砖抗压强度等级,应符合下列要求:
1 当变异系数δ≤0.21时, 应按表15.0.9-1,表15. 0.9-2中抗压强度平均值f 1,m 、抗压强度标准值f 1k 推定每一检测单元的砖抗压强度等级。每一检测单元的砖抗压强度标准值,应按下式计算:


2 当变异系数δ>0.21时,应按表15. 0.9-1、表15.0. 9-2中抗压强度平均值f 1,m 、以测区为单位统计的抗压强度最小值f 1i,min 推定每一测区的砖抗压强度等级。
条文说明
15.0.9 参照产品标准《烧结普通砖》GB 5101、《烧结多孔砖和多孔砌块》GB 13544推定回弹法检测烧结砖的强度等级。本条所列公式和表格,与上述产品标准一致。
15.0.10 各种检测强度的最终计算或推定结果,砌体的抗压强度和抗剪强度均应精确至0.01MPa,砌筑砂浆强度应精确至0.1MPa。
本标准用词说明
本标准用词说明
1 为了便于在执行本标准条文时区别对待,对要求严格程度不同的用词说明如下:
1)表示很严格,非这样做不可的用词:
正面词采用“必须”,反面词采用“严禁”;
2)表示严格,在正常情况下均应这样做的用词:
正面词采用“应”,反面词采用“不应”或“不得”;
3)表示允许稍有选择,在条件许可时首先这样做的用词:
正面词采用“宜”,反面词采用“不宜”;
4)表示有选择,在一定条件下可以这样做的用词,采用“可” 。
2 条文中指明应按其他有关标准、规范执行时,写法为:“应符合……的规定”或“应按……执行”。
引用标准名录
引用标准名录
1 《砌体结构设计规范》GB 50003
2 《砌体基本力学性能试验方法标准》GB/T 50129
3 《砌体工程施工质量验收规范》GB 50203-2002
4 《砌体结构工程施工质量验收规范》GB 50203-2011
5 《建筑工程施工质量验收统一标准》GB 50300
6 《水泥胶砂流动度测定方法》GB/T 2419
7 《数据的统计处理和解释 正态样本离群值的判断和处理》GB/T 4883
8 《择压法检测砂筑砂浆抗压强度技术规程》JGJ/T 234
