Appearance
《膨胀土地区建筑技术规范[附条文说明] 》GB 50112-2013
🗓️ 住房和城乡建设部 实施时间:2013-05-01
前言
中华人民共和国国家标准
膨胀土地区建筑技术规范
Technical code for buildings in expansive soil regions
GB 50112-2013
主编部门:中华人民共和国住房和城乡建设部
批准部门:中华人民共和国住房和城乡建设部
施行日期:2013年5月1日
中华人民共和国住房和城乡建设部公告
第1587号
住房城乡建设部关于发布国家标准《膨胀土地区建筑技术规范》的公告
现批准《膨胀土地区建筑技术规范》为国家标准,编号为GB 50112-2013,自2013年5月1日起实施。其中,第3.0.3、5.2.2、5.2.16条为强制性条文,必须严格执行。原国家标准《膨胀土地区建筑技术规范》GBJ 112-87同时废止。
本规范由我部标准定额研究所组织中国建筑工业出版社出版发行。
中华人民共和国住房和城乡建设部
2012年12月25日
前言
本规范是根据住房和城乡建设部《关于印发<2009年工程建设标准规范制订、修订计划>的通知》(建标[2009]88号)的要求,由中国建筑科学研究院会同有关设计、勘察、施工、研究与教学单位,对原国家标准《膨胀土地区建筑技术规范》GBJ 112-87修订而成。
本规范在修订过程中,修订组经广泛调查研究,认真总结实践经验,并广泛征求意见,最后经审查定稿。
本规范共分7章和9个附录。主要技术内容有:总则、术语和符号、基本规定、勘察、设计、施工、维护管理等。
本次修订主要技术内容有:
1.增加了术语、基本规定、膨胀土自由膨胀率与蒙脱石含量、阳离子交换量的关系(附录A)等。
2.“岩土的工程特性指标”计算表达式。
3.坡地上基础埋深的计算公式。
本规范中以黑体字标志的条文为强制性条文,必须严格执行。
本规范由住房和城乡建设部负责管理和对强制性条文的解释,由中国建筑科学研究院负责日常管理和具体技术内容的解释。执行本规范过程中如有意见或建议,请寄送中国建筑科学研究院国家标准《膨胀土地区建筑技术规范》管理组(地址:北京市北三环东路30号;邮编:100013),以供今后修订时参考。
本规范主编单位:中国建筑科学研究院
本规范参编单位:中国建筑技术集团有限公司 中国有色金属工业昆明勘察设计研究院 中国航空规划建设发展有限公司 中国建筑西南勘察设计研究院有限公司 广西华蓝岩土工程有限公司 中国人民解放军总后勤部建筑设计研究院 云南省设计院 中航勘察设计研究院有限公司 中南建筑设计院股份有限公司 中南勘察设计院有限公司 广西大学 云南锡业设计院 中铁二院工程集团有限责任公司建筑工程设计研究院
本规范主要起草人员:陈希泉 黄熙龄 朱玉明 陆忠伟 刘文连 汤小军 康景文 卢玉南 孙国卫 林闽 王笃礼 徐厚军 张晓玉 欧孝夺 陆家宝 龚宪伟 陈修礼 何友其 陈冠尧
本规范主要审查人员:袁内镇 张雁 陈祥福 顾宝和 宋二祥 汪德果 邓江 杨俊峰 杨旭东 殷建春 王惠昌 滕延京
1 总则
1 总则
1.0.1 为了在膨胀土地区建筑工程中贯彻执行国家的技术经济政策,做到安全适用、技术先进、经济合理、保护环境,制定本规范。
条文说明
1.0.1 本条明确了制定本规范的目的和指导思想:在膨胀土地区的工程建设过程中,针对膨胀土的特性,结合当地的工程经验,认真执行国家的经济技术政策。保护环境,特别是保持地质环境中的原始地形地貌、天然泄排水系统和植被不遭到破坏以及合理的环境绿化也是预防膨胀土危害的重要措施,应予以高度重视。
1.0.2 本规范适用于膨胀土地区建筑工程的勘察、设计、施工和维护管理。
条文说明
1.0.2 本规范定义的膨胀土不包括膨胀类岩石、膨胀性含盐岩土以及受酸和电解液等污染的土。当建设工程遇有该情况时,应进行专门研究。
1.0.3 膨胀土地区的工程建设,应根据膨胀土的特性和工程要求,综合考虑地形地貌条件、气候特点和土中水分的变化情况等因素,注重地方经验,因地制宜,采取防治措施。
条文说明
1.0.3 为实现膨胀土地区建筑工程的安全和正常使用,遵照《工程结构可靠性设计统一标准》GB 50153的有关规定,在岩土工程勘察、工程设计和施工以及维护管理等方面提出下列要求:
我国膨胀土分布广泛,成因类型和矿物组成复杂,应根据土的自由膨胀率、工程地质特征和房屋开裂破坏形态综合判定膨胀土;
建筑场地的地形地貌条件和气候特点以及土的膨胀潜势决定着膨胀土对建筑工程的危害程度。场地条件应考虑上述因素的影响,以地基的分级变形量为指示性指标综合评价;
膨胀土上的房屋受环境诸因素变化的影响,经常承受反复不均匀升降位移的作用,特别是坡地上的房屋还伴随有水平位移,较小的位移幅度往往导致低层砌体结构房屋的破坏,且难于修复。因此,对膨胀土的危害应遵循“预防为主,综合治理”的原则。 上述要求是根据膨胀土的特性以及当前国内外对膨胀土科学研究的现状和经验总结提出的。一般地基只有在极少数情况下才考虑气候条件与土中水分变化的影响,但对膨胀土地基,大量降雨、严重干旱就足以导致房屋大幅度位移而破坏。土中水分变化不仅与气候有关,还受覆盖、植被和热源等影响,这些都是在设计中必须考虑的因素。
1.0.4 膨胀土地区建筑工程勘察、设计、施工和维护管理,除应符合本规范外,尚应符合有关现行国家标准的规定。
条文说明
1.0.4 本规范各章节的技术要求和措施是针对膨胀土地基的特性制定的,按照工程建设程序,在岩土工程勘察、荷载效应和地震设防以及结构设计等方面还应符合有关现行国家标准的规定。
2 术语和符号
2.1 术语
2 术语和符号
2.1 术语
条文说明
根据《工程建设标准编写规定》(建标[2008]182号)的要求,新增了本规范相关术语的定义及其英文术语。主要包括膨胀土及其特性参数、指标的术语。
2.1.1 膨胀土 expansive soil
土中黏粒成分主要由亲水性矿物组成,同时具有显著的吸水膨胀和失水收缩两种变形特性的黏性土。
条文说明
2.1.1 本规范对膨胀土的定义包括三个内容:
控制膨胀土胀缩势能大小的物质成分主要是土中蒙脱石的含量、离子交换量以及小于2μm黏粒含量。这些物质成分本身具有较强的亲水特性,是膨胀土具有较大胀缩变形的物质基础;
除亲水特性外,物质本身的结构也很重要,电镜试验证明,膨胀土的微观结构属于面一面叠聚体,它比团粒结构有更大的吸水膨胀和失水收缩的能力;
任何黏性土都具有胀缩性,问题在于这种特性对房屋安全的危害程度。本规范以未经处理的一层砌体结构房屋的极限变形幅度15mm作为划分标准,当计算建筑物地基土的胀缩变形量超过此值时,即应按本规范进行勘察、设计、施工和维护管理。
2.1.2 自由膨胀率 free swelling ratio
人工制备的烘干松散土样在水中膨胀稳定后,其体积增加值与原体积之比的百分率。
2.1.3 膨胀潜势 swelling potentiality
膨胀土在环境条件变化时可能产生胀缩变形或膨胀力的量度。
2.1.4 膨胀率 swelling ratio
固结仪中的环刀土样,在一定压力下浸水膨胀稳定后,其高度增加值与原高度之比的百分率。
2.1.5 膨胀力 swelling force
固结仪中的环刀土样,在体积不变时浸水膨胀产生的最大内应力。
2.1.6 膨胀变形量 value of swelling deformation
在一定压力下膨胀土吸水膨胀稳定后的变形量。
2.1.7 线缩率 linear shrinkage ratio
天然湿度下的环刀土样烘干或风干后,其高度减少值与原高度之比的百分率。
2.1.8 收缩系数 coefficient of shrinkage
环刀土样在直线收缩阶段含水量每减少1%时的竖向线缩率。
2.1.9 收缩变形量 value of shrinkage deformation
膨胀土失水收缩稳定后的变形量。
2.1.10 胀缩变形量 value of swelling-shrinkage deformation
膨胀土吸水膨胀与失水收缩稳定后的总变形量。
2.1.11 胀缩等级 grade of swelling-shrinkage
膨胀土地基胀缩变形对低层房屋影响程度的地基评价指标。
2.1.12 大气影响深度 climate influenced layer
在自然气候影响下,由降水、蒸发和温度等因素引起地基土胀缩变形的有效深度。
2.1.13 大气影响急剧层深度 climate influenced markedly layer
大气影响特别显著的深度。
2.2 符号
2.2 符号
条文说明
符号以沿用《膨胀土地区建筑技术规范》GBJ 112-87既有符号为主,按属性分为四类:作用和作用效应、材料性能和抗力、几何参数、设计参数和计算系数。并根据现行标准体系对以下参数符号进行了修改:
- “地基承载力标准值(f
k )”改为“地基承载力特征值( f ak )”;
“桩侧与土的容许摩擦力([ f s ])”改为“桩的侧阻力特征值( q sa )”;
“桩端单位面积的容许承载力([ f p ])”改为“桩的端阻力特征值( q pa )”。
2.2.1 作用和作用效应
P e ——土的膨胀力;
p k ——相应于荷载效应标准组合时,基础底面处的平均压力值;
p kmax ——应于荷载效应标准组合时,基础底面边缘的最大压力值;
Q k ——对应于荷载效应标准组合,最不利工况下作用于桩顶的竖向力;
s c ——地基分级变形量;
s e ——地基土的膨胀变形量;
s es ——地基土的胀缩变形量;
s s ——地基土的收缩变形量;
ν e ——在大气影响急剧层内桩侧土的最大胀拔力标准值。
2.2.2 材料性能和抗力
f a ——修正后的地基承载力特征值;
f ak ——地基承载力特征值;
q sa ——桩的侧阻力特征值;
q pa ——桩的端阻力特征值;
ω 1 ——地表下1m处土的天然含水量;
ω p ——土的塑限含水量;
γ m ——基础底面以上土的加权平均重度;
δ ef ——土的自由膨胀率;
δ ep ——某级荷载下膨胀土的膨胀率;
δ s ——土的竖向线缩率;
λ s ——土的收缩系数;
ψ w ——土的湿度系数。
2.2.3 几何参数
A P ——桩端截面积;
d ——基础埋置深度;
d a ——大气影响深度;
h i ——第i层土的计算厚度;
h 0 ——土样的原始高度;
h w ——某级荷载下土样浸水膨胀稳定后的高度;
l ——建筑物相邻柱基的中心距离;
l a ——桩端进入大气影响急剧层以下或非膨胀土层中的长度;
l p ——基础外边缘至坡肩的水平距离;
u p ——桩身周长;
ν 0 ——土样原始体积;
ν w ——土样在水中膨胀稳定后的体积;
z i ——第i层土的计算深度;
z en ——膨胀变形计算深度;
z sn ——收缩变形计算深度;
β ——设计斜坡的角度。
2.2.4 设计参数和计算系数
ψ e ——膨胀变形量计算经验系数;
ψ es ——胀缩变形量计算经验系数;
ψ s ——收缩变形量计算经验系数;
λ ——桩侧土的抗拔系数。
3 基本规定
3 基本规定
3.0.1 膨胀土应根据土的自由膨胀率、场地的工程地质特征和建筑物破坏形态综合判定。必要时,尚应根据土的矿物成分、阳离子交换量等试验验证。进行矿物分析和化学分析时,应注重测定蒙脱石含量和阳离子交换量,蒙脱石含量和阳离子交换量与土的自由膨胀率的相关性可按本规范表A采用。
条文说明
3.0.1
膨胀土一般为黏性土,就其黏土矿物学来说,黏土矿物的硅氧四面体和铝氧八面体的表面都富存负电荷,并吸附着极性水分子形成不同厚度的结合水膜,这是所有黏土吸水膨胀的共性。而蒙脱石[(Mg·Al) 2 (Si 4 O 10 )(OH) 2 ·nH 2 O]是在富镁的微碱性环境中生成的含镁和水的硅铝酸盐矿物,它的比表面积高达810m 2 /g,约为伊利石的10倍。蒙脱石不但具有结合水膜增厚的膨胀(俗称粒间膨胀),而且具有伊利石、高岭石、绿泥石等矿物所没有的极为显著的晶格间膨胀。国外的研究表明:蒙脱石的含水量在10%、29.5%和59%的d(001)晶面间 距分别为11.2
,体积增大10倍。因此,蒙脱石的含量决定着黏土膨胀潜势的强弱。这与Na 2 SO 4 在一定温度下能吸附10个水分子形成Na 2 SO 4 ·10H 2 O的盐胀性有着本质的区别。黏土的膨胀不仅与蒙脱石含量关系密切,而且与其表面吸附的可交换阳离子种类有关。钠蒙脱石比钙蒙脱石具有更大的膨胀潜势就是一个例证。
20世纪80年代“膨胀土地基设计”课题组以及近期曲永新研究员等人的研究表明:我国膨胀土的分布广,矿物成分复杂多变,土中小于2μm的黏粒含量一般大于30%。作为膨胀性矿物的蒙脱石常以混层的形式出现,如伊利石/蒙脱石、高岭石/蒙脱石和绿泥石/蒙脱石等。而混层比(即蒙脱石占混层矿物总数的百分数)的大小决定着膨胀潜势的强弱。
所谓综合判定并非多指标判定,而是根据自由膨胀率并综合工程地质特征和房屋开裂破坏形态作多因素判定。膨胀土地区的工程地质特征和房屋开裂破坏形态是地基土长期胀缩往复循环变形的表征,是膨胀土固有的属性,在一般地基上罕见。
自由膨胀率是干土颗粒在无结构力影响时的膨胀特性指标,且较为直观,试验方法简单易行。大量试验研究表明:自由膨胀率与土的蒙脱石含量和阳离子交换量有较好的相关关系:见图1和图2。图中的试验数据是全国有代表性膨胀土的试验资料的统计分析结果。试验用土样都是在不同开裂破坏程度房屋的附近取得,其中尚有一般黏土和红黏土。

当自由膨胀率小于40%、蒙脱石含量小于7%、阳离子交换量小于170时,地基的分级变形量小于15mm,低层砌体结构房屋完好或有少量微小裂缝,可判为非膨胀土;当土的自由膨胀率大于90%、蒙脱石含量大于22%、阳离子交换量大于340时,地基的分级变形量可能大于70mm,房屋会严重开裂破坏,裂缝宽度可达100mm以上。本规范附录A和表A.0.1以及第4.3.3条和第4.3.4条就是根据上述资料制定的。
我国幅员辽阔,膨胀土的成因类型和矿物组成复杂,对膨胀土胀缩机理的研究和认识尚处于逐步提高、统一认识的阶段。本规范对膨胀土的判定及其指标的选取着重于建筑工程的工程意义,而非拘泥于土质学和矿物学的理论分析。矿物和化学分析费用高、时间长,一般试验室难于承担。当工程的规模大、功能要求严格且对土的膨胀性能有疑问时,可按本规范附录A的规定,通过矿物和化学分析进一步验证确认。
3.0.2 膨胀土场地上的建筑物,可根据其重要性、规模、功能要求和工程地质特征以及土中水分变化可能造成建筑物破坏或影响正常使用的程度,将地基基础分为甲、乙、丙三个设计等级。设计时,应根据具体情况按表3.0.2选用。
表3.0.2 膨胀土场地地基基础设计等级

条文说明
3.0.2 膨胀土上建筑物的地基基础设计等级是根据下列因素确定的:
建筑物的建筑规模和使用要求;
场地工程地质特征;
诸多环境因素影响下地基产生往复胀缩变形对建筑物所造成的危害程度等。 本规范表3.0.2的甲级建筑物中,覆盖面积大的重要工业与民用建筑物系指规模面积大的生产车间和大型民用公共建筑(如展览馆、体育场馆、火车站、机场候机楼和跑道等)。由于占地面积大,膨胀土中的水分变化受“覆盖效应”影响较大。大面积的建筑覆盖,基本上隔绝了大气降水和地面蒸发对土中水分变化的影响。在室内外和土中上下温度和湿度梯度的驱动下,水分向建筑物中部区域迁移并集聚而导致结构物的隆起;而在建筑物四周,受气候变化的影响较大,结构会产生较大幅度的升降位移。上述中部区域的隆起和四周升降位移是不均匀的,幅度达到一定的程度将导致建筑结构产生难于承受的次应力而破坏。再者,大型结构跨度大,结构形式往往是新型的网架或壳体屋盖和组合柱,对基础差异升降位移要求严格且适应能力较差,容易遭到破坏或影响正常使用。 用水量较大的湿润车间,如自来水厂、污水处理厂和造纸、纺织印染车间等大型的储水构筑物须采取严格的防水措施,以防止长时间的跑冒滴漏导致土中水分增加而产生过大的膨胀变形;而烟囱、炉、窑由于长期的高温烘烤会导致基础下部和周围的土体失水收缩。如有一炼焦炉三面环绕的烟道长期经受200℃的高温烘烤,引起地基土大量失水,产生了53mm的附加沉降,使总沉降量达到106mm,差异沉降79mm,基础底板出现多条裂缝。长期工作在低温或负温条件下的冷藏、冷冻库房等建筑物,与环境温度差异较大,在温度梯度驱动下,水分向建筑物下的土体转移,引起幅度较大的不均匀膨胀变形,使房屋开裂而影响使用。设计时必须采取保温隔热措施。 精密仪器仪表制造和使用车间、测绘用房以及高温、高压和易燃、易爆的化工厂、核电站等的生产装置和管道等设施,或鉴于生产工艺和使用精度需要,或因为安全防护,对建筑地基的总变形和差异变形要求极为严格,地基基础设计必须采取相应的对策。 位于坡地上的房屋,其临坡面的墙体变形与平坦场地有很大差异。由于坡地临空面大,土中水分的变化对大气降水和蒸发的影响敏感,房屋平均变形和差异变形的幅度大于平坦场地。地基的变形特点除有竖向位移外,还兼有较大的水平位移,当土中水分变化较大时,这种水平位移是不可逆的。因此,坡地上房屋开裂破坏程度比平坦场地严重,将建于坡地上的重要建筑物(如纪念性建筑、高档民用房屋等)的地基基础设计等级列为甲级。 胀缩等级为Ⅲ级的地基,其低层房屋的变形量可能大于70mm,设计的技术难度和处理费用较高,有时需采取多种措施综合治理,必要时还需要在加强上部结构刚度的同时采用桩基础。膨胀土地区的挡土结构,当高度不大于3m时,只要符合本规范第5.4.3条的构造要求,一般都是安全的,这是总结建筑经验的结果。对于高度大于3m的挡土结构,在设计计算时要考虑土中裂隙发育程度和土体遇水膨胀后抗剪强度的降低,并考虑水平膨胀力的影响。因此,在计算参数和滑裂面选取以及水平膨胀力取值等方面的技术难度高,需进行专门研究。对于膨胀土地区深基坑的支护设计,存在同样的问题需要认真应对。 本规范表3.0.2中地基基础设计等级为丙级的建筑物,由于场地平坦、地基条件简单均匀,且地基土的胀缩等级为Ⅰ级,其最大变形幅度一般小于35mm,只要采取一些简单的预防措施就能保证其安全和正常使用。 建筑物规模和结构形式繁多,影响膨胀土地基变形的因素复杂,技术难度高,设计时应根据建筑物和地基的具体情况确定其设计等级。本规范表3.0.2中未包含的内容,应参考现行国家标准《建筑地基基础设计规范》GB 50007中有关的规定执行。
3.0.3 基基础设计应符合下列规定:
1 建筑物的地基计算应满足承载力计算的有关规定;
2 地基基础设计等级为甲级、乙级的建筑物,均应按地基变形设计;
3 建造在坡地或斜坡附近的建筑物以及受水平荷载作用的高层建筑、高耸构筑物和挡土结构、基坑支护等工程,尚应进行稳定性验算。验算时应计及水平膨胀力的作用。 (自2022年1月1日起废止该条,详见新规 《建筑与市政地基基础通用规范》 GB 55003-2021)
条文说明
3.0.3 根据建筑物地基基础设计等级及长期荷载作用下地基胀缩变形和压缩变形对上部结构的影响程度,本条规定了膨胀土地基的设计原则:
所有建筑物的地基计算和其他地基一样必须满足承载力的要求,这是保证建筑物稳定的基本要求。
膨胀土上的建筑物遭受开裂破坏多为砌体结构的低层房屋,四层以上的建筑物很少有危害产生。低层砌体结构的房屋一般整体刚度和强度较差,基础埋深较浅,土中水分变化容易受环境因素的影响,长期往复的不均匀胀缩变形使结构遭受正反两个方向的挠曲变形作用。即使在较小的位移幅度下,也常可导致建筑物的破坏,且难于修复。因此,膨胀土地基的设计必须按变形计算控制,严格控制地基的变形量不超过建筑物地基允许的变形值。这对下列设计等级为甲、乙级的建筑物尤为重要:
(1) 建筑规模大的建筑物;
(2) 使用要求严格的建筑物;
(3) 建筑场地为坡地和地基条件复杂的建筑物。 对于高重建筑物作用于地基主要受力层中的压力大于土的膨胀力时,地基变形主要受土的压缩变形和可能的失水收缩变形控制,应对其压缩变形和收缩变形进行设计计算。
对于设计等级为丙级的建筑物,当其地基条件简单,荷载差异不大,且采取有效的预防胀缩措施时,可不做变形验算。
建造于斜坡及其邻近的建筑物和经常受水平荷载作用的高层建筑以及挡土结构的失稳是灾难性的。建筑地基和挡土结构的失稳,一方面是由于荷载过大,土中应力超过土体的抗剪强度引起的,必须通过设计计算予以保证;另一方面,土中水的作用是主要的外因,所谓“十滑九水”对于膨胀土地基来说更为贴切。水不但导致土体膨胀而使其抗剪强度降低,同时也产生附加的水平膨胀力,设计时应考虑其影响,并采取防水保湿措施,保持土中水分的相对平衡。
3.0.4 地基基础设计时,所采用的作用效应设计值应符合现行国家标准《建 筑地基基础设计规范》GB 50007的有关规定。
3.0.5 膨胀土地区建筑物设计使用年限及耐久性设计,应符合现行国家标准《工程结构可靠性设计统一标准》GB 50153的规定。
3.0.6 地基基础设计等级为甲级的建筑物,应按本规范附录B的要求进行长期的升降和水平位移观测。地下室侧墙和高度大于3m的挡土结构,宜对侧墙和挡土结构进行土压力观测。
条文说明
3.0.6 本条规定地基基础设计等级为甲级的建筑物应进行长期的升降和水平位移观测,其目的是为建筑物后期的维护管理提供指导,同时,也为地区的膨胀土研究积累经验与数据。
4 勘察
4.1 一般规定
4 勘察
4.1 一般规定
4.1.1 膨胀土地区的岩土工程勘察可分为可行性研究勘察、初步勘察和详细勘察阶段。对场地面积较小、地质条件简单或有建设经验的地区,可直接进行详细勘察。对地形、地质条件复杂或有大量建筑物破坏的地区,应进行施工勘察等专门性的勘察工作。各阶段勘察除应符合现行国家标准《岩土工程勘察规范》GB 50021的规定外,尚应符合本规范第4.1.2条~第4.1.6条的规定。
条文说明
4.1.1 根据膨胀土的特点,在现行国家标准《岩土工程勘察规范》GB 50021的基础上,增加了一些膨胀土地区岩土工程勘察的特殊要求:
各勘察阶段应增加的工作;
勘探布点及取土数量与深度;
试验项目,如膨胀试验、收缩试验等。
4.1.2 可行性研究勘察应对拟建场址的稳定性和适宜性作出初步评价。可行性研究勘察应包括下列内容:
1 搜集区域地质资料,包括土的地质时代、成因类型、地形形态、地层和构造。了解原始地貌条件,划分地貌单元;
2 采取适量原状土样和扰动土样,分别进行自由膨胀率试验,初步判定场地内有无膨胀土及其膨胀潜势;
3 调查场地内不良地质作用的类型、成因和分布范围;
4 调查地表水集聚、排泄情况,以及地下水类型、水位及其变化幅度;
5 收集当地不少于10年的气象资料,包括降水量、蒸发力、干旱和降水持续时间以及气温、地温等,了解其变化特点;
6 调查当地建筑经验,对已开裂破坏的建筑物进行研究分析。
条文说明
4.1.2 明确可行性研究勘察阶段以工程地质调查为主,主要内容为初步查明有无膨胀土。工程地质调查的内容是按综合判定膨胀土的要求提出的,即土的自由膨胀率、工程地质特征、建筑物损坏情况等。
4.1.3 初步勘察应确定膨胀土的胀缩等级,应对场地的稳定性和地质条件作出评价,并应为确定建筑总平面布置、主要建筑物地基基础方案和预防措施,以及不良地质作用的防治提供资料和建议,同时应包括下列内容:
1 当工程地质条件复杂且已有资料不满足设计要求时,应进行工程地质测绘,所用比例尺宜采用1/1000~1/5000;
2 查明场地内滑坡、地裂等不良地质作用,并评价其危害程度;
3 预估地下水位季节性变化幅度和对地基土胀缩性、强度等性能的影响;
4 采取原状土样进行室内基本物理力学性质试验、收缩试验、膨胀力试验和50kPa压力下的膨胀率试验,判定有无膨胀土及其膨胀潜势,查明场地膨胀土的物理力学性质及地基胀缩等级。
条文说明
4.1.3 初步勘察除要求查明不良地质作用、地貌、地下水等情况外,还要求进行原状土基本物理力学性质、膨胀、收缩、膨胀力试验,以确定膨胀土的膨胀潜势和地基胀缩等级,为建筑总平面布置、主要建筑物地基基础方案和预防措施以及不良地质作用的防治提供资料和建议。
4.1.4 详细勘察应查明各建筑物地基土层分布及其物理力学性质和胀缩性能,并应为地基基础设计、防治措施和边坡防护,以及不良地质作用的治理提供详细的工程地质资料和建议,同时应包括下列内容:
1 采取原状土样进行室内50kPa压力下的膨胀率试验、收缩试验及其资料的统计分析,确定建筑物地基的胀缩等级;
2 进行室内膨胀力、收缩和不同压力下的膨胀率试验;
3 对于地基基础设计等级为甲级和乙级中有特殊要求的建筑物,应按本规范附录C的规定进行现场浸水载荷试验;
4 对地基基础设计和施工方案、不良地质作用的防治措施等提出建议。
条文说明
4.1.4 详细勘察除一般要求外,应确定各单体建筑物地基土层分布及其物理力学性质和胀缩性能,为地基基础的设计、防治措施和边坡防护以及不良地质作用的治理,提供详细的工程地质资料和建议。
4.1.5 勘探点的布置、孔深和土样采取,应符合下列要求:
1 勘探点的布置及控制性钻孔深度应根据地形地貌条件和地基基础设计等级确定,钻孔深度不应小于大气影响深度,且控制性勘探孔不应小于8m,一般性勘探孔不应小于5m;
2 取原状土样的勘探点应根据地基基础设计等级、地貌单元和地基土胀缩等级布置,其数量不应少于勘探点总数的1/2;详细勘察阶段,地基基础设计等级为甲级的建筑物,不应少于勘探点总数的2/3,且不得少于3个勘探点;
3 采取原状土样应从地表下1m处开始,在地表下1m至大气影响深度内,每1m取土样1件;土层有明显变化处,宜增加取土数量;大气影响深度以下,取土间距可为1.5m~2.0m。
条文说明
4.1.5 结合膨胀土地基的特殊情况,对勘探点的布置、孔深和土样采取提出要求。根据大气影响深度及胀缩性评价所需的最少土样数量,规定膨胀土地面下8m以内必须采取土样,地基基础设计等级为甲级的建筑物,取原状土样的勘探点不得少于3个。大气影响深度范围内是膨胀土的活动带,故要求增加取样数量。经多年现场观测,我国膨胀土地区平坦场地的大气影响深度一般在5m以内,地面5m以下由于土的含水量受大气影响较小,故采取土样进行胀缩性试验的数量可适当减少。但如果地下水位波动很大,或有溶沟溶槽水时,则应根据具体情况确定勘探孔的深度和取原状土样的数量。 对于膨胀土地区的高层建筑,其岩土工程勘察尚应符合现行国家标准《岩土工程勘察规范》GB 50021的相关规定。
4.1.6 钻探时,不得向孔内注水。
4.2 工程特性指标
4.2 工程特性指标
4.2.1 自由膨胀率试验应按本规范附录D的规定进行。膨胀土的自由膨胀率应按下式计算:

(4.2.1)
式中: 
——膨胀土的自由膨胀率(%);

——土样在水中膨胀稳定后的体积(mL);

——土样原始体积(mL)。
4.2.2 膨胀率试验应按本规范附录E和附录F的规定执行。某级荷载下膨胀土的膨胀率应按下式计算:

(4.2.2)
式中: 
——某级荷载下膨胀土的膨胀率(%);

——某级荷载下土样在水中膨胀稳定后的高度(mm);

——土样原始高度(mm)。
4.2.3 膨胀力试验应按本规范附录F的规定执行。
4.2.4 收缩系数试验应按本规范附录G的规定执行。膨胀土的收缩系数应按下式计算:

(4.2.4)
式中: 
——膨胀土的收缩系数;

——收缩过程中直线变化阶段与两点含水量之差对应的竖向线缩率之差(%);

——收缩过程中直线变化阶段两点含水量之差(%)。
条文说明
4.2.1~4.2.4 膨胀土的工程特性指标包括自由膨胀率、不同压力下的膨胀率、膨胀力和收缩系数等四项,本规范附录D~附录G对试验方法的技术要求作了具体的规定。 自由膨胀率是判定膨胀土时采用的指标,不能反映原状土的胀缩变形,也不能用来定量评价地基土的胀缩幅度。不同压力下的膨胀率和收缩系数是膨胀土地区设计计算变形的两项主要指标。膨胀力较大的膨胀土,地基计算压力也可相应增大,在选择基础形式及基底压力时,膨胀力是很有用的指标。
4.3 场地与地基评价
4.3 场地与地基评价
4.3.1 场地评价应查明膨胀土的分布及地形地貌条件,并应根据工程地质特征及土的膨胀潜势和地基胀缩等级等指标,对建筑场地进行综合评价,对工程地质及土的膨胀潜势和地基胀缩等级进行分区。
条文说明
4.3.1 膨胀土场地的综合评价是工程实践经验的总结,包括工程地质特征、自由膨胀率及场地复杂程度三个方面。工程地质特征与自由膨胀率是判别膨胀土的主要依据,但都不是唯一的,最终的决定因素是地基的分级变形量及胀缩的循环变形特性。 在使用本规范时,应特别注意收缩性强的土与膨胀土的区分。膨胀土的处理措施有些不适于收缩性强的土,如地面处理、基础埋深、防水处理等方面两者有很大的差别。对膨胀土而言,既要防止收缩,又要防止膨胀。 此外,膨胀土分布的规律和均匀性较差,在一栋建筑物场地内,有的属膨胀土,有的不属膨胀土。有些地层上层是非膨胀土,而下层是膨胀土。在一个场区内,这种例子更多。因此,对工程地质及土的膨胀潜势和地基的胀缩等级进行分区具有重要意义。
4.3.2 建筑场地的分类应符合下列要求:
1 地形坡度小于5°,或地形坡度为5°~14°且距坡肩水平距离大于10m的坡顶地带,应为平坦场地;
2 地形坡度大于等于5°,或地形坡度小于5°且同一建筑物范围内局部地形高差大于1m的场地,应为坡地场地。
条文说明
4.3.2 在场地类别划分上没有采用现行国家标准《岩土工程勘察规范》GB 50021规定的三个场地等级:一级场地(复杂场地)、二级场地(中等复杂场地)和三级场地(简单场地),而采用平坦场地和坡地场地。膨胀土地区自然坡很缓,超过14°就有蠕动和滑坡的现象,同时,大于5°坡上的建筑物变形受坡的影响而沉降量也较大。房屋损坏严重,处理费用较高。为使设计施工人员明确膨胀土坡地的危害及治理方法的特别要求,将三级场地(简单场地)划为平坦场地,将二级场地(中等复杂场地)和一级场地(复杂场地)划为坡地场地。膨胀土地区坡地的坡度大于14°已属于不良地形,处理费用太高,一般应避开。建议在一般情况下,不要将建筑物布置在大于14°的坡地上。 场地类别划分的依据:膨胀土固有的特性是胀缩变形,土的含水量变化是胀缩变形的重要条件。自然环境不同,对土的含水量影响也随之而异,必然导致胀缩变形的显著区别。平坦场地和坡地场地处于不同的地形地貌单元上,具有各自的自然环境,便形成了独自的工程地质条件。根据对我国膨胀土分布地区的8个省、9个研究点的调查,从坡地场地上房屋的损坏程度、边坡变形和斜坡上的房屋变形特点等来说明将其划分为两类场地的必要性。
- 坡地场地 (1) 建筑物损坏普遍而严重,两次调查统计见表1。
表1 坡地上建筑物损坏情况调查统计 
(2) 边坡变形特点 湖北郧县人民法院附近的斜坡上,曾布置了2个剖面的变形观测点,测点布置见图3,观测结果列于表2。从观测结果来看,在边坡上的各测点不但有升降变形,而且有水平位移;升降变形幅度和水平位移量都以坡面上的点最大,随着离坡面距离的增大而逐渐减小;当其离坡面15m时,尚有9mm的水平位移,也就是说,边坡的影响距离至少在15m左右;水平位移的发展导致坡肩地裂的产生。 
图3 湖北郧县人民法院边坡变形观测测点布置示意
表2 湖北郧县人民法院边坡观测结果 
注:1.“+”表示位移量增大,“-”表示位移量减小; 2.测点“边1”~“边2”间有一条地裂。 (3)坡地场地上建筑物变形特征 云南个旧东方红农场小学教室及个旧冶炼厂5栋家属宿舍,均处于5°~12°的边坡上,7年的升降观测,发现临坡面的变形与时间关系曲线是逐年渐次下降的,非临坡面基本上是波状升降。观测结果列于表3。从观测结果来看,临坡面观测点的变形幅度是非临坡面的1.35倍,边坡的影响加剧了建筑物临坡面的变形,从而导致建筑物的损坏。
表3 云南个旧东方红农场等处5°~12°边坡上建筑物升降变形观测结果 
表3中Ⅰ1栋建筑物:地形坡度为5°,一面临坡,无挡土墙;Ⅱ2~Ⅱ5栋建筑物:地形坡度为12°,Ⅱ3~Ⅱ5栋两面临坡。Ⅱ2栋一面临坡,有挡土墙。
(4)上述调查结果揭示了坡地场地的复杂性,说明坡地场地有其独特的工程地质条件: 
图4 坡地场地上的建筑物地质剖面示意 ① 地形地貌与地质组成结构密切相关。一般情况下地质组成的成层性基本与山坡一致,建筑物场地选择在斜坡时,场地平整挖填后,地基往往不均匀,见图4。由于地基土的不均匀,土的含水量也就有差异。在这种情况下,建筑物建成后,地基土的含水量与起始状态不一致,在新的环境下重新平衡,从而产生土的不均匀胀缩变形,对建筑物产生不利的影响。 ②坡地场地切坡平整后,在场地的前缘形成陡坡或土坎。土中水的蒸发既有坡肩蒸发,也有临空的坡面蒸发。鉴于两面蒸发和随距蒸发面的距离增加而蒸发逐渐减弱的状况,边坡楔形干燥区呈近似三角形(坡脚至坡肩上一点的连线与坡肩与坡面形成的三角形)。若山坡上冲沟发育而遭受切割时,就可能形成二向坡或三向坡,楔形干燥区也相应地增加。蒸发作用是如此,雨水浸润作用同样如此。两者比较,以蒸发作用最为显著,边坡的影响使坡地场地楔形干燥区内土的含水量急剧变化。东方红农场小学教室边坡地带土的含水量观测结果表明:楔形干燥区内土的含水量变化幅度为4.7%~8.4%,楔形干燥区外土的含水量变化幅度为1.7%~3.4%,前者是后者的(2.21~3.36)倍。由于楔形干燥区内土的含水量变化急剧,导致建筑物临坡面的变形是非临坡面的1.35倍(表3)。这说明边坡对建筑物影响的复杂性。 ③场地开挖边坡形成后,由于土的自重应力和土的回弹效应,坡体内土的应力要重新分布:坡肩处产生张力,形成张力带;坡脚处最大主应力方向产生旋转,临空面附近,最小主应力急剧降低,在坡面上降为“0”,有时甚至转变为拉应力。最大最小主应力差相应而增,形成坡体内最大的剪力区。 膨胀土边坡,当其土因受雨水浸润而膨胀时,土的自重压力对竖向变形有一定的制约作用。但坡体内的侧向应力有愈靠近坡面而显著降低和在临空面上降至“0”的特点,在此种应力状态下,加上膨胀引起的侧向膨胀力作用,坡体变形便向坡外发展,形成较大的水平位移。同时,坡体内土体受水浸润,抗剪强度大为衰减,坡顶处的张力带必将扩展,坡脚处剪应力区的应力更加集中,更加促使边坡的变形,甚至演变成蠕动和塑性滑坡。 2)平坦场地 平坦场地的地形地貌简单,地基土相对较为均匀,地基水分蒸发是单向的。形成与坡地场地工程地质条件大不相同的特点。 3)综上所述,平坦场地与坡地场地具有不同的工程地质条件,为便于有针对地对坡地场地地基采取相应可靠、经济的处理措施,把建筑场地划分为平坦场地和坡地场地两类是必要的。
4.3.3 场地具有下列工程地质特征及建筑物破坏形态,且土的自由膨胀率大于等于40%的黏性土,应判定为膨胀土:
1 土的裂隙发育,常有光滑面和擦痕,有的裂隙中充填有灰白、灰绿等杂色黏土。自然条件下呈坚硬或硬塑状态;
2 多出露于二级或二级以上的阶地、山前和盆地边缘的丘陵地带。地形较平缓,无明显自然陡坎;
3 常见有浅层滑坡、地裂。新开挖坑(槽)壁易发生坍塌等现象;
4 建筑物多呈“倒八字”、“X”或水平裂缝,裂缝随气候变化而张开和闭合。
条文说明
4.3.3 当土的自由膨胀率大于等于40%时,应按本规范要求进行勘察、设计、施工和维护管理。某些特殊地区,也可根据本规范划分膨胀土的原则作出具体的规定。 规范还重申,不应单纯按成因区分是否为膨胀土。例如下蜀纪黏土,在武昌青山地区属非膨胀土,而合肥地区则属膨胀土;红黏土有的属于膨胀土,有的则不属于膨胀土。因此,划分场区地基土的胀缩等级具有重要的工程意义。
4.3.4 膨胀土的膨胀潜势应按表4.3.4分类。
表4.3.4 膨胀土的膨胀潜势分类

4.3.5 膨胀土地基应根据地基胀缩变形对低层砌体房屋的影响程度进行评价,地基的胀缩等级可根据地基分级变形量按表4.3.5分级。
表4.3.5 膨胀土地基的胀缩等级

4.3.6 地基分级变形量应根据膨胀土地基的变形特征确定,可分别按本规范式(5.2.8)、式(5.2.9)和式(5.2.14)进行计算,其中土的膨胀率应按本规范附录E试验确定。
4.3.7 地基承载力特征值可由载荷试验或其他原位测试、结合工程实践经验等方法综合确定,并应符合下列要求:
1 荷载较大的重要建筑物宜采用本规范附录C现场浸水载荷试验确定;
2 已有大量试验资料和工程经验的地区,可按当地经验确定。
条文说明
4.3.7 为研究膨胀土地基的承载力问题,在全国不同自然地质条件的有代表性的试验点进行了65台载荷试验、85台旁压试验、64孔标准贯入试验以及87组室内抗剪强度试验,试图经过统计分析找出其规律。但因我国膨胀土的成因类型多,土质复杂且不均,所得结果离散性大。因此,很难给出一个较为统一的承载力表。对于一般中低层房屋,由于其荷载较轻,在进行初步设计的地基计算时,可参考表4中的数值。 
表4中含水比为天然含水量与液限的比值;表4适用于基坑开挖时土的天然含水量小于等于勘察取土试验时土的天然含水量。 鉴于不少地区已有较多的载荷试验资料及实测建筑物变形资料,可以建立地区性的承载力表。 对于高重或重要的建筑物应采用本规范规定的承载力试验方法并结合当地经验综合确定地基承载力。试验表明,土吸水愈多,膨胀量愈大,其强度降低愈多,俗称“天晴一把刀,下雨一团糟”。因此,如果先浸水后做试验,必将得到较小的承载力,这显然不符合实际情况。正确的方法是,先加载至设计压力,然后浸水,再加荷载至极限值。 采用抗剪强度指标计算地基承载力时,必须注意裂隙的发育及方向。在三轴饱和不固结不排水剪试验中,常常发生浸水后试件立即沿裂隙面破坏的情况,所得抗剪强度太低,也不符合半无限体的集中受压条件。此情况不应直接用该指标进行承载力计。
4.3.8 膨胀土的水平膨胀力可根据试验资料或当地经验确定。
条文说明
4.3.8 膨胀土地基的水平膨胀力可采用室内试验或现场试验测定,但现场的试验数据更接近实际,其试验方法和步骤、试验资料整理和计算方法建议如下,该试验可测定场地原状土和填土的水平膨胀力。实施时可根据不同需要予以简化。 1 试验方法和步骤
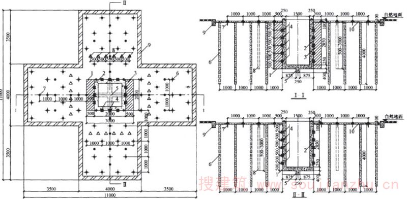
- 选择有代表性的地段作为试验场地,试坑和试验设备的布置如图5所示;

图5 现场水平膨胀力试验试坑和试验设备布置示意(图中单位:mm)
1—试验坑;2—钢筋混凝土井;3—非膨胀土;4—压力盒;5—抗滑梁;6—Ф127砂井;7—地表观测点;8—深层观测点(深度分别为0.5m、1.0m、1.5m、2.0m、2.5m、3.0m);9—砖砌墙;10—砂层
挖除试验区表层土,并开挖2m×3m深3m的试验坑;
试验坑内现场浇筑2m×2m高3.2m的钢筋混凝土井,相对的一组井壁与坑壁浇灌在一起,另一组井壁与坑壁之间留0.5m的间隙,间隙采用非膨胀土分层回填,人工压实,压实系数不小于0.94。钢筋混凝土井底部设置抗水平移动的抗滑梁;
钢筋混凝土井浇筑前,在井壁外侧地表下0.5m、1.0m、1.5m、2.0m、2.5m处设置5层土压力盒,每层布置12个土压力盒(每侧布置3个);
试验坑四周均匀布置Ф127的浸水砂井,砂井内填满中、粗砂,深度不小于当地大气影响急剧层深度,且不小于4m;
浸水砂井设置区域的四周采用砖砌墙形成砂槽,槽内满铺厚100mm的中、粗砂;
布置地表和深层观测点(图5),以测定地面及深层土体的竖向变形。观测水准基点及观测精度要求符合本规范附录B的有关规定;
土压力盒、地表观测点和深层观测点在浸水前测定其初测值;
在砂槽和砂井内浸水,浸水初期至少每8h观测一次,以捕捉最大水平膨胀力。后期可延长观测间隔时间,但每周不少于一次,直至膨胀稳定。观测包括压力盒读数、地表观测点和深层观测点测量等。测点某一时刻的水平膨胀力值等于压力盒测试值与其初测值之差;
试验前和试验后,分层取原状土样在室内进行物理力学试验和竖向不同压力下的膨胀率及膨胀力试验。
2 试验资料整理及计算
绘制不同深度水平膨胀力随时间的变化曲线(图6),以确定不同深度的最大水平膨胀力;
绘制水平膨胀力随深度的分布曲线(图7);

图6 深度h处水平膨胀压力随时间变化曲线示意 图7 水平膨胀力随深度分布曲线示意
同一场地的试验数量不应少于3点,当最大水平膨胀力试验值的极差不超过其平均值的30%时,取其平均值作为水平膨胀力的标准值;
通过测定土层的竖向分层位移,求得土的水平膨胀力与其相对膨胀量之间的关系。
5 设计
5.1 一般规定
5 设计
5.1 一般规定
5.1.1 膨胀土地基上建筑物的设计应遵循预防为主、综合治理的原则。设计时,应根据场地的工程地质特征和水文气象条件以及地基基础的设计等级,结合当地经验,注重总平面和竖向布置,采取消除或减小地基胀缩变形量以及适应地基不均匀变形能力的建筑和结构措施;并应在设计文件中明确施工和维护管理要求。
条文说明
5.1.1 本条规定是在总结国内外经验基础上提出的。膨胀土的活动性很强,对环境变化的影响极为敏感,土中含水量变化、胀缩变形的产生和幅度大小受多种外界因素的制约。有的房屋建成一年后就会开裂破坏,有的则在20年后才出现裂缝。膨胀土地基问题十分复杂,虽然国内外科技工作者在膨胀土特性、评价和设计处理方面进行了大量的研究和实测工作,但目前尚未形成一门系统的学科。特别是在膨胀土危害防治方面尚需进一步研究和实践。 建造在膨胀土地基上的低层房屋,若不采取预防措施时,10mm~20mm的胀缩变形幅度就能导致砌体结构的破坏,比一般地基上的允许变形值要小得多。之前,在国内和外事工程中由于对膨胀土的特性缺乏认识,造成新建房屋成片开裂破坏,损失极大。因此,在膨胀土上进行工程建设时,必须树立预防为主的理念,有时在可行性研究阶段应予“避让”。 所谓“综合治理”就是在设计、施工和维护管理上都要采取减少土中水分变化和胀缩变形幅度的预防措施。我国膨胀土多分布于山前丘陵、盆地边缘、缓丘坡地地带。建筑物的总平面和竖向布置应顺坡就势,避免大挖大填,做好房前屋后边坡的防护和支挡工程。同时,尽量保持场地天然地表水的排泄系统和植被,并组织好大气降水和生活用水的疏导,防止地面水大量积聚。对环境进行合理绿化,涵养场地土的水分等都是宏观的预防措施。 单体工程设计时,应根据建筑物规模和重要性综合考虑地基基础设计等级和工程地质条件,采取本规范规定的单一措施或以一种措施为主辅以其他措施预防。例如:地基土较均匀,胀缩等级为Ⅰ、Ⅱ级膨胀土上的房屋可采取以基础埋深来降低其胀缩变形幅度,保证建筑物的安全和正常使用;而场地条件复杂,胀缩等级为Ⅲ级膨胀土上的重要建筑物,以桩基为主要预防措施,在结构上配以圈梁和构造柱等辅助措施,确保建筑物安全。 应当指出,我国幅员辽阔,膨胀土的成因类型和气候条件差异较大,在设计时应吸取并注重地方经验,做到因地制宜、技术可行、经济合理。
5.1.2 建筑物地基设计应根据建筑结构对地基不均匀变形的适应能力,采取相应的措施。地基分级变形量小于15mm以及建造在常年地下水位较高的低洼场地上的建筑物,可按一般地基设计。
条文说明
5.1.2 根据膨胀土地区的调查材料,膨胀土地基上具有较好的适应不均匀变形能力的建筑物,其主体结构损坏极少,如木结构、钢结构及钢筋混凝土框排架结构。但围护墙体可能产生开裂。例如采用砌体做围护墙时,如果墙体直接砌在地基上,或基础梁下未留空间时,常出现开裂。因此,在本规范第5.6.7条规定了相应的结构措施;工业厂房往往有砌体承重的低层附属建筑,未采取防治措施时损坏较多,应按有关砌体承重结构设计条文处理。 常年地下水位较高是指水位一般在基础埋深标高下3m以内,由于毛细作用土中水分基本是稳定的,胀缩可能性极小。因此,可按一般天然地基进行设计。
5.1.3 地下室外墙的土压力应同时计及水平膨胀力的作用。
5.1.4 对烟囱、炉、窑等高温构筑物和冷库等低温建筑物,应根据可能产生的变形危害程度,采取隔热保温措施。
5.1.5 在抗震设防地区,建筑和结构防治措施应同时满足抗震构造要求。
5.2 地基计算
5.2 地基计算
Ⅰ 基础埋置深度
5.2.1 膨胀土地基上建筑物的基础埋置深度,应综合下列条件确定:
1 场地类型;
2 膨胀土地基胀缩等级;
3 大气影响急剧层深度;
4 建筑物的结构类型;
5 作用在地基上的荷载大小和性质;
6 建筑物的用途,有无地下室、设备基础和地下设施,基础形式和构造;
7 相邻建筑物的基础埋深;
8 地下水位的影响;
9 地基稳定性。
条文说明
5.2.1 膨胀土上建筑物的基础埋深除满足建筑的结构类型、基础形式和用途以及设备设施等要求外,尚应考虑膨胀土的地质特征和胀缩等级对结构安全的影响。
5.2.2 膨胀土地基上建筑物的基础埋置深度不应小于1m。 (自2022年1月1日起废止该条,详见新规 《建筑与市政地基基础通用规范》 GB 55003-2021)
条文说明
5.2.2 膨胀土场地大量的分层测标、含水量和地温等多年观测结果表明:在大气应力的作用下,近地表土层长期受到湿胀干缩循环变形的影响,土中裂隙发育,土的强度指标特别是凝聚力严重降低,坡地上的大量浅层滑动也往往发生在地表下1.0m的范围内。该层是活动性极为强烈的地带,因此,本规范规定建筑物 基础埋置深度不应小于1.0m。
5.2.3 平坦场地上的多层建筑物,以基础埋深为主要防治措施时,基础最小埋深不应小于大气影响急剧层深度;对于坡地,可按本规范第5.2.4条确定;建筑物对变形有特殊要求时,应通过地基胀缩变形计算确定,必要时,尚应采取其他措施。
条文说明
5.2.3 当以基础埋深为主要预防措施时,对于平坦场地,基础埋深不应小于当地的大气影响急剧层。例如:安徽合肥基础埋深大于1.6m时,地基的胀缩变形量已能满足要求,可不再采取其他防治措施;云南鸡街地区有6栋平房基础埋深1.5m~2.0m,经过多年的位移观测,房屋的变形幅度仅为1.4mm~4.7mm,房屋完好无损。而另一栋房屋基础埋深为0.6m,房屋的位移幅度达到49.6mm,房屋严重破坏。但是,对于胀缩等级为Ⅰ级的膨胀土地基上的(1~2)层房屋,过大的基础埋深可能使得造价偏高。因此,可采用墩式基础、柔性结构以及宽散水、砂垫层等措施减小基础埋深。如在某地损坏房屋地基上建造的试验房屋,采用墩式基础加砂垫层后,基础埋深为0.5m,也未发现房屋开裂。但是离地表1m深度内地基土含水量变化幅度及上升、下降变形都较大,对Ⅱ、Ⅲ级膨胀土上的建筑物容易引起开裂。 由于各种结构的允许变形值不同,通过变形计算确定合适的基础埋深,是比较有效而经济的方法。
5.2.4 当坡地坡角为5°~14°,基础外边缘至坡肩的水平距离为5m~10m时,基础埋深(图5.2.4)可按下式确定:
d =0.45 d a +(10- l p )tan β +0.30 (5.2.4)
式中: d ——基础埋置深度(m);
d a ——大气影响深度(m);
β ——设计斜坡坡角(°);
l p ——基础外边缘至坡肩的水平距离(m)。

图5.2.4 坡地上基础埋深计算示意
条文说明
5.2.4 式(5.2.4)是基于坡度小于14°边坡为稳定边坡的概念以及本规范第4.3.2条第1款平坦场地的条件而定的。当场地的坡度为5°~14°、基础外边缘距坡肩距离大于10m时,按平坦场地考虑;小于等于10m时,基础埋深的增加深度按(10-lp)tanβ+0.30取用,以降低因坡地临空面增大而引起的环境变化对土中水分的影响。
Ⅱ 承载力计算
5.2.5 基础底面压力应符合下列规定:
1 当轴心荷载作用时,基础底面压力应符合下式要求:
p k ≤f a (5.2.5-1)
式中:p k ——相应于荷载效应标准组合时,基础底面处的平均压力值(kPa);
f a ——修正后的地基承载力特征值(kPa)。
2 当偏心荷载作用时,基础底面压力除应符合式(5.2.5-1)要求外,尚应符合下式要求:
p kmax ≤1.2fa (5.2.5-2)
式中:p kmax ——相应于荷载效应标准组合时,基础底面边缘的最大压力值(kPa)。
5.2.6 修正后的地基承载力特征值应按下式计算:
f a =f ak +γ m (d-1.0) (5.2.6)
式中:f ak ——地基承载力特征值(kPa),按本规范第4.3.7条的规定确定;
γ m ——基础底面以上土的加权平均重度,地下水位以下取浮重度。
条文说明
5.2.6 鉴于膨胀土中发育着不同方向的众多裂隙,有时还存在薄的软弱夹层,特别是吸水膨胀后土的抗剪强度指标C、φ值呈较大幅度降低的特性,膨胀土地基承载力的修正不考虑基础宽度的影响,而深度修正系数取1.0。如原苏联学者索洛昌用天然含水量为32%~37%的膨胀十在无荷条件下浸水膨胀稳定后进行快剪试验,Ф值由14°降为7°,降低了50%;C值由67kPa降为15kPa,降低了78%。我国学者廖济川用天然含水量为28%的滑坡后土样进行先干缩后浸水的快剪及固结快剪试验,其C、Ф值都减少了50%以上。
Ⅲ 变形计算
5.2.7 膨胀土地基变形量,可按下列变形特征分别计算:
1 场地天然地表下1m处土的含水量等于或接近最小值或地面有覆盖且无蒸发可能,以及建筑物在使用期间,经常有水浸湿的地基,可按膨胀变形量计算;
2 场地天然地表下1m处土的含水量大于1.2倍塑限含水量或直接受高温作用的地基,可按收缩变形量计算;
3 其他情况下可按胀缩变形量计算。
条文说明
5.2.7 对全国膨胀土地区7个省中167栋不同场地条件有代表性的房屋和构筑物(其中包括23栋新建试验房)进行了(4~10)年的竖向和水平位移、墙体裂缝、室内外不同深度的土体变形和含水量、地温以及树木影响的观测工作,对158栋较完整的资料进行统计分析表明,由于各地场地、气候和覆盖等条件的不同,膨胀土地基的竖向变形特征可分为上升型、下降型和升降循环波动型三种,如图8所示。 
表5 膨胀土上房屋位移统计 
上升型位移是由于房屋建成后地基土吸水膨胀产生变形,导致房屋持续多年的上升,如图8中的曲线1。例如:河南平顶山市一栋平房建于1975年的旱季,房屋各点均持续上升,到1979年上升量达到45mm。应当指出,房屋各处的上升是不均匀的,且随季节波动,这种不均匀变形达到一定程度,就会导致房屋开裂破坏。产生上升型位移的主要原因如下:
1)建房时气候干旱,土中含水量偏低;
2)基坑长期曝晒;
3)建筑物使用期间长期受水浸润。
波动型的特点是房屋位移随季节性降雨、干旱等气候变化而周期性的上升或下降,一个水文年基本为一循环周期,如图8曲线2。我国膨胀土多分布于亚干旱和亚湿润气候区,土的天然含水量接近塑限,房屋位移随气候变化的特征比较明显。表6是各地气候与房屋位移状况的对照。可以看出,在广西、云南地区,房屋一般在二、三季度的雨季因土中含水量增加而膨胀上升;在四、一季度的旱季随土中水分大量蒸发而收缩下沉。但长江以北的中原、江淮和华北地区,情况却与之相反。这是因为该地区雨季集中在(7~8)月份,并常以暴雨形式出现,地面径流量大,向土中渗入量少。房屋的位移主要受地温梯度的变化影响而上升或下降。在冬、春季节,地表温度远低于下部恒温带。根据土中水分由高温向低温转移的规律,水分由下部向上部转移,使上部土中的含水量增大而导致地基土上升;在夏、秋季节,水分向下转移并有大量的地面蒸发,使地基土失水而收缩下沉。
表6 各地气候与房屋位移

下降型常出现在土的天然含水量较高(例如大于1.2ωp)或建筑物靠近边坡地带,如图8中的曲线3。在平坦场地,房屋下降位移主要是土中水分减少,地基产生收缩变形的结果。土中水分减少,可能是气候干旱,水分大量蒸发的结果,也可能是局部热源或蒸腾量大的种木(如桉树)大量吸取土中水分的结果。至于临坡建筑物,位移持续下降,一方面是坡体临空面大于平地,土中水分更容易蒸发而导致较平坦场地更大的收缩变形。另一方面,坡体向外侧移而产生的竖向变形(即剪应变引起),这种在三向应力条件下侧向位移引起的竖向变形是不可逆的。湖北郧县膨胀土边坡观测中就发现了上述状况,它的发展必然导致坡体滑动。上述下降收缩变形量的计算是指土体失水收缩而引起的竖向下沉,在设计中应避免后一种情况的发生。
本条给出的天然地表下1.0m深度处的含水量值,是经统计分析得出的一般规律,未包括荷载、覆盖、地温之差等作用的影响。当土中的应力大于其膨胀力时,土体就不会发生膨胀变形,由收缩变形控制。对于高重的建筑物,当基础埋于大气影响急剧层以下时,主要受地基土的压缩变形控制,应按相关技术标准进行建筑物的沉降计算。
5.2.8 地基土的膨胀变形量应按下式计算:

(5.2.8)
式中: 
——地基土的膨胀变形量(mm);

——计算膨胀变形量的经验系数,宜根据当地经验确定,无可依据经验时,三层及三层以下建筑物可采用0.6;

——基础底面下第i层土在平均自重压力与对应于荷载效应准永久组合时的平均附加压力之和作用下的膨胀率(用小数计),由室内试验确定;

——第i层土的计算厚度(mm);

——基础底面至计深度内所划分的土层数,膨胀变形计算深度 z en (图5.2.8),应根据大气影响深度确定,有浸水可能时可按浸水影响深度确定;

图5.2.8 地基土的膨胀变形计算示意
1-自重压力曲线;2-附加压力曲线
条文说明
5.2.8 式(5.2.8)实际上是地基土在不同压力下各层土膨胀量的分层总和。计算图式和参数的选择是根据膨胀土两个重要性质确定的:
当土的初始含水量一定时,上覆压力小膨胀量大,压力大时膨胀量小。当压力超过土的膨胀力时就不膨胀,并出现压缩,膨胀力与膨胀量呈非线性关系。在计算过程中,如某压力下的膨胀率为负值时,即不发生膨胀变形,该层土的膨胀量为零。
当土的上覆压力一定时,初始含水量高的土膨胀量小,初始含水量低的土膨胀量大。含水量与膨胀量之间也为非线性关系。地基土的膨胀变形过程是其含水量不断增加的过程,膨胀量随其含水量的增加而持续增大,最终到达某一定值。因此,膨胀量的计算值是预估的最终膨胀变形量,而不是某一时段的变形量。
关于膨胀变形计算的经验系数 室内和原位的膨胀试验以及房屋的变形观测资料,都能反映地基土的膨胀变形随土中含水量和上覆压力的不同而变化的特征,为我们提供了用室内试验指标来计算地基膨胀变形量的可能性。但是,由室内试验指标提供的计算参数,是用厚度和面积都较小的试件,在有侧限的环刀内经充分浸水而取得的。而地基土在膨胀变形过程中,受力情况及浸水和边界条件都与室内试验有着较大的差别。上述因素综合影响的结果给计算膨胀变形量和实测变形量之间带来较大的差别。为使计算膨胀变形量较为接近实际,必须对室内外的试验观测结果全面地进行计算分析和比对,找出其间的数量关系,这就是膨胀变形计算的经验系数
。 对河北邯郸、河南平顶山、安徽合肥、湖北荆门、广西宁明、云南鸡街和蒙自等地的40项浸水载荷试验和6栋试验性房屋以及12栋民用房屋的室内外试验资料分别计算膨胀量,与实测最大值进行比对。根据统计分析,浸水部分的
=0.47±0.12。 图9是按
=0.47修正后的计算值与实测值的比较结果。表7和图10为浸水部分的统计分布状况。12栋民用房屋的
中值与浸水部分相同,只有平顶山地区的
偏大且离散性也较大,这是由于室内试验资料较少且欠完整的缘故。考虑到实际应用,取
=0.6时,对80%的房屋是偏于安全的。 

5.2.9 地基土的收缩变形量应按下式计算:

(5.2.9)
式中:S s ——地基土的收缩变形量(mm);

——计算收缩变形量的经验系数,宜根据当地经验确定,无可依据经验时,三层及三层以下建筑物可采用0.8;

——基础底面下第i层土的收缩系数,由室内试验确定;

——地基土收缩过程中,第i层土可能发生的含水量变化平均值(以小数表示),按本规范式(5.2.10-1)计算;

——基础底面至计算深度内所划分的土层数,收缩变形计算深度z sn (图5.2.9),应根据大气影响深度确定;当有热源影响时,可按热源影响深度确定;在计算深度内有稳定地下水位时,可计算至水位以上3m。

图5.2.9 地基土收缩变形计算含水量变化示意
条文说明
5.2.9 失水收缩是膨胀土的另一属性。收缩变形量的大小取决于土的成分、密度和初始含水量。 1) 就同一性质的膨胀土而言,在相同条件下,其初始含水量
越高(饱和度越高,孔隙比越大),在收缩过程中失水量就越多,收缩变形量也就越大。表8和图11是广西南宁原状土样室内收缩试验所测得的收缩量与含水量之间的关系。图中的三条曲线表明,当土样的起始含水量分别为36.0%~44.7%,并同样干燥到缩限
时,其线缩率
从3.7%增大到7.3%。所谓缩限,是土体在收缩变形过程中,由半固态转入固态时的界限含水量。从每条曲线的斜率变化可以看出:当土的含水量达到缩限之后,土体虽然仍在失水,但其变形量已经很小,从对建筑工程的影响来说,已失去其实际的意义。 



- 土失水收缩与外部荷载作用下的固结压密变形是同向的变形,都是孔隙比减少、密度增大的结果。但两者有根本性的区别:失水收缩主要是土的黏粒周围薄膜水或晶格水大量散失的结果;固结压密变形是在荷重的作用下土颗粒移动重新排列的结果(特别是非饱和土,在一般压力下并无固结排水现象)。由收缩产生的内应力要比固结压密产生的内应力大得多。虽然实际工程中膨胀土的失水收缩和荷载作用下的压缩沉降变形难于分开,但在试验室内可有意识地将两种性质不同的变形区别开来。
- 膨胀土多呈坚硬和半坚硬状态,其压缩模量大。在一般低层房屋所能产生的压力范围内,土的密度改变较小。所以,土在收缩前所处的压力大小对收缩量的影响较小;至于收缩过程中,土样一旦收缩便处于超压密状态,压力改变土密度的影响更可以忽略不计。图13为云南鸡街地区,膨胀土在自然风干条件下,不同荷载的压板试验沉降稳定后,在干旱季节所测得的收缩变形量,可说明上述问题。

1—基础埋深0.7m,测试日期:1975年4~5月;2—基础埋深0.7m,测试日期:1977年3~5月;3—基础埋深2.0m,测试日期:1977年10~12月
- 关于收缩变形计算的经验系数
与膨胀变形量计算的道理一样,小土样的室内试验提供的计算指标与原位地基土在收缩变形过程中的工作条件存在一定的差别。为使计算的收缩变形量与实测的变形量较为接近,在全国几个膨胀土地区结合实际工程,进行了室内外的试验观测工作,并按收缩变形计算公式进行计算与统计分析,以确定收缩变形量计算值与实测值之间的关系。对四个地区15栋民
用房屋室内外试验资料进行计算并与实测值比对,其结果为收缩变形量计算经验系数
=0.58±0.23。取
=0.8,对实际工程而言,80%是偏于安全的,
的统计分布见表10和图14。
表10 收缩量计算的经验系数 
统计分布


图14 收缩变形量计算经验系数
的统计分布状况
- 计算收缩变形量的公式是一个通式,其中最困难的是含水量变化值,应根据引起水分减少的主要因素确定。局部热源及树木蒸腾很难采用计算来确定其收缩变形量。
5.2.10 收缩变形计算深度内各土层的含水量变化值(图 5.2.9),应按下列公式计算。地表下4m深度内存在不透水基岩时,可假定含水量变化值为常数[图5.2.9(b)]:

(5.2.10-1)

(5.2.10-2)
式中: 
—— 第i层土的含水量变化值(以小数表示);

——地表下1m处土的含水量变化值(以小数表示);

、 
——地表下1m处土的天然含水量和塑限(以小数表示);

——土的湿度系数,在自然气候影响下,地表下1m处土层含水量可能达到的最小值与其塑限之比。
5.2.11 土的湿度系数应根据当地10年以上土的含水量变化确定,无资料时,可根据当地有关气象资料按下式计算:

(5.2.11)
式中: 
——当地9月至次年2月的月份蒸发力之和与全年蒸发力之比值(月平均气温小于0℃的月份不统计在内)。我国部分地区蒸发力及降水量的参考值可按本规范附录H取值;
c——全年中干燥度大于1.0且月平均气温大于0℃月份的蒸发力与降水量差值之总和(mm),干燥度为蒸发力与降水量之比值。
条文说明
5.2.10、5.2.11 87规范编制时的研究证明,我国膨胀土在自然气候影响下,土的最小含水量与塑限之间有密切关系。同时,在地下水位深的情况下,土中含水量的变化主要受气候因素的降水和蒸发之间的湿度平衡所控制。由此,可根据长期(10年以上)含水量的实测资料,预估土的湿度系数值。从地区看,某一地区的气候条件比较稳定,可以用上述方法统计解决,这样可能更准确。从全国看,特别是一些没有观测资料的地区,最小含水量仍无法预测,因此,原规范组建立了气候条件与湿度系数的关系。从此关系中,还可预测某些地区膨胀土的胀缩势能可能产生的影响,及其对建筑物的危害程度。例如,在湿度系数为0.9的地区,即使为强亲水性的膨胀土,其地基上的胀缩等级可能为弱的Ⅰ级,而在0.7、0.6的地区可能是Ⅱ、Ⅲ级。即土质完全相同的情况下,在湿度系数较高的地区,其分级变形量将低于湿度系数较低的地区;在湿度系数较低的地区,其分级变形量将高于湿度系数较高的地区。 湿度系数计算举例:
- 某膨胀土地区,中国气象局(1951~1970)年蒸发力和降水量月平均值资料如表11,干燥度大于1的月份的蒸发力和降水量月平均值资料如表12。
表11 某地20年蒸发力和降水量月平均值 
表11中由于实际蒸发量尚难全面科学测定,中国气象局按彭曼(H.L.Penman)公式换算出蒸发力。经证实,实用效果较好。公式包括日照、气温、辐射平衡、相对湿度、风速等气象要素。
表12 干燥度大于1的月份的蒸发力和降水量 
5.2.12 大气影响深度应由各气候区土的深层变形观测或含水量观测及地温观测资料确定;无资料时,可按表5.2.12采用。
表5.2.12 大气影响深度(m)

条文说明
5.2.12 实测资料表明,环境因素的变化对胀缩变形及土中水分变化的影响是有一定深度范围的。该深度除与当地的气象条件(如降雨量、蒸发量、气温和湿度以及地温等)有关外,还与地形地貌、地下水和土层分布有关。图15是云南鸡街在两年内对三个工程场地四个剖面的含水量沿深度变化的统计结果。在地表下0.5m处含水量变化幅度为7%;而在4.5m处,变化幅度为2%,其环境影响已很微弱。图16由深层测标测得土体变形幅度沿其深度衰减的状况,表明平坦场地与坡地地形差别的影响较为显著。本规范表5.2.12给出的数值是根据平坦场地上多个实测资料,结合当地气象条件综合分析的结果,它不包括局部热源、长期浸水以及树木蒸腾吸水等特殊状况。 含水量年变化幅度Δω(%) 位移幅度(mm) 

图15 土中含水量沿深度的变化 图16不同地形条件下的分层位移量 1—室内;2—室外 1—湖北荆门(平坦场地);2—湖北郧县(山地坡肩)
5.2.13 大气影响急剧层深度,可按本规范表5.2.12中的大气影响深度值乘以0.45采用。
5.2.14 地基土的胀缩变形量应按下式计算:

(5.2.14)
式中: 
——地基土的胀缩变形量(mm);

——计算胀缩变形量的经验系数,宜根据当地经验确定,无可依据经验时,三层及三层以下可取0.7。
条文说明
5.2.14
室内土样在一定压力下的干湿循环试验与实际建筑的胀缩波动变形的观测资料表明:膨胀土吸水膨胀和失水收缩变形的可逆性是其一种重要的属性。其胀缩变形的幅度同样取决于压力和初始含水量的大小。因此,膨胀土胀缩变形量的大小也完全可通过室内试验获得的特性指标 
和 
以及上覆压力的大小和水分变化的幅度估算。本规范式(5.2.14)实质上是式(5.2.8)和式(5.2.9)的叠加综合。
大量现场调查以及沉降观测证明,膨胀土地基上的房屋损坏,在建筑场地稳定的条件下,均系长期的往复地基胀缩变形所引起。同时,轻型房屋比重型房屋变形大,且不均匀,损坏也重。因此,设计的指导思想是控制建筑物地基的最大变形幅度使其不大于建筑物地基所允许的变形值。
引起变形的因素很多,有些问题目前尚不清楚,有些问题要通过复杂的试验和计算才能取得。例如有边坡时房屋变形值要比平坦地形时大,其增大的部分决定于在旱、雨循环条件 下坡体的水平位移。在这方面虽然可以定性地说明一些问题,但从计算上还没有找到合适而简化的方法。土力学中类似这样的问题很多,解决的出路在于找到影响事物的主要因素,通过技术措施使其不起作用或少起作用。膨胀土地基变形计算,指在半无限体平面条件下,房屋的胀缩变形计算。对边坡蠕动所引起的房屋下沉则通过挡土墙、护坡、保湿等措施使其减少到最小程度,再按变形控制的原则进行设计。
胀缩变形量算例:
- 某单层住宅位于平坦场地,基础形式为墩基加地梁,基础底面积为800mm×800mm,基础埋深d=1m,基础底面处的平均附加压力P0 =100kPa。基底下各层土的室内试验指标见表14。根据该地区10年以上有关气象资料统计并按本规范式(5.2.11)计算结果,地表下1m处膨胀土的湿度系数

=0.8,查本规范表5.2.12,该地区的大气影响深度da =3.5m。因而取地基胀缩变形计算深度zn =3.5m。


图17 地基胀缩变形量计算分层示意

表15 膨胀变形量计算表

表15中基础长度为L(mm),基础宽度为b(mm)。
- 表14查出地表下1m处的天然含水量为ω1=0.205,塑限ω0=0.219;则


表16 收缩变形量计算表

- 由本规范式(5.2.14),求得地基胀缩变形总量为:

5.2.15 膨胀土地基变形量取值,应符合下列规定:
1 膨胀变形量应取基础的最大膨胀上升量;
2 收缩变形量应取基础的最大收缩下沉量;
3 胀缩变形量应取基础的最大胀缩变形量;
4 变形差应取相邻两基础的变形量之差;
5 局部倾斜应取砌体承重结构沿纵墙6m~10m内基础两点的变形量之差与其距离的比值。
5.2.16 膨胀土地基上建筑物的地基变形计算值,不应大于地基变形允许值。地基变形允许值应符合表5.2.16的规定。表5.2.16中未包括的建筑物,其地基变形允许值应根据上部结构对地基变形的适应能力及功能要求确定。 (自2022年1月1日起废止该条,详见新规 《建筑与市政地基基础通用规范》 GB 55003-2021)
表5.2.16 膨胀土地基上建筑物地基变形允许值

注: l 为相邻柱基的中心距离(m)
条文说明
5.2.16 通过对55栋新建房屋位移观测资料的统计,并结合国外有关资料的分析,得出表5.2.16有关膨胀土上建筑物地基变形值的允许值。上述55栋房屋有的在结构上采取了诸如设置钢筋混凝土圈梁(或配筋砌体)、构造柱等加强措施,其结果按不同状况分述如下:
- 砌体结构
表17和表18为砌体结构的实测变形量与其开裂破坏的状况。 
从46栋砖石承重结构的变形量可以看出:29栋完好房屋中,变形量小于10mm的占其总数的58.62%;小于20mm的占其总数的79.31%。17栋损坏房屋中,88.24%的房屋变形量大于10mm。
从32栋砖石承重结构的局部倾斜值可以看出:18栋完好房屋中,局部倾斜值小于1‰的占其总数的38.89%;小于2‰的占其总数的83.33%。14栋墙体开裂房屋的局部倾斜值均大于1‰,在1‰~2‰时其损坏率达到57.14%。
综上所述,对于砖石承重结构,当其变形量小于等于15mm,局部倾斜值小于等于1‰时,房屋一般不会开裂破坏。
- 墙体设置钢筋混凝土圈梁或配筋的砌体结构
表19列出了7栋墙体设置钢筋混凝土圈梁或配筋砌体的房屋,其中完好的房屋有5栋,其变形量为4.9mm~26.3mm;局部倾斜为0.83‰~1.55‰。两栋开裂损坏的房屋变形量为19.2mm~40.2mm;局部倾斜为1.33‰~1.83‰。其中办公楼(三层)上部结构的处理措施为:在房屋的转角处设置钢筋混凝土构造柱,三道圈梁,墙体配筋。建筑场地地质条件复杂且有局部浸水和树木影响。房屋竣工后不到一年就开裂破坏。招待所(二层)墙体设置两道圈梁,内外墙交接处及墙端配筋。房屋的平面为“
”形,三个单元由沉降缝隔开。场地的地质条件单一。房屋两端破坏较重,中间单元整体倾斜,损坏较轻。因此,设置圈梁或配筋的砌体结构,房屋的允许变形量取小于等于30mm;局部倾斜值取小于等于1.5‰。

- 钢筋混凝土排架结构
钢筋混凝土排架结构的工业厂房,只观测了两栋。其中一栋仅墙体开裂,主要承重结构完好无损。见表20。

机修车间1979年6月外纵墙开裂时的最大变形量为27.5mm,相邻两柱间的变形差为0.0025l。到1981年12月最大变形量达41.3mm,变形差达0.003l。究其原因,归咎于附近一棵大桉树的吸水蒸腾作用,引起地基土收缩下沉。从而导致墙体开裂。但主体结构并未损坏。
单层排架结构的允许变形值,主要由相邻柱基的升降差控制。对有桥式吊车的厂房,应保证其纵向和横向吊车轨道面倾斜不超过3‰,以保证吊车的正常运行。
我国现行的地基基础设计规范规定:单层排架结构基础的允许沉降量在中低压缩性土上为120mm;吊车轨面允许倾斜:纵向0.004,横向0.003。原苏联1978年出版的《建筑物地基设计指南》中规定:由于不均匀沉降在结构中不产生附加应力的房屋,其沉降差为0.006l,最大或平均沉降量不大于150mm。对膨胀土地基,将上述数值分别乘以0.5和0.25的系数。即升降差取0.003l,最大变形量为37.5mm。结合现有有限的资料,可取最大变形量为40mm,升降差取0.003l为单层排架结构(6m柱距)的允许变形量。
从全国调查研究的结果表明:膨胀土上损坏较多的房屋是砌体结构;钢筋混凝土排架和框架结构房屋的破坏较少。砖砌烟囱有因倾斜过大被拆除的实例,但无完整的观测资料。对于浸湿房屋和高温构筑物主要应做好防水和隔热措施。对于表中未包括的其他房屋和构筑物地基的允许变形量,可根据上部结构对膨胀土特殊变形状况的适应能力以及使用要求,参考有关规定确定。
上述变形量的允许值与国外一些报道的资料基本相符,如原苏联的索洛昌认为:膨胀土上的单层房屋不设置任何预防措施,当变形量达到10mm~20mm时,墙体将出现约为10mm宽的裂缝。对于钢筋混凝土框架结构,允许变形量为20mm;对于未配筋加强的砌体结构,允许变形量为20mm,配筋加强时可加大到35mm。根据南非大量膨胀土上房屋的观测资料,J·E·詹宁格斯等建议当房屋的变形量大于12mm~15mm时,必须采取专门措施预先加固。
膨胀土上房屋的允许变形量之所以小于一般地基土,原因在于膨胀土变形的特殊性。在各种外界因素(如土质的不均匀性、季节气候、地下水、局部水源和热源、树木和房屋覆盖的作用等)影响下,房屋随着地基持续的不均匀变形,常常呈现正反两个方向的挠曲。房屋所承受的附加应力随着升降变形的循环往复而变化,使墙体的强度逐渐衰减。在竖向位移的同时,往往伴随有水平位移及基础转动,几种位移共同作用的结果,使结构处于更为复杂的应力状态。从膨胀土的特征来看,土质一般情况下较坚硬,调整上部结构不均匀变形的作用也较差。鉴于上述种种因素,膨胀土上低层砌体结构往往在较小的位移幅度时就产生开裂破坏。
Ⅳ 稳定性计算
5.2.17 位于坡地场地上的建筑物地基稳定性,应按下列规定进行验算:
1 土质较均匀时,可按圆弧滑动法验算;
2 土层较薄,土层与岩层间存在软弱层时,应取软弱层面为滑动面进行验算;
3 层状构造的膨胀土,层面与坡面斜交,且交角小于45°时,应验算层面的稳定性。
条文说明
5.2.17 根据目前获得的大量工程实践资料,虽然膨胀土具有自身的工程特性,但在比较均匀或其他条件无明显差异的情况下,其滑面形态基本上属于圆弧形,可以按一般均质土体的圆弧滑动法验算其稳定性。当膨胀土中存在相对软弱的夹层时,地基的失稳往往沿此面首先滑动,因此将此面作为控制性验算面。层状构造土系指两类不同土层相间成韵律的沉积物、具有明显层状构造特征的土。由于层状构造土的层状特性,表现在其空间分布上的不均匀性、物理性指标的差异性、力学性指标的离散性、设计参数的不确定性等方面使土的各向异性特征更加突出。因此,其特性基本控制了场地的稳定性。当层面与坡面斜交的交角大于45°时,稳定性由层状构造土的自身特性所控制,小于45°时,由土层间特性差异形成相对软弱带所控制。
5.2.18 地基稳定性安全系数可取1.2。验算时,应计算建筑物和堆料的荷载、水平膨胀力,并应根据试验数据或当地经验计及削坡卸荷应力释放、土体吸水膨胀后强度衰减的影响。
5.3 场址选择与总平面设计
5.3 场址选择与总平面设计
5.3.1 场址选择宜符合下列要求:
1 宜选择地形条件比较简单,且土质比较均匀、胀缩性较弱的地段;
2 宜具有排水畅通或易于进行排水处理的地形条件;
3 宜避开地裂、冲沟发育和可能发生浅层滑坡等地段;
4 坡度宜小于14°并有可能采用分级低挡土结构治理的地段;
5 宜避开地下溶沟、溶槽发育、地下水变化剧烈的地段。
条文说明
5.3.1 本条第4款“坡度小于14°并有可能采用分级低挡土墙治理的地段”,这里所指的坡度是指自然坡,它是根据近百个坡体的调查后得出的斜坡稳定坡度值。但应说明,地形坡度小于14°,大于或等于5°坡角时,还有滑动可能,应按坡地地基有关规定进行设计。 本条第5款要求是针对深层膨胀土的变形提出的。一般情况下,膨胀土场地(或地区)地下水埋藏较深,膨胀土的变形主要受气候、温差、覆盖等影响。但是在岩溶发育地区,地下水活动在岩土界面处,有可能出现下层土的胀缩变形,而这种变形往往局限在一个狭长的范围内,同时,也有可能出现土洞。在这种地段建设问题较多,治理费用高,故应尽量避开。
5.3.2 总平面设计应符合下列要求:
1 同一建筑物地基土的分级变形量之差,不宜大于35mm;
2 竖向设计宜保持自然地形和植被,并宜避免大挖大填;
3 挖方和填方地基上的建筑物,应防止挖填部分地基的不均匀性和土中水分变化所造成的危害;
4 应避免场地内排水系统管道渗水对建筑物升降变形的影响;
5 地基基础设计等级为甲级的建筑物,应布置在膨胀土埋藏较深、胀缩等级较低或地形较平坦的地段;
6 建筑物周围应有良好的排水条件,距建筑物外墙基础外缘5m范围内不得积水。
条文说明
5.3.2 本条规定同一建筑物地基土的分级胀缩变形量之差不宜大于35mm,膨胀土地基上房屋的允许变形量比一般土低。在表5.2.16中允许变形值均小于40mm。如果同一建筑物地基土的分级胀缩变形量之差大于35mm,则该建筑物处于两个不同地基等级的土层上,其结果将造成处理上的困难,费用大量增加。因此,最好避免这种情况,如不可能时,可用沉降缝将建筑物分成独立的单元体,或采用不同基础形式或不同基础埋深,将变形调整到允许变形值。
5.3.3 场地内的排洪沟、截水沟和雨水明沟,其沟底应采取防渗处理。排洪沟、截水沟的沟边土坡应设支挡。
5.3.4 地下给、排水管道接口部位应采取防渗漏措施,管道距建筑物外墙基础外缘的净距不应小于3m。
5.3.5 场地内应进行环境绿化,并应根据气候条件、膨胀土地基胀缩等级,结合当地经验采取下列措施:
1 建筑物周围散水以外的空地,宜多种植草皮和绿篱;
2 距建筑物外墙基础外缘4m以外的空地,宜选用低矮、耐修剪和蒸腾量小的树木;
3 在湿度系数小于0.75或孔隙比大于0.9膨胀土地区,种植桉树、木麻黄、滇杨等速生树种时,应设置隔离沟,沟与建筑物距离不应小于5m。
条文说明
5.3.5 绿化环境不仅对人类的生存和身心健有着重要的社会效益,对膨胀土地区的建筑物安危也有着举足轻重的作用。合理植被具有涵养土中水分并保持相对平稳的积极效应,在建筑物近旁单独种植吸水和蒸腾量大的树木(如桉树),往往使房屋遭到较严重的破坏。特别是在土的湿度系数小于0.75和孔隙比大于0.9的地区更为突出。调查和实测资料表明,一棵高16m的桉树一天耗水可达457kg。云南蒙自某6号楼在其四周零星种植树杆直径0.4m~0.6m的桉树,由于大量吸取土中水分,该建筑地基最大下沉量达96mm,房屋严重开裂。同样在云南鸡街的一栋房屋,其近旁有一棵矮小桉树,从1975年至1977年房屋因桉树吸水下沉量为4mm;但从1977年底到1979年5月的一年半时间,随着桉树长大吸水量的增加,房屋下沉量达46.4mm,房屋严重开裂破坏。上述情形国外也曾大量报道,如在澳大利亚墨尔本东区,膨胀土上房屋开裂破坏原因有75%是不合理种植蒸腾量大的树木引起的。所以,本条规定房屋周围绿化植被宜选种蒸腾量小的女贞、落叶果树和针叶树种或灌木,且宜成林,并离开建筑物不小于4m的距离。种植高大乔木时,应在距建筑物外墙不小于5m处设置灰土隔离沟,确保人居和自然的和谐共存。
5.4 坡地和挡土结构
5.4 坡地和挡土结构
5.4.1 建筑场地条件符合本规范第4.3.2条第2款规定时,建筑物应按坡地场地进行设计,并应符合下列规定:
1 应按本规范第5.2.17条和第5.2.18条的规定验算坡体的稳定性;
2 应采取防止坡体水平位移和坡体内土的水分变化对建筑物影响的措施;
3 对不稳定或潜在不稳定的斜坡,应先进行滑坡治理。
5.4.2 防治滑坡应综合工程地质、水文地质和工程施工影响等因素,分析可能产生滑坡的主要因素,并应结合当地建设经验,采取下列措施:
1 应根据计算的滑体推力和滑动面或软弱结合面的位置,设置一级或多级抗滑支挡,或采取其他措施;
2 挡土结构基础埋深应由稳定性验算确定,并应埋置在滑动面以下,且不应小于1.5m;
3 应设置场地截水、排水及防渗系统,对坡体裂缝应进行封闭处理;
4 应根据当地经验在坡面干砌或浆砌片石,设置支撑盲沟,种植草皮等。
条文说明
5.4.1、5.4.2 非膨胀土坡地只需验算坡体稳定性,但对膨胀土坡地上的建筑,仅满足坡体稳定要求还不足以保证房屋的正常使用。为此,提出了考虑坡体水平移动和坡体内土的含水量变化对建筑物的影响,这种影响主要来自下列方面:
挖填方过大时,土体原来的含水量状态会发生变化,需经过一段时间后,地基土中的水分才能达到新的平衡;
由于平整场地破坏了原有地貌、自然排水系统及植被,土的含水量将因蒸发而大量减少,如果降雨,局部土质又会发生膨胀;
坡面附近土层受多向蒸发的作用,大气影响深度将大于坡肩较远的土层;
坡比较陡时,旱季会出现裂缝、崩坍。遇雨后,雨水顺裂隙渗入坡体,又可能出现浅层滑动。久旱之后的降雨,往往造成坡体滑动,这是坡地建筑设计中至关重要的问题。 防治滑坡包括排水措施、设置支挡和设置护坡三个方面。护坡对膨胀土边坡的作用不仅是防止冲刷,更重要的是保持坡体内含水量的稳定。采用全封闭的面层只能防止蒸发,但将造成土体水分增加而有胀裂的可能,因此采用支撑盲沟间植草的办法可以收到调节坡内水分的作用。
5.4.3 挡土墙设计应符合下列构造要求(图5.4.3):

图5.4.3 挡土墙构造示意
1—滤水层;2—泄水孔;3—垫层;4—防渗排水沟;5—封闭地面;6—隔水层;7—开挖面;8—非膨胀土
1 墙背碎石或砂卵石滤水层的宽度不应小于500mm。滤水层以外宜选用非膨胀性土回填,并应分层压实;
2 墙顶和墙脚地面应设封闭面层,宽度不宜小于2m;
3 挡土墙每隔6m~10m和转角部位应设变形缝;
4 挡土墙墙身应设泄水孔,间距不应大于3m,坡度不应小于5%,墙背泄水孔口下方应设置隔水层,厚度不应小于300mm。
5.4.4 高度不大于3m的挡土墙,主动土压力宜采用楔体试算法确定。当构造符合本规范第5.4.3条规定时,土压力的计算可不计水平膨胀力的作用。破裂面上的抗剪强度指标应采用饱和快剪强度指标。当土体中有明显通过墙址的裂隙面或层面时,尚应以该面作为破裂面验算其稳定性。
5.4.5 高度大于3m的挡土结构土压力计算时,应根据试验数据或当地经验确定土体膨胀后抗剪强度衰减的影响,并应计算水平膨胀力的作用。
条文说明
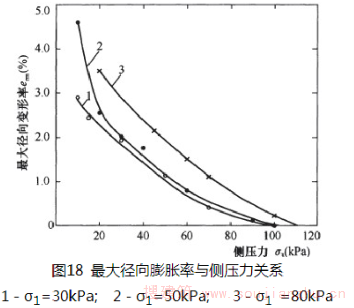
5.4.3~5.4.5 建造在膨胀土中的挡土结构(包括挡土墙、地下室外墙以及基坑支护结构等)都要承受水平膨胀力的作用。水平膨胀变形和膨胀压力是土体三向膨胀的问题,它比单纯的竖向膨胀要复杂得多。“膨胀土地基设计”专题组曾在20世纪80年代在三轴仪上对原状膨胀土样进行试验研究工作,其结果是:在三轴仪测得的竖向膨胀率比固结仪上测得的数值小,有的竖向膨胀比横向膨胀大;有的却相反。土的成因类型和矿物组成不同是导致上述结果的主要原因。广西大学柯尊敬教授通过试验研究也得出了土中矿物颗粒片状水平排列时土的竖向膨胀潜势要大于横向的结论。中国建筑科学研究院研究人员在黄熙龄院士指导下,在改进的三轴仪上对黑棉土(非洲)和粉色膨胀土(安徽淮南)重塑土样的侧向变形性质进行试验研究表明:膨胀土的三向膨胀性能在土性和压力等条件不变时,线膨胀率和体膨胀率随土的密度增大和初始含水量减小而增大;压力是抑制膨胀变形的主要因素,图18是非洲黑棉土(ω=35.0%,γ
d =12. 4kN/m 3 )的试验结果。由图中曲线可知:保持径向变形为定值时,竖向压力σ 1 ,小时侧向压力σ 3 也小;竖向压力σ 1 ,大时侧向压力σ 3 亦大。当径向变形为零 时,所需的侧向压力即为水平膨胀力。同样,竖向压力大时,其水平膨胀力亦大。这与现场在土自重压力下通过浸水试验测得的结果是一致的,即当土性和土的初始含水量一定时,土的水平膨胀力在一定深度范围内随深度(自重压力)的增加而增大。

膨胀土水平膨胀力的大小与竖向膨胀力一样,都应通过室内和现场的测试获得。湖北荆门在地表下2m深范围内经过四年的浸水试验,观测到的水平膨胀力为(10~16)kPa。原铁道部科学研究院西北研究所张颖钧采用安康、成都狮子山、云南蒙自等地的土样,在自制的三向膨胀仪上用边长40mm的立方体试样测得的原状土水平膨胀力为7.3kPa~21.6kPa,约为其竖向膨胀力的一半;而其击实土样的水平膨胀力为15.1kPa~50.4kPa,约为其竖向膨胀力的0.65倍;在初始含水量基本一致的前提下,重塑土样的水平膨胀力约为原状土样的2倍。
前苏联的索洛昌曾对萨尔马特黏土在现场通过浸水试验测试水平膨胀力,天然含水量为31.1%、干密度为13.8kN/m 3 的侧壁填土在1.0m~3.0m深度内的水平膨胀力是随深度增加而增大,最大值分别为49kPa、51kPa和53kPa,相应的稳定值分别为41kPa、41kPa和43kPa。土在浸水过程的初期水平膨胀力达到一峰值后,随着土体的膨胀其密度和强度降低,压力逐渐减小至稳定值。在工程应用时,索洛昌建议可不考虑水平膨胀力沿深度的变化,取0.8倍的最大值进行设计计算。
上述试验结果表明:作用于挡土结构上的水平膨胀力相当大,是导致膨胀土上挡土墙破坏失效的主要原因,设计时应考虑水平膨胀力的作用。在总结国内成功经验的基础上,本规范第5.4.3条对于高度小于3m的挡土墙提出构造要求。当墙背设置砂卵石等散体材料时,一方面可起到滤水的作用,另一方面还可起到一定的缓冲膨胀变形、减小膨胀力的作用。
因此,墙后最好选用非膨胀土作为填料。无非膨胀土时,可在一定范围内填膨胀土与石灰的混合料,离墙顶1m范围内,可填膨胀土,但砂石滤水层不得取消。高度小于等于3m的 挡土墙,在满足本条构造要求的情况下,才可不考虑土的水平膨胀力。应当说明,挡土墙设计考虑膨胀土水平压力后,造价将成倍增加,从经济上看,填膨胀性材料是不合适的。
虽然在膨胀土地区的挡土结构中进行过一些水平力测试试验,但因膨胀土成因复杂、土质不均,所得结果离散性大。鉴于缺少试验及实测资料,对高度大于3m的挡土墙的膨胀土水平压力取值,设计者应根据地方经验或试验资料确定。
5.4.6 坡地上建筑物的地基设计,符合下列条件时,可按平坦场地上建筑物的地基进行设计:
1 布置在坡顶的建筑物,按本规范第5.4.3条设置挡土墙且基础外边缘距挡土墙距离大于5m;
2 布置在挖方地段的建筑物,基础外边缘至坡脚支挡结构的净距大于3m。
条文说明
5.4.6 在膨胀土地基的坡地上建造房屋,除了与非膨胀土坡地建筑一样必须采取抗滑、排水等措施外,本条目的是为了减少房屋地基变形的不均匀程度,使房屋的损坏尽可能降到最低程度,指明设有挡土墙的建筑物的位置。如符合本条两条件时,坡地上建筑物的地基设计,实际上可转变为平坦场地上建筑物的地基设计,这样,本规范有关平坦场地上建筑物地基设计原则皆可按照执行了。除此之外,本规范第5.2.4条还规定了坡地上建筑物的基础埋深。 需要说明,87规范编制时,调查了坡上一百余栋设有挡土墙与未设挡土墙的房屋,两者相比,前者损坏较后者轻微。从理论上可以说明这个结论的合理性,前面已经介绍了影响坡上房屋地基变形很不均匀的因素,其中长期影响变形的因素是气候,靠近坡肩部分因受多面蒸发影响,大气影响深度最深,随着距坡肩距离的增加,影响深度逐渐接近于平坦地形条件下的影响深度。因此,建在坡地上的建筑物若不设挡土墙时最好将建筑物布置在离坡肩较远的地方。设挡土墙后蒸发条件改变为垂直向,与平坦地形条件下相近,变形的不均匀性将会减少,建筑物的损坏也将减轻。所以采用分级低挡土墙是坡地建筑的一个很有效的措施,它有节约用地、围护费用少的经济效益。 除设低挡土墙的措施外,还要考虑挖填方所造成的不均匀性,所以在本规范第5章第5、6节建筑措施和结构措施中还有相应的要求。
5.5 建筑措施
5.5 建筑措施
5.5.1 在满足使用功能的前提下,建筑物的体型应力求简单,并应符合下列要求:
1 建筑物选址宜位于膨胀土层厚度均匀,地形坡度小的地段;
2 建筑物宜避让胀缩性相差较大的土层,应避开地裂带,不宜建在地下水位升降变化大的地段。当无法避免时,应采取设置沉降缝或提高建筑结构整体抗变形能力等措施。
5.5.2 建筑物的下列部位,宜设置沉降缝:
1 挖方与填方交界处或地基土显著不均匀处;
2 建筑物平面转折部位、高度或荷重有显著差异部位;
3 建筑结构或基础类型不同部位。
条文说明
5.5.2 沉降缝的设置系根据膨胀土地基上房屋损坏情况的调查提出的。在设计时应注意,同一类型的膨胀土,扰动后重新夯实与未经扰动的相比,其膨胀或收缩特性都不相同。如果基础分别埋在挖方和填方上时,在挖填方交界处的墙体及地面常常出现断裂。因此,一般都采用沉降缝分离的方法。
5.5.3 屋面排水宜采用外排水,水落管不得设在沉降缝处,且其下端距散水面不应大于300mm。建筑物场地应设置有组织的排水系统。
5.5.4 建筑物四周应设散水,其构造宜符合下列规定(图5.5.4):

图5.5.4 散水构造示意
1—外墙;2—交接缝;3—垫层;4—面层
1 散水面层宜采用C15混凝土或沥青混凝土,散水垫层宜采用2:8灰土或三合土,面层和垫层厚度宜按表5.5.4选用;
2 散水面层的伸缩缝间距不应大于3m;
3 散水最小宽度应按表5.5.4选用。散水外缘距基槽不应小于300mm,坡度应为3%~5%;
4 散水与外墙的交接缝和散水之间的伸缩缝,应填嵌柔性防水材料。
表5.5.4 散水构造尺寸

5.5.5 平坦场地胀缩等级为Ⅰ级、Ⅱ级的膨胀土地基,当采用宽散水作为主要防治措施时,其构造应符合下列规定(图5.5.5):

图5.5.5 宽散水构造示意
1—外墙;2—交接缝;3—垫层;4—隔热保温层;5—面层
1 面层可采用强度等级C15的素混凝土或沥青混凝土,厚度不应小于100mm;
2 隔热保温层可采用1:3石灰焦渣,厚度宜为100mm~200mm;
3 垫层可采用2:8灰土或三合土,厚度宜为100mm~200mm;
4 胀缩等级为Ⅰ级的膨胀土地基散水宽度不应小于2m,胀缩等级为Ⅱ级的膨胀土地基散水宽度不应小于3m,坡度宜为3%~5%。
条文说明
5.5.4、5.5.5 房屋四周受季节性气候和其他人为活动的影响大,因而,外墙部位土的含水量变化和结构的位移幅度都较室内大,容易遭到破坏。当房屋四周辅以混凝土等宽散水时(宽度大于2m),能起到防水和保湿的作用,使外墙的位移量减小。例如,广西宁明某相邻办公楼间有一混凝土球场,尽管办公楼的另两端均在急剧下沉,邻近球场一端的位移幅度却很小。再如四川成都某仓库,两相邻库房间由三合土覆盖,此端房屋的位移幅度仅为未覆盖端的1/5。同样在湖北郧县种子站仓库前有一大混凝土晒场,房屋四周也有宽散水,整栋房屋的位移幅度仅为3mm左右。而同一地区房屋的位移幅度都远大于这一数值,致使其严重开裂。 图19是成都军区后勤部营房设计所在某试验房散水下不同部位的升降位移试验资料。从图中曲线可以看出,房屋四周一定宽度的散水对减小膨胀土上基础的位移起到了明显的作用。应当指出,大量的实际调查资料证明,作为主要预防措施来说,散水对于地势平坦、胀缩等级为Ⅰ、Ⅱ级的膨胀土其效果较好;对于地形复杂和胀缩等级为Ⅲ级的膨胀土上的房屋,散水应配合其他措施使用。
5.5.6 建筑物的室内地面设计应符合下列要求:
1 对使用要求严格的地面,可根据地基土的胀缩等级按本规范附录J要求,采取相应的设计措施。胀缩等级为Ⅲ级的膨胀土地基和使用要求特别严格的地面,可采取地面配筋或地面架空等措施。经常用水房间的地面应设防水层,并应保持排水通畅;
2 大面积地面应设置分格变形缝。地面、墙体、地沟、地坑和设备基础之间宜用变形缝隔开。变形缝内应填嵌柔性防水材料;
3 对使用要求没有严格限制的工业与民用建筑地面,可按普通地面进行设计。
条文说明
5.5.6 膨胀土上房屋室内地面的开裂、隆起比较常见,大面积处理费用太高。因此,处理的原则分为两种,一是要求严格的地面,如精密加工车间、大型民用公共建筑等,地面的不均匀变形会降低产品的质量或正常使用,后果严重。二是如食堂、住宅的地面,开裂后可修理使用。前者可根据膨胀量大小换土处理,后者宜将大面积浇筑面层改为分段浇筑嵌缝处理方法,或采用铺砌的办法。对于某些使用要求特别严格的地面,还可采用架空楼板方法。 
图19散水下不同部位的位移
1-0.5m深标;2-1.0m深标;3-1.5m深标;4-2.0m深标;5-3.0m深标;6-4.0深标
5.5.7 建筑物周围的广场、场区道路和人行便道设计,应符合下列要求:
1 建筑物周围的广场、场区道路和人行便道的标高应低于散水外缘;
2 广场应设置有组织的截水、排水系统,地面做法可按本规范第5.5.6条第2款的规定进行设计;
3 场区道路宜采用2:8灰土上铺砌大块石及砂卵石垫层、沥青混凝土或沥青表面处置面层。路肩宽度不应小于0.8m;
4 人行便道宜采用预制块铺设,并宜与房屋散水相连接。
5.6 结构措施
5.6 结构措施
5.6.1 建筑物结构设计应符合下列规定:
1 应选择适宜的结构体系和基础形式;
2 应加强基础和上部结构的整体强度和刚度。
条文说明
5.6.1 根据调查材料,膨胀土地基上的木结构、钢结构及钢筋混凝土框排架结构具有较好的适应不均匀变形能力,主体结构损坏极少,膨胀土地区房屋应优先采用这些结构体系。
5.6.2 砌体结构设计应符合下列规定:
1 承重墙体应采用实心墙,墙厚不应小于240mm,砌体强度等级不应低于MU10,砌筑砂浆强度等级不应低于M5,不应采用空斗墙、砖拱、无砂大孔混凝土和无筋中型砌块;
2 建筑平面拐角部位不应设置门窗洞口,墙体尽端至门窗洞口边的有效宽度不宜小于1m;
3 楼梯间不宜设在建筑物的端部。
5.6.3 砌体结构的圈梁设置应符合下列要求:
1 砌体结构除应在基础顶部和屋盖处各设置一道钢筋混凝土圈梁外,对于Ⅰ级、Ⅱ级膨胀土地基上的多层房屋,其他楼层可隔层设置圈梁;对于Ⅲ级膨胀土地基上的多层房屋,应每层设置圈梁;
2 单层工业厂房的围护墙体除应在基础顶部和屋盖处各设置一道钢筋混凝土圈梁外,对于Ⅰ级、Ⅱ级膨胀土地基,应沿墙高每隔4m增设一道圈梁;对于Ⅲ级膨胀土地基,应沿墙高每隔3m增设一道圈梁;
3 圈梁应在同一平面内闭合;
4 基础顶面和屋盖处的圈梁高度不应小于240mm,其他位置的圈梁不应小于180mm。圈梁的纵向配筋不应小于4Ф12,箍筋不应小于Ф6@200。基础圈梁混凝土强度等级不应低于C25,其他位置圈梁混凝土强度等级不应低于C20。
条文说明
5.6.3 圈梁设置有助于提高房屋的整体性并控制裂缝的发展。根据房屋沉降观测资料得知,膨胀土上建筑物地基的变形有的是反向挠曲,也有的是正向挠曲,有时在同一栋建筑内同时出现反向挠曲和正向挠曲,特别在房屋的端部,反向挠曲变形较多,因此在本条中特别强调设置顶部圈梁的作用,并将其高度增加至240mm。
5.6.4 砌体结构应设置构造柱,并应符合下列要求:
1 构造柱应设置在房屋的外墙拐角、楼(电)梯间、内、外墙交接处、开间大于4.2m的房间纵、横墙交接处或隔开间横墙与内纵墙交接处;
2 构造柱的截面不应小于240mm×240mm,纵向钢筋不应小于4Ф12,箍筋不应小于Ф6@200,混凝土强度等级不应低于C20;
3 构造柱与圈梁连接处,构造柱的纵筋应上下贯通穿过圈梁,或锚入圈梁不小于35d;
4 构造柱可不单独设置基础,但纵筋应伸入基础圈梁或基础梁内不小于35d。
条文说明
5.6.4 砌体结构中设置构造柱的作用主要在于对墙体的约束,有助于提高房屋的整体性并增加房屋的刚度。构造柱须与各层圈梁或梁板连接才能发挥约束作用。
5.6.5 门窗洞口或其他洞孔宽度大于等于600mm时,应采用钢筋混凝土过梁,不得采用砖拱过梁。在底层窗台处宜设置60mm厚的钢筋混凝土带,并应与构造柱拉接。
5.6.6 预制钢筋混凝土梁支承在墙体上的长度不应小于240mm;预制钢筋混凝土板支承在墙体上的长度不应小于100mm、支承在梁上的长度不应小于80mm。预制钢筋混凝土梁、板与支承部位应可靠拉接。
5.6.7 框、排架结构的围护墙体与柱应采取可靠拉接,且宜砌置在基础梁上,基础梁下宜预留100mm空隙,并应做防水处理。
条文说明
5.6.7 钢和钢筋混凝土框、排架结构本身具有足够的适应变形的能力,但围护墙体仍易开裂。当以砌体作围护结构时,应将砌体放在基础梁上,基础梁与土表面脱空以防土的膨胀引起梁的过大变形。
5.6.8 吊车梁应采用简支梁,吊车梁与吊车轨道之间应采用便于调整的连接方式。吊车顶面与屋架下弦的净空不宜小于200mm。
条文说明
5.6.8 有吊车的厂房,由于不均匀变形会引起吊车卡轨,影响使用,故要求连接方法便于调整并预留一定空隙。
5.7 地基基础措施
5.7 地基基础措施
5.7.1 膨胀土地基处理可采用换土、土性改良、砂石或灰土垫层等方法。
5.7.2 膨胀土地基换土可采用非膨胀性土、灰土或改良土,换土厚度应通过变形计算确定。膨胀土土性改良可采用掺和水泥、石灰等材料,掺和比和施工工艺应通过试验确定。
条文说明
5.7.1、5.7.2 膨胀土的改良一般是在土中掺入一定比例的石灰、水泥或粉煤灰等材料,较适用于换土。采用上述材料的浆液向原状土地基中压力灌浆的效果不佳,应慎用。 大量室内外试验和工程实践表明:土中掺入2%~8%的石灰粉并拌和均匀是简单、经济的方法。表21是王新征用河南南阳膨胀土进行室内试验的结果。 
膨胀土中掺入一定比例的石灰后,通过Ca+离子交换、水化和碳化以及孔隙充填和粘结作用,可以降低甚至消除土的膨胀性,并能提高扰动土的强度。使用时应根据土的膨胀潜势通过试验确定石灰的掺量。石灰宜用熟石灰粉,施工时土料最大粒径不应大于15mm,并控制其含水量,拌和均匀,分层压实。
5.7.3 平坦场地上胀缩等级为Ⅰ级、Ⅱ级的膨胀土地基宜采用砂、碎石垫层。垫层厚度不应小于300mm。垫层宽度应大于基底宽度,两侧宜采用与垫层相同的材料回填,并应做好防、隔水处理。
5.7.4 对较均匀且胀缩等级为Ⅰ级的膨胀土地基,可采用条形基础,基础埋深较大或基底压力较小时,宜采用墩基础;对胀缩等级为Ⅲ级或设计等级为甲级的膨胀土地基,宜采用桩基础。
5.7.5 桩基础设计时,基桩和承台的构造和设计计算,除应符合现行国家标准《建筑地基基础设计规范》GB 50007的规定外,尚应符合本规范第5.7.6条~第5.7.9条的规定。
5.7.6 桩顶标高低于大气影响急剧层深度的高、重建筑物,可按一般桩基础进行设计。
5.7.7 桩顶标高位于大气影响急剧层深度内的三层及三层以下的轻型建筑物,桩基础设计应符合下列要求:
1 按承载力计算时,单桩承载力特征值可根据当地经验确定。无资料时,应通过现场载荷试验确定;
2 按变形计算时,桩基础升降位移应符合本规范第5.2.16条的要求。桩端进入大气影响急剧层深度以下或非膨胀土层中的长度应符合下列规定:
- 按膨胀变形计算时,应符合下式要求:

≥ 
(5.7.7-1)
- 按收缩变形计算时,应符合下式要求:

≥ 
(5.7.7-2)
- 按胀缩变形计算时,计算长度应取式(5.7.7-1)和式(5.7.7-2)中的较大值,且不得小于4倍桩径及1倍扩大端的直径,最小长度应大于1.5m。
式中: 
——桩端进入大气影响急剧层以下或非膨胀土层中的长度(m);

——在大气影响急剧层内桩侧土的最大胀拔力标准值,应由当地经验或试验确定(kN);

——对应于荷载效应标准组合,最不利工况下作用于桩顶的竖向力,包括承台和承台上土的自重(kN);

——桩身周长(m);

——桩侧土的抗拔系数,应由试验或当地经验确定;当无此资料时,可按现行行业标准《建筑桩基技术规范》JGJ 94的相关规定取值;

——桩端截面积(m 2 );

——桩的端阻力特征值(kPa);

——桩的侧阻力特征值(kPa)。
5.7.8 当桩身承受胀拔力时,应进行桩身抗拉强度和裂缝宽度控制验算,并应采取通长配筋,最小配筋率应符合现行国家标准《建筑地基基础设计规范》GB 50007的规定。
5.7.9 桩承台梁下应留有空隙,其值应大于土层浸水后的最大膨胀量,且不应小于100mm。承台梁两侧应采取防止空隙堵塞的措施。
条文说明
5.7.5~5.7.9 桩在膨胀土中的工作性状相当复杂,上部土层因水分变化而产生的胀缩变形对桩有不同的效应。桩的承载力与土性、桩长、土中水分变化幅度和桩顶作用的荷载大小关系密切。土体膨胀时,因含水量增加和密度减小导致桩侧阻和端阻降低;土体收缩时,可能导致该部分土体产生大量裂缝,甚至与桩体脱离而丧失桩侧阻力(图20)。因此,在桩基设计时应考虑桩周土的胀缩变形对其承载力的不利影响。 
图20 膨胀土收缩时桩周土体与桩体脱离情况现场实测
对于低层房屋的短桩来说,土体膨胀隆起时,胀拔力将导致桩的上拔。国内外的现场试验资料表明:土层的膨胀隆起量决定桩的上拔量,上部土层隆起量较大,且随深度增加而减小,对桩产生上拔作用;下部土层隆起量小甚至不膨胀,将抑制桩的上拔,起到“锚固作用”,如图21所示。
图中CD表示9m深度内土的膨胀隆起量随深度的变化曲线,AB则为7m桩长的单桩上拔量为40mm。 CD和AB线交点O处土的隆起量与桩的上拔量相等,即称为“中性点”。O点
以上桩承受胀拔力,以下则为“锚固力”。当由胀拔力产生的上拔力大于“锚固力”时,桩就会被上拔。为抑制上拔量,在桩基设计时,桩顶荷载应等于或略大于上拔力。

图21 土层隆起量与桩的上升量关系

图22 桩基与分层标位移量
1-分层标;2-桩基
上述中性点的位置和胀拔力的大小与土的膨胀潜势和土中水分变化幅度及深度有关。目前国内外关于胀拔力大小的资料很少,只能通过现场试验或地方经验确定。至于膨胀土中桩基的设计,只能提出计算原则。在所提出原则中分别考虑了膨胀和收缩两种情况。在膨胀时考虑了桩周胀拔力,该值宜通过现场试验确定。在收缩时因裂缝出现,不考虑收缩时所产生的负摩擦力,同样也不考虑在大气影响急剧层内的侧阻力。云南锡业公司与原冶金部昆明勘察公司曾为此进行试验:桩径230mm,桩长分别为3m、4m,桩尖脱空,3m桩长荷载为42.0kN,4m桩长为57.6kN;经过两年观察,3m桩下沉达60mm以上,4m桩仅为6mm左右,与深标观测值接近(图22)。当地实测大气影响急剧层为3.3m,可以看出3.3m长度内还有一定的摩阻力来抵抗由于收缩后桩上承受的荷载。因此,假定全部荷重由大气影响急剧层以下的桩长来承受是偏于安全的。
对于土层膨胀、收缩过程中桩的受力状态,尚有待深入研究。例如在膨胀过程或收缩过程中,沿桩周各点土的变形状态、变形速率、变形大小是否一致就是一个问题。本规范在考虑桩的设计原则时,假定在大气影响急剧层深度内桩的胀拔力存在,及土层收缩时桩周出现裂缝情况。今后还需进一步研究,验证假定的合理性并找出简便的计算模型。
膨胀土中单桩承载力及其在大气影响层内桩侧土的最大胀拔力可通过室内试验或现场浸水胀拔力和承载力试验确定,但现场的试验数据更接近实际,其试验方法和步骤、试验资料整理和计算建议如下。实施时可根据不同需要予以简化。
1 试验的方法和步骤
选择有代表性的地段作为试验场地,试验桩和试验设备的布置如图23的所示;
胀拔力试验桩桩径宜为Ф400,工程桩试验桩按设计桩长和桩径设置。试验桩间距不小于3倍桩径,试验桩与锚桩间距不小于4倍桩径;
每组试验可布置三根试验桩,桩长分别为大气影响急剧层深度、大气影响深度和设计桩长深度;
桩长为大气影响急剧层深度和大气影响深度的胀拔力试验桩,其桩端脱空不小于100mm;
采用砂井和砂槽双面浸水。砂槽和砂井内填满中、粗砂,砂井的深度不小于当地的大气影响深度;
试验宜采用锚桩反力梁装置,其最大抗拔能力除满足试验荷载的要求外,应严格控制锚桩和反力梁的变形量;
试验桩桩顶设置测力计,现场浸水初期至少每8h进行一次桩的胀拔力观测,以捕捉最大的胀拔力,后期可加大观测时间间隔,直至浸水膨胀稳定;
浸水膨胀稳定后,停止浸水并将桩顶测力计更换为千斤顶,采用慢速加载维持法进行单桩承载力试验,测定浸水条件下的单桩承载力;
试验前和试验后,分层取原状土样在室内进行物理力学试验和膨胀试验。

图23 桩的现场浸水胀拔力和承载力试验布置示意(图中单位:mm)
1—锚桩;2—桩帽;3—胀拔力试验桩(大气影响深度);4—支承梁;5—工程桩试验桩;6—胀拔力试验桩(大气影响急剧层深度);7—Ф127砂井;8—砖砌砂槽;9—桩端空隙;10—测力计(千斤顶)
2 试验资料整理及计算
- 绘制桩的现场浸水胀拔力随时间发展变化曲线(图24);

图24桩的现场浸水胀拔力随时间发展变化曲线示意
- 根据桩长为大气影响急剧层深度或大气影响深度试验桩的现场实测单桩最大胀拔力,可按下式计算大气影响急剧层深度或大气影响深度内桩侧土的最大胀切力平均值:

浸水条件下,工程桩试验桩单桩极限承载力的测定,应符合现行国家标准《建筑地基基础设计规范》GB 50007的有关规定;
同一场地的试验数量不应少于3点,当基桩最大胀拔力或极限承载力试验值的极差不超过其平均值的30%时,取其平均值作为该场地基桩最大胀拔力或极限承载力的标准值。
5.8 管道
5.8 管道
5.8.1 给水管和排水管宜敷设在防渗管沟中,并应设置便于检修的检查井等设施;管道接口应严密不漏水,并宜采用柔性接头。
5.8.2 地下管道及其附属构筑物的基础,宜设置防渗垫层。
5.8.3 检漏井应设置在管沟末端和管沟沿线分段检查处,井内应设置集水坑。
条文说明
5.8.1~5.8.3 地下管道的附属构筑物系指管沟、检查井、检漏井等。管道接头的防渗漏措施仅仅是技术保证,重要的是保持长期的定时检查和维修。因此,检漏井等的设置对于检查管道是否漏水是一项关键措施。对于要求很高的建筑物,有必要采用地下管道集中排水的方法,才可能做到及时发现、及时维修。
5.8.4 地下管道或管沟穿过建筑物的基础或墙时,应设预留孔洞。洞与管沟或管道间的上下净空不宜小于100mm。洞边与管沟外壁应脱开,其缝隙应采用不透水的柔性材料封堵。
条文说明
5.8.4 管道在基础下通过时易因局部承受地基胀缩往复变形和应力,容易遭到损坏而发生渗漏,故应尽量避免。必须穿越时,应采取措施。
5.8.5 对高压、易燃、易爆管道及其支架基础的设计,应采取防止地基土不均匀胀缩变形可能造成危害的地基处理措施。
6 施工
6.1 一般规定
6 施工
6.1 一般规定
6.1.1 膨胀土地区的建筑施工,应根据设计要求、场地条件和施工季节,针对膨胀土的特性编制施工组织设计。
条文说明
6.1.1 膨胀土地区的建筑施工,是落实设计措施、保证建筑物的安全和正常使用的重要环节。因此,要求施工人员应掌握膨胀土工程特性,在施工前作好施工准备工作,进行技术交底,落实技术责任制。
6.1.2 地基基础施工前应完成场地平整、挡土墙、护坡、截洪沟、排水沟、管沟等工程,并应保持场地排水通畅、边坡稳定。
条文说明
6.1.2 本条规定旨在说明膨胀土地区的工程建设必须遵循“先治理,后建设”的原则,也是落实“预防为主,综合治理”要求的重要环节。由于膨胀土含有大量的亲水矿物,伴随土体湿度的变化产生较大体积胀缩变化。因此,在地基基础施工前,应首先完成对场地的治理,减少施工时地基土含水量的变化幅度,从而防止场地失稳或后期地基胀缩变形量的增大。先期治理措施包括:
场地平整;
挡土墙、护坡等确保场地稳定的挡土结构施工;
截洪沟、排水沟等确保场地排水畅通的排水系统施工;
后期施工可能会增加主体结构地基胀缩变形量的工程应先于主体进行施工,如管沟等。
6.1.3 施工用水应妥善管理,并应防止管网漏水。临时水池、洗料场、淋灰池、截洪沟及搅拌站等设施距建筑物外墙的距离,不应小于10m。临时生活设施距建筑物外墙的距离,不应小于15m,并应做好排(隔)水设施。
6.1.4 堆放材料和设备的施工现场,应采取保持场地排水畅通的措施。排水流向应背离基坑(槽)。需大量浇水的材料,堆放在距基坑(槽)边缘的距离不应小于10m。
6.1.5 回填土应分层回填夯实,不得采用灌(注)水作业。
6.2 地基和基础施工
6.2 地基和基础施工
6.2.1 开挖基坑(槽)发现地裂、局部上层滞水或土层地质情况等与勘察文件不符合时,应及时会同勘察、设计等单位协商处理措施。
6.2.2 地基基础施工宜采取分段作业,施工过程中基坑(槽)不得暴晒或泡水。地基基础工程宜避开雨天施工;雨期施工时,应采取防水措施。
6.2.3 基坑(槽)开挖时,应及时采取封闭措施。土方开挖应在基底设计标高以上预留150mm~300mm土层,并应待下一工序开始前继续挖除,验槽后,应及时浇筑混凝土垫层或采取其他封闭措施。
6.2.4 坡地土方施工时,挖方作业应由坡上方自上而下开挖;填方作业应自下而上分层压实。坡面形成后,应及时封闭。
开挖土方时应保护坡脚。坡顶弃土至开挖线的距离应通过稳定性计算确定,且不应小于5m。
条文说明
6.2.1~6.2.4 地基和基础施工,要确保地基土的含水量变化幅度减少到最低。施工方案和施工措施都应围绕这一目的实施。因此,膨胀土场地上进行开挖工程时,应采取严格保护措施,防止地基土体遭到长时间的曝露、风干、浸湿或充水。分段开挖、及时封闭,是减少地基土的含水量变化幅度的主要措施;预留部分土层厚度,到下一道工序开始前再清除,能同时达到防止持力层土的扰动和减少水分较大变化的目的。 对开挖深度超过5m(含5m)的基坑(槽)的土方开挖、支护工程,以及开挖深度虽未超过5m,但地质条件、周围环境和地下管线复杂,或影响毗邻建筑(构筑)物安全的基坑(槽)的土方开挖、支护工程,应对其安全施工方案进行专项审查。
6.2.5 灌注桩施工时,成孔过程中严禁向孔内注水。孔底虚土经清理后,应及时灌注混凝土成桩。
6.2.6 基础施工出地面后,基坑(槽)应及时分层回填,填料宜选用非膨胀土或经改良后的膨胀土,回填压实系数不应小于0.94。
条文说明
6.2.6 基坑(槽)回填土,填料可选用非膨胀土、弱膨胀土及掺有石灰或其他材料的膨胀土,并保证一定的压实度。对于地下室外墙处的肥槽,宜采用非膨胀土或经改良的弱膨胀土及级配砂石作填料,可减少水平膨胀力的不利影响。
6.3 建筑物施工
6.3 建筑物施工
6.3.1 底层现浇钢筋混凝土楼板(梁),宜采用架空或桁架支模的方法,并应避免直接支撑在膨胀土上。浇筑和养护混凝土过程中应注意养护水的管理,并应防止水流(渗)入地基内。
条文说明
6.3.1 为防止现浇钢筋混凝土养护水渗入地基,不应多次或大量浇水养护,宜用润湿法养护。现浇混凝土时,其模板不宜支在地面上,采用架空法支模较好;构造柱应采用相邻砖墙做模板以保证相互结合。
6.3.2 散水应在室内地面做好后立即施工。施工前应先夯实基土,基土为回填土时,应检查回填土质量,不符合要求时,应重新处理。伸缩缝内的防水材料应充填密实,并应略高于散水,或做成脊背形状。
6.3.3 管道及其附属建筑物的施工,宜采用分段快速作业法。管道和电缆沟穿过建筑物基础时,应做好接头。室内管沟敷设时,应做好管沟底的防渗漏及倾向室外的坡度。管道敷设完成后,应及时回填、加盖或封面。
6.3.4 水池、水沟等水工构筑物应符合防漏、防渗要求,混凝土浇筑时不宜留施工缝,必须留缝时应加止水带,也可在池壁及底板增设柔性防水层。
6.3.5 屋面施工完毕,应及时安装天沟、落水管,并应与排水系统及时连通。散水的伸缩缝应避开水落管。
6.3.6 水池、水塔等溢水装置应与排水管沟连通。
条文说明
6.3.6 工程竣工使用后,防止建(构)筑物给排水渗入地基,其给排水系统应有效连通,溢水装置应与排水管沟连通。
7 维护管理
7.1 一般规定
7 维护管理
7.1 一般规定
7.1.1 膨胀土场地内的建筑物、管道、地面排水、环境绿化、边坡、挡土墙等使用期间,应按设计要求进行维护管理。
条文说明
7.1.1 膨胀土是活动性很强的土,环境条件的变化会打破土中原有水分的相对平衡,加剧建筑场地的胀缩变形幅度,对房屋造成危害。国内外的经验证明,建筑物在使用期间开裂破坏有以下几个主要原因:
地面水集聚和管道水渗漏;
挡土墙失效;
保湿散水变形破坏;
建筑物周边树木快速生长或砍伐;
建筑物周边绿化带过多浇灌等。 例如:湖北某厂仓库结构施工期间,外墙中部留有一大坑未填埋,坑中长期积水而使土体膨胀,导致该处墙体开裂,室内地坪大面积开裂。再如:广西宁明一使用不到一年的房屋,因大量生活用水集聚浸泡地基土,房屋最大上升量达65mm而造成墙体开裂。 因此,膨胀土地区的建筑物,不仅在设计时要求采取有效的预防措施,施工质量合格,在使用期间做好长期有效的维护管理工作也至关重要,维护管理工作是膨胀土地区建筑技术不可或缺的环节。只有做好维护管理工作,才能保证建筑物的安全和正常使用。
7.1.2 管理部门应对既有建筑物及其附属设施制定维护管理制度,并应对维护管理工作进行监督检查。
7.1.3 使用单位应妥善保管勘察、设计和施工中的相关技术资料,并应实施维护管理工作,建立维护管理档案。
条文说明
7.1.2、7.1.3 维护管理工作应根据设计要求,由业主单位的管理部门制定制度和详细的实施计划,并负责监督检查。使用单位应建立建设工程档案,设计图纸、竣工图、设计变更通知、隐蔽工程施工验收记录和勘察报告及维护管理记录应及时归档,妥善保管。管理人员更换时,应认真办理上述档案的交接手续。
7.2 维护和检修
7.2 维护和检修
7.2.1 给水、排水和供热管道系统遇有漏水或其他故障时,应及时进行检修和处理。
条文说明
7.2.1 给水、排水和供热管道系统,主要包括有水或有汽的所有管道、检查井、检漏井、阀门井等。发现漏水或其他故障,应立即断绝水(汽)源,故障排除后方可继续使用。
7.2.2 排水沟、雨水明沟、防水地面、散水等应定期检查,发现开裂、渗漏、堵塞等现象时,应及时修复。
7.2.3 除按本规范第3.0.6条的规定进行升降观测的建筑物外,其他建筑物也应定期观察使用状况。当发现墙柱裂缝、地面隆起开裂、吊车轨道变形、烟囱倾斜、窑体下沉等异常现象时,应做好记录,并应及时采取处理措施。
条文说明
7.2.2、7.2.3 除日常检查维护外,每年旱季前后,尤其是特别干旱季节,应对建筑物进行认真普查。对开裂损坏者,要记录裂缝形态、宽度、长度和开裂时间等。每年雨季前,应重点检查截洪沟、排水干道有无损坏、渗漏和堵塞。
7.2.4 坡脚地带不得任意挖土,坡肩地带不应大面积堆载,建筑物周围不得任意开挖和堆土。不能避免时,应采取必要的保护措施。
7.2.5 坡体位移情况应定期观察,当出现裂缝时,应及时采取治理措施。
7.2.6 场区内的绿化,应按设计要求的品种和距离种植,并应定期修剪。绿化地带浇水应控制水量。
条文说明
7.2.6 植被对建筑物的影响与气候、树种、土性等因素有关。为防止绿化不当对建筑物造成危害,绿化方案(植物种类、间距及防治措施等)不得随意更改。提倡采用喷灌、滴灌等现代节水灌溉技术。
7.3 损坏建筑物的治理
7.3 损坏建筑物的治理
7.3.1 建筑物及其附属设施,出现危及安全或影响使用功能的开裂等损坏情况时,应及时会同勘察、设计部门调查分析、查明损坏原因。
条文说明
7.3.1 为了避免对损坏建筑物盲目拆除并就地重建,建了又坏,造成严重浪费,要求发现建筑物损坏,应及时会同有关单位全面调查,分析原因。必要时应进行维护勘察。
7.3.2 建筑物的损坏等级应按现行国家标准《民用建筑可靠性鉴定标准》GB 50292的有关规定鉴定;应根据损坏程度确定治理方案,并应及时付诸实施。
条文说明
7.3.2 应按有关标准的规定,鉴定建筑物的损坏程度。区别不同情况,采取相应的治理措施。做到对症下药,标本兼治。
附录A膨胀土自由膨胀率与蒙脱石含量、阳离子交换量的关系
附录A 膨胀土自由膨胀率与蒙脱石含量、阳离子交换量的关系
表A 膨胀土的自由膨胀率与蒙脱石含量、阳离子交换量的关系

注:1 表中蒙脱石含量为干土全重含量的百分数,采用次甲基蓝吸附法测定;
2 对不含碳酸盐的土样,采用醋酸铵法测定其阳离子交换量;对含碳酸盐的土样,采用氯化铵—醋酸铵法测定其阳离子交换量。
附录B建筑物变形观测方法
附录B 建筑物变形观测方法
B.0.1 变形观测可包括建筑物的升降、水平位移、基础转动、墙体倾斜和裂缝变化等项目。
B.0.2 变形观测方法、所用仪器和精度,应符合现行行业标准《建筑变形测量规范》JGJ 8的规定。
B.0.3 水准基点设置应符合下列要求:
1 水准基点的埋设应以不受膨胀土胀缩变形影响为原则,宜埋设在邻近的基岩露头或非膨胀土层内。基点应按现行国家标准《工程测量规范》GB 50026规定的二等水准要求布置。邻近没有非膨胀土土层时,可在多年的深水井壁上或在常年潮湿、保水条件良好的地段设置深埋式水准基点。深埋式水准基点应加设套管,并应加强保湿措施;
2 深埋式水准基点(图B.0.3)不宜少于3个。每次变形观测时,应进行水准基点校核。水准基点离建筑物较远时,可在建筑物附近设置观测水准基点,其深度不得小于该地区的大气影响深度。

图B.0.3 深埋式水准基点示意
1—焊接在钢管上的水准标芯;2—Ф30mm~50mm钢管;3—Ф60mm~110mm套管;4—导向环;5—底部现浇混凝土;6—油毡二层;7—木屑;8—保护井
B.0.4 观测点设置应符合下列要求:
1 观测点的布置应全面反映建筑物的变形情况,在砌体承重的房屋转角处、纵横墙交接处以及横墙中部,应设置观测点;在房屋转角附近宜加密至每隔2m设1个观测点;承重内隔墙中部应设置内墙观测点,室内地面中心及四周应设置地面观测点。框架结构的房屋沿柱基或纵横轴线应设置观测点。烟囱、水塔、油罐等构筑物的观测点应沿周边对称设置。每栋建筑物可选择最敏感的(1~2)个剖面设置观测点;
2 建筑物墙体和地面裂缝观测应选择重点剖面设置观测点(图B.0.4)。每条裂缝应在不同位置上设置两组以上的观测标志;

图B.0.4 裂缝观测片
3 观测点的埋设可按建筑物的特点采用不同的类型,观测点的埋设应符合现行行业标准《建筑变形测量规范》JGJ 8的规定。
B.0.5 对新建建筑物,应自施工开始即进行升降观测,并应在施工过程的不同荷载阶段进行定期观测。竣工后,应每月进行一次。观测工作宜连续进行5年以上。在掌握房屋季节性变形特点的基础上,应选择收缩下降的最低点和膨胀上升的最高点,以及变形交替的季节,每年观测4次。在久旱和连续降雨后应增加观测次数。
必要时,应同期进行裂缝、基础转动、墙体倾斜及基础水平位移等项目的观测。
B.0.6 资料整理,应包括下列内容:
1 校核观测数据,计算每个观测点的高程、逐次变化值和累计变化值;
2 绘制观测点的时间-变形曲线;
3 绘制建筑物的变形展开曲线;
4 选择典型剖面,绘制基础升降、裂缝张闭、基础转动和基础水平位移等项目的关系曲线;
5 计算建筑物的平均变形幅度、相对挠曲以及易损部分的局部倾斜;
6 编写观测报告。
附录C现场浸水载荷试验要点
附录C 现场浸水载荷试验要点
C.0.1 现场浸水载荷试验可用于以确定膨胀土地基的承载力和浸水时的膨胀变形量。
C.0.2 现场浸水载荷试验(图C.0.2)的方法与步骤,应符合下列规定:

注:图中单位mm
图C.0.2 现场浸水载荷试验试坑及设备布置示意
1—方形压板;2—Ф127砂井;3—砖砌砂槽;4—1b深测标;5—2b深测标;6—3b深测标;7—大气影响深度测标;8—深度为零的测标
1 试验场地应选在有代表性的地段;
2 试验坑深度不应小于1.0m,承压板面积不应小于0.5m 2 ,采用方形承压板时,其宽度b不应小于707mm;
3 承压板外宜设置一组深度为零、1b、2b、3b和等于当地大气影响深度的分层测标,或采用一孔多层测标方法,以观测各层土的膨胀变形量;
4 可采用砂井和砂槽双面浸水。砂槽和砂井内应填满中、粗砂,砂井的深度不应小于当地的大气影响深度,且不应小于4b;
5 应采用重物分级加荷和高精度水准仪观测变形量;
6 应分级加荷至设计荷载。当土的天然含水量大于或等于塑限含水量时,每级荷载可按25kPa增加;当土的天然含水量小于塑限含水量时,每级荷载可按50kPa增加;每级荷载施加后,应按0.5h、1h各观测沉降一次,以后可每隔1h或更长一些时间观测一次,直至沉降达到相对稳定后再加下一级荷载;
7 连续2h的沉降量不大于0.1mm/h时可认为沉降稳定;
8 当施加最后一级荷载(总荷载达到设计荷载)沉降达到稳定标准后,应在砂槽和砂井内浸水,浸水水面不应高于承压板底面;浸水期间应每3d观测一次膨胀变形;膨胀变形相对稳定的标准为连续两个观测周期内,其变形量不应大于0.1mm/3d。浸水时间不应少于两周;
9 浸水膨胀变形达到相对稳定后,应停止浸水并按本规范第C.0.2条第6、7款要求继续加荷直至达到极限荷载;
10 试验前和试验后应分层取原状土样在室内进行物理力学试验和膨胀试验。
C.0.3 现场浸水载荷试验资料整理及计算,应符合下列规定:
1 应绘制各级荷载下的变形和压力曲线(图C.0.3)以及分层测标变形与时间关系曲线,确定土的承载力和可能的膨胀量;

图C.0.3 现场浸水载荷试验p-s关系曲线示意
OA—分级加载至设计荷载;AB—浸水膨胀稳定;BC—分级加载至极限荷载;
2 同一土层的试验点数不应少于3点,当实测值的极差不大于其平均值的30%时,可取平均值为其承载力极限值,应取极限荷载的1/2作为地基土承载力的特征值;
3 必要时可用试验指标按承载力公式计算其承载力,并应与现场载荷试验所确定的承载力值进行对比。在特殊情况下,可按地基设计要求的变形值在p-s曲线上选取所对应的荷载作为地基土承载力的特征值。
附录D自由膨胀率试验
附录D 自由膨胀率试验
D.0.1 自由膨胀率试验可用于判定黏性土在无结构力影响下的膨胀潜势。
D.0.2 试验仪器设备应符合下列规定:
1 玻璃量筒容积应为50mL,最小分度值应为1mL。容积和刻度应经过校准;
2 量土杯容积应为10mL,内径应为20mm;
3 无颈漏斗上口直径应为50mm~60mm,下口直径应为4mm~5mm;
4 搅拌器应由直杆和带孔圆盘构成,圆盘直径应小于量简直径2mm,盘上孔径宜为2mm(图D.0.2);

图D.0.2 搅拌器示意
1—直杆;2—圆盘
5 天平最大称量应为200g,最小分度值应为0.01g;
6 应选取的其他试验仪器设备包括平口刮刀、漏斗支架、取土匙和孔径0.5mm的筛等。
D.0.3 试验方法与步骤应符合下列规定:
1 应用四分对角法取代表性风干土100g,应碾细并全部过0.5mm筛,石子、姜石、结核等应去除;
2 应将过筛的试样拌匀,并应在105℃~110℃下烘至恒重,同时应在干燥器内冷却至室温;
3 应将无颈漏斗放在支架上,漏斗下口应对准量土杯中心并保持10mm距离(图D.0.3);
4 应用取土匙取适量试样倒入漏斗中,倒土时匙应与漏斗壁接触,且应靠近漏斗底部,应边倒边用细铁丝轻轻搅动,并应避免漏斗堵塞。当试样装满量土杯并开始溢出时,应停止向漏斗倒土,应移开漏斗刮去杯口多余的土。应将量土杯中试样倒入匙中,再次将量土杯(图D.0.3)置于漏斗下方,应将匙中土按上述方法倒入漏斗,使其全部落入量土杯中,刮去多余土后称量量土杯中试样质量。本步骤应进行两次重复测定,两次测定的差值不得大于0.1g;

图D.0.3 漏斗与量土杯示意
1—无颈漏斗;2—量土杯;3—支架
5 应在量筒内注入30mL纯水,并加入5mL浓度为5%的分析纯氯化钠溶液。应将量土杯中试样倒入量筒内,用搅拌器搅拌悬液,上近液面,下至筒底,上下搅拌各10次,用纯水清洗搅拌器及量筒壁,使悬液达50mL;
6 待悬液澄清后,应每隔2h测读一次土面高度(估读0.1mL)。直至两次读数差值不大于0.2mL,可认为膨胀稳定,土面倾斜时,读数可取其中值;
7 应按本规范式(4.2.1)计算自由膨胀率。
附录E50kPa压力下的膨胀率试验
附录E 50kPa压力下的膨胀率试验
E.0.1 50kPa压力下的膨胀率试验可用于50kPa压力和有侧限条件下原状土或扰动土样的膨胀率测定。
E.0.2 膨胀率试验仪器设备应符合下列规定:
1 压缩仪试验前应校准在50kPa压力下的仪器压缩量;
2 试样面积应为3000mm 2 或5000mm 2 ,高应为20mm;
3 百分表最大量程应为5mm~10mm,最小分度值应为0.01mm;
4 环刀面积应为3000mm 2 或5000mm 2 ,高应为25mm;
5 天平最大称量应为200g,最小分度值应为0.01g;
6 推土器直径应略小于环刀内径,高度应为5mm。
E.0.3 膨胀率试验方法与步骤应符合下列规定:
1 应用内壁涂有薄层润滑油带护环的环刀切取代表性试样,用推土器将试样推出5mm,削去多余的土,称其重量准确至0.01g,测定试前含水量;
2 应按压缩试验要求,将试样装入容器内,放入透水石和薄型滤纸,加压盖板,调整杠杆使之水平。加1kPa~2kPa压力(保持该压力至试验结束,不计算在加荷压力之内),并加50kPa的瞬时压力,使加荷支架、压板、土样、透水石等紧密接触,调整百分表,记下初读数;
3 应加50kPa压力,每隔1h记录一次百分表读数。当两次读数差值不超过0.01mm时,即为下沉稳定;
4 应向容器内自下而上注入纯水,使水面超过试样顶面约5mm,并应保持该水位至试验结束;
5 浸水后,应每隔2h测记一次百分表读数,当连续两次读数不超过0.01mm时,可以为膨胀稳定,随即卸荷至零,膨胀稳定后,记录读数;
6 试验结束,应吸去容器中的水,取出试样称其重量,准确至0.01g。应将试样烘至恒重,在干燥器内冷却至室温,称量并计算试样的试后含水量、密度和孔隙比。
E.0.4 试验资料整理和校核应符合下列规定:
1 50kPa压力下的膨胀率应按下式计算:
(E.0.4)
式中:
——在50kPa压力下的膨胀率(%);
——压力为50kPa时试样膨胀稳定后百分表的读数(mm);
——压力为50kPa时仪器的变形值(mm);
——压力为零时百分表的初读数(mm);
——试样加荷前的原始高度(mm)。
2 试后孔隙比应按本规范式(F.0.4-2)计算,计算值与实测值之差不应大于0.01。
附录F不同压力下的膨胀率及膨胀力试验
附录F 不同压力下的膨胀率及膨胀力试验
F.0.1 不同压力下的膨胀率及膨胀力试验可用于测定有侧限条件下原状土或扰动土样的膨胀率与压力之间的关系,以及土样在体积不变时由于膨胀产生的最大内应力。
F.0.2 不同压力下的膨胀率及膨胀力试验仪器设备应符合下列规定:
1 压缩仪试验前应校准仪器在不同压力下的压缩量和卸荷回弹量;
2 试样面积应为3000mm 2 或5000mm 2 ,高应为20mm;
3 百分表最大量程应为5mm~10mm,最小分度值应为0.01mm;
4 环刀面积应为3000mm 2 或5000mm 2 ,高应为25mm;
5 天平最大称量应为200g,最小分度值应为0.01g;
6 推土器直径应略小于环刀内径,高度应为5mm。
F.0.3 不同压力下的膨胀率及膨胀力试验方法与步骤,应符合下列规定:
1 应用内壁涂有薄层润滑油带有护环的环刀切取代表性试样,由推土器将试样推出5mm,削去多余的土,称其重量准确至0.01g,测定试前含水量;
2 应按压缩试验要求,将试样装入容器内,放入干透水石和薄型滤纸。调整杠杆使之水平,加1kPa~2kPa的压力(保持该压力至试验结束,不计算在加荷压力之内)并加50kPa瞬时压力,使加荷支架、压板、试样和透水石等紧密接触。调整百分表,并记录初读数;
3 应对试样分级连续在1min~2min内施加所要求的压力。所要求的压力可根据工程的要求确定,但应略大于试样的膨胀力。压力分级,当要求的压力大于或等于150kPa时,可按50kPa分级;当压力小于150kPa时,可按25kPa分级;压缩稳定的标准应为连续两次读数差值不超过0.01mm;
4 应向容器内自下而上注入纯水,使水面超过试样上端面约5mm,并应保持至试验终止。待试样浸水膨胀稳定后,应按 加荷等级分级卸荷至零;
5 试验过程中每退一级荷重,应相隔2h测记一次百分表读数。当连续两次读数的差值不超过0.01mm时,可认为在该级压力下膨胀达到稳定,但每级荷重下膨胀试验时间不应少12h;
6 试验结束,应吸去容器中的水,取出试样称量,准确至0.01g。应将试样烘至恒重,在干燥器内冷却至室温,称量并计算试样的试后含水量、密度和孔隙比。
F.0.4 不同压力下的膨胀率及膨胀力试验资料的整理和校核,应符合下列规定:
1 各级压力下的膨胀率应按下式计算:
(F.0.4-1)
式中:
——某级荷载下膨胀土的膨胀率(%);
——在一定压力作用下试样浸水膨胀稳定后百分表的读数(mm);
——在一定压力作用下,压缩仪卸荷回弹的校准值(mm);
——试样压力为零时百分表的初读数(mm);
——试样加荷前的原始高度(mm)。
2 试样的试后孔隙比应按下式计算:
(F.0.4-2)
(F.0.4-3)
式中:
——试样的试后孔隙比;
——卸荷至零时试样浸水膨胀稳定后的变形量(mm);
——试样卸荷至零时浸水膨胀稳定后百分表读数(mm);
——为压缩仪卸荷至零时的回弹校准值(mm)(图F.0.4-1);
——试样的初始孔隙比。
3 计算的试后孔隙比与实测值之差不应大于0.01。

图F.0.4-1
计算示意
1—仪器压缩校准曲线;2—仪器回弹校准曲线;3—土样加荷压缩曲线;4—土样浸水卸荷膨胀曲线
4 应以各级压力下的膨胀率为纵坐标,压力为横坐标,绘制膨胀率与压力的关系曲线,该曲线与横坐标的交点为试样的膨胀力(图F.0.4-2)。

图F.0.4-2 膨胀率-压力曲线示意
附录G收缩试验
附录G 收缩试验
G.0.1 收缩试验可用于测定黏性土样的线收缩率、收缩系数等指标。
G.0.2 收缩试验的仪器设备应符合下列规定:
1 收缩试验装置(图G.0.2)的测板直径应为10mm,多孔垫板直径应为70mm,板上小孔面积应占整个面积的50%以上;

图G.0.2 收缩试验装置示意图
1—百分表;2—测板;3—土样;4—多孔垫板;5—垫块
2 环刀面积应为3000mm 2 ,高应为20mm;
3 推土器直径应为60mm,推进量应为21mm;
4 天平最大称量应为200g,最小分度值应为0.01g;
5 百分表最大量程应为5mm~10mm,最小分度值应为0.01mm。
G.0.3 收缩试验的方法与步骤应符合下列规定:
1 应用内壁涂有薄层润滑油的环刀切取试样,用推土器从环刀内推出试样(若试样较松散应采用风干脱环法),立即把试样放入收缩装置,使测板位于试样上表面中心处(图G.0.2);称取试样重量,准确至0.01g;调整百分表,记下初读数。在室温下自然风干,室温超过30℃时,宜在恒温(20℃)条件下进行;
2 试验初期,应根据试样的初始含水量及收缩速度,每隔1h~4h测记一次读数,先读百分表读数,后称试样的重量;称量后,应将百分表调回至称重前的读数处。因故停止试验时,应采取措施保湿;
3 两日后,应根据试样收缩速度,每隔6h~24h测读一次,直至百分表读数小于0.01mm;
4 试验结束,应取下试样,称量,在105℃~110℃下烘至恒重,称干土重量。
G.0.4 收缩试验资料整理及计算应符合下列规定:
1 试样含水量应按下式计算:
(G.0.4-1)
式中:
对应的试样含水量(%);
——某次称得的试样重量(g);
——试样烘干后的重量(g)。
2 竖向线缩率应按下式计算:
(G.0.4-2)
式中:
对应的竖向线缩率(%);
——某次百分表读数(mm);
——百分表初始读数(mm);
——试样原始高度(mm)。
3 应以含水量为横坐标、竖向线缩率为纵坐标,绘制收缩曲线图(图G.0.4);应根据收缩曲线确定下列各指标值:

图G.0.4 收缩曲线示意
1)竖向线缩率,按式(G.0.4-2)计算;
2)收缩系数,按本规范式(4.2.4)计算。
其中: 
4 收缩曲线的直线收缩段不应少于三个试验点数据,不符合要求时,应在试验资料中注明该试验曲线无明显直线段。
附录H中国部分地区的蒸发力及降水量表
附录H 中国部分地区的蒸发力及降水量表
表H 中国部分地区的蒸发力及隆水量(mm)



注:表中“站名”为气象站所在地。
附录J使用要求严格的地面构造
附录J 使用要求严格的地面构造
表J 混凝土地面构造要求

注:1 表中
取膨胀试验卸荷到零时的膨胀率;
2 变形缓冲层材料可采用立砌漂石、块石,要求小头朝下;
3 换土层总厚度h为室外地面标高至变形缓冲层底标高的距离。

图J 混凝土地面构造示意
1—面层;2—混凝土垫层;3—非膨胀土填充层;4—变形缓冲层;5—膨胀土地基;6—变形缝
本规范用词说明
本规范用词说明
1 为便于在执行本规范条文时区别对待,对要求严格程度不同的用词说明如下:
1)表示很严格,非这样做不可的:
正面词采用“必须”,反面词采用“严禁”;
2)表示严格,在正常情况下均应这样做的:
正面词采用“应”,反面词采用“不应”或“不得”;
3)表示允许稍有选择,在条件许可时首先应这样做的:
正面词采用“宜”,反面词采用“不宜”;
4)表示有选择,在一定条件下可以这样做的,采用“可”。
2 条文中指明应按其他有关标准执行的写法为:“应按……执行”或“应符合……的规定”。
引用标准名录
引用标准名录
1 《建筑地基基础设计规范》GB 50007
2 《岩土工程勘察规范》GB 50021
3 《工程测量规范》GB 50026
4 《工程结构可靠性设计统一标准》GB 50153
5 《民用建筑可靠性鉴定标准》GB 50292
6 《建筑变形测量规范》JGJ 8
7 《建筑桩基技术规范》JGJ 94
自2022年1月1日起废止的条文

