Appearance
《建筑抗震加固技术规程[附条文说明]》JGJ 116-2009
🗓️ 住房和城乡建设部 实施时间:2009-08-01
前言
中华人民共和国行业标准
建筑抗震加固技术规程
Technical specification for seismic strengthening of buildings
JGJ 116-2009
批准部门:中华人民共和国住房和城乡建设部
施行日期:2009年8月1日
中华人民共和国住房和城乡建设部公告
第340号
关于发布行业标准《建筑抗震加固技术规程》的公告
现批准《建筑抗震加固技术规程》为建筑工程行业标准,编号为JGJ 116-2009,自2009年8月1日起实施。其中,第1.0.3、 1.0.4、3.0.1、3.0.3、3.0.6、5.3.1、5.3.7、5.3.13、6.1.2、6.3.1、6.3.4、6.3.7、7.1.2、7.3.1、7.3.3、9.3.1、9.3.5条 为强制性条文,必须严格执行。原《建筑抗震加固技术规程》JGJ 116-98同时废止。
本规程由我部标准定额研究所组织中国建筑工业出版社出版发行。
中华人民共和国住房和城乡建设部
2009年6月18日
前 言
根据原建设部《关于印发<二〇〇四年度工程建设城建、建工行业标准制订、修订计划>的通知》(建标[2004]66号)的要求,规程编制组经广泛调查研究,认真总结实践经验,参考有关国际标准和国外先进标准,并在广泛征求意见的基础上,修订本规程。
本规程的主要技术内容是:1.总则;2.术语和符号;3.基本规定;4.地基和基础;5.多层砌体房屋;6.多层及高层钢筋混凝土房屋;7.内框架和底层框架砖房;8.单层钢筋混凝土柱厂房;9.单层砖柱厂房和空旷房屋;10.木结构和土石墙房屋;11.烟囱和水塔。
本规程修订的主要技术内容是:
1.与现行国家标准《建筑抗震鉴定标准》GB 50023相配合,明确了不同后续使用年限建筑的抗震加固要求。2.在保持原规程“综合抗震能力指数”加固方法的基础上,增加了按设计规范方法进行加固的内容。3.新增了粘贴钢板、碳纤维布、钢绞线网-聚合物砂浆、消能减震加固技术。4.加强了对重点设防类建筑、超高超层建筑、不利于抗震的结构的加固要求。5.与现行国家标准《混凝土结构加固设计规范》GB 50367进行了协调。
本规程中以黑体字标志的条文为强制性条文,必须严格执行。
本规程由住房和城乡建设部负责管理和对强制性条文的解释,由中国建筑科学研究院负责具体技术内容的解释。执行过程中如有意见或建议,请寄送中国建筑科学研究院(地址:北京市北三环东路30号,邮政编码:100013)。
本规程主编单位: 中国建筑科学研究院
本规程参编单位: 中国机械工业集团有限公司
中国航空工业规划设计研究院
四川省建筑科学研究院
中冶集团建筑研究总院
中国中元国际工程公司
西部建筑抗震勘察设计研究院
同济大学
中国地震局工程力学研究所
上海维固建筑结构设计有限公司
本规程主要起草人: 程绍革 戴国莹(以下按姓氏笔画排列)
尹保江 史铁花 白雪霜 吕西林 李仕全 吴 体 辛鸿博 张耀 金来建 姚秋来 徐 建 戴君武
本规程主要审查人: 吴学敏 刘志刚 高永昭(以下按姓氏笔画排列)
王亚勇 韦开波 李彦莉 吴翔天 杨玉成 苗启松 娄 宇 袁金西 莫庸 侯忠良 黄世敏
1 总则
1 总 则
1.0.1 为贯彻执行国家有关防震减灾的法律法规,实行以预防为主的方针,减轻地震破坏,减少损失,使现有建筑的抗震加固做到抗震安全、经济、合理、有效、实用,制定本规程。
注:抗震安全,指加固后的现有建筑在预期的后续使用年限内能够达到不低于其抗震鉴定的设防目标。
条文说明
1.0.1 地震中建筑物的破坏是造成地震灾害的主要原因。1977年以来建筑抗震鉴定、加固的实践和震害经验表明,对现有建筑进行抗震鉴定,并对不满足鉴定要求的建筑采取适当的抗震对策,是减轻地震灾害的重要途径。经过抗震加固的工程,在1981年邢台M6级地震、1981年道孚M6.9级地震、1985年自贡M4.8级地震、1989年澜沧耿马M7.6级地震、1996年丽江M7级地震,以及2008年汶川地震中,有的已经受了地震的考验,证明了抗震加固与不加固大不一样,抗震加固的确是保障人民生命安全和生产发展的积极而有效的措施。 多年来我国在加固方面开展了大量的试验研究,取得了系统的研究成果,并在实践中积累了丰富的经验。从当前的抗震加固工作面临的任务及所具备的条件来看,制定一部适合我国国情并充分反映当前技术水平的抗震加固技术规程,可使建筑的抗震加固做到抗震安全、经济、合理、有效、实用。 经济,就是要在我国的经济条件下,根据国家有关抗震加固方面的政策,按照规定的程序进行审批,严格掌握加固标准。 合理,就是要在加固设计过程中,根据现有建筑的实际情况,从提高结构整体抗震能力出发,综合提出加固方案。 有效,就是要达到预期的加固目标,加固方法要根据具体条件选择,施工要严格按要求进行,一定要保证质量,特别要采取措施减少对原结构的损伤,以及加强对新旧构件连接效果的检查。 实用,就是抗震加固可结合建筑的维修、改造,包括节能环保改造,在经济合理的前提下,改善使用功能,并注意美观。 抗震安全,指现有建筑经过抗震加固后达到的设防目标,依据其后续使用年限的不同,分别与现行《建筑抗震鉴定标准》GB 50023总则中规定的目标相同或略高。到目前为止,将现有建筑抗震鉴定和加固的后续使用年限分为30年、40年、50年三个档次,分别称为A、B、C类,符合我国的国情,并符合现有建筑的特点。这一目标也与国际标准《结构可靠性总原则》ISO 2394对于现有建筑可靠性要求的原则规定——“当可靠程度不足时,鉴定的结论可包括:出于经济理由保持现状、减少荷载、修补加固或拆除等”相协调。
1.0.2 本规程适用于抗震设防烈度为6~9度地区经抗震鉴定后需要进行抗震加固的现有建筑的设计及施工。
古建筑和行业有特殊要求的建筑,应按专门的规定进行抗震加固的设计及施工。
注:本规程以下“6、7、8、9度”为“抗震设防烈度为6、7、8、9度”的简称。
条文说明
1.0.2 本规程的适用范围,与现行国家标准《建筑抗震鉴定标准》GB 50023相协调,即在抗震设防区中不符合抗震鉴定要求的现有建筑的抗震加固设计及施工。本规程称为抗震加固技术规程,指的是使现有房屋建筑达到规定的抗震设防安全要求所进行的设计和施工。 由于新建建筑工程应符合设计规范的要求;古建筑及属于文物的建筑,有专门的要求;危险房屋不能正常使用。因此,本规程的现有建筑,只是既有建筑中的一部分,不包括古建筑、新建的建筑工程(含烂尾楼)和危险房屋;而且,一般情况,在不遭受地震影响时,仍在正常使用,不需要进行加固,但其抗震鉴定结果认为:在遭遇到预期的地震影响时,其综合抗震能力不足,需要进行抗震加固。
1.0.3 现有建筑抗震加固前,应依据其设防烈度、抗震设防类别、后续使用年限和结构类型,按现行国家标准《建筑抗震鉴定标准》GB 50023的相应规定进行抗震鉴定。 (自2022年4月1日起废止该条, 点击查看:新规《既有建筑鉴定与加固通用规范》GB 55021-2021 )
条文说明
1.0.3 建筑的抗震加固之前,一定要依据设防烈度、抗震设防类别、后续使用年限和结构类型,按现行国家标准《建筑抗震鉴定标准》GB 50023的规定进行抗震鉴定。指的是:
1 抗震鉴定是抗震加固的前提,鉴定与加固应前后连续,才能确保抗震加固取得最佳的效果。不进行抗震鉴定,则加固设计缺乏基本的依据,成为盲目加固。
2 现有建筑不符合抗震鉴定的要求时,按现行国家标准《建筑抗震鉴定标准》GB 50023-2009第3.0.7条的规定,可采取“维修、加固、改变用途和更新”等抗震减灾对策,本规程是其中需要进行加固(包括全面加固、配合维修的局部修复加固和配合改造的适当加固)的专门规定。
3 本规程各章与现行国家标准《建筑抗震鉴定标准》GB 50023-2009的各章有密切的联系,从后续使用年限的选择、不同抗震设防类别的要求,结构构造的影响系数到综合抗震能力的验算方法,凡有对应关系可直接引用的内容,按技术标准编写的规定,本规程的条文均不再重复,需与《建筑抗震鉴定标准》GB 50023-2009的对应章节配套使用。
4 衡量抗震加固是否达到规定的设防目标,也应以《建筑抗震鉴定标准》GB 50023-2009对应章节的相关规定为依据,即以综合抗震能力是否提高为目标对加固的效果进行检查、验算和评定。
1.0.4 现有建筑抗震加固时,建筑的抗震设防类别及相应的抗震措施和抗震验算要求,应按现行国家标准《建筑抗震鉴定标准》GB 50023-2009第1.0.3条的规定执行。 (自2022年4月1日起废止该条, 点击查看:新规《既有建筑鉴定与加固通用规范》GB 55021-2021 )
条文说明
1.0.4 现有建筑进行抗震加固时,其设防标准分为四类,与现行国家标准《建筑抗震设防分类标准》GB 50223相一致。但加固设计的要求与现行《建筑抗震鉴定标准》GB 50023的要求保持一致。因此,本条直接引用《建筑抗震鉴定标准》GB 50023-2009第1.0.3条而不重复。 进行抗震加固设计时,必须明确所属的抗震设防类别,采取不同的抗震措施。
1.0.5 现有建筑的抗震加固及施工,除应符合本规程的规定外,尚应符合国家现行有关标准、规范的规定。
条文说明
1.0.5 本规程仅对现有建筑的抗震加固设计及施工的重点问题和特殊要求作了具体的规定,对未给出具体规定而涉及其他设计规范的应用时,尚应符合相应规范的要求;新增的材料性能和施工质量尚应符合国家有关产品标准、施工质量验收规范的要求。
2 术语和符号
2.1 术语
2 术语和符号
2.1 术 语
2.1.1 现有建筑 available buildings
除古建筑、新建建筑、危险建筑以外,迄今仍在使用的既有建筑。
2.1.2 后续使用年限 Continuous seismic working life,continuing seismic servicelife
对现有建筑经抗震鉴定后继续使用所约定的一个时期,在这个时期内,建筑不需要重新鉴定和相应加固就能按预期目的使用,并完成预定的功能。
2.1.3 抗震设防烈度 seismic fortification intensity
按国家规定的权限批准作为一个地区抗震设防依据的地震烈度。
2.1.4 抗震加固 seismic strengthening of buildings
使现有建筑达到抗震鉴定的要求所进行的设计及施工。
2.1.5 综合抗震能力 compound seismic capability
整个建筑结构综合考虑其构造和承载力等因素所具有的抵抗地震作用的能力。
2.1.6 面层加固法 masonry strengthening with mortar splint
在砌体墙侧面增抹一定厚度的无筋、有钢筋网的水泥砂浆,形成组合墙体的加固方法。
2.1.7 板墙加固法 masonry strengthening with concrete splint
在砌体墙侧面浇筑或喷射一定厚度的钢筋混凝土,形成抗震墙的加固方法。
2.1.8 外加柱加固法 masonry strengthening with tie-co1umns
在砌体墙交接处等增设钢筋混凝土构造柱,形成约束砌体墙的加固方法。
2.1.9 壁柱加固法 brick column strengthening with concrete columns
在砌体墙垛(柱)侧面增设钢筋混凝土柱,形成组合构件的加固方法。
2.1.10 混凝土套加固法 structure membe rstrengthening with reinforced concrete
在原有的钢筋混凝土梁柱或砌体柱外包一定厚度的钢筋混凝土,扩大原构件截面的加固方法。
2.1.11 钢构套加固法 structure member strengthening with steel frame
在原有的钢筋混凝土梁柱或砌体柱外包角钢、扁钢等制成的构架,约束原有构件的加固方法。
2.1.12 钢绞线网-聚合物砂浆面层加固法 structure member strengthening with strand steel wireweb-polymermortar
在原有的砌体墙面或钢筋混凝土梁柱表面外抹一定厚度的钢绞线网-聚合物砂浆层的加固方法。
2.1.13 碳纤维布加固法 structure member strengthening with carbonic fibre reinforced polymer
在原有的钢筋混凝土梁柱表面用胶粘材料粘贴碳纤维片材等的加固方法。
2.2 符号
2.2 符 号
2.2.1 作用和作用效应
N G ——对应于重力荷载代表值的轴向压力
V e ——楼层的弹性地震剪力
S——结构构件地震基本组合的作用效应设计值
2.2.2 材料性能和抗力
f 0 、f k0 ——材料现有强度设计值、标准值
f、f k ——加固材料的强度设计值、标准值
k——加固后结构构件刚度
M y ——加固后构件现有受弯承载力
R——加固后结构构件承载力设计值
V y ——加固后构件或楼层现有受剪承载力
2.2.3 几何参数
A s ——实有钢筋截面面积
A w0 ——原有抗震墙截面面积
A w ——加固后抗震墙截面面积
b——加固后构件截面宽度
h——加固后构件截面高度
l——加固后构件长度,屋架跨度
2.2.4 计算系数
β 0 ——原有的综合抗震能力指数
β s ——加固后的综合抗震能力指数
γ Rs ——抗震加固的承载力调整系数
ε y ——加固后楼层屈服强度系数
φ 1 ——加固后结构构造的体系影响系数
φ 2 ——加固后结构构造的局部影响系数
3 基本规定
3 基本规定
3.0.1 现有建筑抗震加固的设计原则应符合下列要求:
1 加固方案应根据抗震鉴定结果经综合分析后确定,分别采用房屋整体加固、区段加固或构件加固,加强整体性、改善构件的受力状况、提高综合抗震能力。
2 加固或新增构件的布置,应消除或减少不利因素,防止局部加强导致结构刚度或强度突变。
3 新增构件与原有构件之间应有可靠连接;新增的抗震墙、柱等竖向构件应有可靠的基础。
4 加固所用材料类型与原结构相同时,其强度等级不应低于原结构材料的实际强度等级。
5 对于不符合鉴定要求的女儿墙、门脸、出屋顶烟囱等易倒塌伤人的非结构构件,应予以拆除或降低高度,需要保持原高度时应加固。 (自2022年4月1日起废止该条, 点击查看:新规《既有建筑鉴定与加固通用规范》GB 55021-2021 )
3.0.2 抗震加固的方案、结构布置和连接构造,尚应符合下列要求:
1 不规则的现有建筑,宜使加固后的结构质量和刚度分布较均匀、对称。
2 对抗震薄弱部位、易损部位和不同类型结构的连接部位,其承载力或变形能力宜采取比一般部位增强的措施。
3 宜减少地基基础的加固工程量,多采取提高上部结构抵抗不均匀沉降能力的措施,并应计入不利场地的影响。
4 加固方案应结合原结构的具体特点和技术经济条件的分析,采用新技术、新材料。
5 加固方案宜结合维修改造、改善使用功能,并注意美观。
6 加固方法应便于施工,并应减少对生产、生活的影响。
条文说明
3.0.1、3.0.2 抗震鉴定结果是抗震加固设计的主要依据,但在加固设计之前,仍应对建筑的现状进行深入的调查,特别查明是否存在局部损伤。对已存在的损伤要进行专门分析,在抗震加固时一并处理,以便达到最佳效果。当建筑面临维修、节能环保改造、或使用布局在近期需要调整、或建筑外观需要改变等,抗震加固时要一并处理,避免加固后再维修改造,损伤加固后的现有建筑。
1 抗震加固不仅设计技术难度较大,而且施工条件较差。 表现为:要使抗震加固能确实提高现有建筑的抗震能力,需针对现有建筑存在的问题,提出具体加固方案,例如:
1)对不符合抗震鉴定要求的建筑进行抗震加固,一般采用提高承载力、提高变形能力或既提高承载力又提高变形能力的方法,需针对房屋存在的缺陷,对可选择的加固方法逐一进行分析,以提高结构综合抗震能力为目标予以确定。2)需要提高承载力同时提高结构刚度,则以扩大原构件截面、新增部分构件为基本方法;需要提高承载力而不提高刚度,则以外包钢构套、粘钢或碳纤维加固为基本方法;需要提高结构变形能力,则以增加连接构件、外包钢构套等为基本方法。
3)当原结构的结构体系明显不合理时,若条件许可,应采用增设构件的方法予以改善;否则,需要采取同时提高承载力和变形能力的方法,以使其综合抗震能力能满足抗震鉴定的要求。
4)当结构的整体性连接不符合要求时,应采取提高变形能力的方法。
5)当局部构件的构造不符合要求时,应采取不使薄弱部位转移的局部处理方法;或通过结构体系的改变,使地震作用由增设的构件承担,从而保护局部构件。
2 为减少加固施工对生活、工作在现有房屋内的人们的环境影响,还需采取专门对策。例如,在房屋内部加固和外部加固的效果相当时,应采用外部加固;干作业与湿作业相比,造价高、施工进度快且影响面小,有条件时尽量采用;需要在房屋内部湿作业加固时,选择集中加固的方案,也可减少对内部环境的影响。
3 随着技术的进步,加固的手段和方法不断发展,当现有建筑的具体条件合适时,应尽可能采用新的成熟的技术,包括采用隔震、减震技术进行加固设计。
4 震害和理论分析都表明,建筑的结构体型、场地情况及构件受力状况,对建筑结构的抗震性能有显著的影响。与新建建筑工程抗震设计相同,现有房屋建筑的抗震加固也应考虑概念设计。抗震加固的概念设计,主要包括:加固结构体系、新旧构件连接、抗震分析中的内力和承载力调整、加固材料和加固施工的特殊要求等方面。
抗震加固的结构布置和连接构造的概念设计,直接关系到加固后建筑的整体综合抗震能力是否能得到应有的提高。抗震加固设计时,根据结构的实际情况,正确处理好下列关系,是改善结构整体抗震性能、使加固达到有效合理的重要途径:
1 减少扭转效应。增设构件或加强原有构件,均要考虑对整个结构产生扭转效应的可能,尽可能使加固后结构的重量和刚度分布比较均匀对称。虽然现有建筑的体型难以改变,但结合加固、维修和改造,减少不利于抗震的因素,仍然是有可能的。
2 改善受力状态。加固设计要防止结构构件的脆性破坏;要避免局部加强导致刚度和承载力发生突变,加固设计要复核原结构的薄弱部位,采取适当的加强措施,并防止薄弱部位的转移;1976年唐山地震后,天津第二毛纺厂框架结构的主厂房因不合理的加固,导致在同年的宁河地震中倒塌,就是薄弱层转移的后果,为此,要求防止承载力突变。综合抗震能力指数、层间受剪承载力突变,按《建筑抗震设计规范》GB 50011(2008年版)第3.4.2条中概念设计的有关规定,指本层受剪承载力大于相邻下一层的20%。因此,当加固后使本层受剪承载力超过相邻下一楼层的20%时,则出现新的薄弱层,需要同时增强下一楼层的抗震能力。框架结构加固后要防止或消除不利于抗震的强梁弱柱等受力状态。
3 加强薄弱部位的抗震构造。对不同结构类型的连接处,房屋平、立面局部突出部位等,地震反应加大。对这些薄弱部位,加固时要采取相应的加强构造。
4 考虑场地影响。在条状突出的山嘴、高耸孤立的山丘、非岩石的陡坡、河岸和边坡边缘等不利地段,水平地震作用应按规定乘以增大系数1.1~1.6。针对建筑和场地条件的具体情况,加固后的结构要选择地震反应较小的结构体系,避免加固后地震作用的增大超过结构抗震能力的提高。
5 加强新旧构件的连接。连接的可靠性是使加固后结构整体工作的关键,设计时要予以足够的重视。本规程对一些主要构件的连接作了具体规定;对某些部位的连接仅有一般要求,其具体方法由设计者根据实际情况参照相关规定设计。
6 新增设的抗震墙、柱等竖向构件,不仅要传递竖向荷载,而且是直接抵抗水平地震作用的主要构件,因此,这类构件应自上至下连续并落到基础上,不允许直接支承在楼层梁板上。对于新增构件基础的埋深和宽度,除本规程有具体规定外,应根据计算确定,板墙和构架的基础埋深,一般宜与原构件相同。
7 女儿墙、门脸、出屋面烟囱等非结构构件的处理,应以加强与主体结可靠连接、防止倒塌伤人为目的。对不符合要求时,优先考虑拆除、降低高度或改用轻质材料,然后再考虑加固。
8 加固所用砂浆强度和混凝土强度一般比原结构材料强度提高一级,但强度过高并不能发挥预期效果。 本次修订,将抗震加固的方案设计和概念设计要求分为强制性和非强制性的两部分,分别在不同的条文中予以规定,特别强调以下几点:
1 加固方案的结构布置,应针对原结构存在的缺陷,弄清使结构达到规定抗震设防要求的关键,尽可能消除原结构不规则、不合理、局部薄弱层等不利因素。
2 防止局部加固增加结构的不规则性,应从整体结构综合抗震能力的提高入手。
3 新旧构件连接的细部构造,不能损伤原有构件且应能确保连接的可靠性。
4 当非结构构件的构造不符合要求时,至少对可能倒塌伤人的部位进行处理。
5 加固方法要考虑施工的可能性及其对周围正常生活、社会活动工作等的影响,可局部、区段加固的,就不需要所有构件均加固。
3.0.3 现有建筑抗震加固设计时,地震作用和结构抗震验算应符合下列规定:
1 当抗震设防烈度为6度时(建造于Ⅳ类场地的较高的高层建筑除外),以及木结构和土石墙房屋,可不进行截面抗震验算,但应符合相应的构造要求。
2 加固后结构的分析和构件承载力计算,应符合下列要求:
1)结构的计算简图,应根据加固后的荷载、地震作用和实际受力状况确定;当加固后结构刚度和重力荷载代表值的变化分别不超过原来的10%和5%时,应允许不计入地震作用变化的影响;在条状突出的山嘴、高耸孤立的山丘、非岩石的陡坡、河岸和边坡边缘等不利地段,水平地震作用应按现行国家标准《建筑抗震设计规范》GB 50011的规定乘以增大系数1.1~1.6;
2)结构构件的计算截面面积,应采用实际有效的截面面积;
3)结构构件承载力验算时,应计入实际荷载偏心、结构构件变形等造成的附加内力:并应计入加固后的实际受力程度、新增部分的应变滞后和新旧部分协同工作的程度对承载力的影响。
3 当采用楼层综合抗震能力指数进行结构抗震验算时,体系影响系数和局部影响系数应根据房屋加固后的状态取值,加固后楼层综合抗震能力指数应大于1.0,并应防止出现新的综合抗震能力指数突变的楼层。采用设计规范方法验算时,也应防止加固后出现新的层间受剪承载力突变的楼层。 (自2022年4月1日起废止该条, 点击查看:新规《既有建筑鉴定与加固通用规范》GB 55021-2021 )
3.0.4 采用现行国家标准《建筑抗震设计规范》GB 50011的方法进行抗震验算时,宜计入加固后仍存在的构造影响,并应符合下列要求:
对于后续使用年限50年的结构,材料性能设计指标、地震作用、地震作用效应调整。结构构件承载力抗震调整系数均应按国家现行设计规范、规程的有关规定执行;对于后续使用年限少于50年的结构,即现行国家标准《建筑抗震鉴定标准》GB 50023规定的A、B类建筑结构,其设计特征周期、原结构构件的材料性能设计指标、地震作用效应调整等应按现行国家标准《建筑抗震鉴定标准》GB 50023的规定采用,结构构件的“承载力抗震调整系数”应采用下列“抗震加固的承载力调整系数”替代:
1 A类建筑,加固后的构件仍应依据其原有构件按现行国家标准《建筑抗震鉴定标准》GB 50023规定的“抗震鉴定的承载力调整系数”值采用;新增钢筋混凝土构件、砌体墙体可仍按原有构件对待。
2 B类建筑,宜按现行国家标准《建筑抗震设计规范》GB 50011的“承载力抗震调整系数”值采用。
条文说明
3.0.3、3.0.4 现有建筑抗震加固的设计计算,与新建建筑的设计计算不完全相同,有自身的某些特点,主要内容是:
1 抗震加固设计,一般情况应在两个主轴方向分别进行抗震验算;在下列情况下,加固的抗震验算要求有所放宽:6度时(建造于Ⅳ类场地的较高的现有高层建筑除外),同现行《建筑抗震设计规范》GB 50011第5章的规定一样,可不进行构件截面抗震验算;对局部抗震加固的结构,当加固后结构刚度不超过加固前的10%或者重力荷载的变化不超过5%时,可不再进行整个结构的抗震分析。
2 应采用符合加固后结构实际情况的计算简图与计算参数,包括实际截面构件尺寸、钢筋有效截面、实际荷载偏心和构件实际挠度产生的附加内力等,对新增构件的抗震承载力;需考虑应变滞后的二次受力影响。
3 A类结构的抗震验算,优先采用与抗震鉴定相同的简化方法,如要求楼层综合抗震能力指数大于1.0,但应按加固后的实际情况取相应的计算参数和构造影响系数。这些方法不仅便捷、有足够精度,而且能较好地解释现有建筑的震害。
4 本次修订,明确不同后续使用年限的抗震验算方法,增加了按《建筑抗震设计规范》GB 50011加固的构件验算方法。当计入构造影响时,构件承载力的验算表达式为:
此时,应注意:
1)对后续使用年限少于50年的A类房屋建筑,应将《建筑抗震设计规范》GB 50011中的“承载力抗震调整系数γRE”改用本条中的“抗震加固的承载力调整系数γRs”。这个系数是在抗震承载力验算中体现现有建筑抗震加固标准的重要系数,其取值与《建筑抗震鉴定标准》GB 50023中抗震鉴定的承载力调整系数γRa相协调,除加固专有的情况外,取值完全相同。
2)对于B类建筑,规定“抗震加固的承载力调整系数”宜仍按设计规范的“承载力抗震调整系数”采用,标准的执行用语“宜”意味着,参照《民用建筑可靠性鉴定标准》GB 50292关于au、bu级构件可不采取措施的规定,当加固技术上确有困难,构件抗震承载力按《建筑抗震设计规范》GB 50011计算时,墙、柱、支撑等主要抗侧力构件可降低5%以内,其他次要抗侧力构件可降低10%以内。
3)构件承载力要根据加固后的情况按本规程各章规定的方法计算。例如,砌体结构的墙体,加固后的承载力可乘以相应的增强系数:一般的砂浆面层加固见本规程第5.3.2条,聚合物砂浆面层加固见本规程第5.3.5条,板墙加固见本规程第5.3.8条,新增砌体墙加固见本规程第5.3.10条,新增混凝土墙加固见本规程第5.3.12条,外加构造柱加固见本规程第5.3.14条。
4)对于不同的后续使用年限,结构构件地震内力调整、承载力计算公式和材料性能设计指标是不同的,应与鉴定时所采用的参数一致,不能相混。
3.0.5 加固所用的砌体块材、砂浆和混凝土的强度等级,钢筋、钢材的性能指标,应符合现行国家标准《建筑抗震设计规范》GB 50011的有关规定,其他各种加固材料和胶粘剂的性能指标应符合国家现行相关标准、规范的要求。
3.0.6 抗震加固的施工应符合下列要求:
1 应采取措施避免或减少损伤原结构构件。
2 发现原结构或相关工程隐蔽部位的构造有严重缺陷时,应会同加固设计单位采取有效处理措施后方可继续施工。
3 对可能导致的倾斜、开裂或局部倒塌等现象,应预先采取安全措施。 (自2022年4月1日起废止该条, 点击查看:新规《既有建筑鉴定与加固通用规范》GB 55021-2021 )
条文说明
3.0.5、3.0.6 为使抗震加固达到有效的要求,加固材料的质量与施工监理及安全,便成为直接关系抗震加固工程安全和质量的要害所在。针对加固的特殊性,本规程在材料和施工方面所提出的要求是:
1 对于加固所用的特殊材料应明确材料性能及其耐久性,对特殊的加固工法应要求由具有相应资质的专业队伍施工。
2 采取有效措施,避免损伤原构件,并加强对新旧构件连接效果的检查。
3 原图纸的尺寸只是名义尺寸,加固施工前要复核实际尺寸,作相应调整。
4 注意发现原结构存在的隐患,及时采取补救措施。
5 努力减少施工对生产、生活的影响,并采取措施防止施工的安全事故。
4 地基和基础
4 地基和基础
4.0.1 本章适用于存在软弱土、液化土、明显不均匀土层的抗震不利地段上的建筑地基和基础。不利地段应按现行国家标准《建筑抗震设计规范》GB 50011的规定划分。
条文说明
4.0.1 本章与《建筑抗震鉴定标准》GB 50023-2009第4章有密切的联系。现有地基基础的处理需十分慎重,应根据具体情况和问题的严重性采取因地制宜的对策。地基基础的加固可简单概括为:提高承载力、减少土层压缩性、改善透水性、消除液化沉降,以及改善土层的动力特性等方面。
提高承载力——即通过增加土层的抗压强度来提高地基承载力和稳定性;
减少压缩性——即减少土层的弹性变形、压密变形和上部土层的侧向位移所引起的地基沉陷;
改善透水性——即采取措施使地基不透水或减少动水压力,避免流砂、边坡滑移;
消除液化沉降——即改变土层的组成或含水率等,避免液化沉降;
改善动力特性——即采取措施提高松散土质的密实度。
对于抗震危险地段上的地基基础,在《建筑抗震鉴定标准》GB 50023-2009第4章已经明确,其加固需由专门研究确定。
对处于隐伏断裂上的建筑物,在《建筑抗震设计规范》GB 50011规定需要避开主断裂带的范围内,现有建筑也宜迁离或改为次要建筑使用。 本章仅规定了存在软弱土、液化土、明显不均匀土层的抗震不利地段上不符合抗震鉴定要求的现有地基和基础的抗震处理和加固。
4.0.2 抗震加固时,天然地基承载力可计入建筑长期压密的影响,并按现行国家标准《建筑抗震鉴定标准》GB 50023规定的方法进行验算。其中,基础底面压力设计值应按加固后的情况计算,而地基土长期压密提高系数仍按加固前取值。
条文说明
4.0.2 抗震加固时,天然地基承载力的验算方法与《建筑抗震鉴定标准》GB 50023的规定相同,与新建工程不同的是,可根据具体岩土形状、已经使用的年限和实际的基底压力的大小计入地基的长期压密提高效应,提高系数由1.05~1.20不等,有关的公式不再重复;其中,考虑地基的长期压密效应时,需要区分加固前、后基础底面的实际平均压力,只有加固前的压力才可计入长期压密效应。
4.0.3 当地基竖向承载力不满足要求时,可作下列处理:
1 当基础底面压力设计值超过地基承载力特征值在10%以内时,可采用提高上部结构抵抗不均匀沉降能力的措施。
2 当基础底面压力设计值超过地基承载力特征值10%及以上时或建筑已出现不容许的沉降和裂缝时,可采取放大基础底面积,加固地基或减少荷载的措施。
条文说明
4.0.3 本条规定地基竖向承载力不足时的加固和处理方法。 考虑到地基基础的加固难度较大,而且其损坏往往不能直接看到,只能通过观察上部结构的损坏并加以分析才能发现。因此,可以首先考虑通过加强上部结构的刚度和整体性,以弥补地基基础承载力的某些不足和缺陷。本规程根据工程实践,将是否超过地基承载力特征值10%作为不同的地基处理方法的分界,尽可能减少现有地基的加固工作量。 需注意,对于天然地基基础,其承载力指计入地基长期压密效应后的承载力。当加固使基础增加的重力荷载占原有基础荷载的比例小于长期压密提高系数时,则不需要经过验算就可判断为不超过地基承载力。 加固原有地基,包括地基土的置换、挤密、固化和桩基托换等,其设计和施工方法,可按现行行业标准《既有建筑地基基础加固技术规范》JGJ 123的规定执行。
4.0.4 当地基或桩基的水平承载力不满足要求时,可作下列处理:
1 基础顶面、侧面无刚性地坪时,可增设刚性地坪。
2 沿基础顶部增设基础梁,将水平荷载分散到相邻的基础上。
条文说明
4.0.4 本条规定地基、桩基水平承载力的加固和处理方法,主要针对设置柱间支撑的柱基、拱脚等需要进行抗滑验算的情况。 天然地基的抗滑阻力,按《建筑抗震鉴定标准》GB 50023-2009第4.2节的规定,除了一般只考虑基础底面摩擦力和基础正面、侧面土层的水平抗力(被动土压力的1/3)外,还可利用刚性地坪的抗滑能力。震害和试验表明,刚性地坪可很好地抵抗上部结构传来的地震剪力,抗震加固时可充分利用,只需设置不小于墙、柱横截面尺寸3倍宽度的刚性地坪(地坪抗力取墙、柱与地坪接触面积的轴心抗压强度计算),还需注意,刚性地坪受压的抗力不可与土层水平抗力叠加,只能取二者的较大值。 增设基础梁分散水平地震力时,一般按柱承受的竖向荷载的1/10作为基础梁的轴向拉力或压力进行设计计算。
4.0.5 液化地基的液化等级为严重时,对乙类和丙类设防的建筑,宜采取消除液化沉降或提高上部结构抵抗不均匀沉降能力的措施;液化地基的液化等级为中等时,对乙类设防的B类建筑,宜采取提高上部结构抵抗不均匀沉降能力的措施。
条文说明
4.0.5 现有地基基础抗震加固时,液化地基的抗液化措施,也要经过液化判别,根据地基的液化指数和液化等级以及抗震设防类别区别对待。通常选择抗液化处理的原则要求低于《建筑抗震设计规范》GB 50011对新建工程的要求,对于A类建筑,仅对液化等级为严重的现有地基采取抗液化措施;对于乙类设防的B类建筑,液化等级为中等时也需采取抗液化措施,见表1。

4.0.6 为消除液化沉降进行地基处理时,可选用下列措施:
1 桩基托换:将基础荷载通过桩传到非液化土上,桩端(不包括桩尖)伸入非液化土中的长度应按计算确定,且对碎石土,砾、粗、中砂,坚硬黏性土和密实粉土尚不应小于0.5m,对其他非岩石土尚不宜小于1.5m。
2 压重法:对地面标高无严格要求的建筑,可在建筑周围堆土或重物,增加覆盖压力。
3 覆盖法:将建筑的地坪和外侧排水坡改为钢筋混凝土整体地坪。地坪应与基础或墙体锚固,地坪下应设厚度为300mm的砂砾或碎石排水层,室外地坪宽度宜为4~5m。
4 排水桩法:在基础外侧设碎石排水桩,在室内设整体地坪。排水桩不宜少于两排,桩距基础外缘的净距不应小于1.5m。
5 旋喷法:穿过基础或紧贴基础打孔,制作旋喷桩。桩长应穿过液化层并支承在非液化土层上。
条文说明
4.0.6 本条规定,除采用提高上部结构抵抗不均匀沉降的能力外,还列举了现有地基消除液化沉降的常用处理措施,包括: 桩基托换,采用树根桩、静压桩托换,轻型建筑也可采用悬臂式牛腿桩支托,当液化土层在浅层且厚度不大时,可通过加深基础穿过液化土层,将基础置于非液化的土层上;条形基础托换需分段进行,每段的长度一般不超过2m;当液化土层埋深较大或厚度较大时,需新增桩基;桩端伸入非液化土层的深度,需满足《建筑抗震设计规范》GB 50011的要求一对碎石土,砾、粗、中砂,坚硬黏性土和密实粉土尚不应小于0.5m,对其他非岩石土尚不宜小于1.5m;托换法不适用于地下水位高于托换基础标高的情况。 压重法,利用加大液化土层的压力来减轻液化影响,压重范围和压力需经过计算确定,施工时,堆载要分级均匀对称,防止不均匀沉降。
覆盖法,也是利用加大液化土层的压力来减轻液化影响,震害调查和室内模型试验均表明,即使下部土层液化,如果不发生喷冒,则基础的不均匀沉降和平均沉降均明显减小,在很大程度上减轻液化危害;抗喷冒用的刚性地坪应厚度均匀,与基础紧密接触;还需要嵌入基础,以防止地坪上浮。 排水桩法,其原理是:直接位于基础下的区域比自由场地不容易液化,而紧邻基础边有一个高的孔压区比自由场地更容易液化,因此,当地震震动的强度不足以使基础下的土层液化时,只需降低基础边的孔压就可能保持基础的稳定。此法在室内地坪不留缝隙,在基础边1.5m以外利用碎石的空隙作为土层的排水通道,将地震时土中的孔隙水压控制在容许范围内,以防止液化;排水桩的深度,最好达到液化土层的底部,排水桩的间距要经计算确定,排水桩的渗透性要比固结土大200倍以上,且不被淤塞。 旋喷法,适用于黏性土、砂土等,既可用来防止基础继续下沉,也可减少液化指数、降低液化等级或消除液化的可能。此法在基础内或紧贴基础侧面钻孔制作水泥旋喷桩:先用岩心钻钻到所需的深度,插入旋喷管,再用高压喷射水泥浆,边旋转注浆边提升,提到预定的深度后停止注浆并拔出旋喷管。在旋喷过程中利用水泥浆的冲击力扰动土体,使土体与水泥浆混合,凝固成圆柱状固体,达到加固地基土的目的。此法的优点如下:
①可在不同深度、不同范围内喷射水泥浆,可形成间隔的桩柱体或连成整体的连续桩;
②可适用于各种类型的软弱黏性土;
③桩柱体的强度,可通过硬化剂的用量控制;
④可形成竖直桩或斜桩。
4.0.7 对液化地基、软土地基或明显不均匀地基上的建筑,可采取下列提高上部结构抵抗不均匀沉降能力的措施:
1 提高建筑的整体性或合理调整荷载。
2 加强圈梁与墙体的连接。当可能产生差异沉降或基础埋深不同且未按1/2的比例过渡时,应局部加强圈梁。
3 用钢筋网砂浆面层等加固砌体墙体。
条文说明
4.0.7 本条规定了可用来抵抗结构不均匀沉降的一些构造措施。
5 多层砌体房屋
5.1 一般规定
5 多层砌体房屋
5.1 一般规定
5.1.1 本章适用于砖墙体和砌块墙体承重的多层房屋,其适用的最大高度和层数应符合现行国家标准《建筑抗震鉴定标准》GB 50023的有关规定。
条文说明
5.1.1 本章的适用范围,主要是按《建筑抗震鉴定标准》GB 50023-2009第5章进行抗震鉴定后需要加固的多层砖房等多层砌体房屋,故其适用的房屋层数和总高度不再重复,可直接引用的计算公式和系数也不再重复。
5.1.2 砌体房屋的抗震加固应符合下列要求:
1 同一楼层中,自承重墙体加固后的抗震能力不应超过承重墙体加固后的抗震能力。
2 对非刚性结构体系的房屋,应选用有利于消除不利因素的抗震加固方案;当采用加固柱或墙垛,增设支撑或支架等保持非刚性结构体系的加固措施时,应控制层间位移和提高其变形能力。
3 当选用区段加固的方案时,应对楼梯间的墙体采取加强措施。
条文说明
5.1.2 在砖砌体和砌块砌体房屋的加固中,正确选择加固体系和计算综合抗震能力是最基本的要求。 根据震害调查,对于不符合鉴定要求的房屋,抗震加固应从提高房屋的整体抗震能力出发,并注意满足建筑物的使用功能和同相邻建筑相协调,对于砌体房屋,往往采用加固墙体来提高房屋的整体抗震能力,但需注意防止在抗震加固中出现局部的抗震承载力突变而形成薄弱层,纵向非承重或自承重墙体加固后也不要超过同一层楼层中未加固的横向承重墙体的抗震承载力。 鉴于楼梯间在抗震救灾中的重要性,特别要求注意加强。
5.1.3 当现有多层砌体房屋的高度和层数超过规定限值时,应采取下列抗震对策:
1 当现有多层砌体房屋的总高度超过规定而层数不超过规定的限值时,应采取高于一般房屋的承载力且加强墙体约束的有效措施。
2 当现有多层砌体房屋的层数超过规定限值时,应改变结构体系或减少层数;乙类设防的房屋,也可改变用途按丙类设防使用,并符合丙类设防的层数限值;当采用改变结构体系的方案时,应在两个方向增设一定数量的钢筋混凝土墙体,新增的混凝土墙应计入竖向压应力滞后的影响并宜承担结构的全部地震作用。
3 当丙类设防且横墙较少的房屋超出规定限值1层和3m以内时,应提高墙体承载力且新增构造柱、圈梁等应达到现行国家标准《建筑抗震设计规范》GB 50011对横墙较少房屋不减少层数和高度的相关要求。
条文说明
5.1.3 本条明确了超高、超层砌体房屋的加固、加强原则。考虑到现有房屋的层数和高度已经存在,可优先选择给出路的抗震对策。 改变结构体系,指结构的全部地震作用,不能由原有的仅设置构造柱的砌体墙来承担。例如,约束砌体墙、配筋砌体墙、组合砌体墙、足够数量的钢筋混凝土墙等,均可采用。当采用混凝土面层组合墙体时,原有的抗震砖墙体均需加固为组合墙体,净使用面积有所减减少;采用足够数量的钢筋混凝土墙时,钢筋混凝土墙的间距可类似框-剪结构布置,净使用面积的减少量相对少些。按本规程第5.3.8条,双面设置板墙且合计厚度不小于140mm时,可视为增设钢筋混凝土墙。 横墙较少的砌体房屋不降低高度和减少层数的有关要求,见《建筑抗震设计规范》GB 50011(2008年版)第7.3.14条。
5.1.4 加固后的楼层和墙段的综合抗震能力指数,应按下列公式验算:

5.1.5 墙体加固后,按现行国家标准《建筑抗震设计规范》GB50011的规定只选择从属面积较大或竖向应力较小的墙段进行抗震承载力验算时,截面抗震受剪承载力可按下列公式验算:

条文说明
5.1.4、5.1.5 抗震加固和抗震鉴定一样,可采用加固后的综合抗震能力指数作为衡量多层砌体房屋抗震能力的指标,也可按设计规范的方法对加固后的墙段用截面受剪承载力进行验算。 与鉴定不同的是,要按不同的加固方法考虑相应的加固增强系数,并按加固后的情况取体系影响系数φ1和局部影响系数φ2,例如:
1 墙段加固的增强系数对A、B类砌体房屋均相同,对面层加固,根据原墙体的厚度和砂浆强度等级、加固面层的厚度和钢筋网等,取1.1~3.1;对板墙加固,根据原墙体的砂浆强度等级,取1.8~2.5;对外加柱加固,当鉴定不要求构造柱时,根据外加柱和洞口情况,取1.1~1.3。
2 构造影响系数对A、B类砌体房屋略有不同,主要表现在构造柱的影响系数上:
1)增设抗震墙后,若横墙间距小于鉴定标准对刚性楼盖的规定值,取φ1=1.0;
2)鉴定不要求有构造柱时,增设外加柱和拉杆、圈梁后,整体性连接的系数(楼屋盖支承长度、圈梁布置和构造等)取φ1=1.0;鉴定要求有构造柱时,增设的构造柱需满足鉴定要求,相应的影响系数才能取φ1=1.0;
3)采用面层、板墙加固或增设窗框、外加柱的窗间墙,其局部尺寸的影响系数取φ2=1.0;
4)采用面层、板墙加固或增设支柱后,大梁支承长度的影响系数取φ2=1.0。
5.2 加固方法
5.2 加固方法
5.2.1 房屋抗震承载力不满足要求时,宜选择下列加固方法:
1 拆砌或增设抗震墙:对局部的强度过低的原墙体可拆除重砌;重砌和增设抗震墙的结构材料宜采用与原结构相同的砖或砌块,也可采用现浇钢筋混凝土。
2 修补和灌浆:对已开裂的墙体,可采用压力灌浆修补,对砌筑砂浆饱满度差且砌筑砂浆强度等级偏低的墙体,可用满墙灌浆加固。
修补后墙体的刚度和抗震能力,可按原砌筑砂浆强度等级计算;满墙灌浆加固后的墙体,可按原砌筑砂浆强度等级提高一级计算。
3 面层或板墙加固:在墙体的一侧或两侧采用水泥砂浆面层、钢筋网砂浆面层、钢绞线网-聚合物砂浆面层或现浇钢筋混凝土板墙加固。
4 外加柱加固:在墙体交接处增设现浇钢筋混凝土构造柱加固。外加柱应与圈梁、拉杆连成整体,或与现浇钢筋混凝土楼、屋盖可靠连接。
5 包角或镶边加固:在柱、墙角或门窗洞边用型钢或钢筋混凝土包角或镶边;柱、墙垛还可用现浇钢筋混凝土套加固。
6 支撑或支架加固:对刚度差的房屋,可增设型钢或钢筋混凝土支撑或支架加固。
5.2.2 房屋的整体性不满足要求时,应选择下列加固方法:
1 当墙体布置在平面内不闭合时,可增设墙段或在开口处增设现浇钢筋混凝土框形成闭合。
2 当纵横墙连接较差时,可采用钢拉杆、长锚杆、外加柱或外加圈梁等加固。
3 楼、屋盖构件支承长度不满足要求时,可增设托梁或采取增强楼、屋盖整体性等的措施;对腐蚀变质的构件应更换;对无下弦的人字屋架应增设下弦拉杆。
4 当构造柱或芯柱设置不符合鉴定要求时,应增设外加柱;当墙体采用双面钢筋网砂浆面层或钢筋混凝土板墙加固,且在墙体交接处增设相互可靠拉结的配筋加强带时,可不另设构造柱。
5 当圈梁设置不符合鉴定要求时,应增设圈梁;外墙圈梁宜采用现浇钢筋混凝土,内墙圈梁可用钢拉杆或在进深梁端加锚杆代替;当采用双面钢筋网砂浆面层或钢筋混凝土板墙加固,且在上下两端增设配筋加强带时,可不另设圈梁。
6 当预制楼、屋盖不满足抗震鉴定要求时,可增设钢筋混凝土现浇层或增设托梁加固楼、屋盖,钢筋混凝土现浇层做法应符合本规程第7.3.4条的规定。
5.2.3 对房屋中易倒塌的部位,宜选择下列加固方法:
1 窗间墙宽度过小或抗震能力不满足要求时,可增设钢筋混凝土窗框或采用钢筋网砂浆面层、板墙等加固。
2 支承大梁等的墙段抗震能力不满足要求时,可增设砌体柱、组合柱、钢筋混凝土柱或采用钢筋网砂浆面层、板墙加固。组合柱加固的设计与施工,可按本规程第9.3.3、9.3.4条的规定执行。
3 支承悬挑构件的墙体不符合鉴定要求时,宜在悬挑构件端部增设钢筋混凝土柱或砌体组合柱加固,并对悬挑构件进行复核。
4 隔墙无拉结或拉结不牢,可采用镶边、埋设钢夹套、锚筋或钢拉杆加固;当隔墙过长、过高时,可采用钢筋网砂浆面层进行加固。
5 出屋面的楼梯间、电梯间和水箱间不符合鉴定要求时,可采用面层或外加柱加固,其上部应与屋盖构件有可靠连接,下部应与主体结构的加固措施相连。
6 出屋面的烟囱、无拉结女儿墙、门脸等超过规定的高度时,宜拆除、降低高度或采用型钢、钢拉杆加固。
7 悬挑构件的锚固长度不满足要求时,可加拉杆或采取减少悬挑长度的措施。
5.2.4 当具有明显扭转效应的多层砌体房屋抗震能力不满足要求时,可优先在薄弱部位增砌砖墙或现浇钢筋混凝土墙,或在原墙加面层;也可采取分割平面单元,减少扭转效应的措施。
条文说明
5.2.1~5.2.4 根据我国多年来工程加固实践的总结、这几条分别列举了《建筑抗震鉴定标准》GB?50023-2009第5章所明确的抗震承载力不足、房屋整体性不良、局部易倒塌部位连接不牢时及房屋有明显扭转效应时可供选择的多种有效加固方法,要针对房屋的实际情况单独或综合采用。
5.2.5 现有的空斗墙房屋和普通黏土砖砌筑的墙厚不大于180mm的房屋需要继续使用时,应采用双面钢筋网砂浆面层或板墙加固。
条文说明
5.2.5 鉴于现有的A类空斗墙房屋和普通黏土砖砌筑的墙厚小于180mm的房屋属于早期建造的,20世纪80年代后已不允许建造,故要求尽可能拆除处理,确实需要继续使用的,需要特别加强。
5.3 加固设计及施工
5.3 加固设计及施工
Ⅰ 水泥砂浆和钢筋网砂浆面层加固
5.3.1 采用水泥砂浆面层和钢筋网砂浆面层加固墙体时,应符合下列要求:
1 钢筋网应采用呈梅花状布置的锚筋、穿墙筋固定于墙体上;钢筋网四周应采用锚筋、插入短筋或拉结筋等与楼板、大梁、柱或墙体可靠连接;钢筋网外保护层厚度不应小于10mm,钢筋网片与墙面的空隙不应小于5mm。
2 面层加固采用综合抗震能力指数验算时,有关构件支承长度的影响系数应作相应改变,有关墙体局部尺寸的影响系数应取1.0。 (自2022年4月1日起废止该条, 点击查看:新规《既有建筑鉴定与加固通用规范》GB 55021-2021 )
5.3.2 采用水泥砂浆面层和钢筋网砂浆面层加固墙体的设计,尚应符合下列规定:
1 原砌体实际的砌筑砂浆强度等级不宜高于M2.5。
2 面层的材料和构造尚应符合下列要求:
1)面层的砂浆强度等级,宜采用M10;
2)水泥砂浆面层的厚度宜为20mm;钢筋网砂浆面层的厚度宜为35mm;
3)钢筋网的钢筋直径宜为4mm或6mm;网格尺寸,实心墙宜为300mm×300mm,空斗墙宜为200mm×200mm;
4)单面加面层的钢筋网应采用φ6的L形锚筋,双面加面层的钢筋网应采用φ6的S形穿墙筋连接;L形锚筋的间距宜为600mm,S形穿墙筋的间距宜为900mm;
5)钢筋网的横向钢筋遇有门窗洞时,单面加固宜将钢筋弯入洞口侧边锚固,双面加固宜将两侧的横向钢筋在洞口闭合;
6)底层的面层,在室外地面下宜加厚并伸入地面下500mm。
3 面层加固后,楼层抗震能力的增强系数可按下列公式计算:


4 加固后砖墙体刚度的提高系数应按下列公式计算:


条文说明
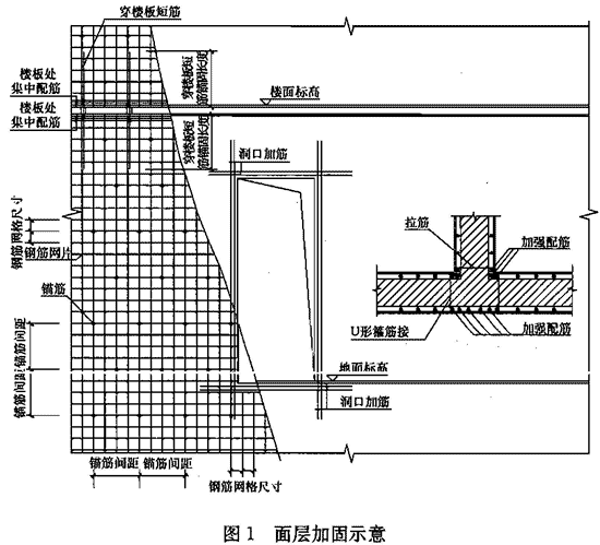
5.3.1、5.3.2 这两条明确规定了面层(水泥砂浆面层或钢筋网水泥砂浆面层)加固墙体的设计方法,其中第5.3.1条是需要严格执行的强制性要求。为使面层加固有效,除了要注意原墙体的砌筑砂浆强度不高于M2.5外,强调了以下几点:①钢筋网的保护层及钢筋距墙面空隙;②钢筋网与墙面的锚固;③钢筋网与周边原有结构构件的连接。 面层加固的承载力计算,许多单位进行过试验研究并提出相应的计算公式。结合工程经验,本规程提出了原砌筑砂浆强度等级不高于M2.5而面层砂浆为M10时的增强系数。当原砌筑砂浆强度等级高于M2.5时,面层加固效果不大,增强系数接近于1.0。 对砌筑砂浆强度等级M2.5的墙体,试验结果表明,钢筋间距以300mm为宜,过疏或过密都不能使钢筋充分发挥作用。 试验和现场检测发现,钢筋网竖筋紧靠墙面会导致钢筋与墙体无粘结,加固失效;试验表明,采用5mm间隙可有较强的粘结能力。钢筋网的保护层厚度应满足规定,提高耐久性,避免钢筋锈蚀后丧失加固效果。 面层加固可根据综合抗震能力指数的控制,只在某一层进行,不需要自上而下延伸至基础。但在底层的外墙,为提高耐久性,面层在室外地面以下宜加厚并向下延伸500mm。 当利用面层中的配筋加强带起构造柱圈梁的约束作用时,一般需在墙体周边设置3根φ10的钢筋,净距50mm;水平钢筋间距局部加密;墙体两面的钢筋还需要相互可靠拉结。在纵横墙交接处,则形成十字或T字形的组合柱。 面层加固的钢筋网布置及典型连接构造,参见图1。

5.3.3 面层加固的施工应符合下列要求:
1 面层宜按下列顺序施工:原有墙面清底、钻孔并用水冲刷,孔内干燥后安设锚筋并铺设钢筋网,浇水湿润墙面,抹水泥砂浆并养护,墙面装饰。
2 原墙面碱蚀严重时,应先清除松散部分并用1:3水泥砂浆抹面,已松动的勾缝砂浆应剔除。
3 在墙面钻孔时,应按设计要求先画线标出锚筋(或穿墙筋)位置,并应采用电钻在砖缝处打孔,穿墙孔直径宜比S形筋大2mm,锚筋孔直径宜采用锚筋直径的1.5~2.5倍,其孔深宜为100~120mm,锚筋插入孔洞后可采用水泥基灌浆料、水泥砂浆等填实。
4 铺设钢筋网时,竖向钢筋应靠墙面并采用钢筋头支起。
5 抹水泥砂浆时,应先在墙面刷水泥浆一道再分层抹灰,且每层厚度不应超过15mm。
6 面层应浇水养护,防止阳光曝晒,冬季应采取防冻措施。
条文说明
5.3.3 注意钢筋网与原有墙面、周边构件的拉结筋应检验合格才能进行下一道工序的施工。锚筋除采用水泥基灌浆料、水泥砂浆外还可采用结构加固用胶粘剂,根据不同的材料和施工工艺,锚孔直径需相应调整。
Ⅱ 钢绞线网-聚合物砂浆面层加固
5.3.4 钢绞线网-聚合物砂浆面层加固砌体墙的材料性能,应符合下列要求:
1 钢绞线网片应符合下列要求:
1)钢绞线应采用6×7+1WS金属股芯钢绞线,单根钢绞线的公称直径应在2.5~4,5mm范围内;应采用硫、磷含量均不大于0.03%的优质碳素结构钢制丝;镀锌钢绞线的锌层重量及镀锌质量应符合现行国家标准《钢丝镀锌层》GB/T 15393对AB级的规定;
2)宜采用抗拉强度标准值为1650MPa(直径不大于4.0mm)和1560MPa(直径大于4.0mm)的钢绞线;相应的抗拉强度设计值取1050MPa(直径不大于4.0mm)和1000MPa(直径大于4.0mm) ;
3)钢绞线网片应无破损,无死折,无散束,卡扣无开口、脱落,主筋和横向筋间距均匀,表面不得涂有油脂、油漆等污物。
2 聚合物砂浆可采用Ⅰ级或Ⅱ级聚合物砂浆,其正拉粘结强度、抗拉强度和抗压强度以及老化检验、毒性检验等应符合现行国家标准《混凝土结构加固设计规范》GB 50367的有关要求。
5.3.5 钢绞线网-聚合物砂浆面层加固砌体墙的设计,应符合下列要求:
1 原墙体砌筑的块体实际强度等级不宜低于MU7.5。
2 聚合物砂浆面层的厚度应大于25mm,钢绞线保护层厚度不应小于15mm。
3 钢绞线网-聚合物砂浆层可单面或双面设置,钢绞线网应采用专用金属胀栓固定在墙体上,其间距宜为600mm,且呈梅花状布置。
4 钢绞线网四周应与楼板或大梁、柱或墙体可靠连接;面层可不设基础,外墙在室外地面下宜加厚并伸入地面下500mm。
5 墙体加固后,有关构件支承长度的影响系数应作相应改变,有关墙体局部尺寸的影响系数可取1.0;楼层抗震能力的增强系数,可按本规程公式(5.3.2-1)采用,其中,面层加固的基准增强系数,对黏土普通砖可按表5.3.5-1采用; 墙体刚度的基准提高系数,可按表5.3.5-2采用。


5.3.6 钢绞线网-聚合物砂浆层加固砌体墙的施工,应符合下列要求:
1 面层宜按下列顺序施工:原有墙面清理,放线定位,钻孔并用水冲刷,钢绞线网片锚固、绷紧、调整和固定,浇水湿润墙面,进行界面处理,抹聚合物砂浆并养护,墙面装饰。
2 墙面钻孔应位于砖块上,应采用φ6钻头,钻孔深度应控制在40~45mm。
3 钢绞线网端头应错开锚固,错开距离不小于50mm。
4 钢绞线网应双层布置并绷紧安装,竖向钢绞线网布置在内侧,水平钢绞线网布置在外侧,分布钢绞线应贴向墙面,受力钢绞线应背离墙面。
5 聚合物砂浆抹面应在界面处理后随即开始施工,第一遍抹灰厚度以基本覆盖钢绞线网片为宜,后续抹灰应在前次抹灰初凝后进行,后续抹灰的分层厚度控制在10~15mm。
6 常温下,聚合物砂浆施工完毕6h内,应采取可靠保湿养护措施;养护时间不少于7d;雨期、冬期或遇大风、高温天气时,施工应采取可靠应对措施。
条文说明
5.3.4~5.3.6 在近几年的试验研究和工程实践的基础上,本次修订增加了钢绞线网-聚合物砂浆面层加固砌体墙的方法,其加固效果好于钢筋网水泥砂浆面层加固法。 本方法与钢筋网砂浆面层加固的主要区别是,采用钢绞线网片,与原有墙体连接采用锚固在砖块上的专用金属胀栓,在墙体交接处需设置钢筋网等加强与左右两端墙体的连接,见图2。

Ⅲ 板墙加固
5.3.7 采用现浇钢筋混凝土板墙加固墙体时,应符合下列要求:
1 板墙应采用呈梅花状布置的锚筋、穿墙筋与原有砌体墙连接;其左右应采用拉结筋等与两端的原有墙体可靠连接;底部应有基础;板墙上下应与楼、屋盖可靠连接,至少应每隔1m设置穿过楼板且与竖向钢筋等面积的短筋,短筋两端应分别锚入上下层的板墙内,其锚固长度不应小于短筋直径的40倍。
2 板墙加固采用综合抗震能力指数验算时,有关构件支承长度的影响系数应作相应改变,有关墙体局部尺寸的影响系数应取1. 0。 (自2022年4月1日起废止该条, 点击查看:新规《既有建筑鉴定与加固通用规范》GB 55021-2021 )
5.3.8 现浇钢筋混凝土板墙加固墙体的设计,应符合下列要求:
1 板墙的材料和构造尚应符合下列要求:
1)混凝土的强度等级宜采用C20,钢筋宜采用HPB235级或HRB335级热轧钢筋;
2)板墙厚度宜采用60~100mm;
3)板墙可配置单排钢筋网片,竖向钢筋可采用φ2(对于HRB335级钢筋,可采用φ10),横向钢筋可采用φ6,间距宜为150~200mm;
4)板墙与原有墙体的连接,可沿墙高每隔0.7~1.0m在两端各设1根φ12的拉结钢筋,其一端锚入板墙内的长度不宜小于500mm,另一端应锚固在端部的原有墙体内;
5)单面板墙宜采用φ8的L形锚筋与原砌体墙连接,双面板墙宜采用φ8的S形穿墙筋与原墙体连接;锚筋在砌体内的锚固深度不应小于120mm;锚筋的间距宜为600mm,穿墙筋的间距宜为900mm;
6)板墙基础埋深宜与原有基础相同。
2 板墙加固后,楼层抗震能力的增强系数可按本规程公式(5.3.2-1)计算;其中,板墙加固墙段的增强系数,原有墙体的砌筑砂浆强度等级为M2.5和M5时可取2.5,砌筑砂浆强度等级为M7.5时可取2. 0,砌筑砂浆强度等级为M10时可取1.8。
3 双面板墙加固且总厚度不小于140mm时,其增强系数可按增设混凝土抗震墙加固法取值。
5.3.9 板墙加固的施工应符合下列要求:
1 板墙加固施工的基本顺序、钻孔注意事项,可按本规程第5.3.3条对面层加固的相关规定执行。
2 板墙可支模浇筑或采用喷射混凝土工艺,应采取措施使墙顶与楼板交界处混凝土密实,浇筑后应加强养护。
条文说明
5.3.7~5.3.9 钢筋混凝土板墙加固时,考虑到混凝土与砖砌体的弹性模量相差较大,混凝土不能充分发挥作用,其强度等级不宜过高,厚度不宜过大。 第5.3.7条是强制性要求,强调了以下几点:
①板墙与原有楼板、周边结构构件应采用短筋、拉结钢筋可靠连接;
②板墙的钢筋应与原墙体充分锚固;
③板墙应有基础,条件允许时基础埋深同原有基础。
试验表明,板墙加固的增强系数与原墙体的砂浆强度等级有关。 本次修订,进一步明确双面板墙加固的增强系数,当双面合计的厚度达到140mm时,可直接按新增混凝土抗震墙对待。即,对于原有240mm厚的墙体,相当于双面加固的增强系数取为3.8(≤M7.5)和3.5(M10)。 板墙可支模浇筑或采用喷射混凝土工艺,板墙厚度较薄时应优先采用喷射混凝土工艺。
Ⅳ 增设抗震墙加固
5.3.10 增设砌体抗震墙加固房屋的设计,应符合下列要求:
1 抗震墙的材料和构造应符合下列要求:
1)砌筑砂浆的强度等级应比原墙体实际强度等级高一级,且不应低于M2.5;
2)墙厚不应小于190mm;
3)墙体中宜设置现浇带或钢筋网片加强:可沿墙高每隔0. 7~1.0m设置与墙等宽、高60mm的细石混凝土现浇带,其纵向钢筋可采用3φ6,横向系筋可采用φ6,其间距宜为200mm;当墙厚为240mm或370mm时,可沿墙高每隔300~700mm设置一层焊接钢筋网片,网片的纵向钢筋可采用3φ4,横向系筋可采用φ4,其间距宜为150mm;
4)墙顶应设置与墙等宽的现浇钢筋混凝土压顶梁,并与楼、屋盖的梁(板)可靠连接;可每隔500~700mm设置φ12的锚筋或M12锚栓连接;压顶梁高不应小于120mm,纵筋可采用4φ12,箍筋可采用φ6,其间距宜为150mm;
5)抗震墙应与原有墙体可靠连接:可沿墙体高度每隔500~600mm设置2φ6且长度不小于1m的钢筋与原有墙体用螺栓或锚筋连接;当墙体内有混凝土带或钢筋网片时,可在相应位置处加设2φ12(对钢筋网片为φ6)的拉筋,锚入混凝土带内长度不宜小于500mm,另一端锚在原墙体或外加柱内,也可在新砌墙与原墙间加现浇钢筋混凝土内柱,柱顶与压顶梁连接,柱与原墙应采用锚筋、销键或螺栓连接;
6)抗震墙应有基础,其埋深宜与相邻抗震墙相同,宽度不应小于计算宽度的1.15倍。
2 加固后,横墙间距的体系影响系数应作相应改变;楼层抗震能力的增强系数可按下式计算:

5.3.11 增设砌体抗震墙施工中,配筋的细石混凝土带可在砌到设计标高时浇筑,当混凝土终凝后方可在其上砌砖。
5.3.12 采用增设现浇钢筋混凝土抗震墙加固砌体房屋时,应符合下列要求:
1 原墙体砌筑的砂浆实际强度等级不宜低于M2.5,现浇混凝土墙沿平面宜对称布置,沿高度应连续布置,其厚度可为140~160mm,混凝土强度等级宜采用C20;可采用构造配筋;抗震墙应设基础,与原有的砌体墙、柱和梁板均应有可靠连接。
2 加固后,横墙间距的影响系数应作相应改变;楼层抗震能力的增强系数可按本规程公式(5. 3.10)计算,其中,增设墙段的厚度可按240mm计算,墙段的增强系数,原墙体砌筑砂浆强度等级不高于M7.5时可取2.8,M10时可取2.5。
V 外加圈梁-钢筋混凝土柱加固
5.3.13 采用外加圈梁-钢筋混凝土柱加固房屋时,应符合下列要求:
1 外加柱应在房屋四角、楼梯间和不规则平面的对应转角处设置,并应根据房屋的设防烈度和层数在内外墙交接处膈开间或每开间设置;外加柱应由底层设起,并应沿房屋全高贯通,不得错位;外加柱应与圈梁(含相应的现浇板等)或钢拉杆连成闭合系统。
2 外加柱应设置基础,并应设置拉结筋、销键、压浆锚杆或锚筋等与原墙体、原基础可靠连接;当基础埋深与外墙原基础不同时,不得浅于冻结深度。
3 增设的圈梁应与墙体可靠连接;圈梁在楼、屋盖平面内应闭合,在阳台、楼梯间等圈梁标高变换处,圈梁应有局部加强措施;变形缝两侧的圈梁应分别闭合。
4 加固后采用综合抗震能力指数验算时,圈梁布置和构造的体系影响系数应取1.0;墙体连接的整体构造影响系数和相关墙垛局部尺寸的局部影响系数应取1.0。 ( 自2022年4月1日起废止该条,点击查看:新规 《混凝土结构通用规范》 GB 55008-2021)
条文说明
5.3.13 利用外加钢筋混凝土柱、圈梁和替代内墙圈梁的拉杆,在水平和竖向将多层砌体结构的墙段加以分割和包围,形成对墙段的约束,能有效提高抗倒塌能力。这种加固方法已经受过地震的考验。 本条是强制性要求,其设置需依据设防烈度和设防类别的不同区别对待,为使约束系统的加固有效,强调了以下几点:
①外加柱设置的位置应合理,还应与圈梁或钢拉杆连成封闭系统;
②外加柱、圈梁应通过设置拉结钢筋和销键、锚栓、压浆锚杆或锚筋与墙体连接;
③外加柱应有足够深度的基础;
④圈梁遇阳台、楼梯间、变形缝时,应妥善处理;
⑤拉杆应按照替代内墙圈梁的要求设置,并满足与墙体锚固的规定,使拉杆能保持张紧状态,切实发挥作用。
5.3.14 外加钢筋混凝土柱的设计,尚应符合下列要求:
1 外加柱的布置尚应符合下列规定:
1)外加柱宜在平面内对称布置;
2)采用钢拉杆代替内墙圈梁与外加柱形成闭合系统时,钢拉杆应符合本规程第5.3.17条的要求,钢拉杆用量尚不应少于本规程第5.3. 18条关于增强纵横墙连接的用量规定;
3)内廊房屋的内廊在外加柱的轴线处无连系梁时,应在内廊两侧的内纵墙加柱,或在内廊楼、屋盖的板下增设与原有的梁板可靠连接的现浇钢筋混凝土梁或钢梁;
4)当采用外加柱增强墙体的受剪承载力时,替代内墙圈梁的钢拉杆不宜少于2φ16。
2 外加柱的材料和构造尚应符合下列规定:
1)柱的混凝土强度等级宜采用C20;
2)柱截面可采用240mm×180mm或300mm×150mm;扁柱的截面面积不宜小于36000mm 2 ,宽度不宜大于700mm,厚度可采用70mm;外墙转角可采用边长为600mm的L形等边角柱,厚度不应小于120mm;
3)纵向钢筋不宜少于4φ12,转角处纵向钢筋可采用12φ12,并宜双排布置;箍筋可采用φ6,其间距宜为150~200mm,在楼、屋盖上下各500mm范围内的箍筋间距不应大于100mm;
4)外加柱宜在楼层1/3和2/3层高处同时设置拉结钢筋和销键与墙体连接,亦可沿墙体高度每隔500mm左右设置锚栓、压浆锚杆或锚筋与墙体连接。
3 外加柱加固后,当抗震鉴定需要有构造柱时,与构造柱有关的体系影响系数可取1.0;当抗震鉴定无构造柱设置要求时,楼层抗震能力的增强系数应按下式计算:


5.3.15 外加柱的拉结钢筋、销键、压浆锚杆和锚筋应分别符合下列要求:
1 护结钢筋可采用2φ12钢筋,长度不应小于1.5m,应紧贴横墙布置;其一端应锚在外加柱内,另一端应锚入横墙的孔洞内;孔洞尺寸宜采用120mm×120mm,拉结钢筋的锚固长度不应小于其直径的15倍,并用混凝土填实。
2 销键截面宜采用240mm×180mm,入墙深度可采用180mm,销键应配置4φ18钢筋和2φ6箍筋,销键与外加柱必须同时浇筑。
3 压浆锚杆可采用1根φ14的钢筋,在柱和横墙内的锚固长度均不应小于锚杆直径的35倍;锚浆可采用水泥基灌浆料等,锚杆应先在墙面固定后,再浇筑外加柱混凝土,墙体锚孔压浆前应采用压力水将孔洞冲刷干净。
4 锚筋适用于砌筑砂浆实际强度等级不低于M2.5的实心砖墙体,并可采用φ12钢筋,锚孔直径可依据胶粘剂的不同取18~25mm,锚入深度可采用150~200mm。
条文说明
5.3.14、5.3.15 外加柱加固砖房的增强系数,是在总结几百个试验资料的基础上提出的。墙体承载力的提高,只适用于砂浆强度等级为M2.5以下鉴定不要求有构造柱的A类房屋墙体。 外加柱的截面和配筋均不必过大。外加柱应沿房屋全高贯通,不得错位;外加柱的钢筋混凝土销键适用于砂浆强度等级低于M2.5的墙体,砂浆强度等级为M2.5及以上时,可采用其他连接措施;在北方有季节性冻土的地区,外加柱埋深不得小于冻结深度;圈梁应连续闭合,内墙圈梁可用满足锚固要求的保持张紧的拉杆替代; 钢筋网砂浆面层和钢筋混凝土板墙中,沿墙体交接处、墙体与楼板交界处的集中配筋,也可替代该位置的构造柱和圈梁。
5.3.16 后加圈梁的材料和构造,尚应符合下列要求:
1 圈梁应现浇,其混凝土强度等级不应低于C20,钢筋可采用HPB235级或HRB335级热轧钢筋;对A类砌体房屋,7度且不超过三层时,顶层可采用型钢圈梁,采用槽钢时不应小于[8,采用角钢时不应小于∟75×6。
2 圈梁截面高度不应小于180mm,宽度不应小于120mm;圈梁的纵向钢筋,对A类砌体房屋,7、8、9度时可分别采用4φ8、4φ10和4φ12,对B类砌体房屋,7、8、9度时可分别采用4φ10、4φ12和4φ14;箍筋可采用φ6,其间距宜为200mm;外加柱和钢拉杆锚固点两侧各500mm范围内的箍筋应加密。
3 钢筋混凝土圈梁与墙体的连接,可采用销键、螺栓、锚栓或锚筋连接;型钢圈梁宜采用螺栓连接。采用的销键、螺栓、锚栓或锚筋应符合下列要求:
1)销键的高度宜与圈梁相同,其宽度和锚入墙内的深度均不应小于180mm;销键的主筋可采用4φ8,箍筋可采用φ6;销键宜设在窗口两侧,其水平间距可为1~2m;
2)螺栓和锚筋的直径不应小于12mm,锚入圈梁内的垫板尺寸可采用60mm×60mm×6mm,螺栓间距可为1~1.2m;
3)对A类砌体房屋且砌筑砂浆强度等级不低于M2.5的墙体,可采用M10~M16的锚栓。
5.3.17 代替内墙圈梁的钢拉杆,应符合下列要求:
1 当每开间均有横墙时,应至少隔开间采用2根φ12的钢筋;当多开间有横墙时,在横墙两侧的钢拉杆直径不应小于14mm。
2 沿内纵墙端部布置的钢拉杆长度不得小于两开间;沿横墙布置的钢拉杆两端应锚入外加柱、圈梁内或与原墙体锚固,但不得直接锚固在外廊柱头上;单面走廊的钢拉杆在走廊两侧墙体上都应锚固。
3 当钢拉杆在增设圈梁内锚固时,可采用弯钩或加焊80mm×80mm×8mm的锚板埋入圈梁内;弯钩的长度不应小于拉杆直径的35倍;锚板与墙面的间隙不应小于50mm。
4 钢拉杆在原墙体锚固时,应采用钢垫板,拉杆端部应加焊相应的螺栓;钢拉杆在原墙体锚固的方形钢锚板的尺寸可按表5. 3.17采用。

5.3.18 用于增强A类砌体房屋纵、横墙连接的圈梁、钢拉杆,尚应符合下列要求:
1 圈梁应现浇;7、8度且砌筑砂浆强度等级为M0.4时,圈梁截面高度不应小于200mm,宽度不应小于180mm。
2 当层高约3m、承重横墙间距不大于3. 6m,且每开间外墙面洞口不小于1.2m×1.5m时,增设圈梁的纵向钢筋可按表5.3.18-1采用,钢拉杆的直径可按表5.3.18-2采用;单根拉杆直径过大时,可采用双拉杆,但其总有效截面面积应大于单根拉杆有效截面面积的1.25倍。
3 房屋为纵墙或纵横墙承重时,无横墙处可不设置钢拉杆,但增设的圈梁应与楼、屋盖可靠连接。


5.3.19 圈梁和钢拉杆的施工应符合下列要求:
1 增设圈梁处的墙面有酥碱、油污或饰面层时,应清除干净;圈梁与墙体连接的孔洞应用水冲洗干净;混凝土浇筑前,应浇水润湿墙面和木模板;锚筋和锚栓应可靠锚固。
2 圈梁的混凝土宜连续浇筑,不应在距钢拉杆(或横墙)1m以内处留施工缝,圈梁顶面应做泛水,其底面应做滴水槽。
3 钢拉杆应张紧,不得弯曲和下垂;外露铁件应涂刷防锈漆。
条文说明
5.3.16~5.3.19 圈梁、钢拉杆应与构造柱配合形成封闭系统。其中第5.3.13条为强制性要求。 外加圈梁的截面、配筋和钢拉杆的直径,系按外墙墙体外甩计算得到的。 圈梁与墙体的连接,对砂浆强度等级低于M2.5的墙体,宜选用钢筋混凝土销键;对砂浆强度等级为M2.5及以上的墙体,可采用其他连接措施。
6 多层及高层钢筋混凝土房屋
6.1 一般规定
6 多层及高层钢筋混凝土房屋
6.1 一般规定
6.1.1 本章适用于现浇及装配整体式钢筋混凝土框架(包括填充墙框架)、框架-抗震墙结构以及抗震墙结构的抗震加固,其适用的最大高度和层数应符合现行国家标准《建筑抗震鉴定标准》GB 50023的有关规定。
钢筋混凝土结构房屋的抗震等级,B类房屋应符合现行国家标准《建筑抗震鉴定标准》GB 50023的有关规定,C类房屋应,符合现行国家标准《建筑抗震设计规范》GB 50011的有关规定。
条文说明
6.1.1 本章与《建筑抗震鉴定标准》GB 50023-2009第6章有密切联系,可直接引用的计算公式和系数不再重复。其适用的最大高度和层数,以及所属的抗震等级,需依据其后续使用年限的不同,分别由现行国家标准《建筑抗震鉴定标准》GB 50023-2009第6章和《建筑抗震设计规范》GB 50011(2008年版)第6章予以规定。
6.1.2 钢筋混凝土房屋的抗震加固应符合下列要求:
1 抗震加固时应根据房屋的实际情况选择加固方案,分别采用主要提高结构构件抗震承载力、主要增强结构变形能力或改变框架结构体系的方案。
2 加固后的框架应避免形成短柱、短梁或强梁弱柱。
3 采用综合抗震能力指数验算时,加固后楼层屈服强度系数、体系影响系数和局部影响系数应根据房屋加固后的状态计算和取值。 ( 自2022年4月1日起废止该条,点击查看:新规 《混凝土结构通用规范》 GB 55008-2021)
条文说明
6.1.2 本条将2002版强制性条文的内容合并而成。 钢筋混凝土房屋的加固,体系选择和综合抗震能力验算是基本要求,注意以下几点:
1 要从提高房屋的整体抗震能力出发,防止因加固不当而形成楼层刚度、承载力分布不均匀或形成短柱、短梁、强梁弱柱等新的薄弱环节。
2 在加固的总体决策上,应从房屋的实际情况出发,侧重于提高承载力,或提高变形能力,或二者兼有;必要时,也可采用增设墙体、改变结构体系的集中加固,而不必每根梁柱普遍加固。
3 加固结构体系的确定,应符合抗震鉴定结论所提出的方案。当改变原框架结构体系时,应注意计算模型是否符合实际,整体影响系数和局部影响系数的取值方法应明确。
4 与砌体结构类似,加固的抗震验算,也可采用与抗震鉴定同样的简化方法。此时,混凝土结构综合抗震能力应按加固后的结构状况,确定其地震作用、楼层屈服强度系数、体系影响系数和局部影响系数的取值。
6.1.3 钢筋混凝土房屋加固后,当采用楼层综合抗震能力指数进行抗震验算时,应采用现行国家标准《建筑抗震鉴定标准》GB 50023规定的计算公式,对框架结构可选择平面结构计算;构件加固后的抗震承载力应根据其加固方法按本章的规定计算。
条文说明
6.1.3 钢筋混凝土房屋加固后的抗震验算方法,当采用综合抗震能力指数方法时,即采用《建筑抗震鉴定标准》GB 50023-2009第6.2节第二级鉴定规定的方法,取典型的平面结构计算。但其中,结构的地震作用要根据加固后的实际情况按本规程第3.0.4条的规定计算;构件的抗震承载力除了按《建筑抗震鉴定标准》GB 50023-2009附录C计算外,需按本章规定考虑新增构件应变滞后和新旧构件协同工作程度的影响;体系影响系数和局部构造影响系数也按本章的有关规定确定。
6.1.4 钢筋混凝土房屋加固后,当按本规程第3. 0. 4条的规定采用现行国家标准《建筑抗震设计规范》GB 50011规定的方法进行抗震承载力验算时,可按现行国家标准《建筑抗震鉴定标准》GB 50023的规定计入构造的影响;构件加固后的抗震承载力应根据其加固方法按本章的规定计算。
条文说明
6.1.4 钢筋混凝土房屋加固后的抗震验算方法,当采用国家标准《建筑抗震设计规范》GB 50011的方法时,地震作用的分项系数按规范规定取值,A、B类混凝土结构的地震内力调整系数、构件承载力需按现行国家标准《建筑抗震鉴定标准》GB 50023-2009第6章及相关附录的规定计算并计入构造的影响。加固后构件的抗震承载力,除了承载力抗震调整系数应采用本规程第3.0.4条的抗震加固的承载力调整系数替换外,同样需按本章规定考虑新增构件应变滞后和新旧构件协同工作程度的影响。
6.2 加固方法
6.2 加固方法
6.2.1 钢筋混凝土房屋的结构体系和抗震承载力不满足要求时,可选择下列加固方法:
1 单向框架应加固,或改为双向框架,或采取加强楼、屋盖整体性且同时增设抗震墙、抗震支撑等抗侧力构件的措施。
2 单跨框架不符合鉴定要求时,应在不大于框架-抗震墙结构的抗震墙最大间距且不大于24m的间距内增设抗震墙、翼墙、抗震支撑等抗侧力构件或将对应轴线的单跨框架改为多跨框架。
3 框架梁柱配筋不符合鉴定要求时,可采用钢构套、现浇钢筋混凝土套或粘贴钢板、碳纤维布、钢绞线网-聚合物砂浆面层等加固。
4 框架柱轴压比不符合鉴定要求时,可采用现浇钢筋混凝土套等加固。
5 房屋刚度较弱、明显不均匀或有明显的扭转效应时,可增设钢筋混凝土抗震墙或翼墙加固,也可设置支撑加固。
6 当框架梁柱实际受弯承载力的关系不符合鉴定要求时,可采用钢构套、现浇钢筋混凝土套或粘贴钢板等加固框架柱,也可通过罕遇地震下的弹塑性变形验算确定对策。
7 钢筋混凝土抗震墙配筋不符合鉴定要求时,可加厚原有墙体或增设端柱、墙体等。
8 当楼梯构件不符合鉴定要求时,可粘贴钢板、碳纤维布、钢绞线网-聚合物砂浆面层等加固。
条文说明
6.2.1 本条列举了结构体系和抗震承载力不满足要求时,可供选择的有效加固方法。在加固之前,应尽可能卸除加固构件相关部位的全部活荷载。 当原有的A类混凝土框架结构体系属于单向框架时,需通过节点加固成为双向框架;考虑到节点加固的难度较大,也可按《建筑抗震设计规范》GB 50011对框架-抗震墙结构的墙体布置要求,增设一定数量的钢筋混凝土墙体并加固相关节点而改变结构体系,从而避免对所有的节点予以加固。对于B、C类混凝土框架结构,当时施行的《建筑抗震设计规范》GB 50011已明确规定应设计为双向框架,一般不出现这类框架。 单跨框架对抗震不利是十分明确的,对于抗震鉴定结论明确要求加强的情况,可按本条规定选择增设墙体、翼墙、支撑或框架柱的方法。需注意,增设墙、支撑、柱的最大间距,应考虑多道防线的设计原则,符合设计规范对框架-抗震墙结构的墙体布置最大间距的规定,且不得大于24m。见表2。

每个方法的具体设计要求列于本规程6.3节中。其中: 钢构套加固,是在原有的钢筋混凝土梁柱外包角钢、扁钢等制成的构架,约束原有构件的加固方法;现浇混凝土套加固,是在原有的钢筋混凝土梁柱外包一定厚度的钢筋混凝土,扩大原构件截面的加固方法。这两种加固方法,是提高梁柱承载力、改善结构延性的切实可行的方法;当仅加固框架柱时,还可提高“强柱弱梁”的程度。 粘贴钢板的方法是将钢板与混凝土面粘结使其协同工作来提高构件的承载力,粘结质量的好坏直接影响到加固效果,故需由专业队伍施工:确保加固效果:粘贴碳纤维是本次修订增加的、近来已经使用成熟的加固方法,但对胶粘剂的质量和粘贴工艺要求较严,同粘钢一样,粘结质量的好坏直接影响到加固效果,故需由专业队伍施工,确保加固效果,另外还要进行防火处理。 钢绞线网-聚合物砂浆面层是近年来发展的一种新型环保、耐久性较好的加固方法,对提高构件的承载力和刚度都有贡献,但需要满足本规程规定的材料性能和施工构造要求。 增设抗震墙或翼墙,是提高框架结构抗震能力及减少扭转效应的有效方法。 消能支撑加固是通过增设消能支撑的耗能吸收部分地震力,从而减小整个结构的地震作用。 增设抗震墙会较大地增加结构自重,要考虑基础承载的可能性。 增设翼墙适合于大跨度时采用,以避免梁的跨度减少后导致梁剪切破坏。 本次修订,增加了提高“强柱弱梁”目标的加固方法,以及楼梯间梯板的加固方法。
6.2.2 钢筋混凝土构件有局部损伤时,可采用细石混凝土修复;出现裂缝时,可灌注水泥基灌浆料等补强。
条文说明
6.2.2 钢筋混凝土构件的局部损伤,可能形成结构的薄弱环节。 按本条列举的方法进行构件局部修复加固,是恢复构件承载力的有效措施。
6.2.3 填充墙体与框架柱连接不符合鉴定要求时,可增设拉筋连接;填充墙体与框架梁连接不符合鉴定要求时,可在墙顶增设钢夹套等与梁拉结;楼梯间的填充墙不符合鉴定要求,可采用钢筋网砂浆面层加固。
条文说明
6.2.3 本条列举了墙体与结构构件连接不良时可供选择的有效的加固方法。对于砖填充墙与框架柱的连接,拉筋的方案比较有效;对于填充墙体与框架梁的连接,相比拉筋方式,采取在墙顶增设钢夹套与梁拉结的方案更为有效。 鉴于楼梯间和人流通道填充墙的震害,要求采用钢丝网抹面加强保护。
6.2.4 女儿墙等易倒塌部位不符合鉴定要求时,可按本规程第5.2. 3条的有关规定选择加固方法。
条文说明
6.2.4 对女儿墙等易倒塌部位不符合鉴定要求的加固方法,可按本规程第5.2.3条的有关规定选择加固方法。
6.3 加固设计及施工
6.3 加固设计及施工
Ⅰ 增设抗震墙或翼墙
6.3.1 增设钢筋混凝土抗震墙或翼墙加固房屋时,应符合下列要求:
1 混凝土强度等级不应低于C20,且不应低于原框架柱的实际混凝土强度等级。
2 墙厚不应小于140mm,竖向和横向分布钢筋的最小配筋率,均不应小于0.20%。对于B、C类钢筋混凝土房屋,其墙厚和配筋应符合其抗震等级的相应要求。
3 增设抗震墙后应按框架-抗震墙结构进行抗震分析,增设的混凝土和钢筋的强度均应乘以规定的折减系数。加固后抗震墙之间楼、屋盖长宽比的局部影响系数应作相应改变。 ( 自2022年4月1日起废止该条,点击查看:新规 《混凝土结构通用规范》 GB 55008-2021)
条文说明
6.3.1 本条将2002版相关强制性条文合并而成,给出了增设墙体加固的构造和计算的最基本要求。增设抗震墙可避免对全部梁柱进行普遍加固,一般按框架-抗震墙结构进行抗震加固设计。 为使增设墙体的加固有效,强调了以下几点:
①墙体最小厚度;
②墙体的最小竖向和横向分布筋;
③考虑新增构件的应力滞后,抗震承载力验算时,新增混凝土和钢筋的强度,均应乘以折减系数。
④加固后抗震墙之间楼、屋盖长宽比的局部影响系数应作相应改变。
6.3.2 增设钢筋混凝土抗震墙或翼墙加固房屋的设计,尚应符合下列要求:
1 抗震墙宜设置在框架的轴线位置;翼墙宜在柱两侧对称布置。
2 抗震墙或翼墙的墙体构造应符合下列规定:
1)墙体的竖向和横向分布钢筋宜双排布置,且两排钢筋之间的拉结筋间距不应大于600mm;墙体周边宜设置边缘构件;
2)墙与原有框架可采用锚筋或现浇钢筋混凝土套连接(见图6.3.2);锚筋可采用φ10或φ12的钢筋,与梁柱边的距离不应小于30mm,与梁柱轴线的间距不应大于300mm,钢筋的一端应采用胶粘剂锚入梁柱的钻孔内,且埋深不应小于锚筋直径的10倍,另一端宜与墙体的分布钢筋焊接;现浇钢筋混凝土套与柱的连接应符合本规程第6.3.7条的有关规定,且厚度不应小于50mm。
3 增设翼墙后,翼墙与柱形成的构件可按整体偏心受压构件计算。新增钢筋、混凝土的强度折减系数不宜大于0.85;当新增的混凝土强度等级比原框架柱高一个等级时,可直接按原强度等级计算而不再计入混凝土强度的折减系数。
条文说明
6.3.2 本条规定了增设钢筋混凝土抗震墙或翼墙加固方法的构造要求以及加固后截面的抗震验算方法。 增设抗震墙,需注意复核原有地基基础的承载力;增设翼墙需复核原有框架梁跨度减少后梁端的配筋。 增设抗震墙或翼墙加固的主要构造是确保新旧构件的连接,以便传递剪力。可有三种方法:
1 锚筋连接。需在原构件上钻孔,并用符合规定的高强胶锚固,施工质量要求高。
2 钢筋混凝土套连接。在云南耿马一带的加固中,使用效果良好。
3 锚栓连接。需要专用的施工机具,其布置可参照锚筋的规定。 当新增混凝土的强度等级比原有构件提高一个等级时,考虑混凝土、钢筋强度折减的截面抗震验算可有所简化:仍按原构件的混凝土强度等级采用,即相当于混凝土强度乘以折减系数0.85,然后,将计算所需增加的配筋乘以1.15,即为按原钢筋级别所需要新增的钢筋。

6.3.3 抗震墙和翼墙的施工应符合下列要求:
1 原有的梁柱表面应凿毛,浇筑混凝土前应清洗并保持湿润,浇筑后应加强养护。
2 锚筋应除锈,锚孔应采用钻孔成形,不得用手凿,孔内应采用压缩空气吹净并用水冲洗,注胶应饱满并使锚筋固定牢靠。
条文说明
6.3.3 本条规定了抗震墙和翼墙的施工要点,对于结构抗震加固,施工方法的正确与否直接关系到加固效果,应注意遵守。
Ⅱ 钢构套加固
6.3.4 采用钢构套加固框架时,应符合下列要求:
1 钢构套加固梁时,纵向角钢、扁钢两端应与柱有可靠连接。
2 钢构套加固柱时,应采取措施使楼板上下的角钢、扁钢可靠连接;顶层的角钢、扁钢应与屋面板可靠连接;底层的角钢、扁钢应与基础锚固。
3 加固后梁、柱截面抗震验算时,角钢、扁钢应作为纵向钢筋、钢缀板应作为箍筋进行计算,其材料强度应乘以规定的折减系数。 ( 自2022年4月1日起废止该条,点击查看:新规 《混凝土结构通用规范》 GB 55008-2021)
条文说明
6.3.4 本条将2002版相关强制性条文归并而成,规定了采用钢构套加固框架的基本要求。钢构套对原结构的刚度影响较小,可避免结构地震反应的加大。因此,当加固后构件刚度和重力荷载代表值的变化符合本规程第3.0.4条的有关规定时,可以直接采用抗震鉴定的计算分析结果而不必重新进行整个结构的抗震计算分析。 为使钢构套的加固有效,强调了以下几点:
①钢构套构件两端的锚固;
②钢构套缀板的间距;
③考虑新增构件的应力滞后和协同工作的程度,其钢材的强度应乘以折减系数。
6.3.5 采用钢构套加固框架的设计,尚应符合下列要求:
1 钢构套加固梁时,应在梁的阳角外贴角钢(见图6.3. 5a),角钢应与钢缀板焊接,钢缀板应穿过楼板形成封闭环形。
2 钢构套加固柱时,应在柱四角外贴角钢(见图6.3.5b),角钢应与外围的钢缀板焊接。
3 钢构套的构造应符合下列要求:
1)角钢不宜小于∟50× 6;钢缀板截面不宜小于40mm×4mm,其间距不应大于单肢角钢的截面最小回转半径的40倍,且不应大于400mm,构件两端应适当加密;
2)钢构套与梁柱混凝土之间应采用胶粘剂粘结。

4 加固后按楼层综合抗震能力指数验算时,梁柱箍筋构造的体系影响系数可取1.0。构件按组合截面进行抗震验算,加固梁的钢材强度宜乘以折减系数0. 8;加固柱应符合下列规定:
1)柱加固后的初始刚度可按下式计算:

条文说明
6.3.5 本条规定了采用钢构套加固框架的设计要求。当刚度和重力荷载代表值变化在规定的范围内时,可直接将抗震鉴定结果中计算配筋的差距,按本条规定的梁、柱钢材强度折减系数换算为所需的型钢截面面积。
6.3.6 钢构套的施工应符合下列要求:
1 加固前应卸除或大部分卸除作用在梁上的活荷载。
2 原有的梁柱表面应清洗干净,缺陷应修补,角部应磨出小圆角。
3 楼板凿洞时,应避免损伤原有钢筋。
4 构架的角钢应采用夹具在两个方向夹紧,缀板应分段焊接。注胶应在构架焊接完成后进行,胶缝厚度宜控制在3~5mm。
5 钢材表面应涂刷防锈漆,或在构架外围抹25mm厚的1:3水泥砂浆保护层,也可采用其他具有防腐蚀和防火性能的饰面材料加以保护。
条文说明
6.3.6 本条规定了钢构套的施工要点,需采取措施加强钢材与原有混凝土构件的连接,并注意防火和防腐,这些要求直接关系到加固效果,应注意遵守。
Ⅲ 钢筋混凝土套加固
6.3.7 采用钢筋混凝土套加固梁柱时,应符合下列要求:
1 混凝土的强度等级不应低于C20,且不应低于原构件实际的混凝土强度等级。
2 柱套的纵向钢筋遇到楼板时,应凿洞穿过并上下连接,其根部应伸入基础并满足锚固要求,其顶部应在屋面板处封顶锚固;梁套的纵向钢筋应与柱可靠连接。
3 加固后梁、柱按整体截面进行抗震验算,新增的混凝土和钢筋的材料强度应乘以规定的折减系数。 (自2022年4月1日起废止该条, 点击查看:新规《既有建筑鉴定与加固通用规范》GB 55021-2021 )
条文说明
6.3.7 本条将2002版相关强制性条文归并而成,规定了采用钢筋混凝土套加固梁柱的基本要求。钢筋混凝土套加固后构件刚度有一定增加,整个结构的地震作用有所增大,但试验研究表明,钢筋混凝土套加固后可作为整体构件计算,其承载力和延性的提高可比刚度的增加要大,从而达到加固的目的。 为使混凝土套的加固有效,强调了以下几点:
①混凝土套的纵向钢筋要与其两端的原结构构件,如楼盖、屋盖、基础和柱等可靠连接;
②应考虑新增部分的应力滞后,作为整体构件验算承载力,新增的混凝土和钢筋的强度,均应乘以折减系数。
6.3.8 采用钢筋混凝土套加固梁柱的设计,尚应符合下列要求:
1 采用钢筋混凝土套加固梁时,应将新增纵向钢筋设在梁底面和梁上部(见图6.3.8a),并应在纵向钢筋外围设置箍筋;采用钢筋混凝土套加固柱时,应在柱周围设置纵向钢筋(见图6.3.8b),并应在纵向钢筋外围设置封闭箍筋,纵筋应采用锚筋与原框架柱有可靠拉结。

2 钢筋混凝土套的材料和构造尚应符合下列要求:
1)宜采用细石混凝土,其强度宜高于原构件一个等级;
2)纵向钢筋宜采用HRB400、HRB335级热轧钢筋,箍筋可采用HPB235级热轧钢筋;
3)A类钢筋混凝土结构,箍筋直径不宜小于8mm,间距不宜大于200mm,B、C类钢筋混凝土结构,应符合其抗震等级的相关要求;靠近梁柱节点处应加密;柱套的箍筋应封闭,梁套的箍筋应有一半穿过楼板后弯折封闭。
3 加固后的梁柱可作为整体构件进行抗震验算,其现有承载力,A、B类钢筋混凝土结构可按现行国家标准《建筑抗震鉴定标准》GB 50023规定的方法确定,C类钢筋混凝土结构可按现行国家标准《混凝土结构设计规范》GB 50010规定的方法确定。其中,新增钢筋、混凝土的强度折减系数不宜大于0. 85;当新增的混凝土强度等级比原框架柱高一个等级时,可直接按原强度等级计算而不再计入混凝土强度的折减系数。对A、B类钢筋混凝土结构,按楼层综合抗震能力指数验算时,梁柱箍筋、轴压比等的体系影响系数可取1.0。
条文说明
6.3.8 本条规定了采用钢筋混凝土套加固梁柱的设计要求,并明确区分A、B、C类建筑的不同。对新增的箍筋,应采取措施加强与原有构件的拉接,如采用锚筋、锚栓或短筋焊接等方法。 当新增混凝土的强度等级比原有构件提高一个等级时,截面抗震验算可有所简化:仍按原构件的混凝土强度等级采用,即相当于混凝土强度乘以折减系数0.85,然后,将计算所需增加的配筋乘以1.15,即为原钢筋等级所需新增的钢筋截面面积。
6.3.9 钢筋混凝土套的施工应符合下列要求:
1 加固前应卸除或大部分卸除作用在梁上的活荷载。
2 原有的梁柱表面应凿毛并清理浮渣,缺陷应修补。
3 楼板凿洞时,应避免损伤原有钢筋。
4 浇筑混凝土前应用水清洗并保持湿润,浇筑后应加强养护。
条文说明
6.3.9 本条规定了钢筋混凝土套的施工要点,这些要求直接关系到加固效果,需注意遵守。
Ⅳ 粘贴钢板加固
6.3.10 采用粘贴钢板加固梁柱时,应符合下列要求:
1 原构件的混凝土实际强度等级不应低于C15;混凝土表面的受拉粘结强度不应低于1.5MPa。粘贴钢板应采用粘结强度高且耐久的胶粘剂;钢板可采用Q235或Q345钢,厚度宜为2~5mm。
2 钢板的受力方式应设计成仅承受轴向应力作用。钢板在需要加固的范围以外的锚固长度,受拉时不应小于钢板厚度的200倍,且不应小于600mm;受压时不应小于钢板厚度的150倍,且不应小于500mm。
3 粘贴钢板与原构件尚宜采用专用金属胀栓连接。
4 粘贴钢板加固钢筋混凝土结构的胶粘剂的材料性能、加固的构造和承载力验算,可按现行国家标准《混凝土结构加固设计规范》GB 50367的有关规定执行,其中,对构件承载力的新增部分,其加固承载力抗震调整系数宜采用1.0,且对A、B类钢筋混凝土结构,原构件的材料强度设计值和抗震承载力,应按现行国家标准《建筑抗震鉴定标准》GB 50023的有关规定采用。
5 被加固构件长期使用的环境和防火要求,应符合国家现行有关标准的规定。
6 粘贴钢板加固时,应卸除或大部分卸除作用在梁上的活荷载,其施工应符合专门的规定。
条文说明
6.3.10 本条参照《混凝土结构加固设计规范》GB 50367的规定,文字有所调整。本条规定了采用粘贴钢板加固方法的要求,加固前应卸载,并注意防腐和防火要求。 考虑到《混凝土结构加固设计规范》GB 50367的承载力计算公式是针对静载的,胶粘剂在拉压反复作用下的性能与静载下有所区别,从偏于安全的角度,本条规定,采用《混凝土结构加固设计规范》GB 50367的计算公式时,原有混凝土构件的抗震承载力与抗震鉴定时的取值相同,需取γRa(其值依据后续使用年限的不同而变,均小于1.0),而钢板部分的承载力的“抗震加固承载力调整系数”取1.0。例如,斜截面受剪承载力验算公式为:
V≤V0/γRa+Vsp 式中,V0/γRa为原有钢筋混凝土构件的抗震承载力,对于A、B类,可按《建筑抗震鉴定标准》GB 50023-2009第6章的有关附录计算,即材料强度、计算公式与现行们昆凝土结构设计规范》GB 50010不同。 粘贴钢板加固时,宜采用专用胀栓加强钢板与结构构件的连接。
V 粘贴纤维布加固
6.3.11 采用粘贴纤维布加固梁柱时,应符合下列要求:
1 原结构构件实际的混凝土强度等级不应低于C15,且混凝土表面的正拉粘结强度不应低于1.5MPa。
2 碳纤维的受力方式应设计成仅承受拉应力作用。当提高梁的受弯承载力时,碳纤维布应设在梁顶面或底面受拉区;当提高梁的受剪承载力时,碳纤维布应采用U形箍加纵向压条或封闭箍的方式;当提高柱受剪承载力时,碳纤维布宜沿环向螺旋粘贴并封闭,当矩形截面采用封闭环箍时,至少缠绕3圈且搭接长度应超过200mm。粘贴纤维布在需要加固的范围以外的锚固长度,受拉时不应小于600mm。
3 纤维布和胶粘剂的材料性能、加固的构造和承载力验算,可按现行国家标准《混凝土结构加固设计规范》GB 50367的有关规定执行,其中,对构件承载力的新增部分,其加固承载力抗震调整系数宜采用1.0,且对A、B类钢筋混凝土结构,原构件的材料强度设计值和抗震承载力,应按现行国家标准《建筑抗震鉴定标准》GB 50023的有关规定采用。
4 被加固构件长期使用的环境和防火要求,应符合国家现行有关标准的规定。
5 粘贴纤维布加固时,应卸除或大部分卸除作用在梁上的活荷载,其施工应符合专门的规定。
条文说明
6.3.11 本条为新增,参照《混凝土结构加固设计规范》GB 50367的规定,对抗震加固不同之处加以规定。采用粘贴纤维布加固梁柱时,对原结构构件的混凝土强度有要求,并规定了采用碳纤维加固的设计和施工要求,加固前应卸载,并强调对碳纤维的防火要求。 考虑到《混凝土结构加固设计规范》GB 50367的承载力计算公式是针对静载的,胶粘剂在拉压反复作用下的性能与静载下有所区别,从偏于安全的角度,本条规定,采用《混凝土结构加固设计规范》GB 50367的计算公式时,原有混凝土构件的抗震承载力与抗震鉴定时的取值相同,需取γRa(其值依据后续使用年限的不同而变,均小于1.0),而碳纤维部分的承载力的“抗震加固承载力调整系数”取1.0。
Ⅵ 钢绞线网-聚合物砂浆面层加固
6.3.12 钢绞线网-聚合物砂浆面层加固梁柱的钢绞线网片、聚合物砂浆的材料性能,应符合本规程第5.3.4条的规定。界面剂的性能应符合现行行业标准《混凝土界面处理剂》JC/T 907关于Ⅰ型的规定。
条文说明
6.3.12 本条为新增,参照《混凝土结构加固设计规范》GB 50367的规定,对抗震加固不同之处加以规定。本条规定了采用钢绞线网-聚合物砂浆面层加固梁柱的钢绞线网片、聚合物砂浆的材料性能。
6.3.13 钢绞线网-聚合物砂浆面层加固梁柱的设计,应符合下列要求:
1 原有构件混凝土的实际强度等级不应低于C15,且混凝土表面的正拉粘结强度不应低于1.5MPa。
2 钢纹线网的受力方式应设计成仅承受拉应力作用。当提高梁的受弯承载力时,钢绞线网应设在梁顶面或底面受拉区(见图6.3.13-1);当提高梁的受剪承载力时,钢绞线网应采用三面围套或四面围套的方式(见图6.3.13-2);当提高柱受剪承载力时,钢绞线网应采用四面围套的方式(见图6. 3.13-3)。


3 钢绞线网-聚合物砂浆面层加固梁柱的构造,应符合下列要求:
1)面层的厚度应大于25mm,钢绞线保护层厚度不应小于15mm;
2)钢绞线网应设计成仅承受单向拉力作用,其受力钢绞线的间距不应小于20mm,也不应大于40mm;分布钢绞线不应考虑其受力作用,间距在200~500mm;
3)钢绞线网应采用专用金属胀栓固定在构件上,端部胀栓应错开布置,中部胀栓应交错布置,且间距不宜大于300mm。
4 钢绞线网-聚合物砂浆面层加固梁的承载力验算,可按照现行国家标准《混凝土结构加固设计规范》GB 50367的有关规定进行,其中,对构件承载力的新增部分,其加固承载力抗震调整系数宜采用1.0,且对A、B类钢筋混凝土结构,原构件的材料强度设计值和抗震承载力,应按现行国家标准《建筑抗震鉴定标准》GB 50023的有关规定采用。
5 钢绞线网-聚合物砂浆面层加固柱简化的承载力验算,环向钢绞线可按箍筋计算,但钢绞线的强度应依据柱剪跨比的大小乘以折减系数,剪跨比不小于3时取0.50,剪跨比不大于1.5时取0.32。对A、B类钢筋混凝土结构,原构件的材料强度设计值和抗震承载力,应按现行国家标准《建筑抗震鉴定标准》GB 50023的有关规定采用。
6 被加固构件长期使用的环境要求,应符合国家现行有关标准的规定。
条文说明
6.3.13 本条规定了钢绞线网-聚合物砂浆面层加固梁柱的设计要求,该方法只能承受拉应力。 考虑到《混凝土结构加固设计规范》GB 50367的承载力计算公式是针对静载的,胶粘剂在拉压反复作用下的性能与静载下有所区别,从偏于安全的角度,本条规定,采用《混凝土结构加固设计规范》GB 50367的计算公式时,原有混凝土构件的抗震承载力与抗震鉴定时的取值相同,需取γRa(其值依据后续使用年限的不同而变,均小于1.0),而钢绞线网-聚合物砂浆面层部分的承载力的“抗震加固承载力调整系数”取1.0。
6.3.14 钢绞线网-聚合物砂浆面层的施工应符合下列要求:
1 加固前应卸除或大部分卸除作用在梁上的活荷载。
2 加固的施工顺序和主要注意事项可按本规程第5.3.6条的规定执行。
3 加固时应清除原有抹灰等装修面层,处理至裸露原混凝土结构的坚实面,对缺陷处应涂刷界面剂后用聚合物砂浆修补,基层处理的边缘应比设计抹灰尺寸外扩50mm。
4 界面剂喷涂施工应与聚合物砂浆抹面施工段配合进行,界面剂应随用随搅拌,分布应均匀,不得遗漏被钢绞线网遮挡的基层。
条文说明
6.3.14 本条规定了钢绞线网-聚合物砂浆面层加固的施工要求,施工前应首先卸载。
Ⅶ 增设支撑加固
6.3.15 采用钢支撑加固框架结构时,应符合下列要求:
1 支撑的布置应有利于减少结构沿平面或竖向的不规则性;支撑的间距不应超过框架-抗震墙结构中墙体最大间距的规定。
2 支撑的形式可选择交叉形或人字形,支撑的水平夹角不宜大于55°。
3 支撑杆件的长细比和板件的宽厚比,应依据设防烈度的不同,按现行国家标准《建筑抗震设计规范》GB 50011对钢结构设计的有关规定采用。
4 支撑可采用钢箍套与原有钢筋混凝土构件可靠连接,并应采取措施将支撑的地震内力可靠地传递到基础。
5 新增钢支撑可采用两端铰接的计算简图,且只承担地震作用。
6 钢支撑应采取防腐、防火措施。
条文说明
6.3.15 本条列举了新增钢支撑的设计要点,这类支撑宜按不承担静载仅承担地震作用的要求进行设计,同时加固与支撑相连的框架节点,并将支撑承担的地震作用可靠地传递到基础。
6.3.16 采用消能支撑加固框架结构时,应符合下列要求:
1 消能支撑可根据需要沿结构的两个主轴方向分别设置。消能支撑宜设置在变形较大的位置,其数量和分布应通过综合分析合理确定,并有利于提高整个结构的消能减震能力,形成均匀合理的受力体系。
2 采用消能支撑加固框架结构时,结构抗震验算应符合现行国家标准《建筑抗震设计规范》GB 50011的相关要求;其中,对A、B类钢筋混凝土结构,原构件的材料强度设计值和抗震承载力,应按现行国家标准《建筑抗震鉴定标准》GB 50023的有关规定采用。
3 消能支撑与主体结构之间的连接部件,在消能支撑最大出力作用下,应在弹性范围内工作,避免整体或局部失稳。
4 消能支撑与主体结构的连接,应符合普通支撑构件与主体结构的连接构造和锚固要求。
5 消能支撑在安装前应按规定进行性能检测,检测的数量应符合相关标准的要求。
条文说明
6.3.16 本条为新增,主要参照《建筑抗震设计规范》GB 50011第12章的规定。规定了采用消能支撑加固框架结构的要求。
Ⅷ 混凝土缺陷修补
6.3.17 混凝土构件局部损伤和裂缝等缺陷的修补,应符合下列要求:
1 修补所采用的细石混凝土,其强度等级宜比原构件的混凝土强度等级高一级,且不应低于C20;修补前,损伤处松散的混凝土和杂物应剔除,钢筋应除锈,并采取措施使新、旧混凝土可靠结合。
2 压力灌浆的浆液或浆料的可灌性和固化性应满足设计、施工要求;灌浆前应对裂缝进行处理,并埋设灌浆嘴;灌浆时,可根据裂缝的范围和大小选用单孔灌浆或分区群孔灌浆,并应采取措施使浆液饱满密实。
条文说明
6.3.17 本条规定了对混凝土构件局部损伤和裂缝等缺陷进行修补时的材料要求、施工要求。
Ⅸ 填充墙加固
6.3.18 砌体墙与框架连接的加固应符合下列要求:
1 墙与柱的连接可增设拉筋加强(见图6.3.18a);拉筋直径可采用6mm,其长度不应小于600mm,沿柱高的间距不宜大于600mm,8、9度时或墙高大于4m时,墙半高的拉筋应贯通墙体;拉筋的一端应采用胶粘剂锚入柱的斜孔内,或与锚入柱内的锚栓焊接;拉筋的另一端弯折后锚入墙体的灰缝内,并用1:3水泥砂浆将墙面抹平。
2 墙与梁的连接,可按本条第1款的方法增设拉筋加强墙与梁的连接;亦可采用墙顶增设钢夹套加强墙与梁的连接(见图6.3.18b);墙长超过层高2倍时,在中部宜增设上下拉结的措施。钢夹套的角钢不应小于∟63×6,螺栓不宜少于2根,其直径不应小于12mm,沿梁轴线方向的间距不宜大于1.0m。
3 加固后按楼层综合抗震能力指数验算时,墙体连接的局部影响系数可取1.0。
4 拉筋的锚孔和螺栓孔应采用钻孔成形,不得用手凿;钢夹套的钢材表面应涂刷防锈漆。

条文说明
6.3.18 本条规定了砌体墙与框架连接的加固的方法以及要求,适合于单独加强墙与梁柱的连接时采用。砌体墙与框架柱连接的加强,尽可能在框架全面加固时通盘考虑,设计人员可根据抗震鉴定的要求,结合具体情况处理。 墙与柱的连接可增设拉筋加强;墙与梁的连接,可设拉筋加强墙与梁的连接,亦可采用墙顶增设钢夹套加强墙与梁的连接,钢夹套应注意防锈防火。
7 内框架和底层框架砖房
7.1 一般规定
7 内框架和底层框架砖房
7.1 一般规定
7.1.1 本章适用于内框架、底层框架与砖墙混合承重的多层房屋,其适用的最大高度和层数应符合现行国家标准《建筑抗震鉴定标准》GB 50023的有关规定。
条文说明
7.1.1 本章与《建筑抗震鉴定标准》GB 50023-2009第7章有密切联系,其最大适用高度及可直接引用的计算公式和系数不再重复。对于类似的砌块房屋,其加固也可参照。
7.1.2 内框架和底层框架砖房的抗震加固应符合下列要求:
1 底层框架房屋加固后,框架层与相邻上部砌体层的刚度比,应符合现行国家标准《建筑抗震设计规范》GB 50011的相应规定。
2 加固部位的框架应防止形成短柱或强梁弱柱。
3 采用综合抗震能力指数验算时,楼层屈服强度系数、加固增强系数、加固后的体系影响系数和局部影响系数应根据房屋加固后的状态计算和取值。 ( 自2022年4月1日起废止该条,点击查看:新规 《混凝土结构通用规范》 GB 55008-2021)
条文说明
7.1.2 内框架和底层框架房屋均是混合承重结构,其加固设计的基本要求与多层砌体房屋、多层钢筋混凝土房屋相同。针对内框架和底层框架砖房的结构特点,需要注意:
1 加固的总体决策,除采取提高承载力或增强整体性的加固方案外,尚应采取措施调整二层与底层的侧向刚度比,使之符合现行国家标准《建筑抗震设计规范》GB 50011的相应规定,避免形成柔弱底层或薄弱层转移至二层,A类内框架和底层框架房屋的加固设计,通常采用综合抗震能力指数方法,应确保不出现新的抗震薄弱层和薄弱部位。
2 加固措施还应避免造成短柱或强梁弱柱等不利于抗震受力的状态,是本规程第3章抗震概念加固设计的具体体现。
3 抗震验算所采用的计算模型和参数,应按加固后的实际情况取值。例如,墙体采用钢筋混凝土板墙加固,承载力增强系数、楼盖支承长度的体系影响系数等均可按本规程第5章对砌体墙加固的相关规定取值;增设横墙后,原横墙间距的影响系数相应改变;壁柱加固后,外纵墙局部尺寸、大梁与墙体连接的有关影响系数也可能相应变化。
7.1.3 当加固后按本规程第3.0.4条的规定采用现行国家标准《建筑抗震设计规范》GB 50011规定的方法进行抗震承载力验算时,应计入构造的影响;加固后构件的抗震承载力应按本章确定。
条文说明
7.1.3 内框架和底层框架砖房加固后的抗震验算方法,当采用现行国家标准《建筑抗震设计规范》GB 50011规定的方法时,其中结构的地震作用、构件的抗震承载力和构造影响系数,要根据加固后的实际情况,按本章的有关规定确定。
7.1.4 当现有的A、B类底层框架砖房的层数和总高度超过现行国家标准《建筑抗震鉴定标准》GB 50023规定的层数和高度限值,但未超过现行国家标准《建筑抗震设计规范》GB 50011规定的层数和高度限值时,应提高其抗震承载力并采取增设外加构造柱等措施,达到现行国家标准《建筑抗震设计规范》GB 50011对其承载力和构造柱的相关要求。当其层数超过现行国家标准《建筑抗震设计规范》GB 50011规定的层数时,应改变结构体系或减少层数。
条文说明
7.1.4 本条规定了现有的底层框架砖房的层数和总高度超过规定限值的处理方法。针对现行国家标准《建筑抗震设计规范》GB 50011规定的层数和高度限值高于A、B类底层框架砖房抗震鉴定的要求,提出了相应的加固对策。
7.1.5 底层框架、底层内框架砖房上部各层的加固,应符合本规程第5章的有关规定,其竖向构件的加固应延续到底层;底层加固时,应计入上部各层加固后对底层的影响。框架梁柱的加固,应符合本规程第6章的有关规定。
条文说明
7.1.5 对底层框架和底层内框架砖房,其上部各层按多层砖房的有关规定进行加固的竖向构件需延续到底层。即:混凝土板墙、构造柱等需通过底层落到基础上,面层需锚固在底层的框架梁上;底层的框架和内框架,也需考虑上部各层加固后重量、刚度变化造成的影响。
7.2 加固方法
7.2 加固方法
7.2.1 底层框架、底层内框架砖房的底层和多层内框架砖房的结构体系以及抗震承载力不满足要求时,可选择下列加固方法:
1 横墙间距符合鉴定要求而抗震承载力不满足要求时,宜对原有墙体采用钢筋网砂浆面层、钢绞线网-聚合物砂浆面层或板墙加固,也可增设抗震墙加固。
2 横墙间距超过规定值时,宜在横墙间距内增设抗震墙加固;或对原有墙体采用板墙加固且同时增强楼盖的整体性和加固钢筋混凝土框架、砖柱混合框架;也可在砖房外增设抗侧力结构减小横墙间距。
3 钢筋混凝土柱配筋不满足要求时,可增设钢构套、现浇钢筋混凝土套、粘贴纤维布、钢绞线网-聚合物砂浆面层等方法加固;也可增设抗震墙减少柱承担的地震作用。
4 当底层框架砖房的框架柱轴压比不满足要求时,可增设钢筋混凝土套加固或按现行国家标准《建筑抗震设计规范》GB 50011的相关规定增设约束箍筋提高体积配箍率。
5 外墙的砖柱(墙垛)承载力不满足要求时,可采用钢筋混凝土外壁柱或内、外壁柱加固;也可增设抗震墙以减少砖柱(墙垛)承担的地震作用。
6 底层框架砖房的底层为单跨框架时,应增设框架柱形成双跨;当底层刚度较弱或有明显扭转效应时,可在底层增设钢筋混凝土抗震墙或翼墙加固;当过渡层刚度、承载力不满足鉴定要求时,可对过渡层的原有墙体采用钢筋网砂浆面层、钢绞线网-聚合物砂浆面层加固或采用钢筋混凝土墙替换底部为钢筋混凝土墙的部分砌体墙等方法加固。
条文说明
7.2.1 内框架和底层框架砖房经常遇到的抗震问题是:抗震横墙间距过大,或横墙承载力不足,或外墙(垛)的承载力不足,或底层与过渡层刚度比不满足要求,或底层为单跨框架,抗震赘余度不足。针对这些问题,确定抗震加固方案时需遵守下列原则:
1 抗震横墙间距符合要求而承载力不足时,采用钢筋网面层加固可提高承载力并改善结构延性,而且施工比较方便;当原墙体抗震承载力与设防要求相差太大时,可采用钢筋混凝土板墙加固。
2 抗震横墙间距超过限值,或房屋横向抗震承载力不足,应优先增设抗震墙加固,因为这种加固方法的效果最好。一般情况,增设的抗震墙可采用砖墙;当楼盖整体性较好且横向抗震承载力与设防要求相差较大时,也可增设钢筋混凝土抗震墙加固。
3 钢筋混凝土柱配筋不满足要求时,可增设钢构套架、现浇钢筋混凝土套等方法加固柱的抗弯、抗剪和抗压能力,也可采用粘贴纤维布、钢绞线网-聚合物砂浆面层等方法提高柱的抗剪能力;也可增设抗震墙减少柱承担的地震作用。
4 横向抗震验算时,承载力不足的外纵墙可用钢筋混凝土壁柱加固。壁柱可设在纵墙的内侧或外侧,也可内外侧同时增设;仅增设外壁柱时,要采取措施加强壁柱与楼盖梁的连接。也可增设抗震墙减少砖柱(墙垛)承担的地震作用。
5 底层框架砖房的底层为单跨框架时,应增设框架柱形成双跨或结合使用功能增设钢筋混凝土抗震墙以增加底层刚度,同时减少框架柱承担的地震作用;当底层刚度较弱或有明显扭转效应时,可在底层增设钢筋混凝土抗震墙或翼墙加固;当过渡层刚度、承载力不满足鉴定要求时,可对过渡层的原有墙体采用钢筋网砂浆面层、钢绞线网-聚合物砂浆面层加固或采用钢筋混凝土墙替换底部为钢筋混凝土墙的部分砌体墙等方法加固。
7.2.2 内框架和底层框架砖房整体性不满足要求时,应选择下列加固方法:
1 底层框架、底层内框架砖房的底层楼盖为装配式混凝土楼板时,可增设钢筋混凝土现浇层加固。
2 圈梁布置不符合鉴定要求时,应增设圈梁;外墙圈梁宜采用现浇钢筋混凝土,内墙圈梁可用钢拉杆或在进深梁端加锚杆代替;当墙体采用双面钢筋网砂浆面层或板墙进行加固且在上下两端增设配筋加强带时,可不另设圈梁。
3 当构造柱设置不符合鉴定要求时,应增设外加柱;当墙体采用双面钢筋网砂浆面层或板墙进行加固且在对应位置增设相互可靠拉结的配筋加强带时,可不另设外加柱。
4 外墙四角或内、外墙交接处的连接不符合鉴定要求时,可增设钢筋混凝土外加柱加固。
5 楼、屋盖构件的支承长度不满足要求时,可增设托梁或采取增强楼、屋盖整体性的措施。
条文说明
7.2.2 本条列举了整体性不足时可供选择的加固方法:楼面现浇层、圈梁、外加柱和托梁等。
7.2.3 内框架和底层框架砖房易倒塌部位不符合鉴定要求时,可按本规程第5.2. 3条的有关规定选择加固方法。
7.2.4 现有的A类底层内框架、单排柱内框架房屋需要继续使用时,应在原壁柱处增设钢筋混凝土柱形成梁柱固接的结构体系或改变结构体系。
条文说明
7.2.4 由于底层内框架、单排柱内框架房屋的结构形式极为不利于抗震,存在较大抗震安全隐患,因此针对现有的A类底层内框架、单排柱内框架房屋,应结合规划拆除重建。对于暂时需要继续使用的建筑,应在原壁柱处增设钢筋混凝土柱形成梁柱固接的结构体系或采取增设墙体等方式改变其结构体系。
7.3 加固设计及施工
7.3 加固设计及施工
Ⅰ 壁柱加固
7.3.1 增设钢筋混凝土壁柱加固内框架房屋的砖柱(墙垛)时,应符合下列要求:
1 壁柱应从底层设起,沿砖柱(墙垛)全高贯通;在楼屋盖处应与圈梁或楼、屋盖拉结;壁柱应设基础,埋深与外墙基础不同时,不得浅于冻结深度。
2 壁柱的截面面积不应小于36000mm 2 ,内壁柱的截面宽度应大于相连内框架梁的宽度。
3 壁柱的纵向钢筋不应少于4φ12;箍筋间距不应大于200mm,在楼、屋盖标高上下各500mm范围内,箍筋间距不应大于100mm;内外壁柱间沿柱高度每隔600mm,应拉通一道箍筋。 ( 自2022年4月1日起废止该条,点击查看:新规 《混凝土结构通用规范》 GB 55008-2021)
7.3.2 增设钢筋混凝土壁柱加固内框架房屋砖柱(墙垛)的设计,尚应符合下列规定:
1 壁柱的混凝土强度等级不应低于C20;纵向钢筋宜采用HRB400、HRB335级热轧钢筋,箍筋可采用HPB235、HRB335级热轧钢筋。
2 壁柱的构造尚应符合下列要求:
1)壁柱的截面宽度不宜大于700mm,截面高度不宜小于70mm;内壁柱的截面,每侧比相连的梁宽出的尺寸应大于70mm;
2)内壁柱应有不少于50%纵向钢筋穿过楼板,其余的纵向钢筋可采用插筋相连,插筋上下端的锚固长度不应小于插筋直径的40倍;
3)外壁柱与砖柱(墙垛)的连接,可按本规程第5. 3.15条的有关规定采用。
3 采用壁柱加固后形成的组合砖柱(墙垛),其抗震验算应符合下列要求:
1)横墙间距符合鉴定要求时,加固后组合砖柱承担的地震剪力可取楼层地震剪力按各抗侧力构件的有效侧向刚度分配的值;有效侧向刚度的取值,对原有框架柱和加固后的组合砖柱不折减,对A类内框架,钢筋混凝土抗震墙可取实际值的40%,对砖抗震墙可取实际值的30%;对B类内框架,钢筋混凝土抗震墙可取实际值的30%,对砖抗震墙可取实际值的20%。
2)横墙间距超过规定值时,加固后的组合砖柱承担的地震剪力可按下式计算:

条文说明
7.3.1、7.3.2 这两条给出了增设混凝土壁柱的构造和计算要求。壁柱加固主要适用于纵向抗震能力不足,或者横墙间距过大需考虑楼盖平面内变形导致砌体柱(墙垛)承载力不足的加固方法。使用时注意:
1 壁柱与多层砖房的构造柱有所不同,其截面应严格控制,其构造应能使壁柱与砖柱(墙垛)形成组合构件,按组合构件进行验算;壁柱可单面或双面设置,与砖柱四周的钢筋混凝土套也有所不同。
2 可采用外壁柱、内壁柱或内外侧同时设置,当需要保持外立面原貌时,应采用内壁柱。壁柱需与砖柱(墙垛)形成组合构件,按组合构件计算刚度并进行验算。
3 抗震加固时,对多道抗震设防的要求稍低,故加固后砖柱(墙垛)承担的地震作用少于《建筑抗震设计规范》GB 50011的要求,墙体有效侧向刚度的取值比规范大些;此外,根据试验结果,提出了横墙间距超过规定值时,加固后砖柱(墙垛)受力的计算方法。
4 作为简化,砖柱(墙垛)用壁柱加固后按组合构件计算其抗震承载力,考虑增设的部分受力滞后,新增的混凝土和钢筋的强度需乘以0.85的折减系数。
其中,第7.3.2条为强制性要求。为使壁柱的加固有效,强调了以下几点:
①壁柱应从底层设起,沿砖柱(墙垛)全高贯通;
②壁柱应满足最小截面和最小纵筋、箍筋设置要求;
③壁柱应在楼、屋盖处与原结构拉结,并应有基础。
Ⅱ 楼盖现浇层加固
7.3.3 增设钢筋混凝土现浇层加固楼盖时,现浇层的厚度不应小于40mm,钢筋的直径不应小于6mm,其间距不应大于300mm;尚应采取措施加强现浇层与原有楼板、墙体的连接。 ( 自2022年4月1日起废止该条,点击查看:新规 《混凝土结构通用规范》 GB 55008-2021)
7.3.4 增设的现浇层与原有墙、板的连接,应符合下列要求:
1 现浇层的分布钢筋应有50%的钢筋穿过墙体。另外50%的钢筋,可通过插筋相连,插筋两端的锚固长度不应小于插筋直径的40倍;也可锚固于现浇层周边的加强配筋带中,加强配筋带应通过穿过墙体的钢筋相互可靠连接。
2 现浇层宜采用呈梅花形布置的L形锚筋或锚栓与原楼板相连;当原楼板为预制板时,锚筋、锚栓应通过钻孔并采用胶粘剂锚入预制板缝内,锚固深度不小于80~100mm。
3 施工时,应去掉原有装饰层,板面应凿毛、涂刷界面剂,并注意养护。
条文说明
7.3.3、7.3.4 本条给出了楼盖面层加固的构造要求。 增设钢筋混凝土现浇层加固楼盖,可使底层框架房屋满足抗震鉴定对楼盖整体性的要求。为确保现浇面层的加固有效,楼盖面层加固的细部构造,要确实加强原预制楼盖的整体性。强调了以下几点;
①现浇层的最小厚度不得过小;
②现浇层的最小分布钢筋应满足构造要求。
Ⅲ 增设面层、板墙、抗震墙、外加柱加固
7.3.5 增设钢筋网砂浆面层加固时,其材料和构造应符合本规程第5.3.1、5.3.2条的要求,其施工应符合本规程第5. 3.3条的要求。
7.3.6 增设钢绞线网-聚合物砂浆面层加固时,其钢绞线网片、聚合物砂浆的材料性能和构造应符合本规程第5.3.4、5.3.5条的要求,其施工应符合本规程第5.3.6条的要求。
7.3.7 增设钢筋混凝土板墙加固时,其材料和构造应符合本规程第5. 3.7、5. 3. 8条的要求,其施工应符合本规程第5.3.9条的要求。
7.3.8 增设抗震墙加固时,其材料和构造应符合本规程第5.3.10、5.3.12条的要求,其施工应符合本规程第5.3.11条的要求。
7.3.9 外加柱和圈梁的设计及施工,应符合本规程第5.3.13~5.3.19条的规定。
7.3.10 底层框架、底层内框架砖房的底层和多层内框架砖房加固后进行抗震验算时,各层的地震剪力,宜全部由该方向的抗震墙承担;加固后墙段抗震承载力的增强系数和有关的体系影响系数、局部影响系数,应根据不同的加固方法分别取值:
1 采用钢筋网砂浆面层加固,应按本规程第5.3.1、5.3.2条的规定取值。
2 采用钢绞线网-聚合物砂浆面层加固,应按本规程第5.3.5条的规定取值。
3 采用板墙加固,应按本规程第5.3.7、5.3.8条的规定取值。
4 增设砖抗震墙加固,应按本规程第5.3.10条的规定取值。
5 增设钢筋混凝土抗震墙加固,应按本规程第5.3.10、5.3.12条的规定取值。
条文说明
7.3.5~7.3.10 内框架和底层框架砖房采用面层、板墙和抗震墙进行加固的材料、构造、抗震验算设计及施工,直接引用了本规程第5章的有关规定。其中,参照《建筑抗震设计规范》GB 50011的规定,各方向的地震作用最好由该方向的抗震墙承担。
Ⅳ 框架柱加固
7.3.11 钢筋混凝土柱的加固设计及施工应符合本规程第6.3节的规定;加固后钢筋混凝土柱承担的地震剪力,可按本规程第7.3.2条的有关规定计算。
条文说明
7.3.11 内框架和底层框架砖房的钢筋混凝土柱采用钢构套、现浇钢筋混凝土套、纤维布进行加固的材料、构造、抗震验算及施工,直接引用了本规程第6章的有关规定。
8 单层钢筋混凝土柱厂房
8.1 一般规定
8 单层钢筋混凝土柱厂房
8.1 一般规定
8.1.1 本章适用于装配式单层钢筋混凝土柱厂房和混合排架厂房。
注:1 钢筋混凝土柱厂房包括由屋面板、三角刚架、双梁和牛腿柱组成的锯齿形厂房;
2 混合排架厂房指边柱列为砖柱、中柱列为钢筋混凝土的厂房。
条文说明
8.1.1 本章与《建筑抗震鉴定标准》GB 50023-2009第8章有密切联系,其适用范围相同。
8.1.2 厂房的加固,应着重提高其整体性和连接的可靠性;增设支撑等构件时,应避免有关节点应力的加大和地震作用在原有构件间的重分配;对一端有山墙和体型复杂的厂房,宜采取减少厂房扭转效应的措施。
条文说明
8.1.2 钢筋混凝土厂房是装配式结构,抗震加固的重点与抗震鉴定的重点相同,侧重于提高厂房的整体性和连接的可靠性,而不增加原厂房的地震作用。
8.1.3 厂房加固后,可按现行国家标准《建筑抗震设计规范》GB 50011的规定进行纵、横向的抗震分析,并可采用本章规定的方法进行构件的抗震承载力验算。
条文说明
8.1.3 厂房加固后,各种支撑杆的截面、阶形柱上柱的钢构套等,多数可不进行抗震验算;需要验算时,内力分析与抗震鉴定时相同,均采用《建筑抗震设计规范》GB 50011的方法,构件的抗震承载力验算,牛腿的钢构套可用本章的方法,其余按《建筑抗震设计规范》GB 50011的方法,但采用“抗震加固的承载力调整系数”替代设计规范的“承载力抗震调整系数”。
8.1.4 混合排架厂房砖柱部分的加固,应符合本规程第9章的有关规定。
8.2 加固方法
8.2 加固方法
8.2.1 厂房的屋盖支撑布置或柱间支撑布置不符合鉴定要求时,应增设支撑,6、7度时也可采用钢筋混凝土窗框代替天窗架竖向支撑。
条文说明
8.2.1 各种支撑布置不符合鉴定要求时,一般采取增设支撑的方法。
8.2.2 厂房构件抗震承载力不满足要求时,可选择下列加固方法:
1 天窗架立柱的抗震承载力不满足要求时,可加固立柱或增设支撑并加强连接节点。
2 屋架的混凝土构件不符合鉴定要求时,可增设钢构套加固。
3 排架柱箍筋或截面形式不满足要求时,可增设钢构套加固。
4 排架柱纵向钢筋不满足要求时,可增设钢构套加固或采取加强柱间支撑系统且加固相应柱的措施。
条文说明
8.2.2 本条列举了天窗架、屋架和排架柱承载力不足时可选择的加固方法。
8.2.3 厂房构件连接不符合鉴定要求时,可采用下列加固方法:
1 下柱柱间支撑的下节点构造不符合鉴定要求时,可在下柱根部增设局部的现浇钢筋混凝土套加固,但不应使柱形成新的薄弱部位。
2 构件的支承长度不满足要求时或连接不牢固,可增设支托或采取加强连接的措施。
3 墙体与屋架、钢筋混凝土柱连接不符合鉴定要求时,可增设拉筋或圈梁加固。
条文说明
8.2.3 本条列举了各种连接不符合鉴定要求时可选择的加固和处理方法。
8.2.4 女儿墙超过规定的高度时,宜降低高度或采用角钢、钢筋混凝土竖杆加固。
条文说明
8.2.4 降低女儿墙高度是消除不利抗震因素的积极措施。试验和地震经验表明:用竖向角钢加固超高女儿墙是保证裂而不倒的有效措施。当条件许可时,可利用钢筋混凝土竖杆代替角钢,有利于建筑立面处理和维护。
8.2.5 柱间的隔墙、工作平台不符合鉴定要求时,可采取剔缝脱开、改为柔性连接、拆除或根据计算加固排架柱和节点的措施。
条文说明
8.2.5 隔墙剔缝后,应注意保证隔墙本身的稳定性。
8.3 加固设计及施工
8.3 加固设计及施工
Ⅰ 屋盖加固
8.3.1 A类厂房钢筋混凝土Ⅱ型天窗架为T形截面立柱时,其加固应符合下列要求:
1 当为6、7度时,应加固竖向支撑的节点预埋件。
2 当为8度Ⅰ、Ⅱ类场地时,尚应加固竖向支撑的立柱。
3 当为8度Ⅲ、Ⅳ类场地或9度时,除按第1款的要求加固外,尚应加固所有的立柱。
条文说明
8.3.1 本条与《建筑抗震鉴定标准》GB 50023-2009第8.2节的鉴定要求相呼应,规定了不同烈度下Ⅱ形天窗架T形截面立柱的加固处理:节点加固、有支撑的立柱加固和全部立柱加固。
8.3.2 增设屋盖支撑时,宜符合下列要求:
1 原有上弦横向支撑设在厂房单元两端的第二开间时,可在抗风柱柱顶与原有横向支撑节点间增设水平压杆。
2 增设的竖向支撑与原有的支撑宜采用同一形式;当原来无支撑时,宜采用“W”形支撑,且各杆应按压杆设计;支撑节点的高度差超过3m时,宜采用“X”形支撑。
3 屋架和天窗支撑杆件的长细比,压杆不宜大于200,当为6、7度时,拉杆不宜大于350,当为8、9度时,拉杆不宜大于300。
条文说明
8.3.2 增设的竖向支撑与原有支撑形式相同,有利于地震作用的均匀分配。 当支撑全部为新增时,W形的刚度较好,但支撑高大于3m时,其腹杆较长,需要较大的截面尺寸,改用X形比较经济。
Ⅱ 排架柱加固
8.3.3 排架柱上柱柱顶采用钢构套加固时(见图8. 3.3),钢构套的长度不应小于600mm,且不应小于柱截面高度;角钢不应小于∟63×6,钢缀板截面可按表8.3.3采用。


8.3.4 有吊车的阶形柱上柱底部采用钢构套加固时(见图8.3.4),钢构套上端应超过吊车梁顶面,且超过值不应小于柱截面高度;其角钢和钢缀板可按表8. 3.4采用。


8.3.5 不等高厂房排架柱支承低跨屋盖牛腿采用钢构套加固时(见图8. 3.5),应符合下列要求:
1 当厂房跨度不大于24m且屋面荷载不大于3.5kN/m 2 时,钢缀板、钢拉杆和钢横梁的截面,A类厂房可按表8. 3.5采用,B类厂房可按表8.3.5增加15%采用。
2 不符合上述条件且为8、9度时,钢缀板、钢拉杆的截面可按下列公式计算,钢横梁的截面面积可按钢拉杆截面面积的5倍采用。


8.3.6 高低跨上柱底部采用钢构套加固时(见图8.3.6),应符合下列要求:

1 上柱底部和牛腿的钢构套应连成整体。
2 钢构套的角钢和上柱钢缀板的截面,A类厂房可按表8.3.6采用,B类厂房角钢和钢缀板的截面面积宜比表8.3.6相应增加15%。
3 牛腿钢缀板的截面应按本规程第8.3.4条的规定采用。

8.3.7 钢构套加固的施工,应符合本规程第6.3. 6条的规定。
条文说明
8.3.3~8.3.7 这几条规定了采用钢构套加固排架柱各部位的设计及施工,本次修订增加了对B类厂房的加固要求。
1 柱顶加固构件的截面尺寸,系参照《建筑抗震设计规范》GB 50011对抗剪箍筋的要求,考虑加固现有建筑时需引入“抗震加固的承载力调整系数”,分别给出A、B类厂房加固的简图和构件的选用表,用于柱截面宽度不大于500mm的情况。
2 单层厂房中,有吊车的阶形柱上柱的底部或吊车梁顶标高处,以及高低跨的上柱,在水平地震作用下容易产生水平断裂破坏。这种震害在8度时较多,高于8度时更为严重。因此,提供了8、9度时加固的简图和所用的角钢、钢缀板的截面尺寸。
3 支承低跨屋盖的牛腿不足以承受地震下的水平拉力时,不足部分由钢构套的钢缀板或钢拉杆承担,其值可根据牛腿上重力荷载代表值产生的压力设计值和纵向受力钢筋的截面面租,参照《建筑抗震设计规范》GB 50011规定的方法求得。钢缀板、钢拉杆截面验算时,考虑钢构套与原有牛腿不能完全共同工作,将其承载力设计值乘以0.75的折减系数。本规程据此提供了不同烈度、不同场地的截面选用表,以减少计算工作。
Ⅲ 柱间支撑加固
8.3.8 增设钢筋混凝土套加固下柱支撑的下节点时(见图8.3.8),应符合下列要求:

1 混凝土宜采用细石混凝土,其强度等级宜比原柱的混凝土强度提高一个等级;厚度不宜小于60mm且不宜大于100mm,并应与基础可靠连接;纵向钢筋直径不应小于12mm,箍筋应封闭,其直径不宜小于8mm,间距不宜大于100mm。
2 加固后,柱根沿厂房纵向的抗震受剪承载力可按整体构件进行截面抗震验算,但新增的混凝土和钢筋强度应乘以0.85的折减系数。
3 施工时,原柱加固部位的混凝土表面应凿毛、清除酥松杂质,灌注混凝土前应用水清洗并保持湿润。
条文说明
8.3.8 本次修订对个别文字进行了调整和明确。 采用钢筋混凝土套加固排架柱底部时,其抗震承载力验算的方法与《混凝土结构设计规范》GB 50010相同,按偏压构件斜截面受剪承载力计算,公式不再重复。考虑到混凝土套的受力滞后于原排架柱,需将新增部分的抗震承载力乘以0.85的折减系数。
8.3.9 增设柱间支撑时,应符合下列要求:
1 增设的柱间支撑应采用型钢;对于A类厂房,上柱支撑的长细比,当为8度时不应大于250,当为9度时不应大于200;下柱支撑的长细比,当为8度时不应大于200,当为9度时不应大于150;对于B类厂房,上柱支撑的长细比,当为7度时不应大于250,当为8度时不应大于200,当为9度时不应大于150;下柱支撑的长细比,当为7度时不应大于200,当为8、9度时不应大于150。
2 柱间支撑在交叉点应设置节点板,斜杆与该节点板应焊接;支撑与柱连接的端节点板厚度,对于A类厂房,当为8度时不宜小于8mm,当为9度时不宜小于10mm。对于B类厂房,当为7~9度时不宜小于10mm。
3 柱间支撑开间的基础之间宜增加水平压梁。
条文说明
8.3.9 本次修订增加了对B类厂房的加固要求,补充了对柱间支撑开间的基础之间增加水平压梁的加固要求,使支撑的内力对基础的影响尽可能小。 增设柱间支撑时,需控制支撑杆的长细比,并采取有效的方法提高支撑与柱连接的可靠性。
Ⅳ 封檐墙和女儿墙加固
8.3.10 封檐墙、女儿墙的加固,应符合下列要求:
1 竖向角钢或钢筋混凝土竖杆,应设置在厂房排架柱位置处的墙外(见图8. 3.10)。

2 钢材可采用Q235,混凝土强度等级宜采用C20,钢筋宜采用HPB235级钢筋。
3 无拉结且高度不超过1.5m时,对A类厂房,竖向角钢可按表8.3. 10-1选用,钢筋混凝土竖杆可按表8.3. 10-2选用;对B类厂房,角钢和钢筋的截面面积宜相应增加15%。
4 竖向角钢或钢筋混凝土竖杆应与柱顶或屋架节点可靠连接,出入口上部的女儿墙尚应在角钢或竖杆的上端设置联系角钢。


条文说明
8.3.10 厂房的女儿墙、封檐墙,在7度时就可能出现震害,但适当加固后则效果明显。 本次修订增加了对B类厂房的加固要求。 表8.3.10-1和表8.3.10-2系按材料为Q235角钢、C20混凝土和HPB235钢筋得到的。
9 单层砖柱厂房和空旷房屋
9.1 一般规定
9 单层砖柱厂房和空旷房屋
9.1 一般规定
9.1.1 本章适用于砖柱(墙垛)承重的单层厂房和砖墙承重的单层空旷房屋。
注:单层厂房包括仓库、泵房等,单层空旷房屋指影剧院、礼堂、食堂等。
条文说明
9.1.1 本章与《建筑抗震鉴定标准》GB 50023-2009第9章有密切联系,对多孔砖和其他烧结砖、蒸压砖砌筑的单层房屋的抗震加固,根据试验结果和震害经验,本章的规定可供参考。
9.1.2 单层砖柱厂房和单层空旷房屋的抗震加固方案,应有利于砖柱(墙垛)抗震承载力的提高、屋盖整体性的加强和结构布置上不利因素的消除。
条文说明
9.1.2 本条强调了单层砖柱厂房和单层空旷房屋加固的重点。 单层空旷房屋指影剧院、礼堂、餐厅等空间较大的公共建筑,往往是由中央大厅和周围附属的不同结构类型房屋组成的以砌体承重为主的建筑。这种建筑的使用功能要求较高,加固难度较大,需要针对存在的抗震问题,从结构体系上予以改善。需要注意:
1 大厅的抗震能力主要取决于砖柱(墙垛),要防止加固后砖柱刚度增大导致地震作用显著增加,而砖柱加固后的抗震承载力仍然不足。例如,正确选择钢筋网砂浆面层的材料强度、厚度和配筋,使形成的组合砖柱,刚度的增加可小于承载力的增加,达到预期的效果。
2 为减少大厅砖柱的地震作用,要充分利用两端墙体形成空间工作体系,加固方案应有利于屋盖整体性的加强。
3 单层空旷房屋的空间布置高低起落,平面布置复杂,毗邻的建筑之间通常不设防震缝;抗震上不利因素较多,在加固设计的方案选择时,应有利于消除不利因素,例如,采用轻质墙替换砌体隔墙、山墙山尖或将隔墙与承重构件间改为柔性连接等,可减少结构布置上对抗震的不利因素。
9.1.3 当现有的A、B类单层空旷房屋的大厅超出砌体墙承重的适用范围时,宜改变结构体系或提高构件承载力且加强墙体的约束达到现行国家标准《建筑抗震设计规范》GB 50011的相应要求。
条文说明
9.1.3 针对砖墙承重的空旷房屋适用范围的限制,当按鉴定结果的要求,需要采用钢筋混凝土柱、组合柱承重时,则加固应增设相关构件、改变结构体系或采取既提高墙体(垛)承载力又提高延性的措施,达到现行《建筑抗震设计规范》GB 50011相应要求。
9.1.4 房屋加固后,可按现行国家标准《建筑抗震设计规范》GB 50011的规定进行纵、横向的抗震分析,并可采用本章规定的方法进行构件的抗震验算。
9.1.5 混合排架房屋的钢筋混凝土部分,应按本规程第8章的有关要求加固;附属房屋应根据其结构类型按本规程相应章节的有关要求加固,但其与车间或大厅相连的部位,尚应符合本章的要求并应计入相互间的不利影响。
条文说明
9.1.5 本条要求,大厅的混合排架结构、附属房屋的加固,应分别符合相应结构类型的要求。震害经验和研究分析表明,单层空旷砖房与其附属房屋之间的共同工作和相互影响是很明显的,抗震加固和抗震鉴定一样,需予以重视。
9.2 加固方法
9.2 加固方法
9.2.1 砖柱(墙垛)抗震承载力不满足要求时,可选择下列加固方法:
1 6、7度时或抗震承载力低于要求在30%以内的轻屋盖房屋,可采用钢构套加固。
2 乙类设防,或8、9度的重屋盖房屋或延性、耐久性要求高的房屋,宜采用钢筋混凝土壁柱或钢筋混凝土套加固。
3 除本条第1、2款外的情况,可增设钢筋网面层与原有柱(墙垛)形成面层组合柱加固。
4 独立砖柱房屋的纵向,可增设到顶的柱间抗震墙加固。
条文说明
9.2.1 提高砖柱(墙垛)承载力的方法,根据试验和加固后的震害经验总结,要根据实际情况选用: 壁柱和混凝土套加固,其承载力、延性和耐久性均优于钢筋砂浆面层加固,但施工较复杂且造价较高。一般在乙类设防时和8、9度的重屋盖时采用。 钢构套加固,着重于提高延性和抗倒塌能力,但承载力提高不多,适合于6、7度和承载力差距在30%以内时采用。
9.2.2 房屋的整体性连接不符合鉴定要求时,应选择下列加固方法:
1 屋盖支撑布置不符合鉴定要求时,应增设支撑。
2 构件的支承长度不满足要求时或连接不牢固时,可增设支托或采取加强连接的措施。
3 墙体交接处连接不牢固或圈梁布置不符合鉴定要求时,可增设圈梁加固。
4 大厅与前后厅、附属房屋的连接不符合鉴定要求时,可增设圈梁加固。
5 舞台口大梁的支承部位不符合鉴定要求时,可增设钢筋网砂浆面层组合柱、钢筋混凝土壁柱等加固。
条文说明
9.2.2 本条列举了提高整体性的加固方法,如采用增设支撑、支托、圈梁加固。 本次修订,尽可能明确单层空旷房屋大厅的相应加固方法。
9.2.3 局部的结构构件或非结构构件不符合鉴定要求时,应选择下列加固方法:
1 舞台的后墙平面外稳定性不符合鉴定要求时,可增设壁柱、工作平台、天桥等构件增强其稳定性。
2 悬挑式挑台的锚固不符合鉴定要求时,宜增设壁柱减少悬挑长度或增设拉杆等加固。
3 高大的山墙山尖不符合鉴定要求时,可采用轻质隔墙替换。
4 砌体隔墙不符合鉴定要求时,可将砌体隔墙与承重构件间改为柔性连接。
5 舞台口大梁上部的墙体、女儿墙、封檐墙不符合鉴定要求时,可按本规程第8.2. 4、8.3. 10条的规定处理。
条文说明
9.2.3 砌体的山墙山尖,最容易破坏且因高度大使加固施工难度大;震害表明,轻质材料的山尖破坏较轻,特别在高烈度时更为明显;实践说明,高大墙体除采用增设扶壁柱加固外,山墙的山尖改为轻质材料,是较为经济、简便易行的; 空旷房屋大厅舞台口大梁上部的墙体,与单层工业厂房的悬墙受力状态接近,可采用类似的加固方法。
9.3 加固设计及施工
9.3 加固设计及施工
Ⅰ 面层组合柱加固
9.3.1 增设钢筋网砂浆面层与原有砖柱(墙垛)形成面层组合柱时,面层应在柱两侧对称布置;纵向钢筋的保护层厚度不应小于20mm,钢筋与砌体表面的空隙不应小于5mm,钢筋的上端应与柱顶的垫块或圈梁连接,下端应锚固在基础内;柱两侧面层沿柱高应每隔600mm采用φ6的封闭钢箍拉结。 ( 自2022年4月1日起废止该条,点击查看:新规 《混凝土结构通用规范》 GB 55008-2021)
9.3.2 增设面层组合柱的材料和构造,尚应符合下列要求(见图9.3.2):

1 水泥砂浆的强度等级宜采用M10,钢筋宜采用HPB235级钢筋。
2 面层的厚度可采用35~45mm。
3 纵向钢筋直径不宜小于8mm,间距不应小于50mm;水平钢筋的直径不宜小于4mm,间距不应大于400mm,在距柱顶和柱脚的500mm范围内,间距应加密。
4 面层应深入地坪下500mm。
9.3.3 面层组合柱的抗震验算应符合下列要求:
1 7、8度区的A类房屋,轻屋盖房屋组合砖柱的每侧纵向钢筋分别不少于3φ8、3φ10,且配筋率不小于0. 1%,可不进行抗震承载力验算。
2 加固后,柱顶在单位水平力作用下的位移可按下式计算:

3 加固后形成的面层组合柱,当不计入翼缘的影响时,计算的排架基本周期,宜乘以表9.3.3的折减系数。

4 面层组合柱的抗震承载力验算,可按现行国家标准《建筑抗震设计规范》GB 50011的规定进行。其中,抗震加固的承载力调整系数,应按本规程第3.0.4条的规定采用;增设的砂浆(或混凝土)和钢筋的强度应乘以折减系数0.85;A、B类房屋的原结构材料强度应按现行国家标准《建筑抗震鉴定标准》GB 50023的规定采用。
9.3.4 面层组合柱的施工,宜符合本规程第5. 3. 3条的有关要求。
条文说明
9.3.1~9.3.4 这几条规定面层加固砖柱(墙)形成组合柱的抗震承载力验算、构造及施工。其中,第9.3.1条是强制性要求。
1 计算组合砖柱的刚度时,加固面层与砖柱视为组合砖柱整体工作,包括面层中钢筋的作用。因为计算和试验均表明,钢筋的作用是显著的。
确定组合砖柱的计算高度时,对于9度地震,横墙和屋盖一般有一定的破坏,不具备空间工作性能,屋盖不能作为组合砖柱的不动铰支点,只能采用弹性方案;对于8度地震,屋盖结构尚具有一定的空间工作性能,因而可采用弹性和刚弹性两种计算方案。?必须指出,组合砖柱计算高度的改变,不会对抗震承载力验算结果产生明显的不利影响。因为抗震承载力验算时亦采用同一个计算高度。同时,对组合砖柱的弯矩和剪力,亦应乘以考虑空间工作的调整系数。
2 对T形截面砖柱,为了简化侧向刚度计算而不考虑翼缘,当翼缘宽度不小于腹板宽度5倍时,不考虑翼缘将使砖柱刚度减少20%以上,周期延长10%以上。因而相应的计算周期需予以折减。
当然,对钢筋混凝土屋架等重屋盖房屋,按铰接排架计算的周期,尚应再予以折减。
3 试验研究和计算表明,面层材料的弹性模量及其厚度等,对组合砖柱的刚度值有很大的影响,因而面层不宜采用较高强度等级的材料和较大的厚度,以免地震作用增加过大。
由于水泥砂浆的拉伸极限变形值低于混凝土的拉伸极限值较多,容易出现拉伸裂缝,为了保证组合砖柱的整体性和耐久性,规定砂浆面层内仅采用强度等级较低的HPB235级钢筋。
4 对加固组合砖柱拉结腹杆的间距、拉结腹杆的横截面尺寸及其配筋的规定,是考虑到使它们能传递必要的剪力,并使组合砖柱两侧的加固面层能整体工作。
5 震害表明,刚性地坪对砖柱等类似构件的嵌固作用很强,使其破坏均在地坪以上一定高度处。因而对埋入刚性地坪内的砖柱,其加固面层的基础埋深要求可适当放宽,即不要求与原柱子有同样的埋深。
Ⅱ 组合壁柱加固
9.3.5 增设钢筋混凝土壁柱或套与原有砖柱(墙垛)形成组合壁柱时,应符合下列要求:
1 壁柱应在砖墙两面相对位置同时设置,并采用钢筋混凝土腹杆拉结。在砖柱(墙垛)周围设置钢筋混凝土套遇到砖墙时,应设钢筋混凝土腹杆拉结。壁柱或套应设基础,基础的横截面面积不得小于壁柱截面面积的一倍,并应与原基础可靠连接。
2 壁柱或套的纵向钢筋,保护层厚度不应小于25mm,钢筋与砌体表面的净距不应小于5mm;钢筋的上端应与柱顶的垫块或圈梁连接,下端应锚固在基础内。
3 壁柱或套加固后按组合砖柱进行抗震承载力验算,但增设的混凝土和钢筋的强度应乘以规定的折减系数。 ( 自2022年4月1日起废止该条,点击查看:新规 《混凝土结构通用规范》 GB 55008-2021)
9.3.6 增设钢筋混凝土壁柱或钢筋混凝土套加固砖柱(墙垛)的设计,尚应符合下列要求:
1 壁柱和套的混凝土宜采用细石混凝土,强度等级宜采用C20;钢筋宜采用HRB335级或HPB235级热轧钢筋。
2 采用钢筋混凝土壁柱加固砖墙(见图9. 3.6a)或钢筋混凝土套加固砖柱(墙垛)(见图9. 3.6b)时,其构造尚应符合下列规定:
1)壁柱和套的厚度宜为60~120mm;
2)纵向钢筋宜对称配置,配筋率不应小于0. 2%;
3)箍筋的直径不应小于4mm且不小于纵向钢筋直径的20%,间距不应大于400mm且不应大于纵向钢筋直径的20倍,在距柱顶和柱脚的500mm范围内,其间距应加密;当柱一侧的纵向钢筋多于4根时,应设置复合箍筋或拉结筋;
4)钢筋混凝土拉结腹杆沿柱高度的间距不宜大于壁柱最小厚度的12倍,配筋量不宜少于两侧壁柱纵向钢筋总面积的25%;
5)壁柱或套的基础埋深宜与原基础相同,当有较厚的刚性地坪时,埋深可浅于原基础,但不宜浅于室外地面下500mm。

3 采用壁柱或套加固后的抗震承载力验算,应符合本规程第9.3.3条的有关规定,钢筋和混凝土的强度应乘以折减系数0.85;A、B类房屋的材料强度应按现行国家标准《建筑抗震鉴定标准》GB 50023的有关规定采用。
条文说明
9.3.5、9.3.6 这两条给出了增设混凝土壁柱加固的构造和计算要求;其中,第9.3.5条是强制性要求。采用壁柱和混凝土套加固,其承载力、延性和耐久性均优于钢筋砂浆面层加固。 壁柱加固要有效,加固的细部构造应确保壁柱与砖墙形成组合构件,本规程中给出了示意图,强调了以下几点:
①控制最小配筋率和配箍及钢筋与砖墙表面的距离;
②加强壁柱纵向钢筋在上下端与原结构连接件的连接;
③壁柱下应设置基础,并控制基础的截面;
④按组合截面计算承载力时,应考虑应力滞后,将混凝土和钢筋的强度乘以折减系数。
Ⅲ 钢构套加固
9.3.7 增设钢构套加固砖柱(墙垛)的设计,应符合下列规定:
1 钢构套的纵向角钢不应小于∟56× 5。角钢应紧贴砖砌体,下端应伸入刚性地坪下200mm,上端应与柱顶垫块、圈梁连接。
2 钢构套的横向缀板截面不应小于35mm×5mm,系杆直径不应小于16mm。缀板或系杆的间距不应大于纵向单肢角钢最小截面回转半径的40倍,在柱上下端和变截面处,间距应加密。
3 对于A类房屋,当为7度时或抗震承载力低于要求在30%以内的轻屋盖房屋,增设钢构套加固后,砖柱(墙垛)可不进行抗震承载力验算。
条文说明
9.3.7 本条给出了增设钢构套加固砖垛的构造要求。
1 钢构套加固,构件本身要有足够的刚度和强度,以控制砖柱的整体变形和保证钢构套的整体强度;加固着重于提高延性和抗倒塌能力,但承载力提高不多,适合于6、7度和承载力差距在30%以内时采用,一般不作抗震验算。
2 钢构套加固砖垛的细部构造应确实形成砖垛的约束,为确保钢构套加固能有效控制砖柱的整体变形,纵向角钢、缀板和拉杆的截面应使构件本身有足够的刚度和承载力,其中,横向缀板的间距比钢结构中相应的尺寸大,因不要求角钢肢杆充分承压,且角钢紧贴砖柱,不像通常的格构式组合钢柱中能自由地失稳。
3 构件需具有一定的腐蚀裕度,以具备耐久性。
采用本方法需注意以下几点:
①钢构套角钢的上下端应有可靠连接;
②钢构套缀板在柱上下端和柱变截面处,间距应加密。
9.3.8 钢构套加固砖柱(墙垛)时,砖柱(墙垛)四角应打磨成圆角且用高强度的砂浆抹平,其施工尚宜符合本规程第6.3. 6条的有关规定。
Ⅳ 其他
9.3.9 外加圈梁加固单层砖拄厂房和单层空旷房屋时,其设计及施工应符合本规程第5. 3.16~5.3.19条的有关规定。
9.3.10 女儿墙、封檐墙、舞台口大梁上部墙体的加固设计及施工,应符合本规程第8.3.10条的有关规定。
10 木结构和土石墙房屋
10.1 木结构房屋
10 木结构和土石墙房屋
10.1 木结构房屋
条文说明
本节与《建筑抗震鉴定标准》GB 50023-2009第10.1节有密切的联系。主要适用于不符合其要求的穿斗木构架、旧式木骨架、木柱木屋架、柁木檩架和康房的加固。 木结构房屋的震害表明,木结构是一种抗震能力较好的结构形式。只要木构件不腐朽、不严重开裂、不拔榫、不歪斜,且与围护墙有拉结,即使在高烈度区,仅有破坏轻微的实例。因此,木结构房屋抗震加固的重点是木结构的承重体系。只要地震时构架不倒,就会减轻地震造成的损失,达到墙倒屋不塌的目标。 木结构房屋的加固方法包括:
1 对构造不合理的木构架,采取增设杆件的方法加固,见图3~图7。
2 木构架歪斜,采用打牮拨正、增砌抗震墙的措施。


3 木构件的截面过细、腐朽、严重开裂,采用更换、增附构件的方法加固,见图8~图10。。
?
4 木构件的节点松动,采用加铁件连接的方法加固。
5 木构架与围护墙体之间的连接,可采用加墙缆拉结的方法加固。 木构架房屋抗震加固中新增构件的截面尺寸,可按静载作用下选择的截面尺寸采用,即《建筑抗震鉴定标准》GB 50023-2009附录G提供的木构件尺寸。但新旧构件之间要加强连接。
10.1.1 本节适用于中、小型木结构房屋,其构架类型和房屋的层数,应符合现行国家标准《建筑抗震鉴定标准》GB 50023的有关规定。
10.1.2 木结构房屋的抗震加固,应提高木构架的抗震能力;可根据实际情况,采取减轻屋盖重力、加固木构架、加强构件连接、增设柱间支撑、增砌砖抗震墙等措施。增设的柱间支撑或抗震墙在平面内应均匀布置。
10.1.3 木结构房屋抗震加固时,可不进行抗震验算。
10.1.4 木构架的加固应符合下列要求:
1 旧式木骨架的构造形式不合理时,应增设防倾倒的杆件。
2 穿斗木骨架的柁柱连接未采用银锭榫和穿枋时,应采用铁件和附木加固;当榫槽截面占柱截面大于1/3时,可采用钢板条、扁钢箍、贴木板或钢丝绑扎等加固。
3 康房底层柱间应采用斜撑或剪刀撑加固,且不宜少于2对。
4 木构架倾斜度超过柱径的1/3且有明显拔榫时,应先打牮拨正,后用铁件加固;亦可在柱间增设抗震墙并加强节点连接。
5 当为9度且明柱的柱脚与柱基础无连接时,宜采用铁件加固。
10.1.5 木构件加固应符合下列要求:
1 木构件截面不符合鉴定标准要求或明显下垂时,应增设构件加固,增设的构件应与原有构件可靠连接。
2 木构件腐朽、疵病、严重开裂而丧失承载能力时,应更换或增设构件加固;增设构件的截面尺寸,宜符合现行国家标准《建筑抗震鉴定标准》GB 50023的规定且应与原构件可靠连接;木构件裂缝时可采用铁箍加固。
3 当木柱柱脚腐朽时,可采用下列方法加固:
1)腐朽高度大于300mm时,可采用拍巴掌榫墩接(见图10.1. 5);墩接区段内可用两道8号钢丝捆扎,每道不应少于4匝;当为8、9度时,明柱在墩接接头处应采用铁件或扒钉连接;
2)腐朽高度不大于300mm时,应采用整砖墩接;砖墩的砂浆强度等级不应低于M2.5。

10.1.6 砖墙的加固应符合下列要求:
1 墙体空臌、酥碱、歪闪或有明显裂缝时,应拆除重砌。当为8度时,砖墙的砌筑砂浆强度等级不应低于M1.0;当为9度时,砌筑砂浆强度等级不应低于M2.5。
2 增砌的隔墙应符合下列要求:
1)高度不大于3.0m,长度不大于5. 0m的隔墙,可采用120mm砖墙,砌筑砂浆的强度等级宜采用M1.0;
2)高度大于3.0m,长度大于5.0m的隔墙,应采用240mm砖墙,砌筑砂浆的强度等级不应低于M0.4;
3)当为9度时,沿墙高每隔1.0m应设一道长700mm的2φ6钢筋或8号钢丝与柱拉结;
4)当为8、9度时,墙顶应与柁(梁)连接;
5)增砌的隔墙应有基础。
3 增设的轻质隔墙,上下层宜在同一轴线上,墙底应设置底梁并与柱脚连接,墙顶应与梁或屋架连接,隔墙的龙骨之间宜设置剪刀撑或斜撑。
4 柁、梁上增设的隔墙,应采用轻质隔墙;原有的砖、土坯山花应拆除,更换为轻质墙。
10.1.7 无锚固的女儿墙、门脸、出屋顶小烟囱,应拆除、降低高度或采取加固措施。
10.2 土石墙房屋
10.2 土石墙房屋
条文说明
本节与《建筑抗震鉴定标准》GB 50023-2009第10.2节和第10.3节有密切的联系。主要适用于6、7度时不符合其鉴定要求的村镇土石墙房屋的抗震加固。 土石墙房屋加固的重点是墙体的承载力和连接。侧重于采用就地取材、简易可行的方法,如拆除重砌,增附构件,设墙缆、铁箍、钢丝等拉结,用苇箔、秫秸等轻质材料替换等。 四川省羌族民居——羌房,与毛片石房屋的情况有些类似,本节的规定可有些参考价值,需要针对地区的特点,在地方规程中进一步具体化。
10.2.1 本节适用于6、7度时村镇土石墙承重房屋,其墙体的类型和房屋的层数,应符合现行国家标准《建筑抗震鉴定标准》GB 50023的有关规定。
10.2.2 土石墙房屋的加固,可根据实际情况采取加固墙体、加强墙体连接、减轻屋盖重力等措施。
10.2.3 土石墙承重房屋抗震加固时,可不进行抗震验算。
10.2.4 墙体加固时应符合下列要求:
1 墙体严重酥碱、空臌、歪闪,应拆除重砌。
2 前后檐墙外闪或内外墙无咬砌时,宜采用打摽(见图10.2. 4)或增设扶墙垛等方法加固。
3 横墙间距超过规定时,宜增砌横墙并与檐墙拉结,或采取增强整体性的其他措施。

4 防潮碱草已腐烂时,宜更换。
10.2.5 屋盖木构件加固时,应符合下列要求:
1 木构件截面不符合鉴定要求或明显下垂时,应增设构件加固,增设的构件应与原有的构件可靠连接。
2 木构件腐朽、疵病、严重开裂而丧失承载能力时,应更换或增设构件加固;新增构件的截面尺寸宜符合现行国家标准《建筑抗震鉴定标准》GB 50023的要求,且应与原有的构件可靠连接;木构件的裂缝可采用铁箍加固。
3 木构件支承长度不满足要求时,应采取增设支托或夹板、扒钉连接。
4 尽端三花山墙与排山柁无拉结时,宜采用扒墙钉拉结(见图10.2.5)。

10.2.6 屋顶草泥过厚时,宜结合维修减薄。
10.2.7 房屋易损部位的加固时,应符合下列要求:
1 对柁眼(山花)的土坯和砖砌体,应拆除或改用苇箔、秫秸箔墙等材料。
2 当出屋顶烟囱不符合鉴定要求时,在出入口或人流通道处,应拆除、降低高度或采取加固措施。
11 烟囱和水塔
11.1 烟囱
11 烟囱和水塔
11.1 烟 囱
条文说明
本节与《建筑抗震鉴定标准》GB 50023-2009第11.1节有密切的联系。主要适用于不符合其鉴定要求的砖烟囱和钢筋混凝土烟囱的抗震加固。本次修订,明确区分A、B类烟囱加固要求的不同。 砖烟囱抗震承载力不足或砖烟囱顶部配筋不符合抗震鉴定要求时,可采用钢筋网砂浆面层或扁钢构套加固。钢筋混凝土烟囱可采用喷射混凝土加固。砖烟囱也可采用喷射混凝土加固。喷射混凝土的加固效果较好,但常受施工机具等条件的限制,且材料消耗较多。加固方案需按合理、有效、经济的原则确定。 面层加固中,竖向钢筋在烟囱根部要有足够的锚固,以避免加固后的烟囱在地震时根部出现弯曲破坏。加固的钢筋用量系按设计规范进行抗震承载力验算后提出的,因此,现有烟囱的砖强度等级为MU10且砌筑砂浆强度等级不低于M5时,可不作抗震验算。 扁钢构套加固中,扁钢的厚度,除满足抗震强度要求外,还考虑了外界环境条件下钢材的锈蚀。竖向扁钢在烟囱根部要有足够的锚固,以避免加固后的烟囱在地震时根部出现弯曲破坏。加固的扁钢用量系按设计规范进行抗震承载力验算后提出的,其中,考虑扁钢在外界环境条件下的锈蚀影响,采用了0.6的折减系数。同样,现有砖烟囱,砖强度等级为MU10且砌筑砂浆强度等级不低于M5时,可不作抗震验算。 对于钢筋混凝土烟囱,按鉴定的要求,当设防烈度不高于8度且高度不超过100m,不需要进行抗震验算,仅需符合构造鉴定要求。因此,采用钢筋混凝土套加固也仅规定构造要求。
Ⅰ 一般规定
11.1.1 本节适用于普通类型的独立砖烟囱和钢筋混凝土烟囱,其高度应符合现行国家标准《建筑抗震鉴定标准》GB 50023的有关规定。
11.1.2 砖烟囱不符合抗震鉴定要求时,可采用钢筋网砂浆面层或扁钢构套加固;钢筋混凝土烟囱不符合抗震鉴定要求时,可采用现浇或喷射钢筋混凝土套加固。
11.1.3 烟囱加固时,高度不超过50m的砖烟囱及设防烈度不高于8度、高度不超过100m的钢筋混凝土烟囱,可不进行抗震验算。
11.1.4 地震时有倒塌伤人危险且无加固价值的烟囱应拆除。
Ⅱ 砖烟囱加固设计及施工
11.1.5 采用钢筋网砂浆面层加固砖烟囱时,应符合下列要求:
1 水泥砂浆的强度等级宜采用M10。
2 面层厚度可为40~60mm,顶部应设钢筋混凝土圈梁。
3 面层的竖向和环向钢筋,对于A类烟囱,应按表11. 1. 5选用,当为6度时可按7度选用,但竖向钢筋直径可减少2mm,环向钢筋间距可采用300mm;对于设防烈度为6~8度的B类烟囱,钢筋直径仍按表11.1.5选用,但竖向钢筋间距不应大于250mm,环向钢筋间距不应大于200mm。
4 竖向钢筋的端部应设弯钩;下端应锚固在基础或深入地面500mm下的圈梁内,上端应锚固在顶部的圈梁内。
5 面层的施工宜符合本规程第5.3.3条的有关规定。

11.1.6 采用扁钢构套加固砖烟囱时,应符合下列要求:
1 烟囱实际的砖强度等级不宜低于MU7.5,实际的砂浆强度等级不宜低于M2.5。
2 竖向和环向扁钢的用量,A类烟囱可按表11.1. 6选用,当为6度时可按7度选用,但竖向扁钢厚度可减少2mm;对于设防烈度为6~8度的B类烟囱,扁钢的截面面积宜比表11. 1. 6增加15%。
3 竖向扁钢应紧贴砖筒壁,且每隔1.0m应采用钢筋与筒壁锚拉,下端应锚固在基础或深入地面500mm下的圈梁内;环向扁钢应与竖向扁钢焊牢。
4 扁钢构套应采取防腐措施。


Ⅲ 钢筋混凝土烟囱加固设计及施工
11.1.7 采用钢筋混凝土套加固钢筋混凝土烟囱时,应符合下列要求:
1 混凝土强度等级宜高于原烟囱一个等级,且不应低于C20。
2 钢筋混凝土套的厚度,当浇筑施工时不应小于120mm,当喷射施工时不应小于80mm。
3 对于A类烟囱,竖向钢筋直径不宜小于12mm,其下端应锚入基础内;环向钢筋直径不应小于8mm,其间距不应大于250mm。对于B类烟囱,其竖向钢筋直径宜增加2mm,环向钢筋间距不应大于200mm。
4 钢筋混凝土套的施工应符合本规程第6.3.9条的有关规定。
11.2 水塔
11.2 水 塔
条文说明
本节与《建筑抗震鉴定标准》GB 50023-2009第11.2节有密切的联系。主要适用于不符合鉴定要求的砖和钢筋混凝土筒壁式和支架式水塔的抗震加固。本次修订,明确区分A、B类水塔加固要求的不同。 水塔的加固,要根据其结构形式和设防烈度、场地的不同,分别采用扁钢构套、钢筋网砂浆面层、圈梁和外加柱及钢筋混凝土套加固;对基础倾斜度超过鉴定要求的水塔,需采取纠偏和加固措施后方可继续使用。 这里仅提出各种加固设计要求,有关的施工要求可参照本规程中各类建筑结构相应加固方法的有关条款。
Ⅰ 一般规定
11.2.1 本节适用于砖和钢筋混凝土的筒壁式和支架式独立水塔,其容积和高度应符合现行国家标准《建筑抗震鉴定标准》GB 50023的有关规定。
11.2.2 水塔不符合抗震鉴定要求时,可选择下列加固方法:
1 容积小于50m 3 的砖石筒壁水塔,当为7度时和8度Ⅰ、Ⅱ类场地时,可采用扁钢构套加固;容积不小于50m 3 的A类砖石筒壁水塔,当为7度时和8度Ⅰ、Ⅱ类场地时,可采用外加钢筋混凝土圈梁和柱或钢筋网砂浆面层加固,当为8度Ⅲ、Ⅳ类场地和9度时,可采用钢筋混凝土套加固。
2 砖支柱水塔,当为A类且7度时和8度Ⅰ、Ⅱ类场地时,当为B类且6度和7度Ⅰ、Ⅱ类场地时,高度不超过12m的可采用钢筋网砂浆面层加固。
3 钢筋混凝土支架水塔,当为8度Ⅲ、Ⅳ类场地和9度时,可采用钢构套或钢筋混凝土套加固。
4 当为7度Ⅲ、Ⅳ类场地和8度时的倒锥壳水塔及9度Ⅲ、Ⅳ类场地的钢筋混凝土筒壁水塔,可采用钢筋混凝土内、外套筒加固,套筒应与基础锚固并应与原筒壁紧密连成一体。
5 水塔基础倾斜,应纠偏复位;对整体式基础尚应加大其面积,对单独基础尚应改为条形基础或增设系梁加强其整体性。
11.2.3 按本节规定加固水塔时,抗震验算应符合下列规定:
1 对于A类水塔,遇下列情况之一时应进行抗震验算:
1)当为8度Ⅲ、Ⅳ类场地和9度时,采用钢筋混凝土套或钢构套加固的砖石筒壁水塔和钢筋混凝土支架水塔;
2)当为7度Ⅲ、Ⅳ类场地和8度时,采用钢筋混凝土套筒加固的倒锥壳水塔;
3)当为9度Ⅲ、Ⅳ类场地采用钢筋混凝土内、外套筒加固的钢筋混凝土筒壁水塔。
2 对于B类水塔,遇下列情况之一时应进行抗震验算:
1)7度和8度Ⅰ、Ⅱ类场地时,采用钢筋混凝土套或钢构套加固的砖石筒壁水塔。
2)8度Ⅲ、Ⅳ类场地和9度时,采用钢筋混凝土内、外 套筒加固的钢筋混凝土筒壁水塔。
3 水塔加固的抗震承载力验算方法和材料强度,可按现行国家标准《建筑抗震鉴定标准》GB 50023的有关规定执行,但加固的承载力调整系数应符合本规程第3. 0.4条的规定,混凝土和钢筋的强度应乘以折减系数0.85,钢材强度应乘以折减系数0.70。
11.2.4 地震时有倒塌伤人危险且无加固价值的水塔应拆除。
Ⅱ 砖筒壁、砖支柱水塔的加固设计及施工
11.2.5 采用扁钢构套加固水塔砖筒壁时,应符合下列要求:
1 扁钢的厚度不应小5mm。
2 竖向扁钢不应少8根,并应紧贴筒壁,下端应与基础锚固;环向扁钢间距不应大于1.5m,并应与竖向扁钢焊牢。
3 扁钢构套应采取防腐措施。
11.2.6 采用外加钢筋混凝土圈梁和柱加固水塔筒壁时,应符合下列要求:
1 外加柱不应少于4根,截面不应小于300mm×300mm,并应与基础锚固;外加圈梁可沿筒壁高度每隔4~5m设置一道,截面不应小于300mm×400mm。
2 对A类水塔,外加圈梁和柱的主筋不应少于4φ16,箍筋不应小于φ8,间距不应大于200mm,梁柱节点附近的箍筋应加密。对B类水塔,主筋、箍筋的直径均应增加2mm。
11.2.7 采用钢筋网砂浆面层加固水塔的砖筒壁或砖支柱时,应符合下列要求:
1 砂浆的强度等级不应低于M10,面层的厚度可采用40~60mm。
2 加固砖筒壁时,竖向和环向钢筋的直径均不应小于8mm,间距不应大于250mm。
3 加固砖柱的面层应四周设置,其竖向钢筋每边不应少于3φ10,箍筋直径不应小于6mm,间距不应大于250mm。
4 加固的竖向钢筋应与基础锚固。
11.2.8 采用钢筋混凝土套加固砖筒壁水塔时,应符合下列要求:
1 钢筋混凝土套的厚度不宜小于120mm,并应与基础锚固。
2 宜采用细石混凝土,强度等级不应低于C20。
3 加固砖筒壁时,竖向钢筋直径不应小于12mm,间距不应大于250mm;环向钢筋直径不应小于8mm,间距不应大于300mm。
Ⅲ 钢筋混凝土支架水塔的加固设计及施工
11.2.9 采用钢筋混凝土套加固钢筋混凝土支架时,应符合下列要求:
1 钢筋混凝土套的厚度不宜小于120mm,并应与基础锚固。
2 宜采用细石混凝土,强度等级宜高于原支架一个等级,且不应低于C20。
3 A类水塔的混凝土支架加固,其纵向钢筋不应小于4φ12,箍筋直径不应小于8mm,间距不应大于200mm。B类水塔的混凝土支架加固,其纵向钢筋、箍筋的直径均应增加2mm。
11.2.10 采用角钢构套加固钢筋混凝土水塔支架的设计及施工,宜符合本规程第6.3. 4~6.3.6条的有关规定,并应喷或抹水泥砂浆保护层。
本规程用词说明
本规程用词说明
1 为了便于在执行本规程条文时区别对待,对要求严格程度不同的用词说明如下:
1)表示很严格,非这样做不可的用词:
正面词采用“必须”,反面词采用“严禁”;
2)表示严格,在正常情况下均应这样做的用词:
正面词采用“应”,反面词采用“不应”或“不得”;
3)表示允许稍有选择,在条件许可时首先应这样做的用词:
正面词采用“宜”,反面词采用“不宜”;
表示有选择,在一定条件下可以这样做的,采用“可”。
2 条文中指明应按其他有关标准执行的写法为,: “应符合……规定”或“应按……执行”。
引用标准名录
引用标准名录
1《砌体结构设计规范》GB 50003
2《混凝土结构设计规范》GB 50010
3《建筑抗震设计规范》GB 50011
4《钢结构设计规范》GB 50017
5《建筑抗震鉴定标准》GB 50023-2009
6《混凝土结构加固设计规范》GB 50367
7《钢丝镀锌层》GB/T 15393
8《混凝土界面处理剂》JC/T 907
